Размещено на портале Архи.ру (www.archi.ru)

07.10.2022

Узость взгляда

Анна Старостина
Объект:
Многоквартирный жилой дом Casamirador Savassi
Адрес:
Бразилия, None, Белу-Оризонти.
Мастерская:
Gisele Borges Arquitetura

Многоквартирный дом Casamirador в бразильском Белу-Оризонти зажат между соседними постройками на участке размером 12,7 на 60 м. Бюро Gisele Borges Arquitetura с честью вышло из этой сложной ситуации.

Город Белу-Оризонти на юго-востоке Бразилии известен сразу несколькими крупными работами Оскара Нимейера: прежде всего его ранним ансамблем построек в Пампулье и совсем поздним комплексом Административного города президента Танкреду Невиса. Собственно, и саму новую планировочную схему Белу-Оризонти, изначально выстроенного по регулярному генплану XIX века, в середине прошлого столетия также формировал Нимейер.

Многоквартирный жилой дом Casamirador Savassi в Белу-Оризонти
Многоквартирный жилой дом Casamirador Savassi в Белу-Оризонти
Фотография © Pablo Gomide
Многоквартирный жилой дом Casamirador Savassi в Белу-Оризонти
Многоквартирный жилой дом Casamirador Savassi в Белу-Оризонти
Фотография © Pablo Gomide
Многоквартирный жилой дом Casamirador Savassi в Белу-Оризонти Фотография © Juliana Berzoini
Многоквартирный жилой дом Casamirador Savassi в Белу-Оризонти
Фотография © Juliana Berzoini
Многоквартирный жилой дом Casamirador Savassi в Белу-Оризонти Фотография © Juliana Berzoini
Многоквартирный жилой дом Casamirador Savassi в Белу-Оризонти
Фотография © Juliana Berzoini

Такие сильные модернистские традиции легко считываются и в архитектурном решении многоквартирного жилого дома в престижном центральном районе Савасси, разработанном для девелопера Casamirador Incorporações местным бюро Gisele Borges Arquitetura. Тем более что расположен он совсем недалеко от высотного жилого здания, опять же построенного по проекту знаменитого бразильца и носящего его имя.
Многоквартирный жилой дом Casamirador Savassi в Белу-Оризонти
Многоквартирный жилой дом Casamirador Savassi в Белу-Оризонти
Фотография © Juliana Berzoini
Многоквартирный жилой дом Casamirador Savassi в Белу-Оризонти
Многоквартирный жилой дом Casamirador Savassi в Белу-Оризонти
Фотография © Juliana Berzoini
Многоквартирный жилой дом Casamirador Savassi в Белу-Оризонти Фотография © Juliana Berzoini
Многоквартирный жилой дом Casamirador Savassi в Белу-Оризонти
Фотография © Juliana Berzoini
Многоквартирный жилой дом Casamirador Savassi в Белу-Оризонти Фотография © Pablo Gomide
Многоквартирный жилой дом Casamirador Savassi в Белу-Оризонти
Фотография © Pablo Gomide
Многоквартирный жилой дом Casamirador Savassi в Белу-Оризонти Фотография © Pablo Gomide
Многоквартирный жилой дом Casamirador Savassi в Белу-Оризонти
Фотография © Pablo Gomide
Многоквартирный жилой дом Casamirador Savassi в Белу-Оризонти Фотография © Pablo Gomide
Многоквартирный жилой дом Casamirador Savassi в Белу-Оризонти
Фотография © Pablo Gomide
Многоквартирный жилой дом Casamirador Savassi в Белу-Оризонти Фотография © Pablo Gomide
Многоквартирный жилой дом Casamirador Savassi в Белу-Оризонти
Фотография © Pablo Gomide

Кроме того, в районе Савасси много уютных баров и ресторанов с террасами и впечатляющими городскими видами. Для него очень характерна плотная и изобретательная разновысотная застройка. Так что узкий и длинный, зажатый между другими постройками Casamirador – в полной мере продукт своего окружения.
Многоквартирный жилой дом Casamirador Savassi в Белу-Оризонти
Многоквартирный жилой дом Casamirador Savassi в Белу-Оризонти
Фотография © Pablo Gomide
Многоквартирный жилой дом Casamirador Savassi в Белу-Оризонти Фотография © Pablo Gomide
Многоквартирный жилой дом Casamirador Savassi в Белу-Оризонти
Фотография © Pablo Gomide
Многоквартирный жилой дом Casamirador Savassi в Белу-Оризонти Фотография © Pablo Gomide
Многоквартирный жилой дом Casamirador Savassi в Белу-Оризонти
Фотография © Pablo Gomide
Многоквартирный жилой дом Casamirador Savassi в Белу-Оризонти Фотография © Pablo Gomide
Многоквартирный жилой дом Casamirador Savassi в Белу-Оризонти
Фотография © Pablo Gomide

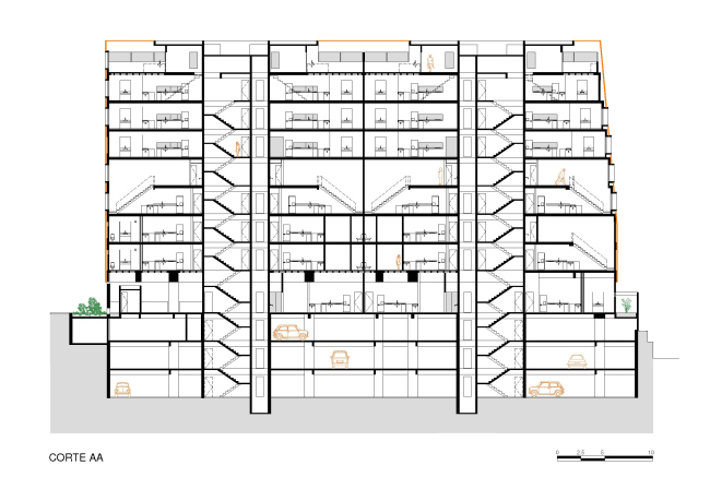
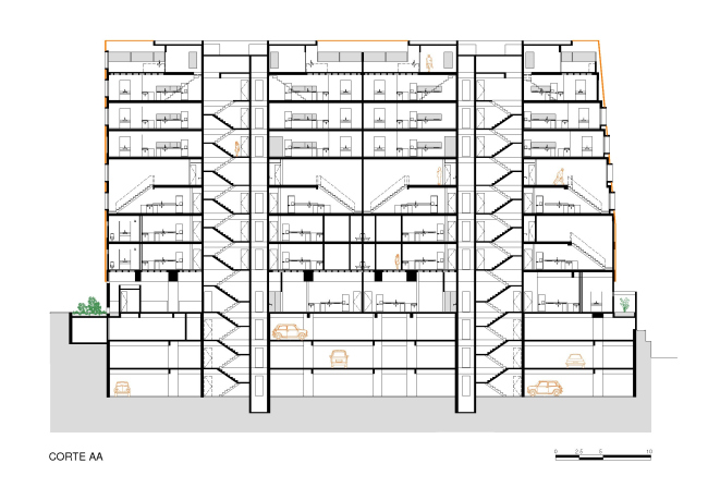
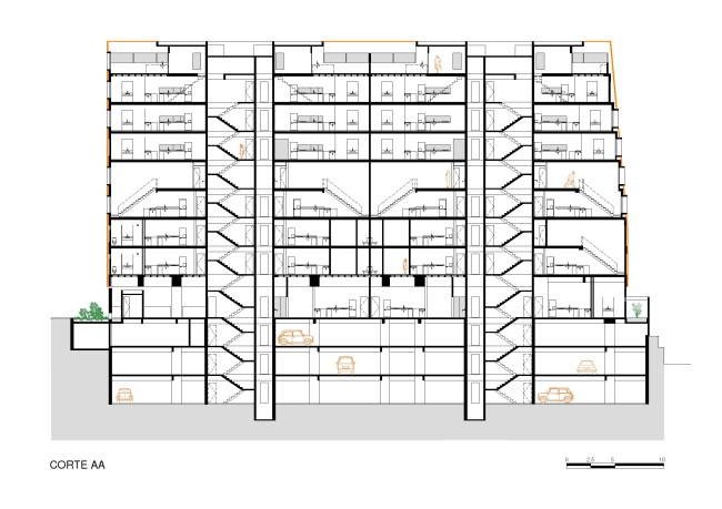
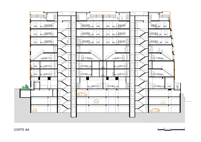
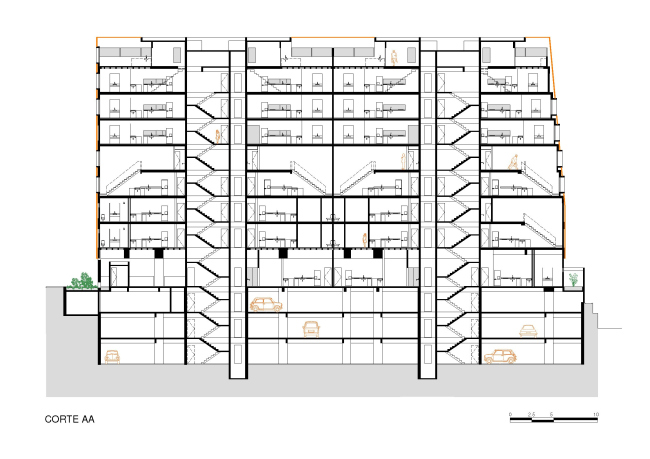
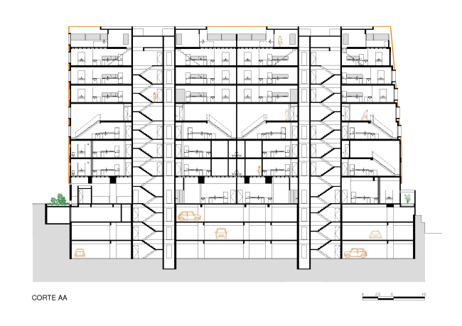
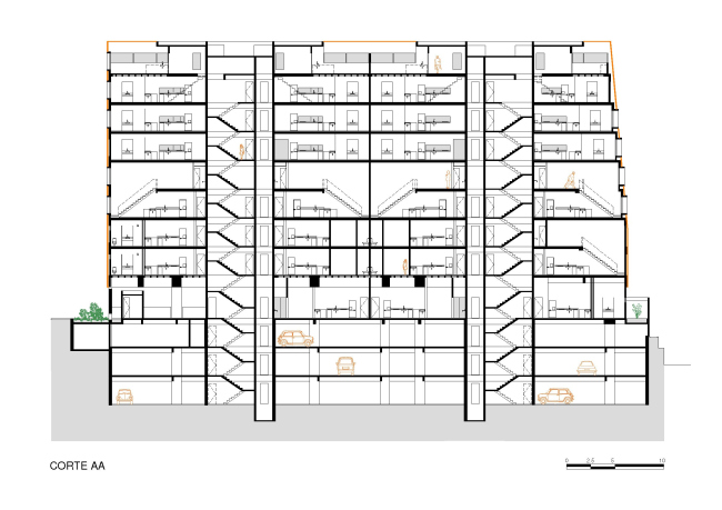
Девятиэтажный объем имеет два независимых ядра и вмещает 14 ячеек лофтового типа и 24 студии. На подземных уровнях расположен гараж. Чтобы соблюсти все существующие ограничения, архитекторы сузили объем, придав ему форму трапеции. Бетонный конструктив при этом получил «вторую кожу» из перфорированных алюминиевых панелей, выкрашенных в землистый, охристый цвет «сырой руды», добычей которой также славится этот регион Бразилии.
Многоквартирный жилой дом Casamirador Savassi в Белу-Оризонти
Многоквартирный жилой дом Casamirador Savassi в Белу-Оризонти
Фотография © Pablo Gomide
Многоквартирный жилой дом Casamirador Savassi в Белу-Оризонти
Многоквартирный жилой дом Casamirador Savassi в Белу-Оризонти
Фотография © Pablo Gomide
Многоквартирный жилой дом Casamirador Savassi в Белу-Оризонти
Многоквартирный жилой дом Casamirador Savassi в Белу-Оризонти
Фотография © Pablo Gomide

Панели с нерегулярным, но тщательно продуманным и аккуратно организованным ритмом отверстий закреплены при помощи стальных конструкций на расстоянии от 15 до 60 см, что позволило не только сформировать яркий образ, но и решить сразу несколько функциональных проблем. Во-первых, перфорация очевидно защищает внутренние зоны от перегрева и назойливых взглядов, не лишая при этом жителей солнечного света и видов на город. Во-вторых, из-за слишком узкой кровли архитекторам негде было разместить инженерное оборудование, поэтому частично проблема комфортного климата решается при помощи естественной вентиляции, а необходимые кондиционеры оказываются закреплены на уступчатом «теле» здания и спрятаны за навесным фасадом. В-третьих, пробивающиеся сквозь отверстия яркие солнечные лучи создают контрастную игру света и тени, задают настроение и позволяют следить за  природным ритмом смены времен дня.
Многоквартирный жилой дом Casamirador Savassi в Белу-Оризонти
Многоквартирный жилой дом Casamirador Savassi в Белу-Оризонти
Фотография © Pablo Gomide
Многоквартирный жилой дом Casamirador Savassi в Белу-Оризонти Фотография © Pablo Gomide
Многоквартирный жилой дом Casamirador Savassi в Белу-Оризонти
Фотография © Pablo Gomide
Многоквартирный жилой дом Casamirador Savassi в Белу-Оризонти Фотография © Juliana Berzoini
Многоквартирный жилой дом Casamirador Savassi в Белу-Оризонти
Фотография © Juliana Berzoini

Но бетонный конструктив здания честно явлен и на фасаде в виде массивных рам больших панорамных окон. Эти, вроде бы нерегулярно «повешенные» объемные картины отвечают за связь с окружающим городским пространством, изначально заложенную в архитектурном коде окружающей застройки.
Многоквартирный жилой дом Casamirador Savassi в Белу-Оризонти
Многоквартирный жилой дом Casamirador Savassi в Белу-Оризонти
Фотография © Leon Myssior
Многоквартирный жилой дом Casamirador Savassi в Белу-Оризонти
Многоквартирный жилой дом Casamirador Savassi в Белу-Оризонти
Фотография © Leon Myssior

Следуя таким образом общему духу модернизма, но предлагая в целом смягченную, более декоративную и прихотливую трактовку, авторы Сasamirador Savassi тем не менее не удержались от прямых цитат из наследия Оскара Нимейера и подняли узкий уличный фасад на эффектный V-образный пилон.

Материалы предоставлены агентством v2com.
Многоквартирный жилой дом Casamirador Savassi в Белу-Оризонти
Многоквартирный жилой дом Casamirador Savassi в Белу-Оризонти
© Gisele Borges Arquitetura
Многоквартирный жилой дом Casamirador Savassi в Белу-Оризонти
Многоквартирный жилой дом Casamirador Savassi в Белу-Оризонти
© Gisele Borges Arquitetura
Многоквартирный жилой дом Casamirador Savassi в Белу-Оризонти
Многоквартирный жилой дом Casamirador Savassi в Белу-Оризонти
© Gisele Borges Arquitetura
Многоквартирный жилой дом Casamirador Savassi в Белу-Оризонти
Многоквартирный жилой дом Casamirador Savassi в Белу-Оризонти
© Gisele Borges Arquitetura
Многоквартирный жилой дом Casamirador Savassi в Белу-Оризонти © Gisele Borges Arquitetura
Многоквартирный жилой дом Casamirador Savassi в Белу-Оризонти
© Gisele Borges Arquitetura
Многоквартирный жилой дом Casamirador Savassi в Белу-Оризонти © Gisele Borges Arquitetura
Многоквартирный жилой дом Casamirador Savassi в Белу-Оризонти
© Gisele Borges Arquitetura
Многоквартирный жилой дом Casamirador Savassi в Белу-Оризонти © Gisele Borges Arquitetura
Многоквартирный жилой дом Casamirador Savassi в Белу-Оризонти
© Gisele Borges Arquitetura
Многоквартирный жилой дом Casamirador Savassi в Белу-Оризонти © Gisele Borges Arquitetura
Многоквартирный жилой дом Casamirador Savassi в Белу-Оризонти
© Gisele Borges Arquitetura
Многоквартирный жилой дом Casamirador Savassi в Белу-Оризонти © Gisele Borges Arquitetura
Многоквартирный жилой дом Casamirador Savassi в Белу-Оризонти
© Gisele Borges Arquitetura
Многоквартирный жилой дом Casamirador Savassi в Белу-Оризонти © Gisele Borges Arquitetura
Многоквартирный жилой дом Casamirador Savassi в Белу-Оризонти
© Gisele Borges Arquitetura
Многоквартирный жилой дом Casamirador Savassi в Белу-Оризонти © Gisele Borges Arquitetura
Многоквартирный жилой дом Casamirador Savassi в Белу-Оризонти
© Gisele Borges Arquitetura
Многоквартирный жилой дом Casamirador Savassi в Белу-Оризонти
Многоквартирный жилой дом Casamirador Savassi в Белу-Оризонти
© Gisele Borges Arquitetura
Многоквартирный жилой дом Casamirador Savassi в Белу-Оризонти
Многоквартирный жилой дом Casamirador Savassi в Белу-Оризонти
© Gisele Borges Arquitetura