|
Институт Генплана работает над проектом-исследованием территории площадью больше тысячи га в районе Вороново. Результат сравним с идеальным городом, причем идеи «города-сада» и компактной урбанизированной, но малоэтажной застройки с красными линиями, улицами, площадями пешеходной доступностью функций он совмещает в равных пропорциях.
Территория, рассмотренная в проекте-исследовании, разработанном Институтом Генплана по заказу Москомархитектуры, входит в состав Новой Москвы, но расположена достаточно далеко, за ЦКАДом. Она представляет собой не столько традиционное цельное «пятно», сколько конгломерат участков, сгруппированных по обе стороны Калужского шоссе приблизительно в геометрическом центре ТАО, Троицкого административного округа, юго-западной части Новой Москвы.
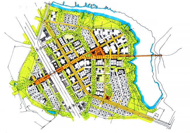
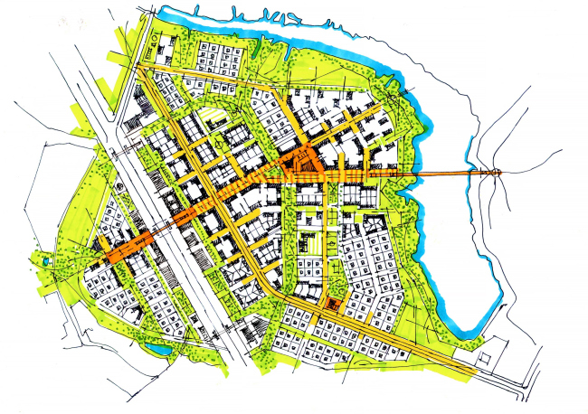
Вороново-Сити. Расположение рассматриваемой территории в структуре города и округа. Анализ градостроительного потенциала земельных участков, расположенных в границах территории по адресу: город Москва, Троицкий административный округ, поселение Вороновское© Институт Генплана Москвы
 Андрей Логинов,
начальник архитектурно-планировочной мастерской №1 Ранее эта территория была в частной собственности, девелопер планировал осуществить здесь достаточно плотную жилую застройку, с объемами квадратных метров, превышающими генеральный план ТиНАО в несколько раз. Впоследствии права на эти участки перешли городу, поэтому у Института Генплана появилась возможность подумать над вариантами более щадящего и комфортного развития территории.
Наша мастерская работает над проектом около четырех лет. За это время были подготовлены различные сценарии как экономического, так и планировочного развития. Еще до начала нашей работы мы стали рассматривать типологию будущей застройки не только как многоквартирную, но и застройку в формате ИЖС, таун-хаусов, коттеджных поселков – несколько таких было уже реализовано в ближайшем окружении.
В конечном счете, по рекомендациям Москомархитектуры, мы приняли решение создать в этом месте комплексную городскую среду, отвечающую специфике достаточно удаленного от Москвы местоположения и выигрышного природного окружения. Пришли к идее сочетания разных морфотипов застройки, что дает большее разнообразие впечатлений и, как мы надеемся, содержит в себе потенциал саморазвития.
 Вороново-Сити. Анализ градостроительного потенциала земельных участков, расположенных в границах территории по адресу: город Москва, Троицкий административный округ, поселение Вороновское© Институт Генплана Москвы
 Антон Перфильев, Институт Генплана Москвы В течение последнего года к исследованием подключилось наше подразделение. В ответ на задачу, поставленную Москомархитектурой – разработать особый вид среды, подходящий для данного места и отвечающий поискам и тенденциям современного градостроительства, а также полифункциональный, совмещающий жилье и места приложения труда в пропорции
приблизительно 50 к 50, – мы предложили идею самодостаточного города.
С одной стороны, она основана на принципе, который мы определили как «градоподобие»: вдоль активных внутренних улиц с общественным транспортом группируется фронтальная застройка с различными функциями в первых этажах – и, что не менее важно, площади. Они образуют каркас городской активности, который сочетается с «зеленым каркасом».
Конечно, мы вдохновлялись идеями «города-сада» Эбенизера Говарда, но в равной степени и примерами современного градостроительства, европейского и скандинавского. Такое поселение отличается от «американского пригорода», целиком заполненного индивидуальным строительством и мало насыщенного в функциональном отношении. В нашей версии застройки намного больше собственно «городской» составляющей, однако этот город – не высотный, максимально возможным акцентом становятся здания до 7 этажей. Итак, предложенный подход – гибридный, он балансирует на грани, я бы так сказала, идей «нового урбанизма» с красными линиями, городским типом застройки в центре, площадями, кафе и магазинами в первых этажах, – и идеи «города-сада», растворения в природе. Он то и другое: сгущается к центрам, разрежается по краям, два каркаса, урбанистический и природный, накладываются друг на друга, местами даже срастаются. В конечном счете новое поселение должно будет предложить своим жителям совмещение четырех, приблизительно, основных достоинств: рабочих мест; среды городского типа с кафе, бульварами, площадями; природы и, наконец, малой этажности. Идеал, да и только. Неудивительно, что класс жилья здесь, пока гипотетически, предполагается не самый дешевый. Строить планируется (опять же, проект исследовательский, все пока предположительно) в три очереди. ДорогиИх несколько видов. Во-первых, здесь в будущем должно появиться два хай-вея: новое Калужское шоссе, приподнятое над землей, в 350 метрах к востоку от существующей трассы, и хордовая магистраль Рассудово–Чириково к юго-западу от обеих «крыльев» рассматриваемой территории. Как и полагается хай-веям, они существуют отдельно от городского пространства.
Вороново-Сити. Анализ градостроительного потенциала земельных участков, расположенных в границах территории по адресу: город Москва, Троицкий административный округ, поселение Вороновское© Институт Генплана Москвы
Много более важными авторы считают дороги районного значения: те, по которым ходит и личный, и, главное, общественный транспорт. Если сейчас в новых девелоперских проектах такие транспортные проезды, обеспечивая тишину внутри, стремятся вывести наружу, к внешней границе поселения, – то в данном случае их, напротив, помещают внутрь, превращая в городские улицы-бульвары – 4-полосные, но с деревьями. Они становятся основой городского каркаса. На который, в свою очередь, нанизаны площади.
Вороново-Сити. Анализ градостроительного потенциала земельных участков, расположенных в границах территории по адресу: город Москва, Троицкий административный округ, поселение Вороновское© Институт Генплана Москвы
Расположение площадей приблизительно кратно остановкам общественного транспорта, а их размер и насыщение соответствуют расположению – более или менее центральному.
Площади служат шарнирами: это не просто расширения центральной улицы, к ним сходятся под углами другие улицы подобного масштаба, образуя «екатерининские» лучи, открывая панорамы озер, благо их тут несколько, усложняя структуру застройки, уходя от чрезмерно предсказуемой ортогональности.
Вороново-Сити. Анализ градостроительного потенциала земельных участков, расположенных в границах территории по адресу: город Москва, Троицкий административный округ, поселение Вороновское© Институт Генплана Москвы
Соответственно и кварталы приобретают, временами, асимметричные контуры, меняют масштаб – ближе к главной площади крупнее, дальше меньше, еще чуть дальше их сменяют строчки таунхаусов, но – короткие, небольшие. Для «градоподобия» важно не только разнообразие типологий, но и тесное сочетание, смена логически выверенных впечатлений, череда которых подчинена, в основном, wow-эффекту от чередования улиц-площадей и полей-озер.
Схемы принципиальных подходов. Вороново-Сити. Анализ градостроительного потенциала земельных участков, расположенных в границах территории по адресу: город Москва, Троицкий административный округ, поселение Вороновское© Институт Генплана Москвы
Зеленый каркасБыло бы правильнее сказать: зеленый и водный, поскольку одна из выгодных особенностей территории – в том, что она окружена крупными прудами-озерами, и еще в изрезанности контура, который естественным образом чередует застройку с полями, не входящими непосредственно в ее состав. Между тем и внутри рассматриваемых контуров для зелени отведено 49% всей территории.
Вороново-Сити. Баланс территории. Анализ градостроительного потенциала земельных участков, расположенных в границах территории по адресу: город Москва, Троицкий административный округ, поселение Вороновское© Институт Генплана Москвы
Как в уличном каркасе наложены друг на друга ортогональная планировка и более сложная/зрелая лучевая, улицы разного масштаба и узлы-площади, – так и зеленый каркас неоднороден. В городской части в него входят скверы и бульвары, в том числе подковообразные, регулярные, и деревья на центральных улицах. Они «перерастают» в извилистые контуры зеленых пространств вокруг застроенных территорий: по контуру ИЖС, между ИЖС и таунхаусами. Те, в свою очередь, примыкают к зеленым берегам прудов и речек, в нескольких местах переходят, под трассой будущего хай-вея, из одной половины в другую, складываясь в сквозной пешеходный и веломаршрут.
Вороново-Сити. Схема озеленения.Анализ градостроительного потенциала земельных участков, расположенных в границах территории по адресу: город Москва, Троицкий административный округ, поселение Вороновское© Институт Генплана Москвы
Вороново-Сити. Схема озеленения. Анализ градостроительного потенциала земельных участков, расположенных в границах территории по адресу: город Москва, Троицкий административный округ, поселение Вороновское© Институт Генплана Москвы
Проект предполагает дополнительные посадки деревьев, – но, с другой стороны, использует и сложившееся природное окружение. Не вся зелень здесь будет «городским парком», часть планируется сохранить как природную, рассчитывая на естественные ресурсы ее развития. ФункцииРазумеется, если мы говорим о «самодостаточном городе», сочетание рабочих мест и жилья в пропорции 50 на 50 – одна из правильных и главных задач. В данном случае планируется отчасти использовать уже существующие «якоря». Самый сложный – инфекционный госпиталь Вороново, построенный в 2020 году. Сейчас он полноценно функционирует и востребован, его судьба в будущем не известна, проект скорее принимает госпиталь как данность, хотя учитывает его как место приложения труда. Перспективный «якорь» – молокозавод к северо-западу от Калужского шоссе; его планируется развить.
Помимо названных элементов, в проекте запланировано развитие двух локализованных участков промышленно-деловой и торговой застройки: один вытянут параллельно деревне Голохвастово между старой и будущей новой трассами Калужского шоссе. Жилая застройка здесь невозможна, офисная допустима, а торговая даже потенциально выгодна благодаря проезжающим машинам. Более масштабное вкрапление – прямоугольник Технопарка; будучи построен, он должен обеспечить значительные количество рабочих мест.
Вороново-Сити. Распределение «третьей функции». Фрагмент. Анализ градостроительного потенциала земельных участков, расположенных в границах территории по адресу: город Москва, Троицкий административный округ, поселение Вороновское© Институт Генплана Москвы
Между тем рядом с Технопарком выделена территория для санатория – не меньше внимания, чем промышленно-офисной составляющей, авторы уделяют «исконной» курортной функции территории. Предусмотрены гостиницы, турбаза, конноспортивный центр, рыбалка на озерах.
Третья основа многофункциональности – структура главных районных улиц, прежде всего, основной, самой протяженной, поперечной Калужскому шоссе, той, на которую нанизано максимум городских площадей, включая самую масштабную. Здесь, на оси, начиная от шоссе, распределены офисы, культурные, досуговые и соседские центры.
Вороново-Сити. Распределение «третьей функции». Общая схема. Анализ градостроительного потенциала земельных участков, расположенных в границах территории по адресу: город Москва, Троицкий административный округ, поселение Вороновское© Институт Генплана Москвы
Повторюсь, что предложение, на данный момент – эскизно-исследовательское. Его задача понять, насколько возможна заявленная степень комплексности и многофункциональности в отношении выбранной территории, в чем ее достоинства и сложности.
Вороново-Сити. Анализ градостроительного потенциала земельных участков, расположенных в границах территории по адресу: город Москва, Троицкий административный округ, поселение Вороновское© Институт Генплана Москвы
Ответ в целом кажется достаточно ясным: хорошим решением для данного места был бы относительно небольшой – все же общая площадь планируемой застройки порядка 3 млн м2, но и площадь, на которой ее планируется разместить, больше тысячи гектаров – город, распределенный в пространстве согласно целому ряду идеалов современного общества. Можно даже сказать, что несколько идеалов, переложенных на язык градостроительных сеток, согласованных с актуальными нормативами застройки, здесь наложены друг на друга и образуют своего рода симбиоз. Было бы хорошо разделить планируемый город на участки, снабдив суммой рекомендаций и ограничений, к примеру, мастер-планом, и предложить разным застройщикам.
Степень реальности идей можно будет оценить только после их воплощения или хотя бы начала работы над более детальными проектными стадиями. Между тем, даже если предложение, в своей подчеркнутой комплексности и малоэтажности, – может показаться, на фоне современных жилых комплексов, несколько идеалистичным – то всегда имеет смысл помнить, что внедрение идей только таким образом, на конкретных примерах, начинающихся с отдаленного планирования, как правило и происходит.
|