Размещено на портале Архи.ру (www.archi.ru)

17.06.2022

История вопроса

Ангелина Уттер
Объект:
Экспозиция «Россия. Дорогами цивилизаций»
Адрес:
Россия, Москва. Красная площадь, д. 1
Мастерская:
IQ
Авторский коллектив:
Руководитель: Эрик Валеев
Т.С. Машковцева, Ю.П. Жулина, И.С. Шевяко, А.Д. Хрусталева, Д.К. Захарова, А.И. Кузнецова



 

Эрик Валеев и бюро IQ разработали экспозиционный дизайн для выставки «Россия. Дорогами цивилизаций» в Историческом музее.

На выставке собрано более 300 экспонатов из коллекций ГИМ, на посвящена 150-летию музея и представляет собой обзор истории, в буквальном смысле от палеолита – за точку отсчета принято каменное рубило, возраст которого порядка 600 000 лет – до покорения Космоса. Более 300 экспонатов размещены на площади около 800 м2 в четырех залах, причем один из двух больших музейных залов архитекторы разделили на три более камерных пространства с круглящимся планом, получив, таким образом, более дробные итерации для показа длительного исторического процесса. Каждый зал призван создавать "определенное ощущение и настроение <...> через геометрию и формы".

Экспозиция «Россия. Дорогами цивилизаций»
Экспозиция «Россия. Дорогами цивилизаций»
© IQ
Экспозиция «Россия. Дорогами цивилизаций»
Экспозиция «Россия. Дорогами цивилизаций»
© IQ

По словам авторов, они намеренно погрузили пространство выставки в темный тон фона – чтобы акцентировать предметы и подчеркнуть их значение, дополняя «погружение в эпоху» визуальными и звуковыми эффектами. Стены черные, многие экспонаты расставлены на белых светящихся лентах. В первом, первобытном зале настроение создает свето-звуковая инсталляция с тенями мамонтов и шаманов, в зале античности – группа амфор, подсвеченных синим светом, и фрагменты мраморных колонн в сочетании с офортами Пиранези. 
Экспозиция «Россия. Дорогами цивилизаций». Зал Средиземноморский триумф
Экспозиция «Россия. Дорогами цивилизаций». Зал Средиземноморский триумф
Фотография предоставлена пресс-службой Исторического музея
Экспозиция «Россия. Дорогами цивилизаций». Зал Средиземноморский триумф
Экспозиция «Россия. Дорогами цивилизаций». Зал Средиземноморский триумф
Фотография предоставлена пресс-службой Исторического музея
Экспозиция «Россия. Дорогами цивилизаций». Зал под куполом Византии
Экспозиция «Россия. Дорогами цивилизаций». Зал под куполом Византии
Фотография предоставлена пресс-службой Исторического музея
Экспозиция «Россия. Дорогами цивилизаций». Зал под куполом Византии
Экспозиция «Россия. Дорогами цивилизаций». Зал под куполом Византии
Фотография предоставлена пресс-службой Исторического музея

Один из главных акцентов экспозиции – зал Византии, где белыми светящимися линиями нарисован каркас купола, а на стене – проекция мозаичной Евхаристии из Софии Киевской. 
Экспозиция «Россия. Дорогами цивилизаций». Зал Под куполом Византии
Экспозиция «Россия. Дорогами цивилизаций». Зал Под куполом Византии
© IQ
Экспозиция «Россия. Дорогами цивилизаций». Зал  Война. Расколотый мир
Экспозиция «Россия. Дорогами цивилизаций». Зал Война. Расколотый мир
Фотография предоставлена пресс-службой Исторического музея
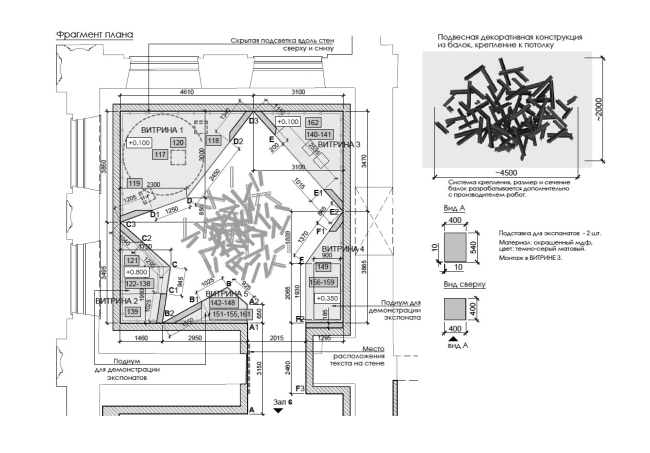
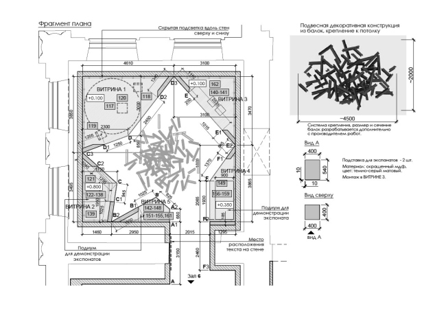
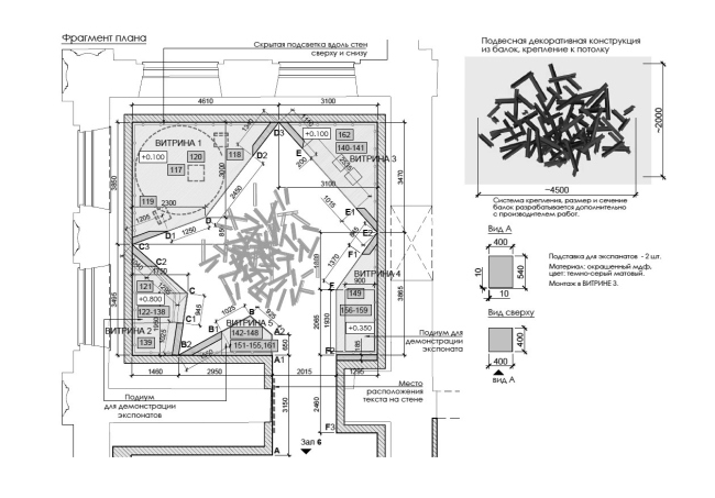
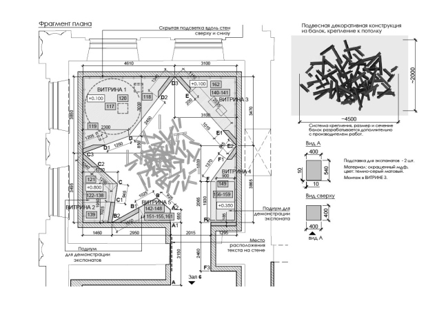
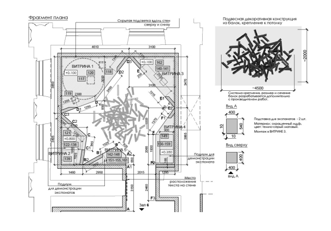
Экспозиция «Россия. Дорогами цивилизаций». Фрагмент плана. Зал Война. Расколотый мир
Экспозиция «Россия. Дорогами цивилизаций». Фрагмент плана. Зал Война. Расколотый мир
© IQ

Отдельным сюжетом становится зал Войны – с ломаными контурами плана и пучком красноватых двутавров, над Тегеранским столом (тем самым), призванных обозначать агрессию и разлом. Затем путь, посвященный преобразованиям и прогрессу Нового времени, становится линейным. Он посвящен всему Новому времени в целом и заканчивается временем Новейшим – космонавтом и ракетой. 
Экспозиция «Россия. Дорогами цивилизаций». Покорение космоса
Экспозиция «Россия. Дорогами цивилизаций». Покорение космоса
Фотография предоставлена пресс-службой Исторического музея
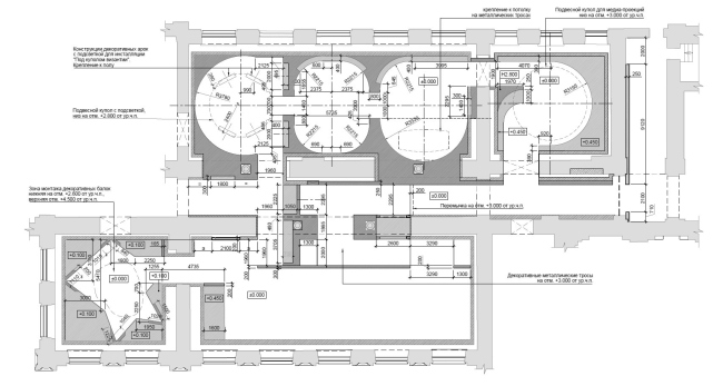
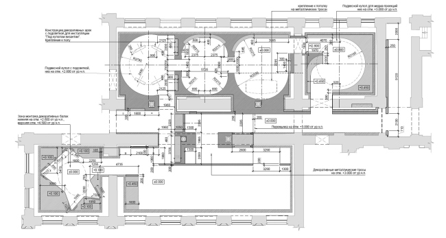
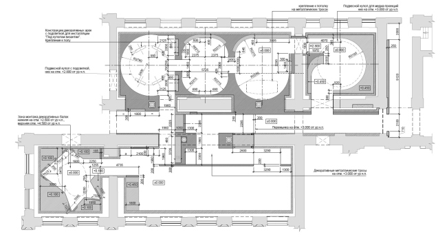
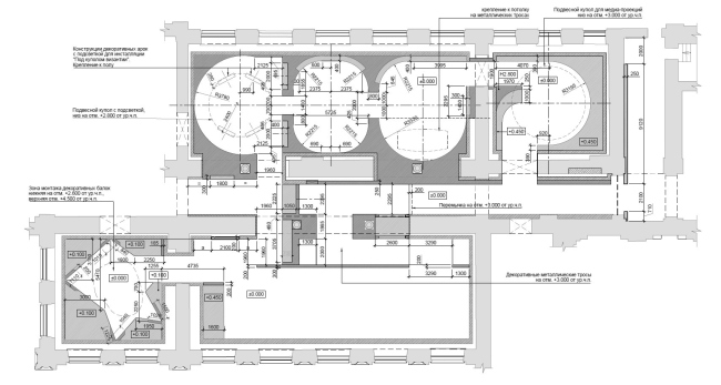
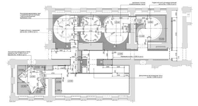
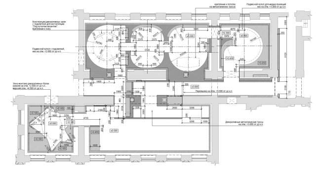
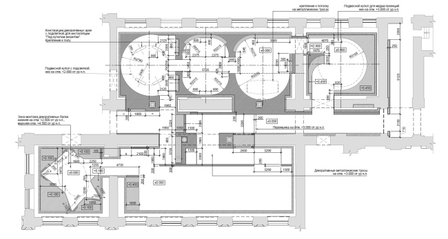
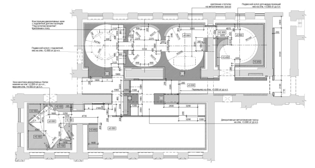
Экспозиция «Россия. Дорогами цивилизаций». Схема экспозиции
Экспозиция «Россия. Дорогами цивилизаций». Схема экспозиции
© IQ

Больше картинок здесь
Выставка продлится до 15 августа 2022 года.