Размещено на портале Архи.ру (www.archi.ru)

30.05.2022

Терракотовая траттория

Алёна Кузнецова
Объект:
Итальянский ресторан Numero Zero
Адрес:
Россия, Санкт-Петербург. Большой проспект Васильевского острова, 16
Мастерская:
Delo Design
Авторский коллектив:
Архитектор и дизайнер: Арсений Бродач
Дизайнер: Анастасия Кемлер
Технический директор​: Иван Новиков

Ресторан Numero Zero от Delo Design: атмосфера итальянского дворика внутри шумного Васильеостровского рынка

Итальянский ресторан Numero Zero открылся на втором ярусе Василеостровского рынка – фуд-маркета, расположившегося в стенах здания, построенного в 1960-х годах. Поскольку под крышей рынка и в его дворе собралось три десятка гастрономических проектов, а также благодаря его центральному расположению, в «базарный» день – то есть любой летний или выходной – здесь приходится работать локтями и стоять в очереди ради тарелки фо-бо или булочек Футуры. На этом фоне концепция Numero Zero выгодно отличается – это не корнер, а полноценное ресторанное пространство с отдельным входом, террасой и даже детской комнатой.   

Итальянский ресторан Numero Zero
Итальянский ресторан Numero Zero
Фотография © Арсений Бродач / предоставлена Delo Design

Интерьерами Numero Zero занималось петербургское бюро Delo Design – оно известно собственной линией мебели и модульных домов, а также оформлением общественных пространств – именно эта команда делала, например, культовый петербургский бар Do immigration и творческий кластер Октава в Туле. Numero Zero также наполнился авторской мебелью – стулья и столы от бренда Delo дополнены столярными изделиями, изготовленными по чертежам архитекторов в мастерской Vibe. 
Итальянский ресторан Numero Zero Фотография © Арсений Бродач / предоставлена Delo Design
Итальянский ресторан Numero Zero
Фотография © Арсений Бродач / предоставлена Delo Design
Итальянский ресторан Numero Zero Фотография © Арсений Бродач / предоставлена Delo Design
Итальянский ресторан Numero Zero
Фотография © Арсений Бродач / предоставлена Delo Design
Итальянский ресторан Numero Zero Фотография © Арсений Бродач / предоставлена Delo Design
Итальянский ресторан Numero Zero
Фотография © Арсений Бродач / предоставлена Delo Design
Итальянский ресторан Numero Zero Фотография © Арсений Бродач / предоставлена Delo Design
Итальянский ресторан Numero Zero
Фотография © Арсений Бродач / предоставлена Delo Design
Итальянский ресторан Numero Zero Фотография © Арсений Бродач / предоставлена Delo Design
Итальянский ресторан Numero Zero
Фотография © Арсений Бродач / предоставлена Delo Design

Монохромная гамма делает Numero Zero не по-итальянски минималистичным, но детали и фактуры «добирают» нужную атмосферу. Трубы коммуникаций выкрашены в тот же сложный цвет пыльной розы, что и стены, что уводит их в фон. Перегородки из терракотовых блоков отделяют ресторан от суеты рынка и зонируют его собственное пространство на уютные «двойки» и компанейские столы. Гамму дополняет обивка стульев пудового оттенка и теплота дубовых столешниц. На этом фоне яркими акцентами становится зелень растений в керамических горшках, какие украшают террасы итальянских двориков, а также белые шары-светильники, напоминающие уличные фонари. В центре зала размещается дровяная печь, привезенная из Италии. 
Итальянский ресторан Numero Zero
Итальянский ресторан Numero Zero
Фотография © Арсений Бродач / предоставлена Delo Design
Итальянский ресторан Numero Zero
Итальянский ресторан Numero Zero
Фотография © Арсений Бродач / предоставлена Delo Design
Итальянский ресторан Numero Zero
Итальянский ресторан Numero Zero
Фотография © Арсений Бродач / предоставлена Delo Design

Попасть в Numero Zero можно как через продуктовую часть рынка, так и минуя рыночную толкотню, через уличную террасу. Еще одна особенность ресторана – просторная детская комната с выдающейся кухней, деревянными игрушками и окном, ставшая один из главных «якорей», притягивающих посетителей. 
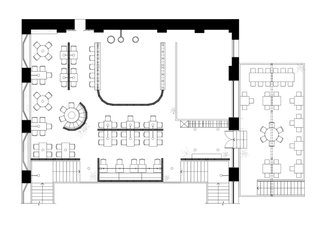
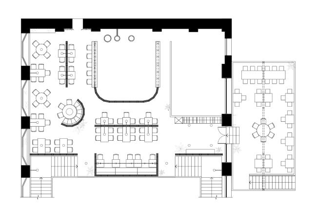
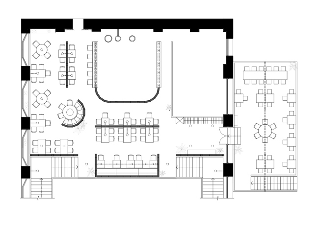
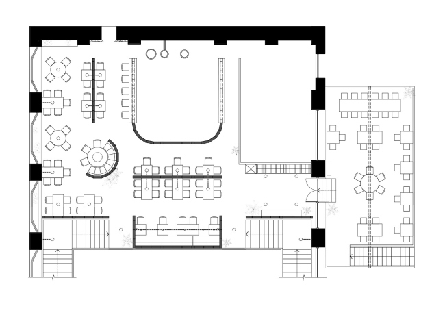
Итальянский ресторан Numero Zero
Итальянский ресторан Numero Zero
© Delo Design
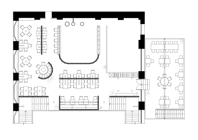
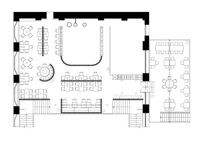
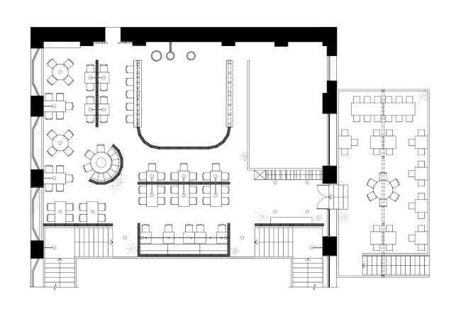
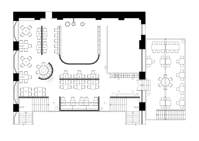
Итальянский ресторан Numero Zero
Итальянский ресторан Numero Zero
© Delo Design