Размещено на портале Архи.ру (www.archi.ru)

16.05.2022

Бетон, дерево и кофе

Дарья Горелова
Объект:
Спешелти-кофейня YCP
Адрес:
Россия, Москва. Мясницкая ул., 13, стр. 21
Мастерская:
BUREAU COLLAB
Авторский коллектив:
Архитекторы: Ставцев Кирилл, Джафаров Егор, Пестов Сергей

Замысел нового кофе-плейса, спрятанного в глубине дворов на Мясницкой, родился в городе Орле и отчасти реализован орловскими мастерами по дереву. Кофейня YCP совмещает минимализм подхода с натуральными материалами: дубовой мебелью и бетонными потолками.

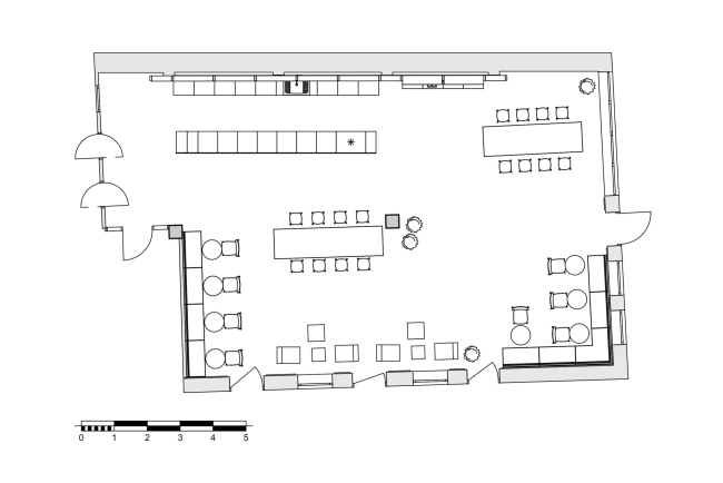
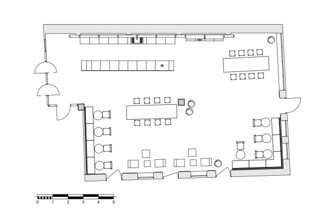
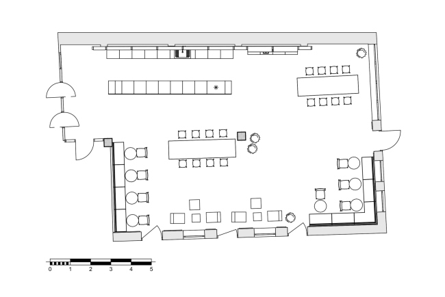
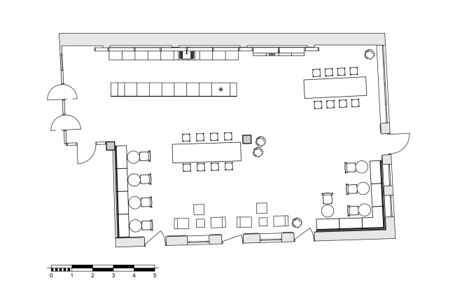
Новая кофейня YCP – ее название расшифровывается как Your Coffee Place, «твое кофейное место», – расположена во дворах между Мясницкой улицей и Милютинским переулком, в глубоком тупике рядом с НИУ ВШЭ и французским лицеем. Это очень выгодное местоположение, клиентов здесь, в центре, у многочисленных кафе хоть отбавляй. 

Спешелти-кофейня YCP
Спешелти-кофейня YCP
Фотография © Антон Лихтарович / предоставлена BUREAU COLLAB

За кирпичным фасадом начала XX века скрывались бетонные перекрытия – их поверхность авторы проекта раскрыли и сделали зрелищной частью интерьера. 

Фирменный стиль YCP, разработанный испанским графическим дизайнером Basora, предполагает нейтральный серо-белый тон, – авторы добавили к этой идее свои минималистические предпочтения и тягу к естественным материалам. Итак, потолки – расчищенный бетон перекрытий плюс вентиляция в обертке серебристой оцинковки, все очень честно. Фасад – очищенный кирпич, тоже совершенно натуральный, отчасти виден и через окна кофейни – и «входит», таким образом, в интерьер. Стены белые. 
Спешелти-кофейня YCP Фотография © Антон Лихтарович / предоставлена BUREAU COLLAB
Спешелти-кофейня YCP
Фотография © Антон Лихтарович / предоставлена BUREAU COLLAB
Спешелти-кофейня YCP Фотография © Антон Лихтарович / предоставлена BUREAU COLLAB
Спешелти-кофейня YCP
Фотография © Антон Лихтарович / предоставлена BUREAU COLLAB
Спешелти-кофейня YCP
Спешелти-кофейня YCP
Фотография © Антон Лихтарович / предоставлена BUREAU COLLAB

Вся мебель – барная стойка, лавки, столы, островок в центре – выполнена по авторскому проекту архитекторов из дубовой шпонированной фанеры орловскими мастерами. К слову, идея кофейни родилась у ее владельца в городе Орле. 

Дерево теплого и насыщенного, золотистого оттенка неожиданным образом перекликается с цветом кирпича фасадов и создает внутри очень уютный контраст между подсвеченными желтоватым светом «островками» стоек и столов – и их лаконичным серо-белым окружением, которое, в свою очередь, находит поддержку в естественном освещении из крупных окон и растениях в кадках. 
Спешелти-кофейня YCP Фотография © Антон Лихтарович / предоставлена BUREAU COLLAB
Спешелти-кофейня YCP
Фотография © Антон Лихтарович / предоставлена BUREAU COLLAB
Спешелти-кофейня YCP Фотография © Антон Лихтарович / предоставлена BUREAU COLLAB
Спешелти-кофейня YCP
Фотография © Антон Лихтарович / предоставлена BUREAU COLLAB
Спешелти-кофейня YCP Фотография © Антон Лихтарович / предоставлена BUREAU COLLAB
Спешелти-кофейня YCP
Фотография © Антон Лихтарович / предоставлена BUREAU COLLAB
Спешелти-кофейня YCP Фотография © Антон Лихтарович / предоставлена BUREAU COLLAB
Спешелти-кофейня YCP
Фотография © Антон Лихтарович / предоставлена BUREAU COLLAB
Спешелти-кофейня YCP Фотография © Антон Лихтарович / предоставлена BUREAU COLLAB
Спешелти-кофейня YCP
Фотография © Антон Лихтарович / предоставлена BUREAU COLLAB
Спешелти-кофейня YCP Фотография © Антон Лихтарович / предоставлена BUREAU COLLAB
Спешелти-кофейня YCP
Фотография © Антон Лихтарович / предоставлена BUREAU COLLAB
Спешелти-кофейня YCP Фотография © Антон Лихтарович / предоставлена BUREAU COLLAB
Спешелти-кофейня YCP
Фотография © Антон Лихтарович / предоставлена BUREAU COLLAB
Спешелти-кофейня YCP Фотография © Антон Лихтарович / предоставлена BUREAU COLLAB
Спешелти-кофейня YCP
Фотография © Антон Лихтарович / предоставлена BUREAU COLLAB
Спешелти-кофейня YCP Фотография © Антон Лихтарович / предоставлена BUREAU COLLAB
Спешелти-кофейня YCP
Фотография © Антон Лихтарович / предоставлена BUREAU COLLAB

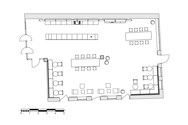
Одной из важных «фишек» своего проекта авторы считают рабочий бар-остров, выдвинутый в пространство кафе, а также разнообразие форматов рассадки, от небольших столов и пристенных скамей до двух больших столов на восьмерых-десятерых – архитекторы считают важным, чтобы все люди  «смешивались» в пространстве кафе на равных. 
Спешелти-кофейня YCP
Спешелти-кофейня YCP
© BUREAU COLLAB
Спешелти-кофейня YCP
Спешелти-кофейня YCP
© BUREAU COLLAB