Размещено на портале Архи.ру (www.archi.ru)

22.12.2021

Как на ладони

Юлия Тарабарина
Объект:
Архитектурная концепция музея современного искусства в Уфе
Адрес:
Россия, Уфа. берег реки Белой
Мастерская:
Меганом

В начале 2021 года в Уфе был проведен закрытый конкурс на проект музея современного искусства. В нем участвовали 3 бюро: «Меганом», «Студия 44» и TOTEMENT/PAPER. Сейчас площадка строительства изменилась, и проектирование, по-видимому, продолжится. Однако заказчик дал нам разрешение на публикацию трех конкурсных проектов. Начинаем публикации с проекта Юрия Григоряна, который еще весной считался победившим.

Музей современного искусства в Уфе планируется строить по инициативе и при финансовой поддержке местного предпринимателя и мецената Марата Ахметшина, совладельца телеком-оператора «Уфанет», (см. интервью с ним). Некоторое время у проектируемого музея не было названия, теперь он называется ZAMAN.

Поначалу, как сообщает Марат Ахметшин в собственном рассказе об истории проектирования, планировалось провести международный конкурс с сотнями участников и жюри под председательством Араты Исодзаки, что подтверждается и сообщениями уфимских СМИ. Затем планы скорректировала пандемия и заказчики организовали то, что в нашей стране называют закрытым конкурсом. В нем участвовали три очень известных российских бюро: «Меганом» Юрия Григоряна, «Студия 44» Никиты Явейна и ТОТЕМЕНТ / PAPER Левона Айрапетова и Валерии Преображенской. Все с музейными и выставочными проектами и реализациями в портфолио. Проектировали в начале 2021 года, до марта включительно. 

Между тем уже летом 2021 года место размещения музея решили изменить, прежний участок решено отдать под нужды правительства республики Башкортостан; сейчас идет поиск другого участка.

Следовательно, кто бы ни работал дальше над зданием, проект будет другим. Что не мешает нам показать конкурсные проекты: все они представляют собой эффектные современные музейные здания, также как и примеры работы со сложным участком, крутым склоном над рекой Белой – и с решения ответственной задачи, поскольку музей современного искусства это тема, которая находится на пике проблематики экспозиционных пространств. Здание музея – само по себе уже серьезный вызов для любого архитектора, но музей совриска должен быть к тому же остр и актуален по форме. 

Участок
Итак, несколько слов об участке, с которым работали участники закрытого конкурса. Он располагается на краю административного центра Уфы, на бровке склона реки Белой, к юго-востоку от здания Дома правительства 1970-х годов постройки и к юго-западу от небольшого деревянного дома-музея художника Александра Тюлькина, примера того типа мещанской застройки XIX века, которую принято называть «частным сектором».  

Перепад высот на нем – около 20 м; общая высота склона от Дома правительства до реки – около 70 м. Плюс не очень устойчивые приречные грунты. Высотные ограничения – со стороны Дома правительства 5 этажей, чтобы не возвышаться над ним, со стороны музея Тюлькина 12 метров от верхней отметки склона. 

Место расположения участка:

Начинаем с проекта Юрия Григоряна – некоторое время он считался принятым к реализации и, таким образом, победившим.
Конкурсный проект музея современного искусства в Уфе АБ МЕГАНОМ
Согласно проекту АБ Меганом существующий сквер имени Зии Нуриева, к которому из центра Уфы ведет Советская улица и который сейчас представляет собой обкомовский вариант озеленения в виде дисциплинированных рядов голубых елей, предполагалось благоустроить в современном ключе, с ассиметричными островками, подготавливая, таким образом, путь к музею. 
Архитектурная концепция музея современного искусства в Уфе © Меганом
Архитектурная концепция музея современного искусства в Уфе
© Меганом
Архитектурная концепция музея современного искусства в Уфе © Меганом
Архитектурная концепция музея современного искусства в Уфе
© Меганом

Вниз к набережной по склону ведет открытая лестница – совершенно прямая, она подхватывает направление ортогональной сетки городских кварталов, но не продолжает ни улицу Советскую, ни Ленина. Лестница проходит справа от музейного здания, вдоль его западной стены. 

Собственно здание музея – простой и широкий параллелепипед уплощенных пропорций, этакий «сендвич» из тонких перекрытий пола и потолка и стеклянных стен по периметру. Оно «воткнуто» в начало склона примерно как книга в стопку себе подобных. Контуры объема вторят все той же ортогональной сетке города, никуда не поворачивают, отчасти он вкапывается в склон и лежит на нем, отчасти нависает консолями. 
Архитектурная концепция музея современного искусства в Уфе
Архитектурная концепция музея современного искусства в Уфе
© Меганом
Архитектурная концепция музея современного искусства в Уфе
Архитектурная концепция музея современного искусства в Уфе
© Меганом
Архитектурная концепция музея современного искусства в Уфе
Архитектурная концепция музея современного искусства в Уфе
© Меганом

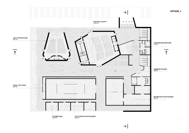
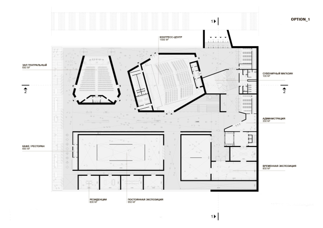
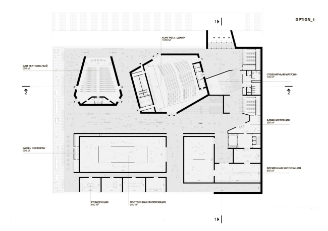
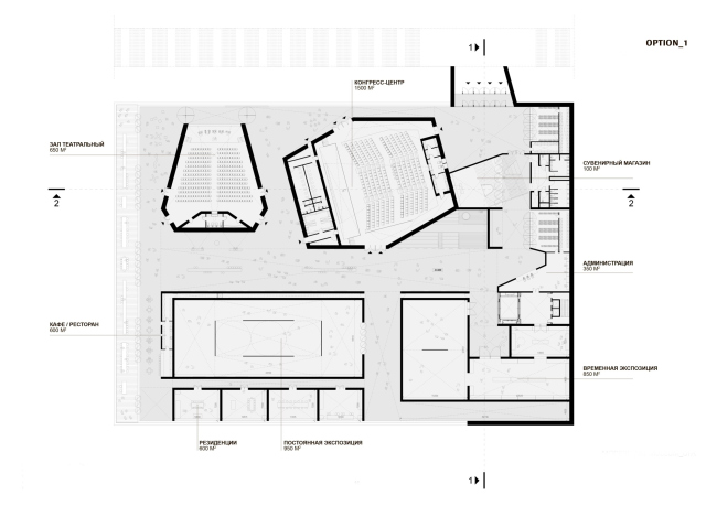
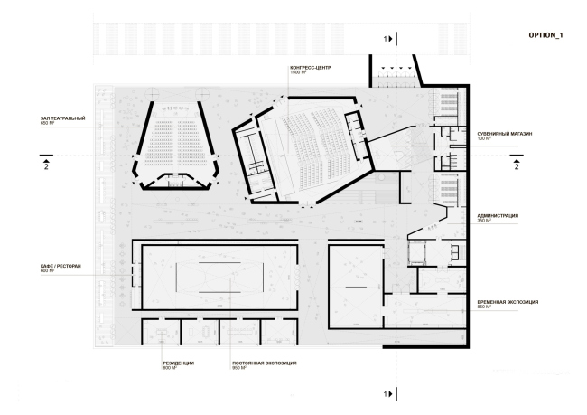
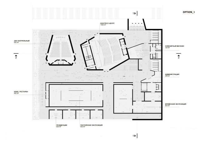
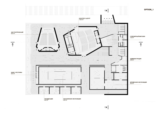
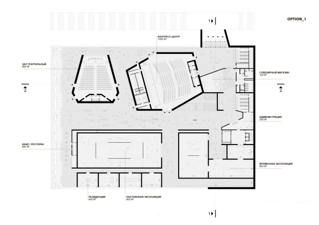
В основном параллелепипеде размещены все основные помещения музея, доступные для посетителей: постоянная экспозиция, выставки, резиденции художников, кафе, администрация, конференц-зал, побольше, и зал театральный, поменьше. Резиденции частично примыкают к восточному фасаду и художники получают, таким образом, в свое распоряжение большие окна, но в то же время оказываются «экспонированы»; администрация и сувенирный магазин примыкают ко входу-выходу и к основанию склона.

В остальном внутренние объемы свободно распределены в пространстве, и всё в промежутках между ними становится общественным холлом или фойе.
Архитектурная концепция музея современного искусства в Уфе. План 1 этажа
Архитектурная концепция музея современного искусства в Уфе. План 1 этажа
© Меганом

Это актуальный прием проектирования современных музеев и общественных зданий – фойе осмысляется как крытая площадь или, говоря точнее, внутренний «город» между объемами «домов». Оно берет на себя роль промежуточного пространства для общения и отдыха, что подчеркнуто, в числе прочего, устройством открытого амфитеатра у наружной стены шестигранного объема конгресс-холла. Забегая вперед – амфитеатр становится также частью входа в основное пространство музея.
Амфитеатр внутри фойе. Архитектурная концепция музея современного искусства в Уфе © Меганом
Амфитеатр внутри фойе. Архитектурная концепция музея современного искусства в Уфе
© Меганом
Амфитеатр внутри фойе. Архитектурная концепция музея современного искусства в Уфе © Меганом
Амфитеатр внутри фойе. Архитектурная концепция музея современного искусства в Уфе
© Меганом

Интерьеры внутренних объемов-залов защищены от естественного света: в их кровле предусмотрены зенитные окна, но они, судя по всему, могут быть закрыты. «Крытая площадь» музейного фойе, напротив, освещается, отчасти через зенитные окна и прорези, но в основном – через стеклянные стены по контуру всего здания. Что также дает и обратный эффект: объемы залов видны за стеклом как экспонаты внутри витрины – и белая выгородка постоянной экспозиции, и черные стены конференц-зала и желтые стены театра. Также видны и люди, бродящие внутри музея-«витрины». 
Архитектурная концепция музея современного искусства в Уфе
Архитектурная концепция музея современного искусства в Уфе
© Меганом
Архитектурная концепция музея современного искусства в Уфе
Архитектурная концепция музея современного искусства в Уфе
© Меганом

Со стороны города параллелепипед музея раскрывается: северный край его кровли плавно приподнимается кверху, как будто «отслаивается» – так что здание открывает «рот» входной лоджии-«козырька», создавая интригующую наклонную стену. Ее верхняя отметка – 12.9 м, на 90 см выше высотного ограничения со стороны дома-музея; но на эту высоту выходит не объем, а лишь верхняя кромка пластины.

В профиль получается плавная дуга, которая по касательной стыкуется с началом склона и сопрягается с поверхностью эксплуатируемой кровли музея – чей уровень, что важно, равен «нулевому» уровню ближайших городских мостовых и сквера имени Нуриева.   
Архитектурная концепция музея современного искусства в Уфе
Архитектурная концепция музея современного искусства в Уфе
© Меганом

Верхняя поверхность дуги «козырька» отдана ступеням амфитеатра-«трибуны» для созерцания речной панорамы и площади на кровле.
Архитектурная концепция музея современного искусства в Уфе
Архитектурная концепция музея современного искусства в Уфе
© Меганом
Архитектурная концепция музея современного искусства в Уфе
Архитектурная концепция музея современного искусства в Уфе
© Меганом

Нижняя поверхность изогнутой кровли «вонзается» в землю интригующей дугой – поэтому воспринять ее как раструб лоджии, приглашающей войти внутрь, можно скорее издалека, чем вблизи. Входы устроены в прорезях гигантской пластины. 
Вид со стороны Дома правительства. Архитектурная концепция музея современного искусства в Уфе
Вид со стороны Дома правительства. Архитектурная концепция музея современного искусства в Уфе
© Меганом

В «козырьке» – несколько параболических отверстий. Одно из них, небольшое, но расположенное ближе к центральной оси, позволяет пройти по прямой из города на эксплуатируемую кровлю-площадь, не спускаясь и не поднимаясь, по прямой – что подчеркивает значение кровли как продолжения городского пространства, но только расположенного «за стеной» и «над пропастью». Переход между городом и кровлей-площадью оказывается чем-то сродни порталу телепортации: вроде бы мы движемся в одном и том же уровне, но, минуя некое не очень широкое отверстие, оказываемся в пространстве с другими характеристиками – плоском, открытом, с кругами зенитных окон под ногами и прорезями, чей рисунок складывается в подобие супрематической картины. 
Макет. Архитектурная концепция музея современного искусства в Уфе
Макет. Архитектурная концепция музея современного искусства в Уфе
© Меганом
Архитектурная концепция музея современного искусства в Уфе
Архитектурная концепция музея современного искусства в Уфе
© Меганом
Пространство площади на эксплуатируемой кровле. Архитектурная концепция музея современного искусства в Уфе
Пространство площади на эксплуатируемой кровле. Архитектурная концепция музея современного искусства в Уфе
© Меганом

Главный вход в музей расположен правее – это крупный стеклянный объем с, опять же, параболическим контуром. Он выступает светящимся носом в западной части, ближе к Дому правительства, и ведет в очень хорошо освещенную, через витражи вверху и по бокам, двухмаршевую лестницу-атриум. На визуализациях архитекторы не акцентируют переплеты и входные двери – но на планах они видны: двери расположены на острие стеклянного «носа», а стекло встроено в ребра, расходящиеся веерно. В целом же вход выглядит как драгоценный камень, прозрачный и светящийся изнутри. 
Архитектурная концепция музея современного искусства в Уфе
Архитектурная концепция музея современного искусства в Уфе
© Меганом
Архитектурная концепция музея современного искусства в Уфе
Архитектурная концепция музея современного искусства в Уфе
© Меганом

Входную лестницу-атриум можно было бы образно уподобить главной лестнице в здании ГМИИ Романа Клейна, только ведет она не вверх, а вниз. И не по прямой, а под углом, поскольку в уровне 3.6 м приводит площадке перед стеной конгресс-холла: здесь следует повернуть налево и спуститься еще ниже, на уровень основного музейного пространства, -8.4 м от нулевой отметки городских площадей. Вход получается совсем не прямым, но пространство лестниц-амфитеатров с поворотом могло бы быть интригующим. Вход в конгресс-холл – отдельный, сбоку в западной стене, с внешней лестницы. 
План на нулевой отметке; показаны, в том числе, входы. Архитектурная концепция музея современного искусства в Уфе © Меганом
План на нулевой отметке; показаны, в том числе, входы. Архитектурная концепция музея современного искусства в Уфе
© Меганом
Архитектурная концепция музея современного искусства в Уфе. Разрез 1-1 © Меганом
Архитектурная концепция музея современного искусства в Уфе. Разрез 1-1
© Меганом
Архитектурная концепция музея современного искусства в Уфе. Разрез 2-2 © Меганом
Архитектурная концепция музея современного искусства в Уфе. Разрез 2-2
© Меганом
Архитектурная концепция музея современного искусства в Уфе. План 1 этажа © Меганом
Архитектурная концепция музея современного искусства в Уфе. План 1 этажа
© Меганом
Архитектурная концепция музея современного искусства в Уфе © Меганом
Архитектурная концепция музея современного искусства в Уфе
© Меганом
Архитектурная концепция музея современного искусства в Уфе. План 1 этажа © Меганом
Архитектурная концепция музея современного искусства в Уфе. План 1 этажа
© Меганом
Архитектурная концепция музея современного искусства в Уфе. Разрез 1-1 © Меганом
Архитектурная концепция музея современного искусства в Уфе. Разрез 1-1
© Меганом

Слева под козырьком вместо ровной «нулевой» поверхности, появляются ступени еще одного амфитеатра, отчасти прикрытого изогнутой поверхностью «козырька» и освещенного через другие прорези, которые здесь играют роль уже не входов, а световых колодцев. Одна из прорезей круглая, другая – тонкая параллельная краю линия; они вторят «супрематическому» рисунку кровли-площади. Всё вместе – авторы, как кажется, намеренно подчеркивают это своей проектной графикой – должно сливаться в некую асимметричную светоносную «триумфальную арку», созвучную, опять же, идее перехода-телепорта, не лишенного фантастичности. 
Архитектурная концепция музея современного искусства в Уфе
Архитектурная концепция музея современного искусства в Уфе
© Меганом
Архитектурная концепция музея современного искусства в Уфе
Архитектурная концепция музея современного искусства в Уфе
© Меганом
Архитектурная концепция музея современного искусства в Уфе
Архитектурная концепция музея современного искусства в Уфе
© Меганом

Смелость консоли надо признать не чрезмерной: по центральной оси она нависает над склоном метров на 20 в длину, на углах, конечно, больше. В остальном здание «лежит» на склоне, опираясь также на субструкции нижнего, минус-второго, этажа, отданного фондохранилищу и техпомещениям. Что не мешает ему, особенно при взгляде снизу, с юго-западного угла, легко парить над верхушками деревьев. 
Архитектурная концепция музея современного искусства в Уфе © Меганом
Архитектурная концепция музея современного искусства в Уфе
© Меганом
Архитектурная концепция музея современного искусства в Уфе © Меганом
Архитектурная концепция музея современного искусства в Уфе
© Меганом

«Выбирали лучшую концепцию вместе с участниками будущего строительства: директором проектной компании Александром Старшининым, супервайзером Максимом Маргиевым и Александром Ильиным. Но максимальная доля влияния была, конечно же, моя», – рассказывает Марат Ахметшин.

Среди достоинств проекта заказчик отмечает трибуны на крыше, просторную смотровую площадку и минималистичность. Действительно, проект Меганома лаконичен и решен на одном приеме – здание как на вытянутой ладони держит над склоном городскую площадь. И в то же время решение входной части, которая уподоблена изнанке некоей материи, приподнятой ветром над рекой – материи, наделенной ролью то ли стены, то ли козырька, то ли группы переходов иные миры, один из которых музей, другой площадь, третий, надо думать, просто свет – завораживает неожиданно тонкой сценографией.