Размещено на портале Архи.ру (www.archi.ru)

17.01.2022

Возможность полета

Татьяна Шовская
Объект:
Аэропорт в Тобольске
Адрес:
Россия, Тобольск.
Архитектор:
Андрей Асадов
Александр Асадов
Мастерская:
АБ ASADOV
Авторский коллектив:
А.Р. Асадов, А.А. Асадов, В. Шкуро, С. Соболев

Проект аэропорта, разработанный АБ ASADOV для Тобольска и победивший в архитектурном конкурсе, не был реализован. Однако он интересен как пример работы со зданием аэропорта очень небольшого масштаба, где целью становится оптимальная организация пространства и инфраструктуры без потери образной составляющей.

В наше время Тобольск – пример провинциального города, небольшого и отдаленного. Среди городов схожего масштаба Тобольск, старая столица Сибири, с которой в конце XVI века русское государство начало ее планомерное освоение, примечателен как историей, так и памятниками архитектуры. Впоследствии, однако, торговые пути сместились южнее, город перестал расти и сейчас его население – чуть меньше ста тысяч человек. Неудивительно, что и аэропорта в Тобольске не было. Его строительство было запланировано в рамках новой программы развития городской инфраструктуры; на проект аэропорта в 2020 году был проведен архитектурный конкурс, в нем выиграло АБ ASADOV. Увы, здание тобольского терминала, открывшееся недавно, в сентябре, построено по другому, несколько более простому, проекту. Мы, однако, расскажем о проекте, который выиграл в конкурсе, но не был реализован. 

Тобольский аэропорт, проект, 2020
Тобольский аэропорт, проект, 2020
© АБ ASADOV

В проекте АБ ASADOV небольшое здание общей площадью 3000 м2 объединяло терминал и офисы служб аэропорта. 

А основной идеей, от которой архитекторы отталкивались в работе с образным решением, стала ценность возможности полета самой по себе. Действительно, Тобольск всегда, или по крайней мере, уже давно был связан с центром и с магистральными маршрутами лишь опосредованно. Поэтому авторы взяли за основу самолет как таковой, можно даже сказать – идею самолета по Платону.

Графичный силуэт воздушного лайнера был задуман и прорисован так, чтобы отчетливо восприниматься и с высоты птичьего полета, и с уровня земли. Эта конструкция была призвана обогатить базовый прямоугольный объем терминала: создать перепады высот кровли, выделяя тем самым центральные зоны в интерьере, сформировать световые фонари, а также организовать входные группы – одну со стороны города и две со стороны летного поля.
Тобольский аэропорт, проект, 2020
Тобольский аэропорт, проект, 2020
© АБ ASADOV
Тобольский аэропорт.
Первоначальный вариант, вид со стороны привокзальной площади
Тобольский аэропорт. Первоначальный вариант, вид со стороны привокзальной площади
© АБ ASADOV

Однако заказчик попросил архитекторов переработать проект в сторону упрощения. Тогда появился второй вариант, и в нем авторы нашли новую образность – скатные кровли, подшитые деревянной отделкой, вызывают ассоциации с северной архитектурой, бревенчатой избой или острогом, какой был построен здесь при основании города. Таким образом, второй вариант отсылает к историческому прошлому Тобольска, и этот ассоциативный ряд намного сложнее, чем может показаться при упоминании избы: плавные формы конька и скатов, отчетливо выраженная толщина кровли создают впечатление толстого слоя снега, который смягчает все формы и неизбежно возникает в сознании как один из главных  атрибутов Сибири.
Тобольский аэропорт.
Первоначальный вариант, вид с высоты птичьего полета
Тобольский аэропорт. Первоначальный вариант, вид с высоты птичьего полета
© АБ ASADOV

Одновременно эта плавность позволяет шагнуть к современному осмыслению традиционной скатной крыши – вся серебристая кровля воспринимается как  параболическая поверхность, парящая над невесомым стеклянным основанием. Ее динамичный абрис повествует о движении вверх, о взлете и наборе высоты. Интересно, что технически криволинейная кровля была решена архитекторами оптимальнее, чем рубленые формы условного самолета – повышающий конек кровли занимает положение диагонали, но при этом он симметричный, поэтому в нем предполагаются металлические балки всего нескольких типоразмеров, что могло благоприятно сказаться на стоимости строительства.
Тобольский аэропорт.
Вид со стороны привокзальной площади
Тобольский аэропорт. Вид со стороны привокзальной площади
© АБ ASADOV
Тобольский аэропорт.
Вид с высоты птичьего полета
Тобольский аэропорт. Вид с высоты птичьего полета
© АБ ASADOV

В процессе работы над проектом менялась и внутренняя планировка – после того, как оператором тобольского аэропорта стала компания «Аэропорты регионов», ее переработали в сторону более открытой и за счет объединения зон в интерьере стало просторнее. Такого рода продуманная компоновка особенно важна для сверхмалого аэропорта. Здесь все компактно, все в одном уровне, однако терминал содержит полный комплект привычных зон, включая ритейл, кафе и зал повышенной комфортности.

Решение интерьера снова апеллирует к образам Сибири как северного сурового края – отделка потолка в высокой части светлыми ламелями имитирует облачное небо, между их гранями мерцают точечные источники света, создавая театральный эффект падающего снега; пониженные зоны отделаны теплым деревом и на контрасте воспринимаются особенно уютно.
Тобольский аэропорт.
Вид с высоты птичьего полета
Тобольский аэропорт. Вид с высоты птичьего полета
© АБ ASADOV
Тобольский аэропорт.
Интерьер
Тобольский аэропорт. Интерьер
© АБ ASADOV
Тобольский аэропорт.
Интерьер
Тобольский аэропорт. Интерьер
© АБ ASADOV
Тобольский аэропорт.
Интерьер
Тобольский аэропорт. Интерьер
© АБ ASADOV

Вытянутое крыло криволинейной крыши соединяет терминал с офисным зданием служб аэропорта, что позволяет экономить инфраструктуру; например, сотрудники офиса могут пользоваться кафе в терминале. Однако главный плюс объединения двух зданий в единый комплекс – это формирование площади перед аэровокзалом. Типологически привокзальная площадь существует уже почти 150 лет, и прошла вместе со сменой архитектурных стилей самые разные способы осмысления ее пространства. И если в крупных аэропортах к ее решению сейчас применяют технологичный логистический подход, то в камерном варианте, в отсутствие нескольких уровней и потребности в большой проходимости, она невольно сохраняет черты предыдущих подходов и стилей. В проекте АБ ASADOV площадь объединяла несколько зон: пешеходное пространство, ландшафтную часть с озеленением, подъезд и парковку – все вместе задает не конвейерный, а человеческий масштаб. 
Тобольский аэропорт.
Схема разреза
Тобольский аэропорт. Схема разреза
© АБ ASADOV

Между тем двигаясь по пути оптимизации, компания-заказчик в итоге отказалась от всяческой архитектурной образности и построила аэропорт по максимально упрощенному проекту. И все же появление аэропорта как такового в Тобольске сложно переоценить. На проектных картинках читается имя завоевателя Сибири атамана Ермака, но в конечном счете его решили назвать в честь Семена Ремезова – сибирского картографа, летописца, иконописца и архитектора Тобольского кремля. Этот разносторонний человек вполне заслуживает наименования сибирского Леонардо, и знакомство с его наследием – часть культурной программы для посещающих Тобольск туристов. Благодаря аэропорту их количество планируется увеличить до семи миллионов в год. Но аэропорт не просто улучшает транспортное сообщение, он задает новую инвестиционную привлекательность города, а в итоге дает мощный импульс его развития, который Тобольск ждал уже 300 лет.
Тобольский аэропорт.
Северный и южный фасады © АБ ASADOV
Тобольский аэропорт. Северный и южный фасады
© АБ ASADOV
Тобольский аэропорт.
Восточный и западный фасады
 © АБ ASADOV
Тобольский аэропорт. Восточный и западный фасады
© АБ ASADOV
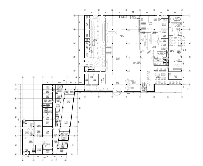
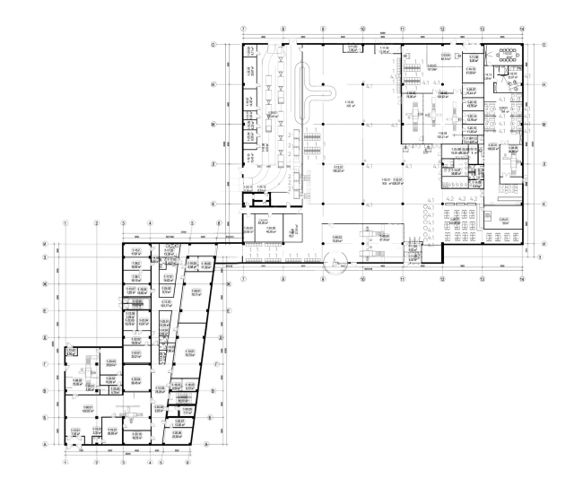
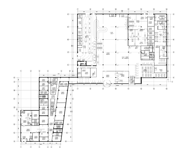
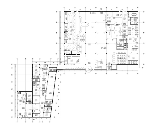
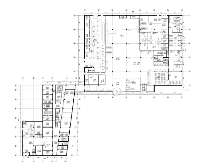
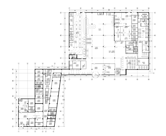
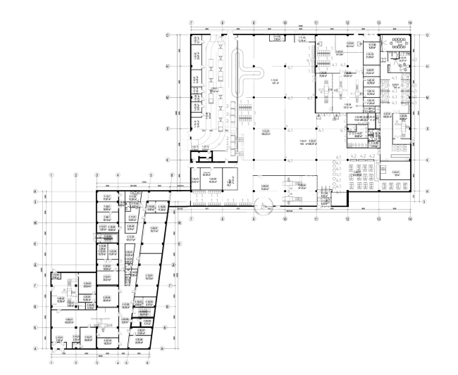
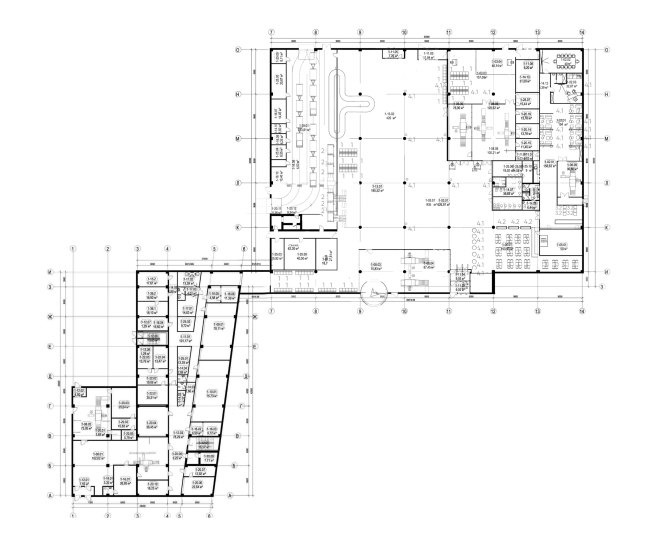
Тобольский аэропорт.
План комплекса терминала и офисного здания служб аэропорта
Тобольский аэропорт. План комплекса терминала и офисного здания служб аэропорта