Размещено на портале Архи.ру (www.archi.ru)

13.01.2022

Длина волны

Юлия Тарабарина
Объект:
ЖК «На Тургенева»
Адрес:
Россия, Пушкино. 1-й Некрасовский пр-д? 13
Архитектор:
Андрей Михайлов
Сергей Никешкин
Мастерская:
KPLN («Крупный план»)
Авторский коллектив:
Сергей Никешкин, Олег Бородатов

ЖК «Тургенева 13» в Пушкино, встраиваясь в масштаб окружающей застройки, отличается от нее ритмичной строгостью парной композиции, легкой волной фасада и колористикой, в которой можно разглядеть два образа: один летний, другой зимний, – оба «прорастают» из особенностей места.

ЖК «Тургенева 13» – не первая новостройка по проекту АБ «Крупный план» в подмосковном Пушкино, но первая завершенная. Две башни с квартирами бизнес-класса, но достаточно умеренной ценой (от 6 млн рублей 2-комнатная квартира) поставлены на набережной пруда на реке Серебрянке. Место их расположения интересно своей двойственностью: это почти центр города, рядом с двумя площадями, на одной памятник Пушкину, на другой мемориал ВОВ, и с местным ПКиО; но в то же время на противоположной стороне Серебрянки – дендропарк и кажется, что город здесь заканчивается, внезапно обрывается: были россыпи жилых башен, и вот – граница. Хотя набережная пруда прочная, бетонная, на противоположной стороне сплошные заросли; зимой на льду пруда сидят рыбаки, а некоторые панорамы оказываются неожиданно дачными и пасторальными. 

ЖК «На Тургенева»
ЖК «На Тургенева»
Фотография: предоставлена АБ «Крупный план»
ЖК «На Тургенева»
ЖК «На Тургенева»
Фотография: предоставлена АБ «Крупный план»

В то же время, особенно если смотреть со стороны Ярославского шоссе, откуда ЖК неплохо виден, он совершенно очевидно попадает в состав многоэтажного подмосковного строительства, которое здесь уже шагнуло дальше, на километр к северу. Но среди домов более обыденных и узнаваемых «Тургенева 13» выделяется компактной собранностью и прорисованностью архитектуры, некоторым даже благородством в окружении подчас слишком стандартных, подчас неказистых, а подчас «крикливых» домов-соседей – той пестрой подмосковной застройки, к которой мы давно привыкли.
ЖК «На Тургенева»
ЖК «На Тургенева»
Фотография: предоставлена АБ «Крупный план»
ЖК «На Тургенева»
ЖК «На Тургенева»
Фотография: предоставлена АБ «Крупный план»

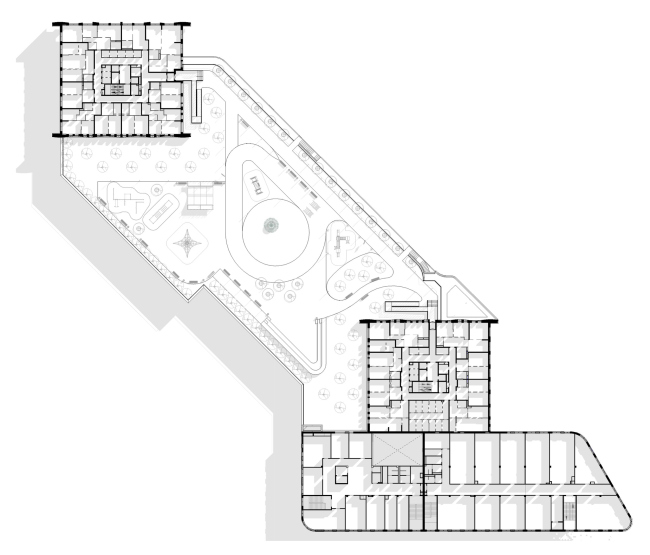
Две квадратные в плане башни соединены протяженным стилобатом: внутри размещены парковки, а на кровле – двор с детской площадкой и двухъярусным деревянным амфитеатром, который обходит площадку острым углом. Сидя на его ступенях, можно и присматривать за детьми, и любоваться прудом.
ЖК «На Тургенева»
ЖК «На Тургенева»
Фотография: предоставлена АБ «Крупный план»
ЖК «На Тургенева»
ЖК «На Тургенева»
Фотография: предоставлена АБ «Крупный план»

Стилобат не широк, около 40 м в ширину, но приподнят достаточно высоко, на примерно 5-6 метров, что обеспечивает приватность. Башни поставлены на торцах – нижний ярус «растянут» между ними – и развернуты под углом 45°, как к линии набережной, так и к оси стилобата, так что и с воды, и из двора мы видим дома в ракурсе можем оценить различие фасадов.
План на уровне 2 этажа. ЖК «На Тургенева»
План на уровне 2 этажа. ЖК «На Тургенева»
© АБ «Крупный план»

На этом различии построена вся пластическая интрига. На север и юг обращены белые фасады, они немного длиннее и, кроме того, продлены выступами, которые сливаются с верхней карнизной перемычкой – так возникают своего рода П-образные «кожухи», которые обертывают собой объемы башен. Берут их в объемную «рамку». Внешняя поверхность белых фасадов – слегка волнистая, и они особенно хороши в косом свете, подчеркивающем скульптурность изгиба. 
ЖК «На Тургенева»
ЖК «На Тургенева»
Фотография: Архи.ру
ЖК «На Тургенева»
ЖК «На Тургенева»
Фотография: Архи.ру

В то же время при взгляде анфас в мягком освещении белые фасады с мелким рисунком окон разной высоты и черными ящиками для кондиционеров приобретают графичную лаконичность чистого по цвету решения, выигрышного в контексте окружающей пестроты, но оживленного разновысотностью окон, которые кажутся подвешенными к верхней линии, как бахрома, и вторят волнистой поверхности фасада. 
ЖК «На Тургенева» Фотография: предоставлена АБ «Крупный план»
ЖК «На Тургенева»
Фотография: предоставлена АБ «Крупный план»
ЖК «На Тургенева» Фотография: предоставлена АБ «Крупный план»
ЖК «На Тургенева»
Фотография: предоставлена АБ «Крупный план»
ЖК «На Тургенева» Фотография: предоставлена АБ «Крупный план»
ЖК «На Тургенева»
Фотография: предоставлена АБ «Крупный план»
ЖК «На Тургенева» Фотография: предоставлена АБ «Крупный план»
ЖК «На Тургенева»
Фотография: предоставлена АБ «Крупный план»

Западный и восточный фасады темные, горизонтальные панели керамогранита с имитацией коричневатого дерева складываются в разнотоновую поверхность, стена отступает в глубину от белой рамки и еще один раз углубляется по центру, образуя широкий вертикальный уступ, обрамленный двумя «ризалитами». С объемной волной белых фасадов здесь перекликается декоративная волна вертикальная светло-бежевых решеток, прикрывающих часть стекол лоджий и немного смягчая прямоту стеклянных вертикалей. 
ЖК «На Тургенева»
ЖК «На Тургенева»
Фотография: предоставлена АБ «Крупный план»

Таким образом две одинаковые башни кажутся элементами, нарезанными из некоей заготовки: светлая волнистая «корка», темная мягкая «середина», – в целом это известный современный прием, но в данном случае он помогает выстроить комплекс строго стереометрически на интриге сопоставления двух видов «пластической материи».
ЖК «На Тургенева»
ЖК «На Тургенева»
Фотография: предоставлена АБ «Крупный план»
ЖК «На Тургенева»
ЖК «На Тургенева»
Фотография: предоставлена АБ «Крупный план»

В южной части со стороны 1-го Некрасовского проезда, который служит здесь основным путем из города, к нижнему ярусу примыкает двухэтажный объем ритейла. Его фасады, как фасады стилобата, решены в темной «деревянной» теме, углы скруглены, окна объединены в вертикальные пары и чередуются с углублениями входов. Какие-то магазины здесь уже поселились и торцевая часть выглядит вполне эффектным и жизнеспособным «зачатком» городской жизни на берегу озера.  
ЖК «На Тургенева»
ЖК «На Тургенева»
Фотография: предоставлена АБ «Крупный план»
ЖК «На Тургенева»
ЖК «На Тургенева»
Фотография: предоставлена АБ «Крупный план»
Фасад со стороны набережной. ЖК «На Тургенева»
Фасад со стороны набережной. ЖК «На Тургенева»
© АБ «Крупный план»

Другая особенность решения стилобата – входы жилых домов. Расположенные в углах-пазухах между стилобатом и основаниями башен, они асимметричны, тенисты и по-своему уютны. Перед ними вырастают небольшие зеленые холмики геопластики, они придают входам неожиданное сходство с пещерами.
ЖК «На Тургенева»
ЖК «На Тургенева»
Фотография: Архи.ру

Козырьки над входами – отдельный сюжет, они струятся, изгибаются, протягивают по воздуху перемычки, поддержанные круглыми черными колоннами. 

Словом, здесь, в той части, с который чаще всего взаимодействуют непосредственные пользователи – жители комплекса, – строгость уступает место некоторой скульптурности, отчасти деконструкции. Во всяком случае предложенное решение нетипично: не портал, не портик, не углубление, а как будто все вместе взятое – этакое движение само по себе. Не от него ли, как от проплывшей по озеру лодки,  «расходится» волна белых поверхностей на башнях? А что, можно ведь понять и так – как своего рода реакцию дома на тему реки.  
ЖК «На Тургенева» Фотография: предоставлена АБ «Крупный план»
ЖК «На Тургенева»
Фотография: предоставлена АБ «Крупный план»
ЖК «На Тургенева» Фотография: предоставлена АБ «Крупный план»
ЖК «На Тургенева»
Фотография: предоставлена АБ «Крупный план»
ЖК «На Тургенева» Фотография: предоставлена АБ «Крупный план»
ЖК «На Тургенева»
Фотография: предоставлена АБ «Крупный план»
ЖК «На Тургенева» Фотография: предоставлена АБ «Крупный план»
ЖК «На Тургенева»
Фотография: предоставлена АБ «Крупный план»

Сейчас, в декабре, хорошо ощущается не только отклик на соседство с прудом на реке Серебрянке, но и его эмоциональная родственность зиме – не той, с новогодних открыток, со снежинками и Дедом Морозом, а реальной, городской, которую мы видим каждый день на улицах. Две основные тональности: волнистая белая «корка» и рыхлая разнотоновая «основа» перекликаются, одна – с поверхностями нетронутых сугробов и снежных полей, а другая с разъезженными среди них дорогами. Вместе получается узнаваемая бело-охристо-коричневая гамма, воспетая живописью XX века; из-за нее дома представляются прямо-таки вырастающими «из земли», плоть от плоти окружающего пейзажа и кажутся прочно укорененными в нем. Это нетривиальный подход к контексту: дома не подстраиваются к окружающей застройке, а скорее тихо противостоят ей, предлагая собственный взгляд на образ места.
Схема архитектурного решения. ЖК «На Тургенева»
Схема архитектурного решения. ЖК «На Тургенева»
Фотография: предоставлена АБ «Крупный план»