Размещено на портале Архи.ру (www.archi.ru)

26.11.2021

Серебряная хижина

Алёна Кузнецова
Объект:
MY SILVER SHELTER – дом на выходные
Адрес:
Россия, Санкт-Петербург.
FLEXSE
Адрес:
Россия,
Мастерская:
SA lab

Интровертный дом от SA lab со ставнями и рассчитанном алгоритмами окном в кровле дает возможность для уединения и созерцательного отдыха.

За последние два года только ленивый не мечтал о домике в лесу или не предложил свой вариант каркасного, быстрого и недорогого убежища. My silver shelter – из той же категории, однако это не типовой дом: он спроектирован под конкретную задачу и имеет выраженные индивидуальные черты, которые, впрочем, многим должны прийтись по душе. Главные его особенности: «марсианский» облик, спланированная специальным скриптом инсоляция и планировка, которая нивелирует недостатки локации.    

MY SILVER SHELTER – дом на выходные
MY SILVER SHELTER – дом на выходные
© SA lab

Дом SA lab расположится на участке, который с двух сторон граничит с проездами, а еще с двух есть соседи. По сути такой вариант – наиболее распространенный и реалистичный: далеко не каждому повезет найти кусочек земли на краю леса, берегу озера или вершине скалы за ту же стоимость, которую имеет участок в центре ДНП. В этом и заключалась задача архитекторов – предложить решение, которое позволит хозяевам почувствовать все прелести загородного отдыха, имея не самый располагающий к этому участок.   
MY SILVER SHELTER – дом на выходные. Генеральный план
MY SILVER SHELTER – дом на выходные. Генеральный план
© SA lab

Прежде всего архитекторы решали вопрос приватности. К одному из проездов дом повернут «спиной» – это западная сторона, где сосредоточились технические помещения с небольшими окошками. Еще один фасад, выходящий к соседям на север, сделан совершенно глухим. Окна в спальне, гостиной и кухне-столовой выходят в сад и полностью закрываются ставнями. Ставни работают на электроприводе и выполняют сразу несколько функций: регулируют степень приватности, играют роль козырька, что особенно актуально для террасы, а также позволяют спокойно оставить дом, если вдруг нет возможности навещать его регулярно. 
MY SILVER SHELTER – дом на выходные
MY SILVER SHELTER – дом на выходные
© SA lab

Отказавшись от панорамного остекления в пользу небольших окон, архитекторы увеличили степень уединения и сократили бюджет, однако пришлось дополнительно решать вопрос инсоляции. В зоне кухни-гостиной в кровле размещено окно, которое обеспечивает пространство естественным светом, даже если ставни закрыты. Наилучшее расположение окна и форму кровли удалось определить с помощью специально написанного скрипта, который обработал данные о местоположении солнца в данной точке в течение года. Окно, по сути, стало отправной точкой с точки зрения архитектуры проекта – оно не только ловит лучи в разное время суток и сезоны, но и задает геометрию пространства.
MY SILVER SHELTER – дом на выходные
MY SILVER SHELTER – дом на выходные
© SA lab
MY SILVER SHELTER – дом на выходные. Расчет ествественного света в гостиной (боковые окна)
MY SILVER SHELTER – дом на выходные. Расчет ествественного света в гостиной (боковые окна)
© SA lab
MY SILVER SHELTER – дом на выходные. РАсчет естественного света в гостиной (окно в кровле)
MY SILVER SHELTER – дом на выходные. РАсчет естественного света в гостиной (окно в кровле)
© SA lab

Стоит отметить, что SA lab используют инструменты алгоритмического проектирования во всех своих проектах. Обычно в программе Rhino+Grasshopper создается скрипт под задачи проекта: это может быть климатический анализ, симуляция потоков движения по территории, подготовка файлов для производства, при котором получается минимальное количество расходуемого материала и отходов. 
MY SILVER SHELTER – дом на выходные
MY SILVER SHELTER – дом на выходные
© SA lab

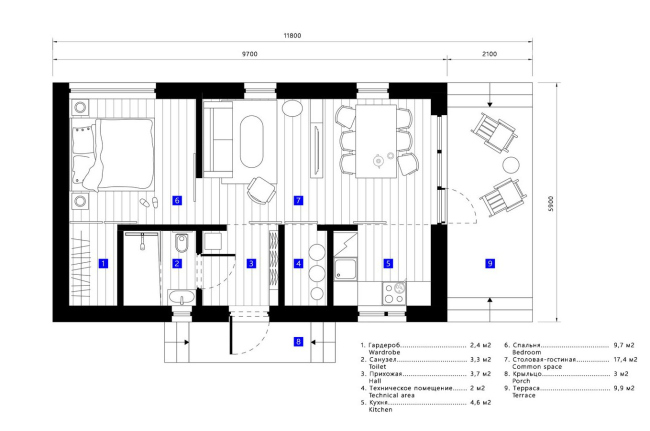
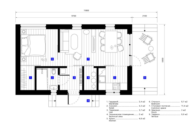
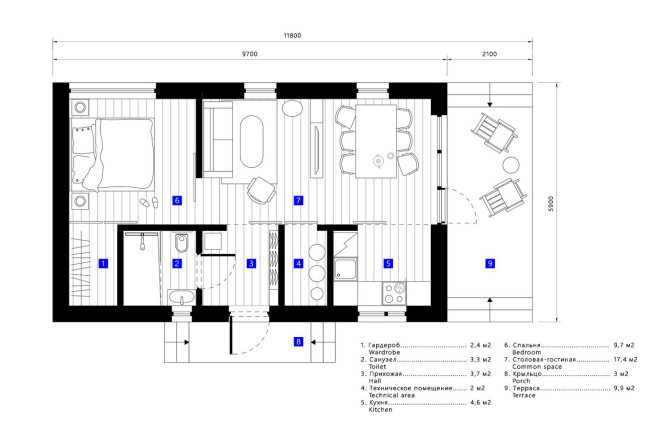
Снаружи My silver shelter облицован профилированным листом, холодная поверхность которого вторит интровертом характеру дома и в то же время отчасти растворяет его в окружении. Внутренняя отделка наоборот теплая и характерно уютная для загородного дома. Гибкая планировка позволяет при необходимости расширять зону гостиной или изолировать кухню. 
MY SILVER SHELTER – дом на выходные. План на отметке 0. 000
MY SILVER SHELTER – дом на выходные. План на отметке 0. 000
© SA lab