Размещено на портале Архи.ру (www.archi.ru)

01.10.2021

Музей у фьорда

Нина Фролова
Объект:
Музей Мунка
Адрес:
Норвегия, None, Осло.
Авторский коллектив:
PROJECT ARCHITECTS: Estudio Herreros (Juan Herreros – Jens Richter)
PROJECT DIRECTOR: Gonzalo Rivas
PROJECT TEAM: Beatriz Salinas, Carlos Canella, Andrea Molina, Paola Simone, Carlos Ramos, Iván Guerrero, Ana Torrecilla, Alberto Sánchez, María Franco, Raúl García, Frank Müller, Víctor Lacima, Carmen Antón, Ramón Bermúdez, Margarita Martínez, Luis Berríos-Negrón, Spencer Leaf, Verónica Meléndez, Xavier Robledo, Ricardo Robustini, Paula Vega

В октябре в Осло откроется новое здание Музея Мунка архитекторов Estudio Herreros.

Новое здание Музея Мунка – проект прошлой или даже, если считать пандемию, позапрошлой эпохи, когда «эффект Бильбао» еще котировался у городских властей всего мира. Поэтому вполне гуманистический проект реконструкции гавани Осло «Город у фьорда» (замена промзон смешанной застройкой, помещение автомагистралей в тоннели, благоустройство набережных) включал и серию «знаковых зданий».
 

Музей Мунка
Музей Мунка
Фото © Adrià Goula. Предоставлено Estudio Herreros

«Пробным шаром» и флагманом проекта стал Оперный театр бюро Snøhetta (2008), затем к нему присоединился частный музей Аструп-Фернли (2012). Сейчас к ним добавились главная городская библиотека и Музей Мунка: большой международный конкурс на их проекты в 2009 в определенном смысле завершил 2000-е годы с их размахом и поиском wow-эффекта – наряду с конкурсом на новое здание Национального музея искусства, архитектуры и дизайна (2010), также переезжающего к воде (его открытие состоится в 2022).
 
Музей Мунка
Музей Мунка
Фото © Adrià Goula. Предоставлено Estudio Herreros

Жюри тогда выбрало пусть заметные, но совсем не радикальные проекты, но критики все равно осуждали план создания ансамбля из объектов культуры на набережных Осло – в первую очередь, в заливе Бьёрвика, ранее полностью утилитарном. По их мнению, вымывание театров, музеев и библиотек из разных районов города совсем не полезно для него, а составление из них блестящей «витрины» оправдано в новом городе без истории, но не в 1000-летнем Осло.
 
Музей Мунка
Музей Мунка
Фото © Adrià Goula. Предоставлено Estudio Herreros

Однако с тех пор прошло больше десяти лет, и теперь открытие сначала библиотеки Дайкман-Бьёрвика, а теперь и Музея Мунка только и напоминают о тех спорах, совсем другом времени, интересах и ценностях.
 
Музей Мунка Фото © Guttorm Stilen Johansen. Предоставлено Estudio Herreros
Музей Мунка
Фото © Guttorm Stilen Johansen. Предоставлено Estudio Herreros
Музей Мунка Фото © Guttorm Stilen Johansen. Предоставлено Estudio Herreros
Музей Мунка
Фото © Guttorm Stilen Johansen. Предоставлено Estudio Herreros
Музей Мунка Фото © Guttorm Stilen Johansen. Предоставлено Munchmuseet
Музей Мунка
Фото © Guttorm Stilen Johansen. Предоставлено Munchmuseet
Музей Мунка Фото © Guttorm Stilen Johansen. Предоставлено Munchmuseet
Музей Мунка
Фото © Guttorm Stilen Johansen. Предоставлено Munchmuseet
Музей Мунка Фото © Guttorm Stilen Johansen. Предоставлено Munchmuseet
Музей Мунка
Фото © Guttorm Stilen Johansen. Предоставлено Munchmuseet
Музей Мунка Фото © Guttorm Stilen Johansen. Предоставлено Munchmuseet
Музей Мунка
Фото © Guttorm Stilen Johansen. Предоставлено Munchmuseet

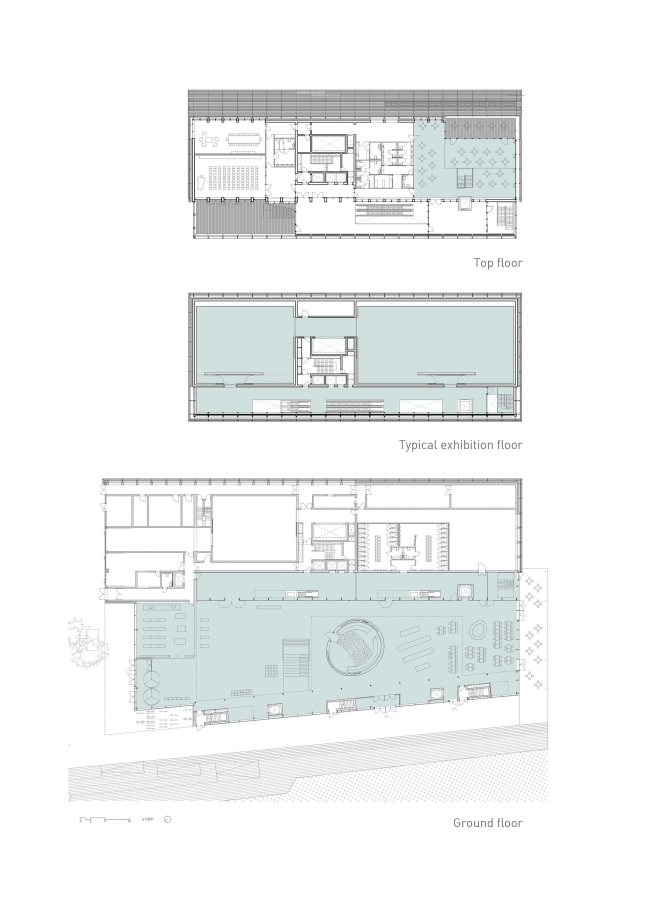
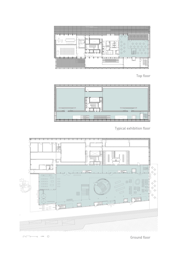
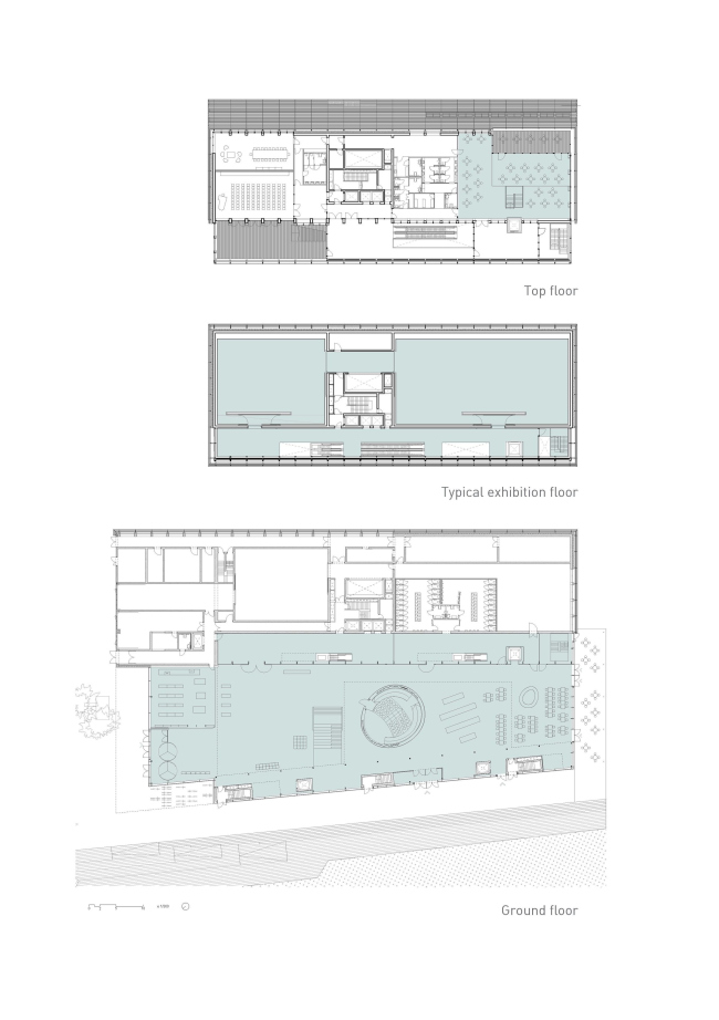
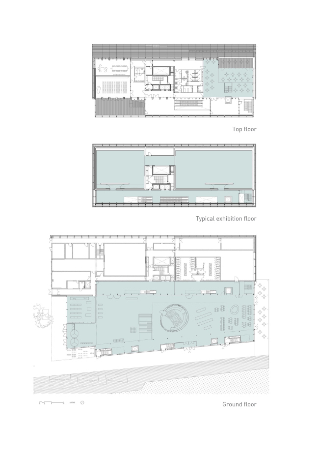
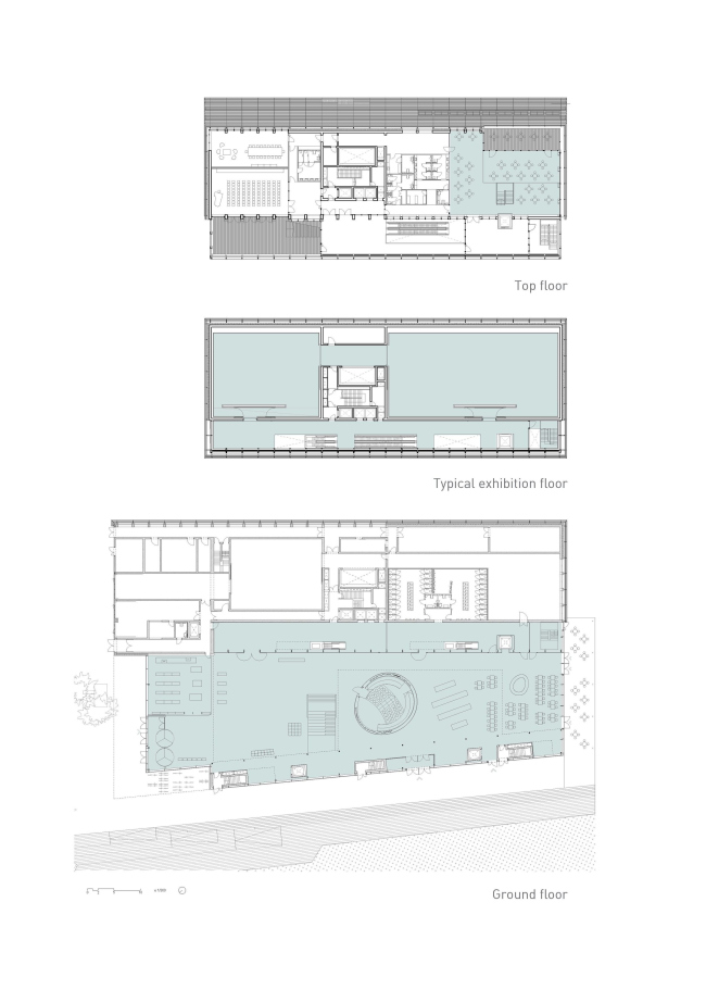
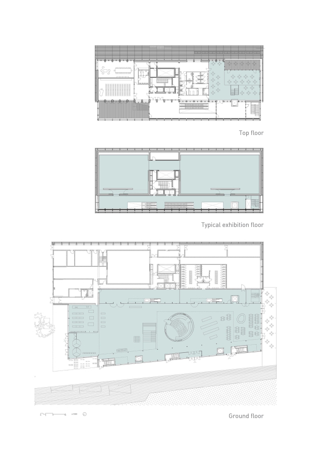
Музей Мунка по проекту испанского архитектора Хуана Эррероса заменит невысокое, наполненное светом послевоенное здание в тихой части Осло. Новое сооружение стоит на воде, на узкой насыпи, поэтому это образец «вертикального» музея – не самого распространенного типа. Посетитель поднимается от вестибюля выставочные залы наверх, к крыше-террасе, по пути обнаруживая научную библиотеку и образовательный центр. По пути перед ним открываются разные виды Осло-фьорда и города.
 
Музей Мунка
Музей Мунка
Фото © Adrià Goula. Предоставлено Estudio Herreros

Остекленные части фасада соседствуют с покрытием из «гофрированных» алюминиевых панелей с перфорацией. Благодаря этой проницаемой серебристой оболочке облик музея меняется вместе с погодой и освещением.
 
Музей Мунка Фото © Adrià Goula. Предоставлено Estudio Herreros
Музей Мунка
Фото © Adrià Goula. Предоставлено Estudio Herreros
Музей Мунка Фото © Adrià Goula. Предоставлено Estudio Herreros
Музей Мунка
Фото © Adrià Goula. Предоставлено Estudio Herreros
Музей Мунка Фото © Adrià Goula. Предоставлено Estudio Herreros
Музей Мунка
Фото © Adrià Goula. Предоставлено Estudio Herreros
Музей Мунка Фото © Ivar Kvaal. Предоставлено Munchmuseet
Музей Мунка
Фото © Ivar Kvaal. Предоставлено Munchmuseet
Музей Мунка Фото © Ivar Kvaal. Предоставлено Munchmuseet
Музей Мунка
Фото © Ivar Kvaal. Предоставлено Munchmuseet
Музей Мунка Фото © Ivar Kvaal. Предоставлено Munchmuseet
Музей Мунка
Фото © Ivar Kvaal. Предоставлено Munchmuseet

Среди «зеленых» компонентов проекта – близость к стандарту PassivHaus и использование переработанных стали и бетона.
Музей Мунка
Музей Мунка
Фото © Adrià Goula. Предоставлено Estudio Herreros
Музей Мунка Фото © Ivar Kvaal. Предоставлено Estudio Herreros
Музей Мунка
Фото © Ivar Kvaal. Предоставлено Estudio Herreros
Музей Мунка Фото © Ivar Kvaal. Предоставлено Munchmuseet
Музей Мунка
Фото © Ivar Kvaal. Предоставлено Munchmuseet
Музей Мунка Фото © Adrià Goula. Предоставлено Estudio Herreros
Музей Мунка
Фото © Adrià Goula. Предоставлено Estudio Herreros
Музей Мунка Фото © Adrià Goula. Предоставлено Munchmuseet
Музей Мунка
Фото © Adrià Goula. Предоставлено Munchmuseet
Музей Мунка
Музей Мунка
Фото © Adrià Goula. Предоставлено Estudio Herreros
Музей Мунка Фото © Ivar Kvaal. Предоставлено Munchmuseet
Музей Мунка
Фото © Ivar Kvaal. Предоставлено Munchmuseet
Музей Мунка Фото © Ivar Kvaal. Предоставлено Estudio Herreros
Музей Мунка
Фото © Ivar Kvaal. Предоставлено Estudio Herreros
Музей Мунка Фото © Ivar Kvaal. Предоставлено Munchmuseet
Музей Мунка
Фото © Ivar Kvaal. Предоставлено Munchmuseet
Музей Мунка
Музей Мунка
Фото © Adrià Goula. Предоставлено Estudio Herreros
Музей Мунка
Музей Мунка
Фото © Adrià Goula. Предоставлено Estudio Herreros
Музей Мунка
Музей Мунка
Фото © Adrià Goula. Предоставлено Estudio Herreros
Музей Мунка
Музей Мунка
Фото © Ivar Kvaal. Предоставлено Munchmuseet
Музей Мунка
Музей Мунка
Фото © Ivar Kvaal. Предоставлено Munchmuseet
Музей Мунка
Музей Мунка
Фото © Estudio Herreros. Предоставлено Munchmuseet
Музей Мунка
Музей Мунка
Фото © Munchmuseet
Музей Мунка
Музей Мунка
Фото © Jorge Queipo. Предоставлено Estudio Herreros
Музей Мунка
Музей Мунка
Фото © Høyden AS – Thomas Horgen. Предоставлено Munchmuseet
Музей Мунка
Музей Мунка
© Estudio Herreros
Музей Мунка
Музей Мунка
© Estudio Herreros
Музей Мунка
Музей Мунка
© Estudio Herreros
Музей Мунка
Музей Мунка
© Estudio Herreros
Музей Мунка
Музей Мунка
© Estudio Herreros
Музей Мунка
Музей Мунка
© Estudio Herreros
Музей Мунка
Музей Мунка
© Estudio Herreros