Размещено на портале Архи.ру (www.archi.ru)

08.06.2021

Летать в облаках

Алёна Кузнецова
Объект:
Ресторан в горах
Адрес:
Россия, Мурманская обл., Кировск. гора Айкуайвенчорр
Архитектор:
Сергей Переслегин
Николай Переслегин
Георгий Трофимов
Мастерская:
Kleinewelt Architekten
Авторский коллектив:
Николай Переслегин, Сергей Переслегин, Георгий Трофимов, Антон Баев, Егор Легков, Мария Корнеева, Наталья Куслиева

Ресторан в Хибинах как новая достопримечательность: высота 820 над уровнем моря, панорамные виды, эффект левитации и остроумные инженерные решения.


Закрытые границы заставили больше путешествовать по собственной стране и обнаружить, что и здесь достаточно живописных гор, терренкуров, гастрономических чудес и наследия ЮНЕСКО. Туристической инфраструктуры «как в Европе» по-прежнему не хватает, но сдвиг в этом направлении определенно происходит. Горный ресторан в Хибинах, спроектированный и реализованный Kleinewelt Architekten – отличный тому пример. 

Кировск – популярная альтернатива Красной поляне, в постковидный сезон наплыв горнолыжников здесь только увеличился, чем нельзя было не воспользоваться. В городе два курорта, расположенных на склонах гор с труднопроизносимыми саамскими названиями – Кукисвумчорр и Айкуайвенчорр. В 2002 году на южном склоне Айкуайвенчорр открылся горнолыжный комплекс АО «Апатит», который входит в группу ФосАгро, – нынешний «Большой Вудъявр», названный именем озера. Сегодня это самый высокогорный курорт на Северо-Западе России, кататься можно с ноября по май. Начинал он с 30 тысяч человек в сезон, сейчас цифра, по словам владельцев, увеличилась до 250 тысяч. Поскольку Après ski – не менее важная часть отпуска в горах, чем трассы и удобные подъемники, ресторан с панорамными видами, которые так хорошо расходятся по социальным сетям, безусловно станет конкурентным преимуществом и дополнительным всесезонным аттрактором для туристов.

Ресторан в горах
Ресторан в горах
© Kleinewelt Architekten

Ресторан строится на высоте 820 метров над уровнем моря, в месте, где сходятся две канатные дороги – кресельная и гондольная, одна протянута по южному склону, другая – по северному. Из этой точки в хорошую погоду открываются панорамные виды на Кировск, озеро Большой Вудъявр и вершины гор. Насладитесь названиями: Вудъяврчорр, Расвумчорр, Кукисвумчорр, Ловчорр, хребет Поачвумчорр. Если в долине лежат облака, вид не менее эффектный, а зимой, говорят, здесь можно поймать и северное сияние. Сам ресторан видно почти из любой точки Кировска, поскольку гора, на которой он располагается, нависает над городом. 
 
 

Несмотря на то, что какой-либо архитектурный контекст отсутствует, вписать здание в окружение было не менее сложно, чем в городе: на фоне величественных гор легко потеряться или показаться мелким, в горах, как известно, проверяется характер – друг ты, или так. Узнаваемая форма «шайбы», бетон в качестве основного материала и лента остекления заставляет искать прообразы в советской архитектуре, так хорошо коннотирующей со спортивными достижениями и лыжами, правда, беговыми. И такие прообразы легко находятся: дворец культуры или речной вокзал или стадион.   

Но архитекторы, как оказалось, нашли вдохновение совсем в других сферах: отправной точкой для формообразования послужила магнитная левитация. Это явление представляет собой зрелище сродни магическому: в условиях экстремально низких температур металл становится сверхпроводимым и заставляет магнит парить в воздухе. Именно такого сходства и стремились добиться архитекторы: мощное основание «сверхпроводника», парящий «магнитный диск» и воздушная подушка между ними. 
Ресторан в горах
Ресторан в горах
© Kleinewelt Architekten

Масштаб здания для своей локации значительный – ресторан рассчитан на 300 посетителей. Из пяти этажей два – технические, они расположены в самом нижнем и верхнем уровнях. На средний вестибюльный этаж ведет довольно высокая лестница, которую в зимнее время заметает снег, оставляя две-три ступени. На этом же уровне умещается бар и смотровая терраса. В стилобате спрятана кухня, а кульминационный консольный барабан с ленточным остеклением – это собственно кафе-бистро и ресторан, где каждый столик обеспечен красивым видом.        
Ресторан в горах
Ресторан в горах
© Kleinewelt Architekten

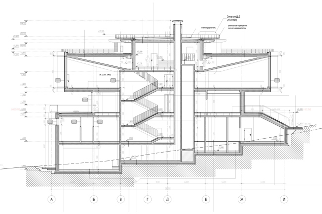
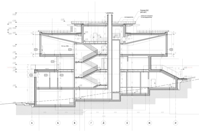
Самой большой технической сложностью было обеспечить «левитацию» диска ресторана, то есть найти альтернативу колоннам. Фундамент здания представляет собой железобетонную плиту, которая лежит на скальном грунте – чтобы подготовить котлован, пришлось проводить буровзрывные работыОсновные объемы ресторана нанизаны на «стержень», в котором сосредоточены общественные зоны, лифты и лестницы. На «стержне» держится верхняя опорная конструкция – перевернутый конус кровли, который расширяется к фасаду. Вместе с плоским перекрытием в разрезе конструкция образует треугольник, обеспечивающий жесткость. К широкой части конуса с помощью тонких металлических тяжей подвешена нижняя плита перекрытия – пол ресторана. Чтобы уменьшить вес плит перекрытий без потери прочности, их заливали по специальной технологии с внедрением пустотообращующих элементов. Благодаря найденным решениям этаж ресторана выступает от несущих конструкций стержня на 8 метров.
Разрез. Ресторан в горах
Разрез. Ресторан в горах
© Kleinewelt Architekten

Инженерные находки повлияли и на эстетичность внутренних пространств ресторана. Поскольку внутри «конуса жесткости» уместились все воздуховоды, электрика и коммуникации, удалось сохранить «честную» бетонную фактуру наклонных потолков главного зала. Отсутствие опор, а также панорамные окна от пола до потолка высотой в немыслимые пять метров стирают границу между человеком и бескрайним пейзажем. Роль акцента в отделке играет анодированный алюминий, а также элементы из местной породы – хибинита. Единственное, что смущает – в таком интерьере проще представить девушку Джеймса Бонда, чем растрепанную после катания семью в лыжных костюмах.
Ресторан в горах
Ресторан в горах
© Kleinewelt Architekten

Ресторан в горах – сложный объект не только с точки зрения проектирования, но и строительства, а также эксплуатации. Доставка строительных материалов и техники на площадку, как и заливка бетона возможны только в определенное и непродолжительное время года. Непросто было найти витражи для остекления – достаточно большие, и в то же время способные сохранять тепло. Многие материалы и конструктивные решения не прошли проверку ветром, снегом и холодом. Тем не менее, самая сложная часть работы позади – монолитные конструкции и панорамное остекление уже завершены.   

Предполагается, что использовать ресторан будут круглогодично: до него всегда можно будет добраться на подъемнике, летом – также пешеходными маршрутами, а зимой еще и на пассажирском ратраке, с помощью которого, помимо гостей, в ресторан планируется доставлять продукты. Коммуникации строят параллельно со зданием ресторана, существует отдельный проект насосной станции в нижней части склона. Отопление электрическое. 

 

***

 
Kleinewelt Architekten, как кажется, спроектировали новую достопримечательность не только для Кировска, но и для всей России – и дело здесь не только в фотогеничных ракурсах, но и в самом здании, польза, прочность и красота которого неоспоримы. По словам владельцев, «по условиям и по трудоёмкости строительства проект сопоставим с объектами в Европе на высотах 2000-3000 метров», и проект уникален для страны, поскольку аналогичных решений в подобных локациях здесь еще не применялось.

Единство инженерных и эстетических решений все же роднит его с выдающимися образцами советской архитектуры, а современные и качественные материалы должны добавить лоска. Открытие ресторана запланировано на вторую половину 2021 года. 
Ресторан в горах © Kleinewelt Architekten
Ресторан в горах
© Kleinewelt Architekten
Ресторан в горах © Kleinewelt Architekten
Ресторан в горах
© Kleinewelt Architekten
Ресторан в горах © Kleinewelt Architekten
Ресторан в горах
© Kleinewelt Architekten
Ресторан в горах © Kleinewelt Architekten
Ресторан в горах
© Kleinewelt Architekten
Ресторан в горах © Kleinewelt Architekten
Ресторан в горах
© Kleinewelt Architekten