Размещено на портале Архи.ру (www.archi.ru)

26.09.2008

Новые московские МФК. Заседание архитектурного совета, 17 сентября 2008

Наталья Коряковская

На архитектурном совете 17 сентября был рассмотрен проект многофунционального комплекса на углу Платовской улицы и Можайского вала (проектировщик - мастерская ‘SPeeCH’) и предпроектные предложения по высотному комплексу над вестибюлем станции метро «Улица 1905 года»
(проектировщик – мастерская №5 «Моспроекта-2»).

Сергей Чобан. Фото Натальи Коряковской
Сергей Чобан. Фото Натальи Коряковской

Первым совет рассмотрел административно-деловой комплекс, спроектированный «SPeeCH» на Можайском валу. Об этой московской работе Сергея Чобана и Сергея Кузнецова мы уже писали. Участок, для которого проектируется комплекс, расположен недалеко от престижного Кутузовского проспекта, там, где к проспекту подходит Большая Дорогомиловская улица. Сейчас здесь стоят корпуса ЗАО «ЦНИИКА», подлежащие сносу, но одно из них будет сохранено.

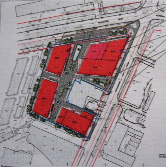
Комплекс состоит из четырех корпусов, равномерно расчерченных квадратными окнами, немного напоминающими фасады Военной академии им. М.В. Фрунзе (архитектор - Лев Руднев). Простенки предполагается облицевать мягким матовым известняком и покрыть резным геометрическим орнаментом схожего, но слегка варьирующегося на разных корпусах рисунка. Четыре новых объема обступают сохраняемое на участке здание, образуя внутренний двор-улицу. Эта улица – ось генплана и градостроительный стержень всего комплекса.

Референту проекта Сергею Киселеву, который несколько лет назад участвовал, наряду с мастерской Сергея Чобана, в конкурсе на застройку этого участка – объемно-планировочное и архитектурное решения понравились. По мнению Сергея Киселева, идея с организацией пешеходной улицы очень удачная и это гораздо лучше, чем распределять пешеходные потоки с угла Платовской и Можайского вала. Сергей Киселев также отметил удачное решение фасадов из орнаментированных известняковых плит, которыми здание может «зацепиться за окружающую застройку».

Однако у других членов совета вызвало сомнения градостроительное значение комплекса и его  отношение к зданиям, которые должны появиться по соседству в процессе реконструкции района вокруг Дорогомиловского рынка. Так, рядом с комплексом Сергея Чобана на Можайском валу будет построена 15-этажная гостиница, а южнее по улице Платовской – несколько высотных корпусов. Андрей Боков подчеркнул, что на представленной развертке эти планируемые соседние здания не показаны, и поэтому будущая градостроительная ситуация микрорайона ясна не вполне. Александр Кудрявцев охарактеризовал комплекс как «интравертный», «абстрагированный от внешней среды», а предложенные в проекте ссылки на контекст – как «фантомные», подчеркнув, что ближайшее окружение комплекса состоит из зданий «сталинского ампира».

Подводя итоги обсуждения, Юрий Григорьев предложил поддержать архитектурную композицию в целом и рекомендовал: во-первых, переработать проект с позиции  уточнения градостроительной основы; а во-вторых, пересмотреть образную составляющую в сторону усиления связей с окружающей застройкой.

Вторым предметом для обсуждения стало предпроектное предложение по возведению многофункционального комплекса над вестибюлем станции метро «Улица 1905 года» (мастерская № 5 «Моспроекта-2»). Границами участка сегодня служат Пресненский вал, улица 1905 года и площадь Краснопресненской заставы. Площадь пересекается магистралью Звенигородского проспекта, соединяющего Пресню  с Новорижским шоссе. Вдоль этой трассы уже сейчас начинают вырастать крупные комплексы, и рассмотренный объект – один из них.

Проект был представлен в двух вариантах – в одном варианте две, в другом три башни, объединенные стилобатом, в который включается вестибюль метро. Высота башен ограничена – над этой станцией метро по расчётам нельзя строить выше 80 метров.

Главное различие между двумя вариантами – в форме высоток, в первом случае это две призмы: одна, вытянутая  пластиной, стоит лицом к Пресненскому валу, другая, прямоугольная, обращена к улице 1905 года и соединена с первой навесным переходом. Второй вариант – три овальные в сечении башни одинаковой высоты, врезанные в более низкий круглый «стилобат».

Поскольку башни будут хорошо видны сразу с нескольких направлений (помимо Звенигородского проспекта и улицы Красная Пресня – ещё и с Беговой улицы, и с улицы 1905 года), члены совета склонялись ко второму варианту как более пластичному и центричному. Хотя первый вариант, по замыслу авторов, должен лучше сочетаться с окружающей застройкой. По другую сторону Пресненского вала стоит знаменитый «Мосторг», конструктивистские формы которого первый прямоугольный вариант мог бы поддержать.

Юрий Григорьев, резюмируя недолгие выступления автора и референтов, подчеркнул, во-первых, необходимость уточнить функцию будущего объекта, который изначально предполагался как Центр искусств и гостиничный комплекс. Из этого следует, что входы в эти зоны надо устраивать с площади, в то время как коммерческую составляющую вынести на обратную сторону. Во-вторых, сама архитектура требует дальнейшей проработки в силу ответственности места. «Необходим активный силуэт, переходящий к масштабу жилой застройки», -подчеркнул Григорьев. Отсюда вытекает и последнее – объект должен быть рассмотрен на Общественном совете при мэре Москвы...

Офисно-административный комплекс с торговыми помещениями на улице Можайский вал
Офисно-административный комплекс с торговыми помещениями на улице Можайский вал
© SPEECH
Офисно-административный комплекс с торговыми помещениями на улице Можайский вал
Офисно-административный комплекс с торговыми помещениями на улице Можайский вал
© SPEECH
Офисно-административный комплекс с торговыми помещениями на улице Можайский вал. Вариант решения входной группы. Проект, 2008 © SPEECH
Офисно-административный комплекс с торговыми помещениями на улице Можайский вал. Вариант решения входной группы. Проект, 2008 © SPEECH
Офисно-административный комплекс с торговыми помещениями на улице Можайский вал. Фрагмент декора
Офисно-административный комплекс с торговыми помещениями на улице Можайский вал. Фрагмент декора
© SPEECH
Офисно-административный комплекс с торговыми помещениями на улице Можайский вал. Генеральный план
Офисно-административный комплекс с торговыми помещениями на улице Можайский вал. Генеральный план
© SPEECH
Офисно-административный комплекс с торговыми помещениями на улице Можайский вал. Транспортная схема
Офисно-административный комплекс с торговыми помещениями на улице Можайский вал. Транспортная схема
© SPEECH
Многофункциональный гостинично-деловой и досуговый компекс на Пресненском валу. ГУП «Моспроект-2», маст. № 5. Архитекторы: М. Леонов, И. Лелякина. Макет
Многофункциональный гостинично-деловой и досуговый компекс на Пресненском валу. ГУП «Моспроект-2», маст. № 5. Архитекторы: М. Леонов, И. Лелякина. Макет
Многофункциональный гостинично-деловой и досуговый компекс на Пресненском валу. ГУП «Моспроект-2», маст. № 5. Архитекторы: М. Леонов, И. Лелякина. 1-й вариант
Многофункциональный гостинично-деловой и досуговый компекс на Пресненском валу. ГУП «Моспроект-2», маст. № 5. Архитекторы: М. Леонов, И. Лелякина. 1-й вариант
Многофункциональный гостинично-деловой и досуговый компекс на Пресненском валу. ГУП «Моспроект-2», маст. № 5. Архитекторы: М. Леонов, И. Лелякина. 1-й вариант
Многофункциональный гостинично-деловой и досуговый компекс на Пресненском валу. ГУП «Моспроект-2», маст. № 5. Архитекторы: М. Леонов, И. Лелякина. 1-й вариант
Многофункциональный гостинично-деловой и досуговый компекс на Пресненском валу. ГУП «Моспроект-2», маст. № 5. Архитекторы: М. Леонов, И. Лелякина. 1-й вариант
Многофункциональный гостинично-деловой и досуговый компекс на Пресненском валу. ГУП «Моспроект-2», маст. № 5. Архитекторы: М. Леонов, И. Лелякина. 1-й вариант
Многофункциональный гостинично-деловой и досуговый компекс на Пресненском валу. ГУП «Моспроект-2», маст. № 5. Архитекторы: М. Леонов, И. Лелякина. Вариант 2
Многофункциональный гостинично-деловой и досуговый компекс на Пресненском валу. ГУП «Моспроект-2», маст. № 5. Архитекторы: М. Леонов, И. Лелякина. Вариант 2
Многофункциональный гостинично-деловой и досуговый компекс на Пресненском валу. ГУП «Моспроект-2», маст. № 5. Архитекторы: М. Леонов, И. Лелякина. Транспортная схема
Многофункциональный гостинично-деловой и досуговый компекс на Пресненском валу. ГУП «Моспроект-2», маст. № 5. Архитекторы: М. Леонов, И. Лелякина. Транспортная схема
Многофункциональный гостинично-деловой и досуговый компекс на Пресненском валу. ГУП «Моспроект-2», маст. № 5. Архитекторы: М. Леонов, И. Лелякина. Генплан
Многофункциональный гостинично-деловой и досуговый компекс на Пресненском валу. ГУП «Моспроект-2», маст. № 5. Архитекторы: М. Леонов, И. Лелякина. Генплан