Размещено на портале Архи.ру (www.archi.ru)

08.06.2020

Музей на железной дороге

Нина Фролова
Объект:
Кантональный музей изящных искусств в Лозанне
Адрес:
Швейцария, None, Лозанна.
Мастерская:
Barozzi Veiga

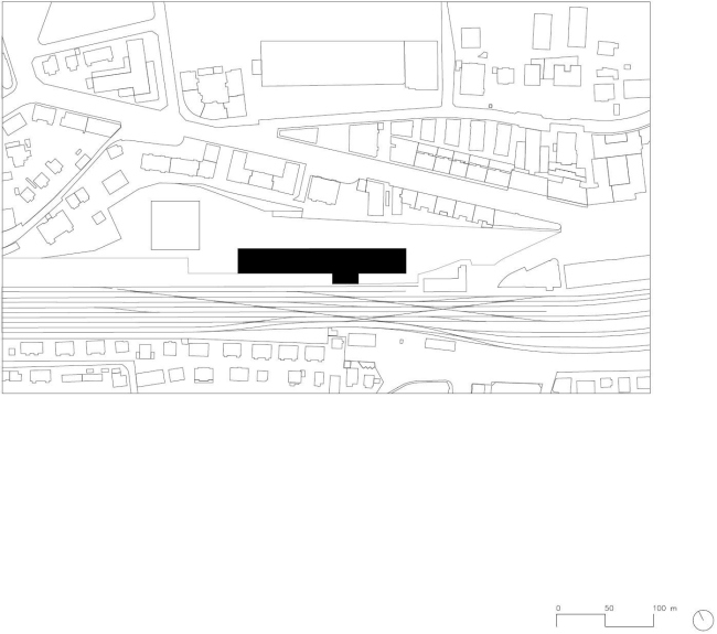
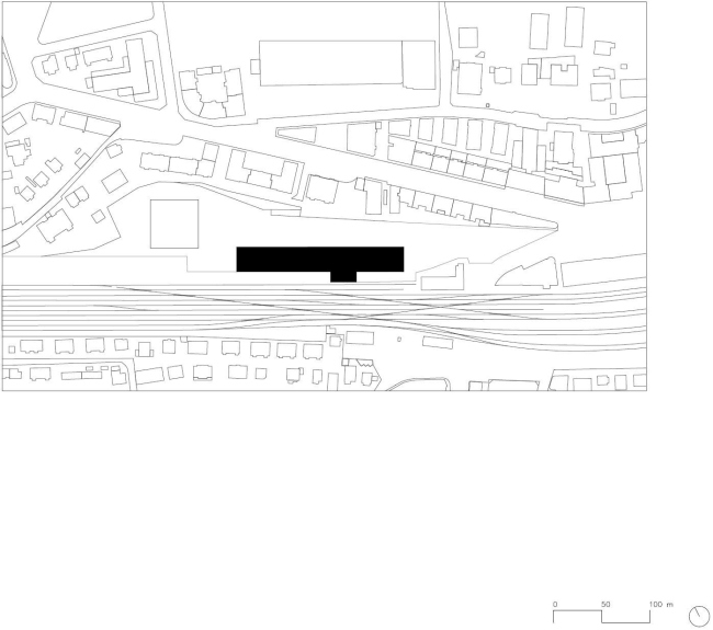
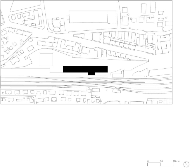
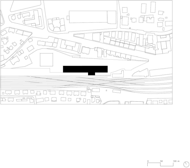
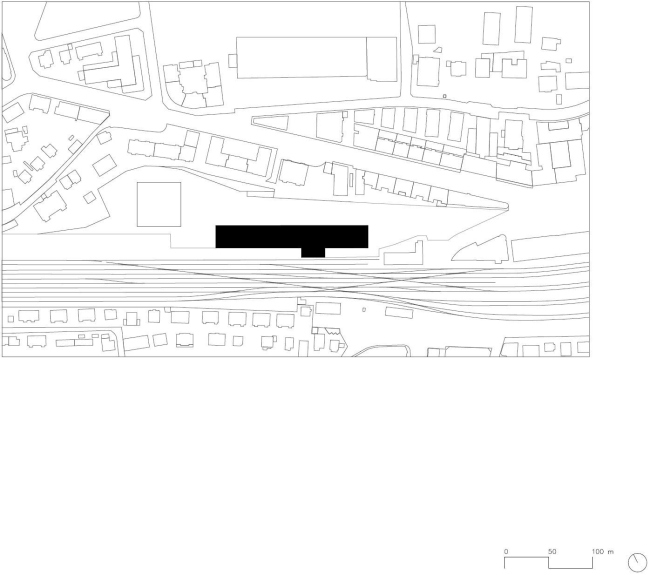
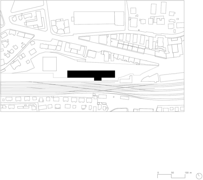
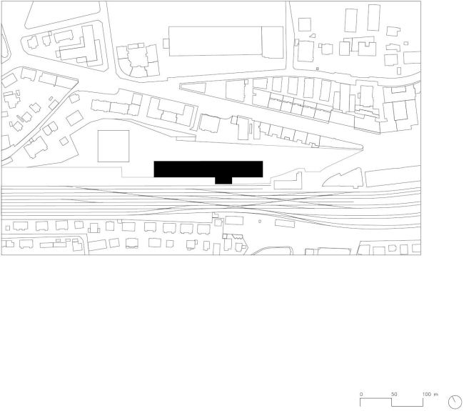
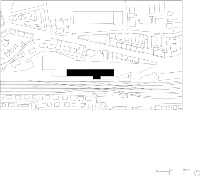
Новое здание Кантонального музея изящных искусств по проекту Barozzi Veiga – первый пункт мастерплана этих архитекторов: рядом с вокзалом Лозанны возникает арт-квартал Platform 10.

MCBA – Музей изящных искусств кантона Во, столицей которого является Лозанна, нуждался в новом здании с начала этого века. В Швейцарии большие проекты с государственным бюджетом одобряют на референдумах, что не всегда хорошо кончается для интересных архитектурных идей. Поэтому в 2008 гражданам было предложено решить – строить ли здание MCBA на берегу Женевского озера, и они ответили отрицательно. Как выяснилось позже, потому что это озеро в общественном сознании – слишком ценный ландшафт. Второй вариант расположения музея – ближе к историческому ядру Лозанны, рядом с центральным вокзалом, возражений уже не вызвал.
 

Кантональный музей изящных искусств в Лозанне
Кантональный музей изящных искусств в Лозанне
Фото © Simon Menges

Так там начал формироваться квартал Platform 10: барселонское бюро Barozzi Veiga, лауреат премии Мис ван дер Роэ, победило в конкурсе 2011 года со своим вариантом плана для этого арт-кластера. Тогда же эти архитекторы завоевали право на проектирование нового здания для кантонального музея изящных искусств. Сложность заключалась в том, что на выбранном месте стояло депо 1911 года постройки, которое можно было и снести, и сохранить. Barozzi Veiga выбрали путь демонтажа, что дало больше свободы при проектировании и в итоге принесло им победу в конкурсе.
 
Кантональный музей изящных искусств в Лозанне
Кантональный музей изящных искусств в Лозанне
Фото © Simon Menges

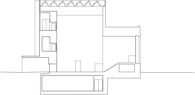
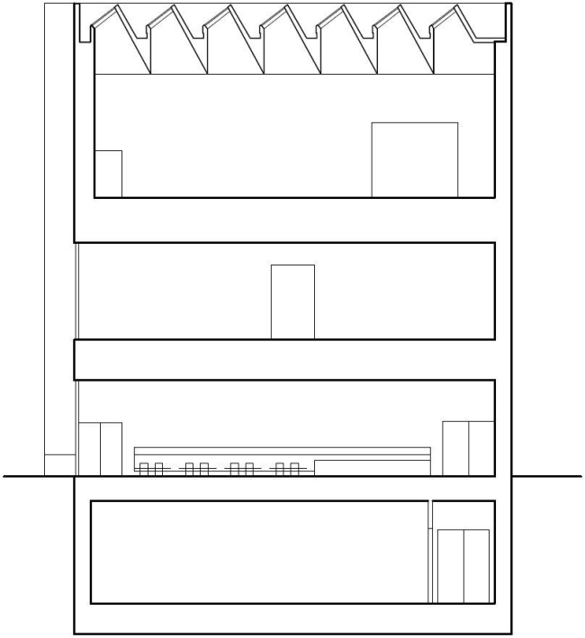
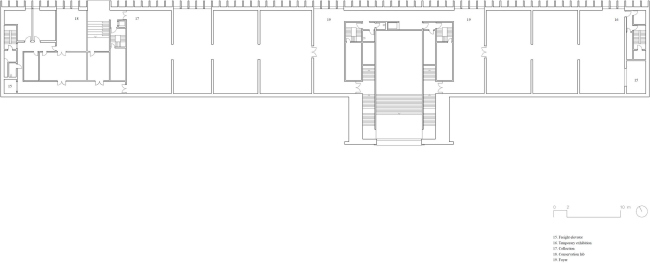
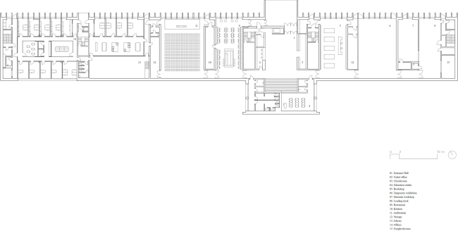
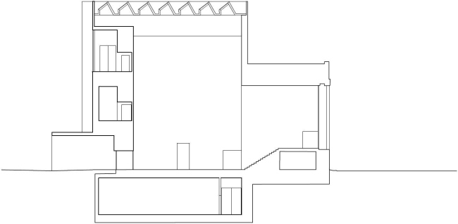
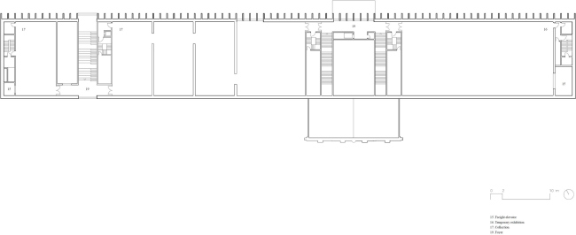
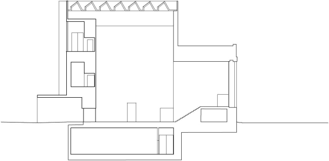
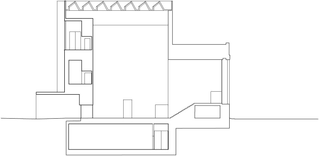
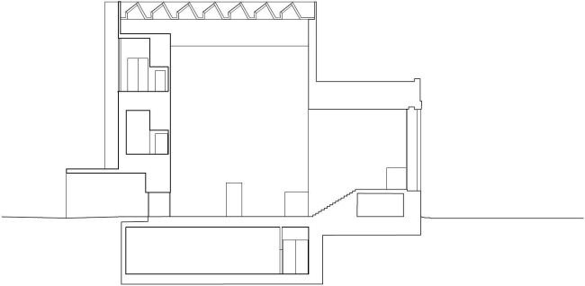
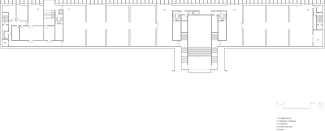
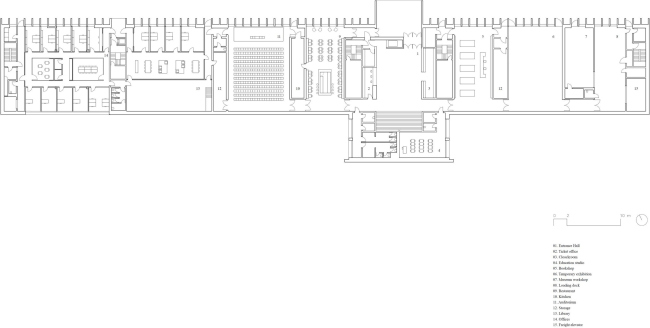
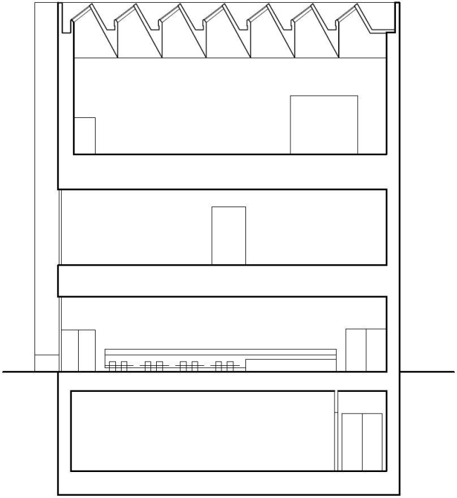
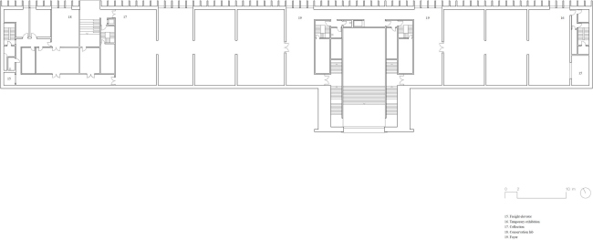
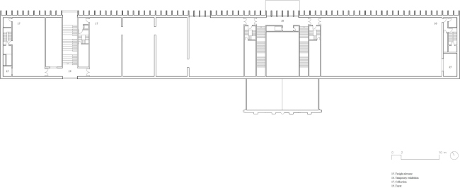
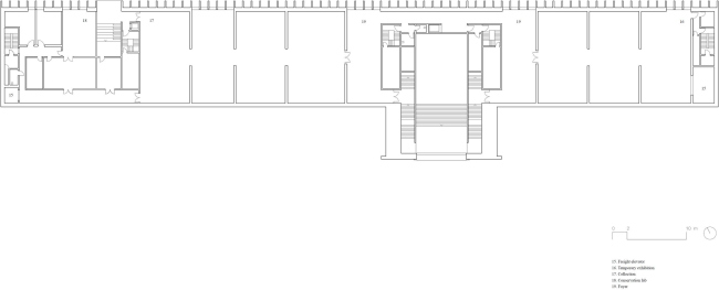
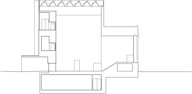
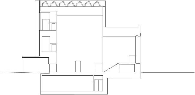
В итоге, от депо остался лишь конец «рукава», который выступает из стены музея, обращенной к железнодорожным путям. Лаконичный прямоугольный объем MCBA, задуманный Barozzi Veiga – это отсылка к индустриальному прошлому (и настоящему) участка, и нигде она так сильно не проявлена, как с этой, южной стороны. Но монолитная поверхность – это еще и утилитарный ответ на шум и вибрацию поездов, а также возможность аварии с участием состава, перевозящего взрывоопасный химический груз. Еще одним соображением была защита экспозиции от солнечных лучей с юга.
 
Кантональный музей изящных искусств в Лозанне
Кантональный музей изящных искусств в Лозанне
Фото © Simon Menges

Такие же монолитные торцы отличаются лишь тем, что на восточном, встречающим идущих от вокзала посетителей фасаде рельеф повторяет силуэт другого «рукава» депо. Лишь с обращенной к центру города северной стороны музей предстает более открытым: с глубокими пластинами-ламелями, которые, как и остальные внешние поверхности здания, покрыты светло-серым клинкером – еще одним напоминанием о промышленном контексте.
 
Кантональный музей изящных искусств в Лозанне
Кантональный музей изящных искусств в Лозанне
Фото © Simon Menges

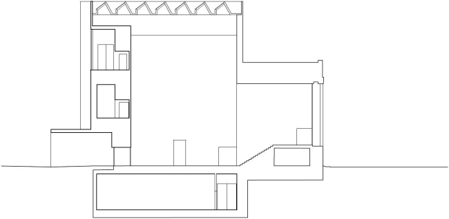
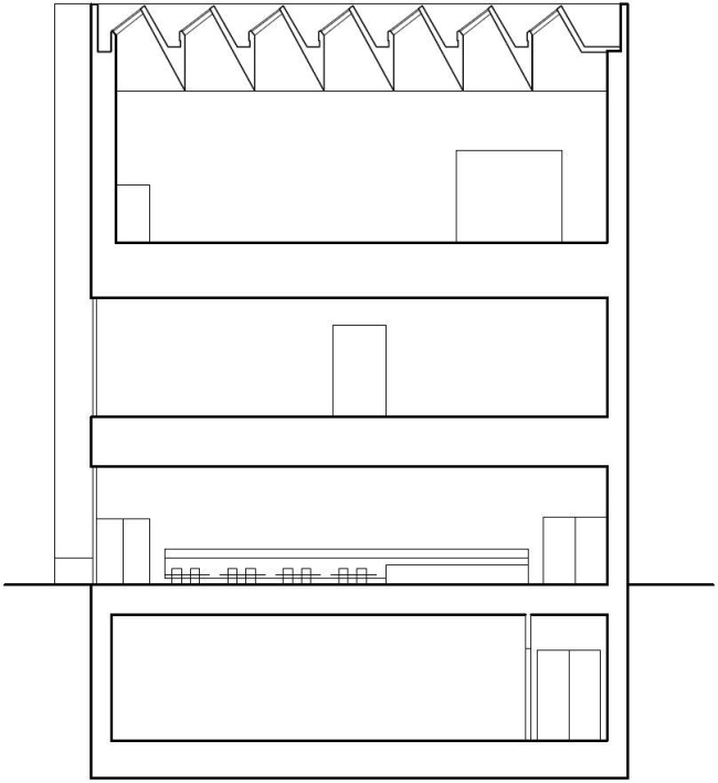
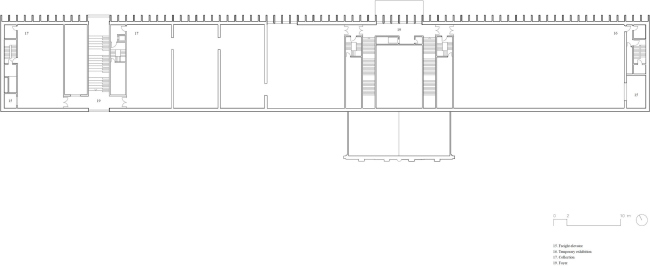
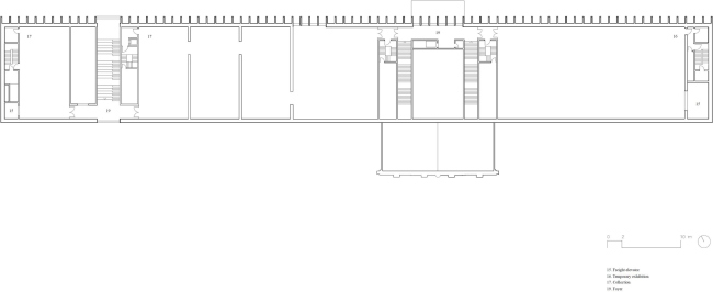
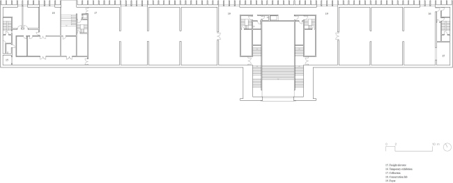
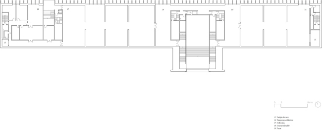
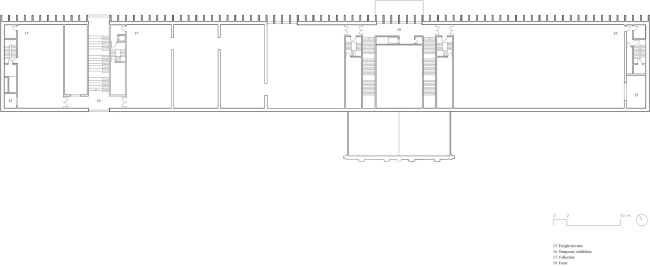
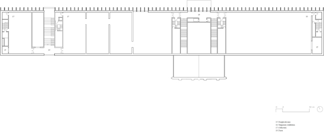
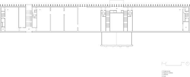
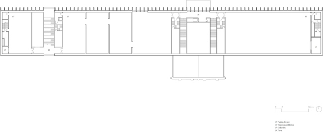
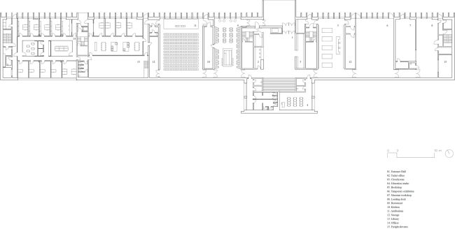
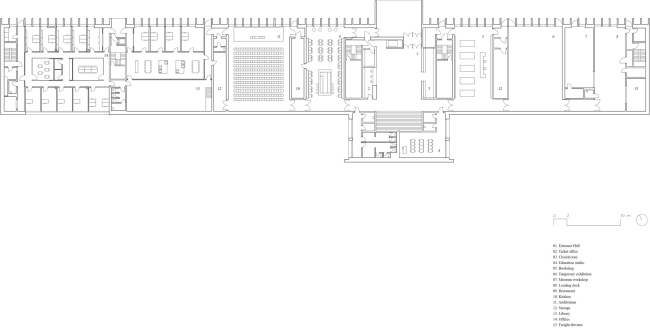
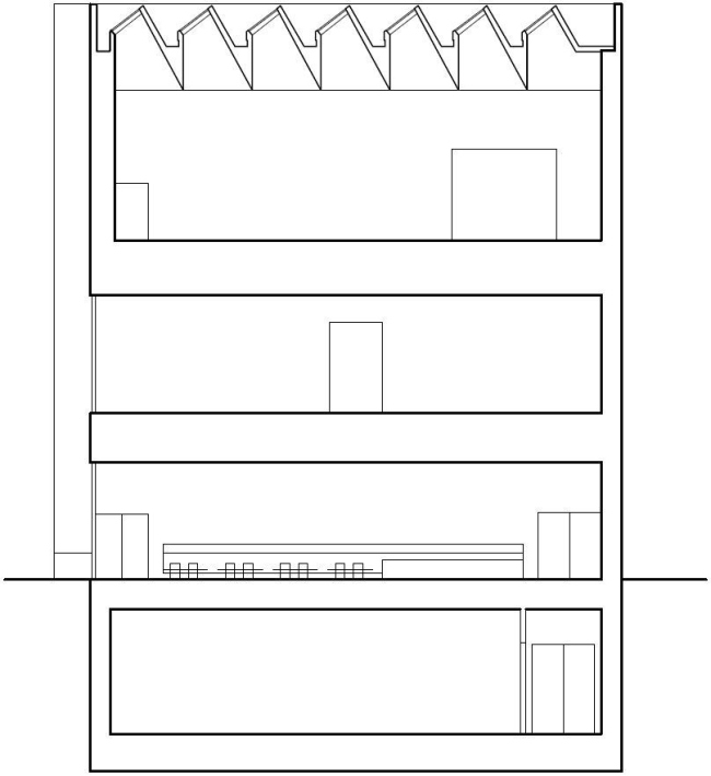
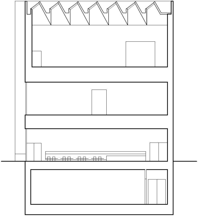
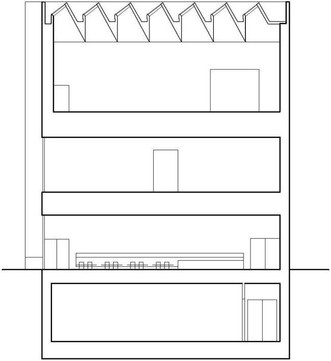
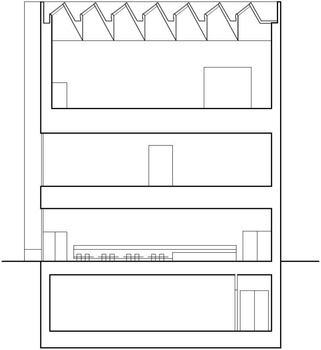
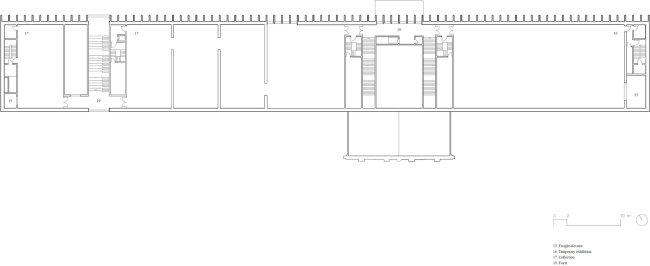
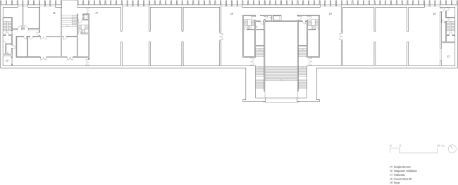
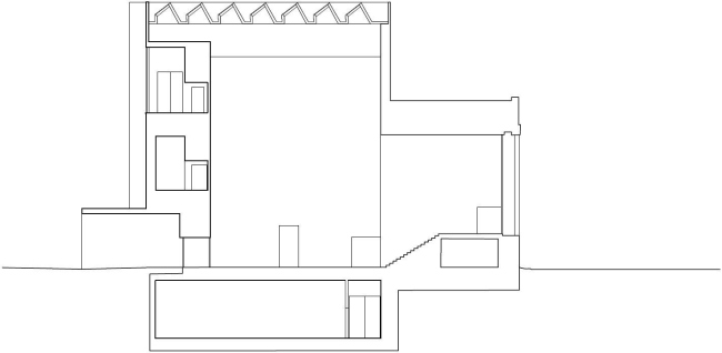
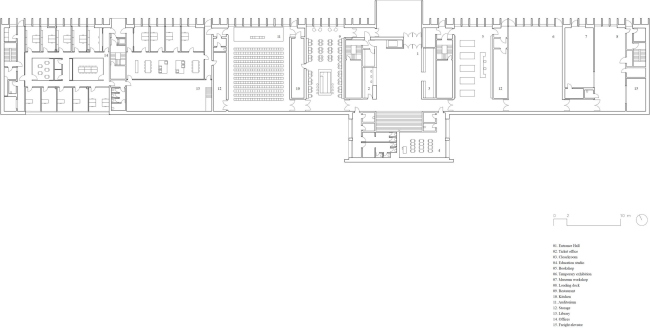
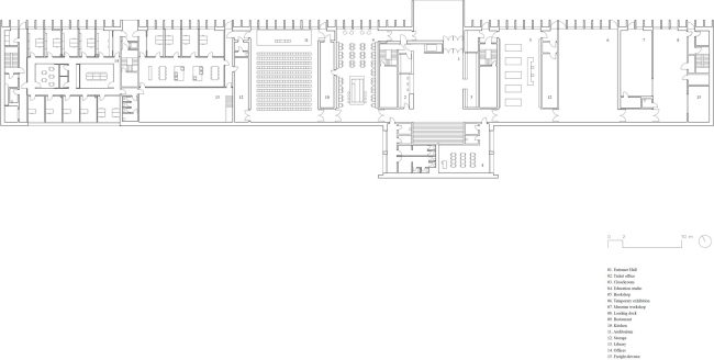
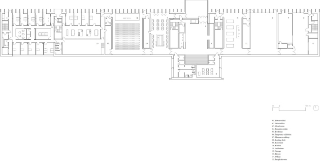
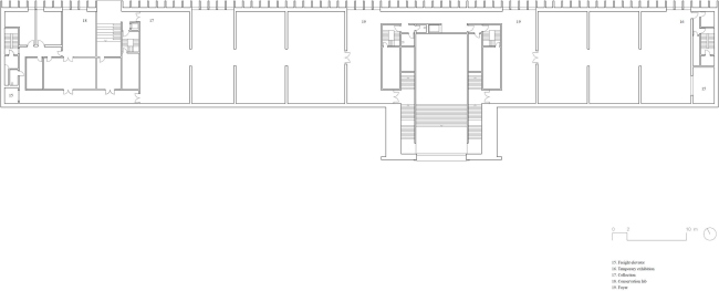
Вход во внушительную постройку (145,5 х 21,5 х 22 м, площадь – 12 449 м2) сделан намеренно скромным, спрятанным в бетонный «чехол», чтобы создать контраст с просторным вестибюлем, завершающимся арочным окном под цилиндрическим сводом: тем самым «рукавом» депо, который виден из окон поездов.
 
Кантональный музей изящных искусств в Лозанне
Кантональный музей изящных искусств в Лозанне
Фото © Simon Menges

На первом этаже помещены аудитория, кафе, музейный магазин, выставочные залы, которые продолжаются на втором и третьем уровнях. Вестибюль и парадная лестница делят здание по высоте на две неравные части, что помогает устраивать одновременно несколько выставок, хотя вариант единой экспозиции тоже возможен. Окна на северном фасаде, а также фонари в перекрытиях обеспечивают залы естественным освещением – сквозь разнообразные фильтры. Бюджет проекта в целом – 84,5 млн франков, из этой суммы затраты на здание составили 64 715 000 франков.
 
Кантональный музей изящных искусств в Лозанне
Кантональный музей изящных искусств в Лозанне
Фото © Simon Menges

Уже в конце 2021-го Platform 10 станет домом для двух других лозаннских музеев: Елисейского и декоративных искусств. Здание для них строится по проекту португальских братьев-архитекторов Айриш-Матеуш.
Кантональный музей изящных искусств в Лозанне
Кантональный музей изящных искусств в Лозанне
Фото © Simon Menges
Кантональный музей изящных искусств в Лозанне
Кантональный музей изящных искусств в Лозанне
Фото © Simon Menges
Кантональный музей изящных искусств в Лозанне
Кантональный музей изящных искусств в Лозанне
Фото © Simon Menges
Кантональный музей изящных искусств в Лозанне
Кантональный музей изящных искусств в Лозанне
Фото © Simon Menges
Кантональный музей изящных искусств в Лозанне
Кантональный музей изящных искусств в Лозанне
Фото © Simon Menges
Кантональный музей изящных искусств в Лозанне
Кантональный музей изящных искусств в Лозанне
Фото © Simon Menges
Кантональный музей изящных искусств в Лозанне
Кантональный музей изящных искусств в Лозанне
Фото © Simon Menges
Кантональный музей изящных искусств в Лозанне
Кантональный музей изящных искусств в Лозанне
Фото © Simon Menges
Кантональный музей изящных искусств в Лозанне
Кантональный музей изящных искусств в Лозанне
Фото © Simon Menges
Кантональный музей изящных искусств в Лозанне
Кантональный музей изящных искусств в Лозанне
Фото © Simon Menges
Кантональный музей изящных искусств в Лозанне
Кантональный музей изящных искусств в Лозанне
Фото © Simon Menges
Кантональный музей изящных искусств в Лозанне
Кантональный музей изящных искусств в Лозанне
Фото © Simon Menges
Кантональный музей изящных искусств в Лозанне
Кантональный музей изящных искусств в Лозанне
Фото © Simon Menges
Кантональный музей изящных искусств в Лозанне
Кантональный музей изящных искусств в Лозанне
Фото © Simon Menges
Кантональный музей изящных искусств в Лозанне
Кантональный музей изящных искусств в Лозанне
Фото © Simon Menges
Кантональный музей изящных искусств в Лозанне
Кантональный музей изящных искусств в Лозанне
Фото © Simon Menges
Кантональный музей изящных искусств в Лозанне
Кантональный музей изящных искусств в Лозанне
Фото © Simon Menges
Кантональный музей изящных искусств в Лозанне
Кантональный музей изящных искусств в Лозанне
Фото © Simon Menges
Кантональный музей изящных искусств в Лозанне
Кантональный музей изящных искусств в Лозанне
Фото © Simon Menges
Кантональный музей изящных искусств в Лозанне
Кантональный музей изящных искусств в Лозанне
Фото © Simon Menges
Кантональный музей изящных искусств в Лозанне
Кантональный музей изящных искусств в Лозанне
© Barozzi Veiga
Кантональный музей изящных искусств в Лозанне
Кантональный музей изящных искусств в Лозанне
© Barozzi Veiga
Кантональный музей изящных искусств в Лозанне
Кантональный музей изящных искусств в Лозанне
© Barozzi Veiga
Кантональный музей изящных искусств в Лозанне
Кантональный музей изящных искусств в Лозанне
© Barozzi Veiga
Кантональный музей изящных искусств в Лозанне
Кантональный музей изящных искусств в Лозанне
© Barozzi Veiga
Кантональный музей изящных искусств в Лозанне
Кантональный музей изящных искусств в Лозанне
© Barozzi Veiga
Кантональный музей изящных искусств в Лозанне
Кантональный музей изящных искусств в Лозанне
© Barozzi Veiga
Кантональный музей изящных искусств в Лозанне
Кантональный музей изящных искусств в Лозанне
© Barozzi Veiga
Кантональный музей изящных искусств в Лозанне
Кантональный музей изящных искусств в Лозанне
© Barozzi Veiga
Кантональный музей изящных искусств в Лозанне
Кантональный музей изящных искусств в Лозанне
© Barozzi Veiga
Кантональный музей изящных искусств в Лозанне
Кантональный музей изящных искусств в Лозанне
© Barozzi Veiga
Кантональный музей изящных искусств в Лозанне
Кантональный музей изящных искусств в Лозанне
© Barozzi Veiga
Кантональный музей изящных искусств в Лозанне
Кантональный музей изящных искусств в Лозанне
© Barozzi Veiga