Размещено на портале Архи.ру (www.archi.ru)

07.07.2020

Клетка Фарадея

Алла Павликова
Объект:
Клубный дом в Тружениковом переулке
Адрес:
Россия, Москва. Тружеников пер.
Архитектор:
Андрей Асадов
Александр Асадов
Мастерская:
АБ ASADOV
Авторский коллектив:
А. Р. Асадов, Н. Соболев, Н. Кучеров, Ю. Бутырская

Проект клубного дома в 1-м Тружениковом переулке – попытка архитекторов разместить значительный объем на крошечном пятачке земли так, чтобы он выглядел элегантно и респектабельно. На помощь пришли металл, камень и гнутое стекло.

Хамовники считаются одним из самых престижных районов Москвы. Но если в период строительного бума застройщики осваивали территории, расположенные максимально близко к историческому центру, то сейчас, когда на Остоженке не осталось ни одного свободного клочка земли, они постепенно сместились к центральной и юго-западной частям района. В последние годы именно там сосредоточено самое дорогое строительство в столице. Неудивительно, что здесь появляются все новые проекты, а места остается все меньше, что, впрочем, для клубных домов не проблема.

Клубный дом, который планируется построить в 1-м Тружениковом переулке, – яркий пример подобного рода. Участок, отведенный под его строительство, в настоящий момент занимает миниатюрное двухэтажное строение, определенное под снос. Его со всех сторон обступают существующие постройки: справа – пятиэтажный объем родом из 1990-х, слева – двухэтажный протяженный дом, позади – корпус политехнического колледжа. В таких стесненных обстоятельствах под новое строительство остается лишь вытянутый трапециевидный клочок земли, причем в сторону переулка выходит его самая узкая часть.

Клубный дом в 1-м Тружениковом переулке. Ситуационный план
Клубный дом в 1-м Тружениковом переулке. Ситуационный план
© Архитектурное бюро ASADOV

В поисках наиболее эффективного решения для столь непростой территории девелопер организовал закрытый конкурс и пригласил несколько известных архитектурных команд. Среди приглашенных участников оказалась и мастерская ASADOV. Сразу оговоримся, что разработанная мастерской концепция не была выбрана в качестве победителя.
Клубный дом в 1-м Тружениковом переулке
Клубный дом в 1-м Тружениковом переулке
© Архитектурное бюро ASADOV

Андрей Асадов рассказал, что перед участниками была поставлена сложная задача – на весьма ограниченном участке спроектировать жилой дом клубного формата с достаточно большим выходом площадей (общая площадь 12 300 м²).

 
Андрей Асадов
«Мы хорошо знакомы с участком. В 1-м Тружениковом переулке в 2009 мы реализовали первый в нашей практике клубный дом. Он известен как дом на Плющихе. Там мы работали с довольно привлекательной территорией – зеленый двор с деревьями, вид на сквер Девичье поле. В новом же проекте у нас была только узкая полоса между домами».


В соседнем доме на Плющихе, составленном из нескольких разновеликих объемов, соединенных металлической перголой, – всего 22 квартиры, что оправданно для клубного дома. В новом проекте девелопер рассчитывал получить в 2,5 раза больше. Для архитекторов это стало вызовом.

Застройка типично московского, извилистого Труженикова переулка весьма многолика. Здесь сохранились дореволюционные двух- трехэтажные усадебные дома и посольства, здания сталинского и советского периода. Многие постройки появились в 1990-е и 2000-е. Высота домов разнится так же, как и время их строительства. К примеру, в перспективе улицы можно увидеть купол миниатюрной Крестовоздвиженской церкви. Но прямо напротив рассматриваемого участка стоит жилой восьмиэтажный дом, построенный в 2001 по проекту мастерской «Сергей Киселев и Партнеры», а рядом с ним – кирпичное жилое здание высотой 14 этажей.
Клубный дом в 1-м Тружениковом переулке. Вид сверху, со стороны Саввинской набережной
Клубный дом в 1-м Тружениковом переулке. Вид сверху, со стороны Саввинской набережной
© Архитектурное бюро ASADOV
Клубный дом в 1-м Тружениковом переулке. Вид сверху, со стороны переулка
Клубный дом в 1-м Тружениковом переулке. Вид сверху, со стороны переулка
© Архитектурное бюро ASADOV

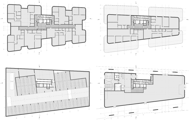
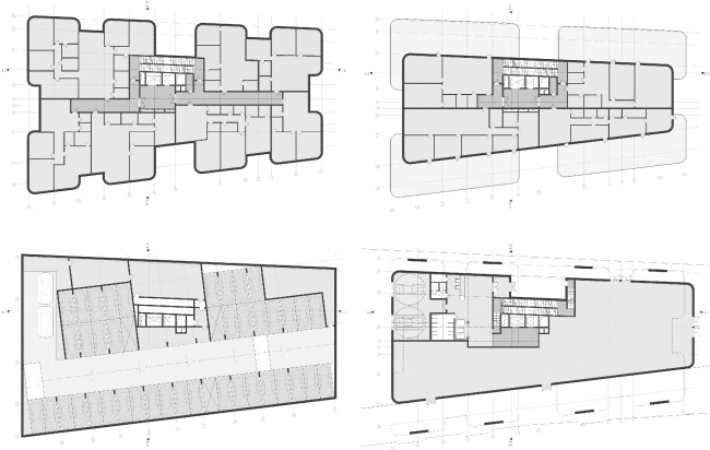
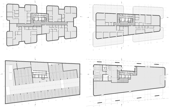
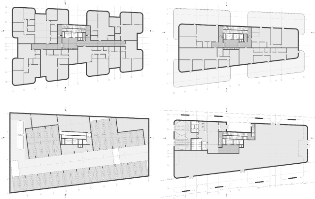
Авторы решили остановиться на десяти этажах, но максимально полно использовать участок: первый этаж отступил от границ только на расстояние, необходимое для проезда спецтранспорта. Первый этаж в проекте общественный, два верхних – пентхаусы, под землей парковка.
Клубный дом в 1-м Тружениковом переулке. Планы 1-го этажа, паркинга, типового этажа и пентхаусов
Клубный дом в 1-м Тружениковом переулке. Планы 1-го этажа, паркинга, типового этажа и пентхаусов
© Архитектурное бюро ASADOV

Со второго по восьмой этаж ширина дома увеличивается, хотя подтянутости он не теряет: эркеры чередуются с глубокими лоджиями, а объединение этажей по два и три нивелирует масштаб. Эркеры настолько велики, что дом скорее похож на группу башен, расставленных с равномерными паузами и «стянутых» между собой каменными поясами в уровне пола второго, четвертого и шестого этажей – их обитателям достались бы открытые лоджии. Чередование выступов с глубокими паузами делает объем пористым, уменьшая его присутствие в пространстве, а преобладание вертикалей отвечает за стройность целого.
Клубный дом в 1-м Тружениковом переулке
Клубный дом в 1-м Тружениковом переулке
© Архитектурное бюро ASADOV

Вверху стеклянные стены далеко отступают от линии фасада, оставляя перед пентхаусами обширные террасы. Стекло покрыто ламелями, а на торцах, со стороны улицы и во дворе, их сетка «прорастает» прозрачными перголами.
Клубный дом в 1-м Тружениковом переулке. Открытая терраса на кровле
Клубный дом в 1-м Тружениковом переулке. Открытая терраса на кровле
© Архитектурное бюро ASADOV

В отделке фасадов проект сочетает светлый камень, медь и моллированное стекло. Камень, светлый и пористый, похожий на травертин, создает внешний каркас, причем вертикали подчеркнуты каннелюрами. Медь отступает на второй план, отмечает межэтажные перекрытия и поддерживает вертикальное направление множеством ламелей в уступах первого этажа, на фасадах пентхаусов и перголе. Сочетание камня и металла дает образ, недвусмысленно отсылающий к ар-деко, а красноватый оттенок меди делает настроение декоративной композиции чуть более приподнятым.
Клубный дом в 1-м Тружениковом переулке. Фрагмент оформления фасада
Клубный дом в 1-м Тружениковом переулке. Фрагмент оформления фасада
© Архитектурное бюро ASADOV

Но изгибы моллированного стекла с крайне редкими переплетами возвращают нас к современности, если даже не футуризму – ртутно-переливающаяся субстанция похожа на силовое поле, заключенное в два вида сетки: каменную и медную, своего рода клетку Фарадея, – но остается живой и подвижной, гибкой блестящей материей, основой всего дома. Стекло преобладает в отделке первого этажа, выдвигаясь на красную линию улицы объемом небольшого кафе. За кафе, под эркерами продольных фасадов, были запланированы пешеходные галереи, они же упомянутые выше проезды для спецтранспорта.

Проект дома, пусть и оставшийся на уровне конкурсного предложения, живо развивает две традиционные для Москвы темы. Одна из них – избыточная плотность на маленьком участке, которую требуется «упаковать» в непротиворечивую форму. Другая – фасад, сочетающий отклик на привязанность московских покупателей и маркетологов к стилистике ар-деко со сдержанной, но уверенной футуристичностью. В XX веке, в отведенное ему историческое время, направление ар-деко не смогло реализовать себя в должной мере, у него попросту не было подходящих заказчиков, а без адекватеного клиента стиль никогда не полон. Поэтому нас, видимо, ждет еще немало попыток дать Москве подходящий вариант престижного декоративного стиля. Возможно, предложенный в этом проекте образ клубного дома, привносивший нью-йорский акцент в образную суету Тружениковых переулков, был бы уместным ответом.