|
К 300-летию Кузбаса в 2021 году по проекту ГК «Спектрум» и бюро ASADOV в Кемерове будет построен новый пассажирский терминал аэропорта имени Алексея Леонова.
В марте текущего года проект нового терминала кемеровского международного аэропорта, разработанный ГК «Спектрум» совместно с архитектурным бюро ASADOV, получил положительное заключение госэкспертизы. В апреле планируется подвести итоги тендера по выбору генерального подрядчика для реализации проекта. После чего будет дан официальный старт начала строительных работ.
Действующий аэропорт Кемерово небольшой: два терминала – внутренний и международный. Оба построены в 1960–1970, с момента открытия в городе воздушной гавани. Необходимость модернизации аэродрома назрела давно. В пик сезона он с трудом справляется с нагрузками и не обеспечивает необходимый комфорт пассажирам. При этом город активно развивается и все чаще становится центром всероссийских и мировых событий. К примеру, в 2022 году Кемерово готовится принять ЧМ по волейболу среди мужчин.
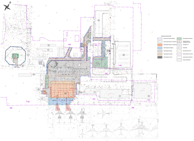
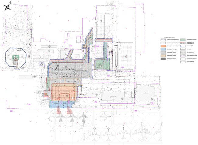
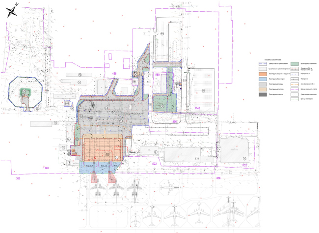
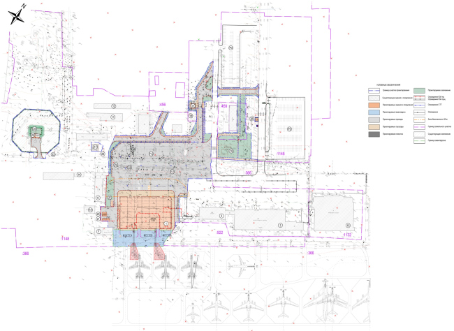
Генплан. Пассажирский терминал аэропорта в Кемерово© ГК Спектрум
С 2016 года аэропорт находится под управлением крупнейшего аэропортового холдинга «Новапорт», который сначала инициировал разработку проекта реконструкции существующих зданий, летного поля и взлетно-посадочной полосы. А затем, в 2019 задумался о строительстве третьего пассажирского терминала для внутренних вылетов – для проектирования «Новапорт» напрямую обратился в компанию «Спектрум» и бюро ASADOV, с которыми сотрудничает давно и успешно. Пример – аэропорт в Перми, реализованный в 2017.
Компания «Спектрум» в роли генпроектировщика разработала функциональную схему здания: четкую, ясную и достаточно экономную, – рассказывает Андрей Асадов. На ее основе в рамках ограниченного бюджета необходимо было создать лаконичный и выразительный архитектурный образ. В сжатые сроки совместными усилиями был разработан архитектурный проект терминала, а также дизайн-проект интерьеров общественных зон.
Пассажирский терминал аэропорта в Кемерово. Центральный вход© Архитектурное бюро ASADOV
Новое здание планируется построить на территории действующего аэропорта, расположенного в 5 км от юго-восточной границы города и в 11 км от его центра. Существующие терминалы соседствуют друг с другом. С востока – международный сектор, по центру – внутренние рейсы. Новый объем займет свободный участок с западной стороны. Вместе все три здания сформируют простую линейную композицию вдоль кромки летного поля. Между корпусами появятся стеклянные галереи переходов.
В плане новый терминал имеет простую форму прямоугольника, которая будет дополнена двумя телескопическими трапами. Размеры плана в осях – 84х51 м. Высота объема – чуть более 21 м: три наземных этажа и один подземный.
Пассажирский терминал аэропорта в Кемерово. Вид сверху© Архитектурное бюро ASADOV
В основе сюжета – космос. Подобно саратовскому аэропорту, спроектированному и построенному бюро ASADOV, который носит имя Юрия Гагарина, кемеровские воздушные ворота «посвящены» Алексею Леонову, который родился в селе Листвянка Кемеровской области. Леонов – первый космонавт, вышедший в открытое космическое пространство. Но если в Саратове космическая тематика слегка завуалирована (кроме того напомним, что имя Гагарина аэропорт получил уже тогда, когда здание строилось), то здесь она преподнесена в чистом виде: открытый космос, необъятное пространство вселенной, безграничное и мерцающее небо вокруг. И это невзирая на скромные размеры здания – общая площадь чуть более 10 000 м², вдвое меньше, чем в Саратове.
 Андрей Асадов «Тема космоса снова стала для нас центральной. В Саратове это мечта о космосе, романтическая, белоснежная, в духе 1960-х.
В Кемерове возникла иная версия – бесконечное пространство, звездное небо».
Открытый космос спрятан внутри здания, как сладкая начинка. Но слегка распробовать ее на вкус можно будет уже снаружи. Фасады терминала по всему контуру отданы витражному остеклению и почти буквально «наполнены» звездным сиянием, превращающим прозрачное стекло в подобие гигантского многоцветного экрана.
Витражный периметр основного объема лишь в отдельных зонах прикрыт декоративными горизонтальными ламелями из металла, преимущественно в тех местах, где расположены вспомогательные и технические помещения. В частности, они опоясывают скругленный угол со стороны главного фасада и далее перетекают на торцевую часть и ответвление стеклянной галереи перехода.
Пассажирский терминал аэропорта в Кемерово© Архитектурное бюро ASADOV
Стеклянный объем накрыт серебристой кровлей, чья поверхность, плавно изгибаясь, перед главным фасадом спукается до земли, почти как угол скатерти со стола или – точнее – как крыло какого-нибудь фантастического летательного аппарата, разделяясь на два острых треугольника, пространство между которыми образует заглавную букву фамилии космонавта – Л. Так возникает скульптура-знак, здание срастается со своим названием, становится его органичной частью. А главный входной фасад, обращенный к небольшой площади и подъездной дороге, получает эффектный узнаваемый акцент. «Крыло» металлической кровли создает и козырек перед входом, оно же выдвигается эффектными хай-тековскими карнизами по сторонам, придавая объему завершенность.
Схожий прием можно увидеть в асадовском аэропорте Перми, чьи исполинские золотистые крылья напоминают и об ангелах, и о полетах вообще. В здании саратовского аэропорта тоже можно увидеть размах крыльев, он дан более тонко, вибрирует с лучах солнца, почти как мираж. Но там активнее тема стекла, прозрачного и отражающего, поблескивающего. Стекло и крыло становятся, похоже, авторским признаком новых аэропортов бюро ASADOV. Что неудивительно, они отлично подходят по смыслу.
Пассажирский терминал аэропорта в Кемерово. Главный фасад© Архитектурное бюро ASADOV
Плоскость кровли и козырька планируется облицевать металлическими панелями серебристого оттенка, характерного для космических аппаратов. Вся конструкция выглядит тонкой и изящной. Опираясь на стеклянное основание, визуально она висит в воздухе. Кажется, что опорой для нее служат только острые углы серебристого крыла. По словам Андрея Асадова, найти конструктивное решение для такого художественного приема оказалось совсем не просто, тем более что строиться здание будет в зоне повышенной сейсмичности, где требования к безопасности особенно высоки.
Пассажирский терминал аэропорта в Кемерово. Вид со стороны летного поля© Архитектурное бюро ASADOV
Зоны вылета и прилета разведены по уровням. Зал для вылетающих с сопутствующими службами занимает почти весь второй этаж. На первом – зоны прилета, выдачи багажа, стойки регистрации. Также в новом терминале компактно разместятся залы специального обслуживания и повышенной комфортности для пассажиров бизнес-класса.
Пассажирский терминал аэропорта в Кемерово© Архитектурное бюро ASADOV
Весь потолок – общий над зонами вылета и прилета – затемнен. Точечные светильники формируют на этом фоне множество созвездий, скоплений и даже млечный путь.
«Мы стремились передать ощущение бесконечности, трансформировать пространство за счет цвета и света, – объясняет Андрей Асадов. – Это сильный эмоциональный прием: человек заходит в аэропорт, а попадает в открытый космос». Что, заметим, точно раскрывает главную тему именного посвящения Леонову – того самого выхода из корабля, и множества звезд, которые видит космонавт, ярких без атмосферной преграды.
Пассажирский терминал аэропорта в Кемерово© Архитектурное бюро ASADOV
Несмотря на эффект звездного неба над головой, в залах терминала будет достаточно светло. Дополнительным источником естественного освещения станут кровельные световые фонари. Над центральным залом первого этажа их шесть – крупные, поперечные, ромбовидные, с просвечивающим скелетом стальных подконструкций. Еще один фонарь по всей длине рассекает «звездное небо» над зоной ожидания вылета.
Интерьер получился фантастический. Его сложно ассоциировать с аэропортом, скорее он похож на планетарий или музей. Эта ассоциация будет усилена благодаря модели космического аппарата «Восход-2», того самого корабля, из которого Алексей Леонов совершил первый в истории человечества выход в открытый космос. Модель в натуральную величину предполагается подвесить в центре основного зала.
Пассажирский терминал аэропорта в Кемерово. Зал прилета. Модель космического аппарата «Восход-2»© Архитектурное бюро ASADOV
1. Алексей Леонов за работой. 2. Алексей Леонов «Человек над планетой» Предоставлено архитектурным бюро ASADOV
В Саратове в здании аэровокзала был создан космический музей с огромной медиа-лентой. В Кемеровском терминале все пространство решено таким образом, что напоминает музейное. Вместо медиа-ленты и экспонатов здесь большой светодиодный экран, транслирующий космические пейзажи, и световое панно с репродукцией картины Алексея Леонова. Не все знают, но советский космонавт был еще и художником. Его работы хранятся, в том числе, в Третьяковской галерее. Картина Леонова «Над Черным морем», изображающая космонавта в открытом космосе, займет всю стену над стойками регистрации. Светодиодный экран планируется разместить в основном двусветном зале, на бортике второго антресольного этажа.
Разрез 1-1. Пассажирский терминал аэропорта в Кемерово© ГК СпектрумРазрез 2-2. Пассажирский терминал аэропорта в Кемерово© ГК СпектрумРазрез 3-3. Пассажирский терминал аэропорта в Кемерово© ГК СпектрумПлан кровли. Пассажирский терминал аэропорта в Кемерово© ГК СпектрумУзлы. Пассажирский терминал аэропорта в Кемерово© ГК СпектрумПлан на отметке 5,400. Пассажирский терминал аэропорта в Кемерово© ГК СпектрумПлан на уровне 10,800. Пассажирский терминал аэропорта в Кемерово© ГК СпектрумПлан на уровне 0,000. Пассажирский терминал аэропорта в Кемерово© ГК Спектрум Как рассказал Андрей Асадов, проект Кемеровского аэропорта развивался стремительно. И столь же ударными темпами его планируется реализовать: уже весной будущего года руководство аэровокзала обещает открыть терминал для пассажиров. К 300-летнему юбилею Кузбаса город получит не только современный транспортный хаб, но также новый городской символ, напоминание о космических достижениях страны и о том, каких людей рождает кемеровская земля.
|