Размещено на портале Архи.ру (www.archi.ru)

14.04.2009

Будни зазеркалья

Юлия Тарабарина
Объект:
Деловой центр на территории ИМЕТ РАН
Адрес:
Россия, Москва. Ленинский проспект, вл. 49
Архитектор:
Сергей Киселев
Мастерская:
АМ Сергей Киселев и Партнеры
Авторский коллектив:
Сергей Киселёв, Виктор Бармин (ГАП), Анастасия Хомякова, Елена Дедюля, Галина Харитонова
инженер: Игорь Шварцман

Проект строительства новых корпусов при ИМЕТ РАН, вероятно, останется на бумаге. Но он интересен тем, что очень ярко выражает новую тенденцию контекстуальной архитектуры – строительство больших зданий-зеркал, призванных «вбирать в себя» окрестности, отражая их и создавая тем самым «вторую», театрализованную реальность города

Деловой центр на территории ИМЕТ РАН
Деловой центр на территории ИМЕТ РАН
© АМ Сергей Киселев и Партнеры

Если ехать по Ленинскому проспекту из центра в сторону области, то после полукруглой площади Гагарина он будет представлять собой следующую картину. Справа поздне-сталинские кирпичные дома, гигантскими каре ограждающие свои дворы. Слева – подхватывая тему, заданную в начале проспекта больницами Казакова и Бове, вышагивают помпезные дворцы институтов Академии наук. Они похожи на усадебные дома, в которых все увеличено в несколько раз, начиная с плана и заканчивая капителями (как правило коринфскими). Планировка тоже похожа – симметричная, с курдонером и флигелями. Такие крупные, пышные, массивные дворцы. Они обладают немалыми территориями.

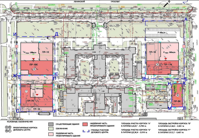
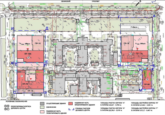
Реконструкции одного такого дворца – института металлургии и материаловедения (ИМЕТ РАН) – посвящен проект компании «Сергей Киселев и Партнеры». Это инвестиционное строительство: институт предоставляет землю и получает взамен часть построенных новых площадей, в остальных размещаются офисы. Проект предполагает строительство четырех корпусов – соблюдая заданный существующими зданиями ритм, они располагаются вокруг существующего здания с колоннами.

Совершенно очевидно, что проект попал в очень определенный, целостный послевоенный контекст. Интересно, как он на него отреагировал: два больших «лицевых» корпуса, обращенных к Ленинскому проспекту, превратились в здания-зеркала.

Они состоят из двух частей: с тыльной стороны это каменные здания, силуэт которых образован крупными ступенями, а фасады – строгими ленточными окнами и горизонтальными балконами (таковы же и два малых «дворовых» корпуса). С парадной стороны, обращенной к проспекту, к этим очень строгим и сдержанным объемам примыкают высокие – на одну треть выше них – пластины, полностью покрытые зеркальным стеклом. Для большей равномерности плоскости стыки между стеклами максимально сглажены. Эти фасады смотрят на северо-запад и почти всегда в тени – предполагалось, что затененные исполинские зеркала будут отражать освещенную, противоположную сторону проспекта, а также – небо, растворяясь в нем закруглениями верхней части пластин.

«Зеркала» очень большие – в каждом из них по 20 этажей. Для того, чтобы немного оживить их поверхность, вначале предполагалось использовать стекла разной степени прозрачности, расположив их в хаотичном «пиксельном» ритме. Архсовет такое решение одобрил, а заказчик нет – опасаясь, что неравномерность освещения внутри вызовет претензии офисных арендаторов. Тогда для оживления плоскости были использованы ламели, встроенные в стыки между стеклами и очень высокие – их высота помогает спрятать междуэтажные горизонтали. Получается так, как будто пошел дождь и прочертил по стеклу редкие полосы.

Итак, зеркала – средство вписаться в контекст. Никаких реверансов, рюшечек, штукатурки и прочего. Камень – только в виде гигантской «подставки для зеркал». Тема эта не нова – с тех пор, как стало можно делать большие стекла, архитектура задумывается о том, что она отражает в буквальном смысле. Вообще говоря, всерьез начали работать с зеркалами еще барочные интерьеры (вспомним хотя Царскосельский дворец). А уж архитектура модернизма, она, можно сказать, наполовину состоит из стекла и без стекла себя не мыслит.

И все же – компания Сергея Киселева в последние годы разрабатывает «тему зеркал» особенно тщательно, перейдя от спокойных форм и серо-полосатых фасадов к гигантским стеклянным ширмам, призванным растворить здания в контексте с почти кинематографическим правдоподобием. Этот прием использован на дворовом фасаде «Эрмитаж-Плазы», где стеклянные полосы повернуты к небу. Его же  находим в проекте делового комплекса возле Павелецкой площади: там стеклянные «щиты» делают здания более непроницаемыми и более контекстуальными, чем камень.

Вероятно, такая  приверженность гигантским зеркалам связана с укрупнением масштаба – раньше «Сергей Киселев и Партнеры» строили отдельные, небольшие дома в центре города, использовать в них большие витражи было бы скорее вызовом, чем маскировкой. Теперь проекты – большие, от 100 до 400 тысяч кв. метров, и подход к ним другой. Они должны казаться невидимыми, как вода или пар, только так можно «спрятать» столь большие постройки. «Спрятать» – в данном случае выражение, разумеется, фигуральное. Дома прекрасно видно, даже стеклянные. Мне даже кажется, что эти игры с зеркалами скорее смысловые, театральные и требуют вживания и воображения зрителя для того, чтобы начать работать по-настоящему, «вбирать» в себя окрестности и выдавать картинку «зазеркалья». В зазеркалье вся суть – в отражении мы видим уже не тот мир, а какой-то другой, хотя и похожий.

В данном случае, правда, зеркалам не суждено воплотиться. У ИМЕТ РАН сменился директор, и новый руководитель захотел, чтобы корпуса были построены ближе к красной линии Ленинского проспекта. Так близко эти гигантские объемы придвинуть нельзя, даже зеркальные. А если сделать корпуса ниже ростом, то инвестор не получит желаемых площадей. Поэтому проект, вероятно, останется на бумаге. В Зазеркалье.

Деловой центр на территории ИМЕТ РАН
Деловой центр на территории ИМЕТ РАН
© АМ Сергей Киселев и Партнеры
Деловой центр на территории ИМЕТ РАН
Деловой центр на территории ИМЕТ РАН
© АМ Сергей Киселев и Партнеры
Деловой центр на территории ИМЕТ РАН
Деловой центр на территории ИМЕТ РАН
© АМ Сергей Киселев и Партнеры
Деловой центр на территории ИМЕТ РАН
Деловой центр на территории ИМЕТ РАН
© АМ Сергей Киселев и Партнеры
Деловой центр на территории ИМЕТ РАН
Деловой центр на территории ИМЕТ РАН
© АМ Сергей Киселев и Партнеры
Деловой центр на территории ИМЕТ РАН
Деловой центр на территории ИМЕТ РАН
© АМ Сергей Киселев и Партнеры
Деловой центр на территории ИМЕТ РАН
Деловой центр на территории ИМЕТ РАН
© АМ Сергей Киселев и Партнеры
Деловой центр на территории ИМЕТ РАН
Деловой центр на территории ИМЕТ РАН
© АМ Сергей Киселев и Партнеры
Деловой центр на территории ИМЕТ РАН
Деловой центр на территории ИМЕТ РАН
© АМ Сергей Киселев и Партнеры
Деловой центр на территории ИМЕТ РАН. Разрез 1-1
Деловой центр на территории ИМЕТ РАН. Разрез 1-1
© АМ Сергей Киселев и Партнеры