Размещено на портале Архи.ру (www.archi.ru)

29.07.2019

Депо постиндустриальной жизни

Юлия Тарабарина
Объект:
D_Станция
Адрес:
Россия, Москва. ул. Земляной Вал, 9А
Архитектор:
Сергей Труханов
Мастерская:
Т+Т Architects
Авторский коллектив:
Сергей Труханов, Даниил Шишков, Александр Фадеев, Елена Окландер, Наталья Фёдорова, Георгий Тюгаев, Николай Макаров, Анна Квятковская, Алексей Левин, Лариса Панасенко, Александр Бровкин

Проект реновации заброшенного здания депо отличается вниманием к деталям и эмоциональной «фактуре» общественных пространств, разнообразием функционального наполнения и романтическим отношением к идее руины, которая превращается к дополнительный сюжет проекта.

Концепция капитального ремонта бывшего вагонного депо. 2019
Концепция капитального ремонта бывшего вагонного депо. 2019
© Т+Т Architects

Здание вагонного депо Курской железной дороги построено в 1906 году, выведено из списка памятников и заброшено достаточно давно. За время бездействия пришло в плачевное состояние: исписано, облуплено, замусорено, покрытие держится на подпорках. Но стены стоят – за исключением поперечного «трансепта», разобранного где-то во второй половине XX века. Протяженное здание хорошо видно с моста улицы Казакова, ведущего от Гоголь-центра к Земляному валу; но его мало кто замечает, поскольку сейчас здание выглядит скорее как руина на задворках офисного центра «Ситидел» и двух когда-то доходных, а ныне офисных домов, построенных Нирнзее в бытность его молодым архитектором. Между тем мимо депо проходит маршрут сотрудников «Ситидел», срезающих путь к метро и в клубы «Армы» – в настоящее время несколько неуютный, но всё же достаточно оживленный.
Депо на улице Казакова: современное состояние, 2019 Предоставлено T+T architects
Депо на улице Казакова: современное состояние, 2019
Предоставлено T+T architects
Депо на улице Казакова: современное состояние, 2019 Предоставлено T+T architects
Депо на улице Казакова: современное состояние, 2019
Предоставлено T+T architects
Депо на улице Казакова: современное состояние, 2019 Предоставлено T+T architects
Депо на улице Казакова: современное состояние, 2019
Предоставлено T+T architects
Депо на улице Казакова: современное состояние, 2019 Предоставлено T+T architects
Депо на улице Казакова: современное состояние, 2019
Предоставлено T+T architects
Депо на улице Казакова: современное состояние, 2019 Предоставлено T+T architects
Депо на улице Казакова: современное состояние, 2019
Предоставлено T+T architects

Собственно этот маршрут и стал отправной точкой проекта, инициированного соседним бизнес-центром в коллаборации с несколькими партнерами. Функциональный состав – разнообразный и этим современны, помимо павильонов предусмотрен коворкинг, небольшой офис. Плюс кафе и рестораны: офисов поблизости много и существующие не справляются, вероятно, что новые «места-где-поесть» будут иметь спрос.
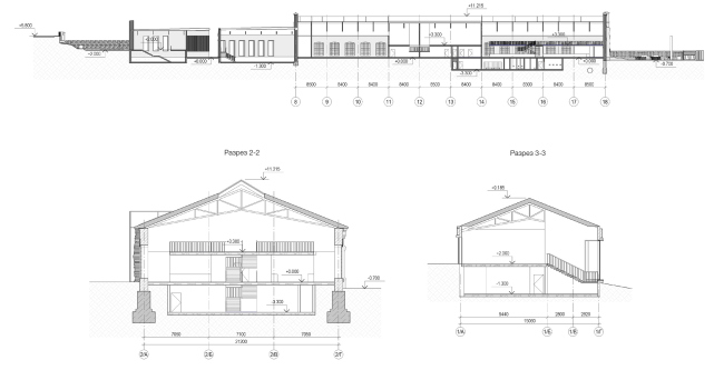
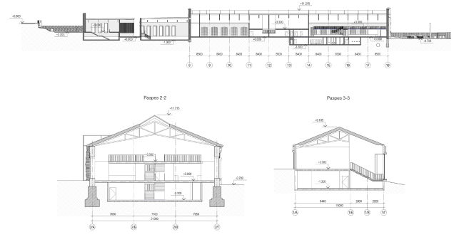
Концепция капитального ремонта бывшего вагонного депо. 2019. Разрезы
Концепция капитального ремонта бывшего вагонного депо. 2019. Разрезы
© Т+Т Architects

Маршрут сохранится, между «Ситиделом» и Депо, – но будет благоустроен. Со стороны Курского вокзала идущих встретит небольшая площадь, перед южном торцом Депо. Двигаясь дальше вдоль здания, минуем главный вход и пандус – рельеф повышается, – и приходим к еще одной площади со столиками кафе, у северного торца депо. Здесь архитекторы предлагают устроить лестницу, по которой можно будет подняться на мост, носящий гордое название «Казаковский путепровод», – с него, мы помним, открывается один из лучших видов на депо и по нему люди идут к «Арме», но сейчас лестницы нет и прохожим приходится обходить чуть дальше.
Концепция капитального ремонта бывшего вагонного депо. 2019. Участок проектирования © Т+Т Architects
Концепция капитального ремонта бывшего вагонного депо. 2019. Участок проектирования
© Т+Т Architects
Концепция капитального ремонта бывшего вагонного депо. 2019. Фасады © Т+Т Architects
Концепция капитального ремонта бывшего вагонного депо. 2019. Фасады
© Т+Т Architects
Концепция капитального ремонта бывшего вагонного депо. 2019. Благоустройство © Т+Т Architects
Концепция капитального ремонта бывшего вагонного депо. 2019. Благоустройство
© Т+Т Architects
Концепция капитального ремонта бывшего вагонного депо. 2019. Фасады 1,2 © Т+Т Architects
Концепция капитального ремонта бывшего вагонного депо. 2019. Фасады 1,2
© Т+Т Architects
Концепция капитального ремонта бывшего вагонного депо. 2019. Генплан © Т+Т Architects
Концепция капитального ремонта бывшего вагонного депо. 2019. Генплан
© Т+Т Architects

Здание вытянулось вдоль пешеходного маршрута и «сопровождает» идущего, предлагая ему смену впечатлений. Поэтому архитекторы подчеркнули протяженность здания – продлили корпус к северу, в сторону улицы Казакова: предложили разобрать несколько небольших и полуразвалившихся пристроек сарайного типа с этой стороны и заменить их новым объемом приблизительно того же масштаба, но цельным, с лаконичными фасадами, облицованными темным кирпичом удлиненного формата (Petersenkolumba) по типу плинфы используемой в древнем Риме, с окнами до земли и вкраплениями золотистых решеток. Новый объем поддерживает тему кирпича, но современной трактовке, где-то даже играя на контрасте ощущений и сопоставляя актуальный подход с историческим зданием, где кирпич терракотово-красный и крупный, характерный для начала XX века, и подчинен аркам окон и редким, но важным деталям в духе историзма.
Концепция капитального ремонта бывшего вагонного депо. 2019. Перспективный вид на новый корпус © Т+Т Architects
Концепция капитального ремонта бывшего вагонного депо. 2019. Перспективный вид на новый корпус
© Т+Т Architects
Концепция капитального ремонта бывшего вагонного депо. 2019. Фасады © Т+Т Architects
Концепция капитального ремонта бывшего вагонного депо. 2019. Фасады
© Т+Т Architects
Концепция капитального ремонта бывшего вагонного депо. 2019. Фасады © Т+Т Architects
Концепция капитального ремонта бывшего вагонного депо. 2019. Фасады
© Т+Т Architects

В собственно здании Депо планируется заменить покрытие, сейчас кровля держится на подпорках, – и встроить в конек кровли зенитные фонари, примерно на две трети его длины: они освещают фудкорт и арендные кинопавильоны. Кирпич вычинивают, очищают, покрывают гидрофобным составом; кровлю покрывают черным металлом, переплеты окон тоже черного цвета, – всё как принято в современных проектах реконструкции.
Концепция капитального ремонта бывшего вагонного депо. 2019. Фасады © Т+Т Architects
Концепция капитального ремонта бывшего вагонного депо. 2019. Фасады
© Т+Т Architects
Концепция капитального ремонта бывшего вагонного депо. 2019. Фасады © Т+Т Architects
Концепция капитального ремонта бывшего вагонного депо. 2019. Фасады
© Т+Т Architects

Но помимо базовых и в целом предсказуемых приемов проект насыщен целым рядом «фишек» – составных частей его индивидуальной образности, собранных здесь достаточно плотно, в числе прочего с целью усилить его отличия от других проектов. К примеру от Депо на Лесной, – говорится в экспликации.

Один из основных сюжетов – стеклянная «витрина» на протяженном фасаде со стороны основного мимоидущего потока. Здесь сохранился полуразрушенный щипец, остаток от разобранного поперечного объема: архитекторы разбирают стену еще больше, раскрывая вид интерьера на ширину примерно двух прясел, консервируют руинированные торцы и помещают все это, и разрыв, и руину – в стеклянный кожух, как будто бы «музеефицируя» осколок, консервируя след истории здания как напоминание о долгом периоде его запущенности и об исчезнувшем объеме. Романтическая инсталляция-руина – один из любимых приемов T+T architects, во многом иллюстрирующий их подход к историческим зданиям: стремление подчеркнуть их возраст и историю трансформаций. Подобный подход архитекторы применили в конкурсном проекте редевелопмента водонапорной башни в Щербинке – часть верха башни была намеренно фрагментирована для усиления контраста старого и нового, или даже для более явной визуализации столкновения противоположностей.
Концепция капитального ремонта бывшего вагонного депо. 2019. Перспективный вид на главный вход в корпус 1 © Т+Т Architects
Концепция капитального ремонта бывшего вагонного депо. 2019. Перспективный вид на главный вход в корпус 1
© Т+Т Architects
Концепция капитального ремонта бывшего вагонного депо. 2019. Фасады © Т+Т Architects
Концепция капитального ремонта бывшего вагонного депо. 2019. Фасады
© Т+Т Architects

Итак, стеклянный объем-витрина будет светиться по вечерам, да и днем демонстрировать прохожим пространства внутри и – своего рода декорацию в духе Юбера Робера – фрагмент руинированной стены. Но витрина не вход, вход левее, отмечен «лбом» спущенного с кровли черного металла, который служит фоном для заголовка.

Главный фасад расположен в торце, со стороны южной площади, перед трехчастным «базиликальным» фасадом Депо, вполне сохранным. Здесь расположились каменные ступеньки с врезанным пандусом, на площади – три линии рельс: с одной стороны они «уходят» под ступеньки, с другой обрываются в траве, завершаясь техногенными фонарями-двутаврами. От железной дороги площадь отделена металлическоим забором, имитирующим бетонный ПО-2, но тоже, как и кирпичная стена «витрины», намеренно руинированным: часть элементов превращена в решетку как-будто опалубки. Перед забором трансформируемый амфитеатр из деревянных брусков. С противоположной стороны пространство отделено от пешеходного пути технической будкой, оформленной элементами советского чугунного забора из пересекающихся кругов и меандра. Все здесь, как видим, полно воспоминаний и сюжетов, до предела насыщающих среду. От внешнего пространства площадь отделена кирпичным объемом: в нем спрятаны мусорные контейнеры, но решетчатые двери обращены наружу; внутрь – фактурная кирпичная стена, напоминающая новый объем офисов в северной части Депо.
Концепция капитального ремонта бывшего вагонного депо. 2019. Перспективный вид на торец корпуса 1 © Т+Т Architects
Концепция капитального ремонта бывшего вагонного депо. 2019. Перспективный вид на торец корпуса 1
© Т+Т Architects
Концепция капитального ремонта бывшего вагонного депо. 2019. Благоустройство © Т+Т Architects
Концепция капитального ремонта бывшего вагонного депо. 2019. Благоустройство
© Т+Т Architects
Концепция капитального ремонта бывшего вагонного депо. 2019. Благоустройство © Т+Т Architects
Концепция капитального ремонта бывшего вагонного депо. 2019. Благоустройство
© Т+Т Architects
Концепция капитального ремонта бывшего вагонного депо. 2019. Благоустройство © Т+Т Architects
Концепция капитального ремонта бывшего вагонного депо. 2019. Благоустройство
© Т+Т Architects
Концепция капитального ремонта бывшего вагонного депо. 2019. Благоустройство © Т+Т Architects
Концепция капитального ремонта бывшего вагонного депо. 2019. Благоустройство
© Т+Т Architects

Вторая площадь, перед улицей Казакова и запланированной архитекторами лестницей – поменьше; от железной дороги она прикрыта прорезным металлическим забором, две другие границы – здание Депо и склон под путепроводом. Его планируется озеленить, в край встроить скамейки, на площади расставить столики, артефакты, возможно, газовые фонари.
Концепция капитального ремонта бывшего вагонного депо. 2019. Перспективный вид на площадь с нового корпуса © Т+Т Architects
Концепция капитального ремонта бывшего вагонного депо. 2019. Перспективный вид на площадь с нового корпуса
© Т+Т Architects
Концепция капитального ремонта бывшего вагонного депо. 2019. Благоустройство © Т+Т Architects
Концепция капитального ремонта бывшего вагонного депо. 2019. Благоустройство
© Т+Т Architects
Концепция капитального ремонта бывшего вагонного депо. 2019. Благоустройство © Т+Т Architects
Концепция капитального ремонта бывшего вагонного депо. 2019. Благоустройство
© Т+Т Architects

Таким образом, само здание получает привлекательные функции, такие как кафе, коворкинг и киносъемочная площадка, которую время от времени можно будет использовать для концертов. Путь вдоль него также насыщен впечатлениями и эмоциями. Но в проекте здание Депо приобретает еще один фасад – вид с моста улицы Казакова. С этой стороны участок по диагонали пересекает силовая линия РЖД, одна опора стоит перед фасадом Депо, вторая вклинивается в объем северной пристройки. «Поскольку опоры нельзя убрать, мы решили обыграть их как артефакт», – говорит Сергей Труханов. Северная конструкция разместилась в нише желтого цвета, и поскольку соседний угол прорезан окном, в вечерней подсветке ясно вырисовывается цифра 1, входящая в ритмический резонанс с асимметричным торцом нового корпуса и симметричным контуром исторического.
Концепция капитального ремонта бывшего вагонного депо. 2019. Перспективный вид с ул. Казакова © Т+Т Architects
Концепция капитального ремонта бывшего вагонного депо. 2019. Перспективный вид с ул. Казакова
© Т+Т Architects
Концепция капитального ремонта бывшего вагонного депо. 2019. Фасады © Т+Т Architects
Концепция капитального ремонта бывшего вагонного депо. 2019. Фасады
© Т+Т Architects
Концепция капитального ремонта бывшего вагонного депо. 2019. Фасады 3,4 © Т+Т Architects
Концепция капитального ремонта бывшего вагонного депо. 2019. Фасады 3,4
© Т+Т Architects

Ниша решетчатой опоры работает как большая вывеска и наверняка будет привлекать внимание, обозначая – здесь, внизу, появилось новое интересное место. Дополнение Винзавода, Армы и Артплея в промзоне Курского вокзала, которая в Москве освоена лучше многих, но, как видим, пока все еще не до конца.

Проект переосмысления заброшенного депо на Курской сравнительно невелик, но очень привлекателен и «в тренде»: он принадлежит постиндустриальному обществу с его теорией малых дел, балансирует на грани благоустройства, урбанистики и реконструкции с сохранением. Историческое здание сопоставлено с современным и оба они «врастают» в городскую среду, становятся ее активной частью. Все это неудивительно для T+T architects, известных как работами урбанистической специфики, так и проектами, связанными с сохранением и переосмыслением промышленного наследия, интерес к которому архитекторы сохраняют постоянно, как и желание работать на стыке специальностей и сохранять многопрофильность. Надо признать, что сочетание разных тем и есть важное средство оживления города, превращения его в место, приятное для жизни – через обнаружение совершенно неказистых на вид «жемчужин» с общественным потенциалом.