Размещено на портале Архи.ру (www.archi.ru)

01.03.2019

Путь на Север

Алёна Кузнецова
Объект:
Архитектурно-градостроительная концепция развития села Кубенского
Адрес:
Россия, Вологодская область, , село Кубенское
Мастерская:
Творческое объединение «Дмитровка»
Авторский коллектив:
Руководитель авторского коллектива, архитектор: Иван Матвеев, архитекоры: Адриана Сильва Зобачева, Беата Данкеева, Ксения Яньшина

Творческое объединение «Дмитровка» разработало концепцию, в которой архитектурными средствами предлагает возродить село Кубенское и сделать его точкой притяжения туристов.

Архитектурно-градостроительная концепция развития села Кубенского. Яхт-клуб/детско-юношеская спортивная школа
Архитектурно-градостроительная концепция развития села Кубенского. Яхт-клуб/детско-юношеская спортивная школа
© ТО «Дмитровка»

Село Кубенское располагается чуть севернее Вологды, на пути в Ферапонтов и Кирилло-Белозерский монастыри, на берегу озера, по которому можно доплыть еще и до диковинного островного монастыря – Спасо-Каменного. Село старше самой Вологды, когда-то здесь была остановка на пути из варяг в греки, к нему присматривался Петр I, как к возможному месту строительства флота, славилось кружевом, рыбой и трактирами. Одним словом, большой туристический потенциал. Который, к сожалению, никак не используется: дома с историей ветшают, гостиниц, кафе или хотя бы причала, которые могли бы послужить поводом свернуть с трассы – нет, население пьет. При этом в довольно большом селе есть дом культуры и краеведческий музей, несколько церквей, каждый год проходит ярмарка «Кубенский торжок».
Храмовый ансамбль села Кубенского, историческая фотография
Храмовый ансамбль села Кубенского, историческая фотография
Предоставлено ТО «Дмитровка»
Архитектурно-градостроительная концепция развития села Кубенского. Примеры орнаментальной вышивки русского севера
Архитектурно-градостроительная концепция развития села Кубенского. Примеры орнаментальной вышивки русского севера
© ТО «Дмитровка»

По заказу администрации Вологодского района ТО «Дмитровка» подготовило для села концепцию развития: эмоциональную, поскольку архитекторы знакомы с местом и болеют за него, гибкую, основанную на местном колорите и традициях. При этом архитекторы делают село не столько туристическим, сколько просто приятным для жизни: предлагают жителям места для работы, досуга, общения.
 
Архитектурно-градостроительная концепция развития села Кубенского. Анализ
Архитектурно-градостроительная концепция развития села Кубенского. Анализ
© ТО «Дмитровка»

Согласно концепции, восстановлению исторической части сопутствует появление новых объектов, «векторов развития»: торговых рядов, яхт-клуба со спортивной школой и культурного центра. Все новые здания похожи: это легкие конструкции из дерева, которые могут адаптироваться под сезонные изменения – становиться меньше или больше, быть более открытыми или закрытыми. Скатные кровли, конструкции и прорезные орнаменты отдают дань местной культуре, не превращая ее в туристическую «клюкву».

В торговых рядах круглый год можно продавать товары местных фермеров. На первом этаже располагаются торговые модули, в галерее – зона с кафе, где готовят из тех же местных продуктов. Ряды предлагается разместить на въезде в село, а чуть в глубине рассредоточить ярко-красные павильоны с кружевным узором, которые заменят нынешние ларьки.
Архитектурно-градостроительная концепция развития села Кубенского. Торговые ряды
Архитектурно-градостроительная концепция развития села Кубенского. Торговые ряды
© ТО «Дмитровка»
Архитектурно-градостроительная концепция развития села Кубенского. Вариант 2. Перспективные виды
Архитектурно-градостроительная концепция развития села Кубенского. Вариант 2. Перспективные виды
© ТО «Дмитровка»
Архитектурно-градостроительная концепция развития села Кубенского. Варианты решения кровли
Архитектурно-градостроительная концепция развития села Кубенского. Варианты решения кровли
© ТО «Дмитровка»
Архитектурно-градостроительная концепция развития села Кубенского. Торговые павильоны
Архитектурно-градостроительная концепция развития села Кубенского. Торговые павильоны
© ТО «Дмитровка»

Также в центре села появится культурный центр, для которого разработали два варианта: второй чуть больше и кроме библиотеки, кинотеатра и кружковых включает выставочный зал. Все технические помещения вынесены в антресольный этаж. Русский север суров, поэтому здание защищают от холодов и вандалов ставни, они же помогают время от времени трансформировать фасад.
Архитектурно-градостроительная концепция развития села Кубенского. Сельский культурный центр
Архитектурно-градостроительная концепция развития села Кубенского. Сельский культурный центр
© ТО «Дмитровка»
Архитектурно-градостроительная концепция развития села Кубенского. Сельский культурный центр. Перспективные виды
Архитектурно-градостроительная концепция развития села Кубенского. Сельский культурный центр. Перспективные виды
© ТО «Дмитровка»
Архитектурно-градостроительная концепция развития села Кубенского. Сельский культурный центр
Архитектурно-градостроительная концепция развития села Кубенского. Сельский культурный центр
© ТО «Дмитровка»
Архитектурно-градостроительная концепция развития села Кубенского. Сельский культурный центр. Перспективные виды
Архитектурно-градостроительная концепция развития села Кубенского. Сельский культурный центр. Перспективные виды
© ТО «Дмитровка»
Архитектурно-градостроительная концепция развития села Кубенского. Сельский культурный центр
Архитектурно-градостроительная концепция развития села Кубенского. Сельский культурный центр
© ТО «Дмитровка»
Архитектурно-градостроительная концепция развития села Кубенского. Сельский культурный центр. Схема открытия/ закрытия фасадных ставен
Архитектурно-градостроительная концепция развития села Кубенского. Сельский культурный центр. Схема открытия/ закрытия фасадных ставен
© ТО «Дмитровка»

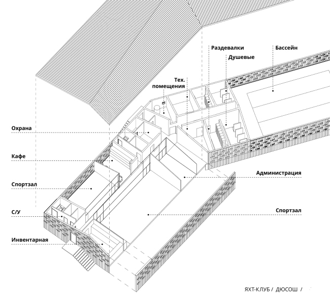
Яхт-клуб по форме напоминает «галочку» и раскрывается панорамными окнами, впрочем тоже защищенными ставнями, на озеро Кубенское. Две части здания объединяет скатная кровля, которая также формирует крыльцо и узкую галерею. Два крыла насыщены функциями: здесь могут быть учебные аудитории, спортивный зал, бассейн, кафе. Вместе с культурным центром яхт-клуб мог бы не только заметно разнообразить жизнь селян, но и привлекать гостей из Вологды и окрестных деревень.
Архитектурно-градостроительная концепция развития села Кубенского. Яхт-клуб/детско-юношеская спортивная школа
Архитектурно-градостроительная концепция развития села Кубенского. Яхт-клуб/детско-юношеская спортивная школа
© ТО «Дмитровка»
Архитектурно-градостроительная концепция развития села Кубенского. Яхт-клуб / детско-юношеская спортивная школа. Схема открытия/ закрытия фасадных ставен
Архитектурно-градостроительная концепция развития села Кубенского. Яхт-клуб / детско-юношеская спортивная школа. Схема открытия/ закрытия фасадных ставен
© ТО «Дмитровка»
Архитектурно-градостроительная концепция развития села Кубенского. Яхт-клуб/детско-юношеская спортивная школа. Перспективные виды
Архитектурно-градостроительная концепция развития села Кубенского. Яхт-клуб/детско-юношеская спортивная школа. Перспективные виды
© ТО «Дмитровка»
Архитектурно-градостроительная концепция развития села Кубенского. Яхт-клуб
Архитектурно-градостроительная концепция развития села Кубенского. Яхт-клуб
© ТО «Дмитровка»
Архитектурно-градостроительная концепция развития села Кубенского. Спортивная школа
Архитектурно-градостроительная концепция развития села Кубенского. Спортивная школа
© ТО «Дмитровка»

Концепция «Дмитровки» представляется мягкой, но эффективной и универсальной, – ее, с поправками, можно распространять и на другие подобные Кубенскому места. Коих, подозреваем, в нашей стране огромное количество.
Архитектурно-градостроительная концепция развития села Кубенского. Формообразование
Архитектурно-градостроительная концепция развития села Кубенского. Формообразование
© ТО «Дмитровка»
Архитектурно-градостроительная концепция развития села Кубенского. Яхт-клуб/детско-юношеская спортивная школа. Формообразование
Архитектурно-градостроительная концепция развития села Кубенского. Яхт-клуб/детско-юношеская спортивная школа. Формообразование
© ТО «Дмитровка»
Архитектурно-градостроительная концепция развития села Кубенского. Яхт-клуб/детско-юношеская спортивная школа. Типовые сечения
Архитектурно-градостроительная концепция развития села Кубенского. Яхт-клуб/детско-юношеская спортивная школа. Типовые сечения
© ТО «Дмитровка»
Архитектурно-градостроительная концепция развития села Кубенского. Торговые павильоны
Архитектурно-градостроительная концепция развития села Кубенского. Торговые павильоны
© ТО «Дмитровка»
Архитектурно-градостроительная концепция развития села Кубенского. Яхт-клуб/детско-юношеская спортивная школа. Схема открытия / закрытия фасадных ламелей
Архитектурно-градостроительная концепция развития села Кубенского. Яхт-клуб/детско-юношеская спортивная школа. Схема открытия / закрытия фасадных ламелей
© ТО «Дмитровка»
Архитектурно-градостроительная концепция развития села Кубенского. Сельский культурный центр.Схема открывания / закрывания фасадных ставен
Архитектурно-градостроительная концепция развития села Кубенского. Сельский культурный центр.Схема открывания / закрывания фасадных ставен
© ТО «Дмитровка»
Архитектурно-градостроительная концепция развития села Кубенского. Анализ
Архитектурно-градостроительная концепция развития села Кубенского. Анализ
© ТО «Дмитровка»