Размещено на портале Архи.ру (www.archi.ru)

16.09.2008

В контексте модернизма

Наталья Коряковская
Объект:
Жилой комплекс на сочинской «Мамайке»
Адрес:
Россия, Сочи.
Мастерская:
ПТАМ Виссарионова
Авторский коллектив:
ПАМ Виссарионова. Архитекторы: Ю.Г.Виссарионов, К.М.Савкин, Ю.А.Филатов, Д.В.Зиборов и др.

ПАМ Виссарионова разработало еще один «курортный» проект – модернистский жилой комплекс для сочинского района «Мамайка». Три корпуса, напоминающие в плане бумеранги, водружены на террасное плато-стилобат и покрыты «ячеистой одеждой».

Жилой комплекс на сочинской «Мамайке» © ПТАМ Виссарионова
Жилой комплекс на сочинской «Мамайке» © ПТАМ Виссарионова

Мастерская Юрия Виссарионова выполнила уже несколько проектов для курортных городов, о некоторых из них (Горы, море и классическая архитектура; «Оцифровка» горного пейзажа) мы уже писали. Нынешний создавался для бурно застраиваемого сейчас города Сочи, он расположен по соседству с Волжским районом и Анапской улицей. Условия строительства характерны для приморских городов – пересеченный рельеф, из-за которого перепад на участке составляет более 10 м, живописные горные отроги, хаотичная малоэтажная застройка. Правда, посреди 2-5-этажных домиков неожиданно вырастает «кукурузный початок» гостиницы «Ставрополь» – заметное произведение советского модернизма 1970-х. Это основной акцент местности, и на него, главным образом, ориентирована архитектура будущего жилого комплекса. Типичный низкорослый вид окружающей застройки в последнее время динамично меняется – между гостиницей и проектируемым объектом уже вырастает высотный жилой дом, вдалеке, у подножия горы виднеется еще один высотный квартал. Жилой комплекс Виссарионова сомасштабен этим доминантам, но не превышает высоту «Ставрополя».

Композиционное решение, как пояснили авторы проекта, навеяно образом «бумеранга,  залетевшего на вершину горного отрога». Все три корпуса «фиксируют» его случайные положения. Дважды бумеранг «упал» практически на одно и тоже место – здесь 22-этажный корпус «Б» пересекается с 6-тиэтажным, развернувшись «рогами» в разные стороны, на север и юг соответственно. Второй 22-этажный корпус «А» отделился от остальных, повернувшись к ним перпендикулярно. «Бумеранги» приземлились на плато – многоярусный стилобат-парковку, сложная геометрия которого явилась отзвуком замысловатой конфигурации самого участка. Помимо трех корпусов в ансамбле есть еще овальный в плане общественный блок в северо-западной части участка. Живописные контуры планов, ломаные линии площадки стилобата и округлые крыш, сложная пластика самих зданий подсказаны природным окружением – причудливыми формами горных кряжей.

По словам архитекторов, образ зданий навеян и архитектурой гостиницы «Ставрополь» – в новом комплексе Юрия Виссарионова отчетливо прослеживаются отзвуки модернизма 1970-х. Причем здесь выстроен целый визуально-ассоциативный ряд из завуалированных намеков на знаковые произведения этого периода. Пластика корпусов, плавно согнутых посередине напоминает дома-книжки на Новом Арбате, только здесь этот мотив превращается в более живописный и даже несколько игровой. Одна «книжка» (корпус «Б») врезается в другую пониженную, а сами высотные корпуса имеют не две ровные половинки, а понижаются каскадом, следуя капризам рельефа. Другая метафора связана с важнейшим модернистским принципом «дома на ножках». Здесь все три корпуса поставлены на опоры, напоминающие знаменитые московские «дома-сороконожки» Андрея Меерсона. К земле опускаются остекленные лестнично-лифтовые шахты и входы, количество которых совпадает с количеством внутренних секций и галерей.

Еще один уровень ассоциаций, вызванный характерной ячеистой структурой фасадов, связан с японским модернизмом и конкретно с метаболизмом. Круглые – квадратные  ячейки-лоджии вызывают в памяти дома-трансформеры японских архитекторов Кикутаке, Курокавы и др., с такой же плотной и масштабной сеткой, связанной с необходимостью высокой плотности расселения, что для сочинского жилья эконом – класса тоже актуально.

Но все это лишь воображаемые связи, помимо которых есть и вполне реальный диалог комплекса Юрия Виссарионова и гостиницы «Ставрополь», не как некоего знака модернизма, а –  конкретного произведения, составляющего ближайший архитектурный контекст. Можно заметить, как ряд мотивов гостиницы получили отражение в жилом комплексе. Помимо ячеистой «одежды» санатория, были переосмыслены его обширные лоджии в ширину этажей, превратившиеся у Виссарионова в сетку из квадратных и круглых отверстий глубиной 2 метра. Местами сеть разрывается, обнажая остекленные плоскости тех же квартир, только без лоджий или общественных помещений «на сгибе» корпусов. В облике гостиницы и жилого комплекса похожи также навершия, у Виссарионова они функционально переосмыслены – под «крылатыми» навесами расположились смотровые площадки. 

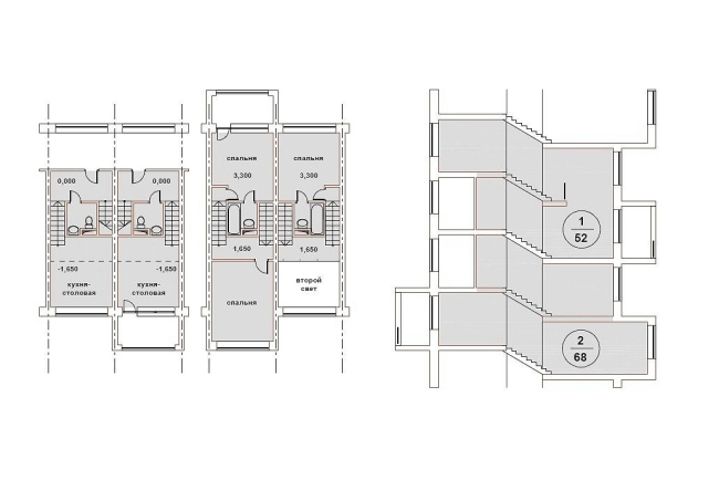
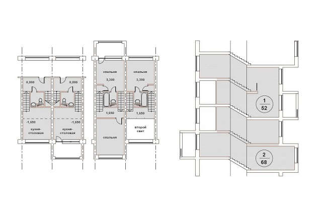
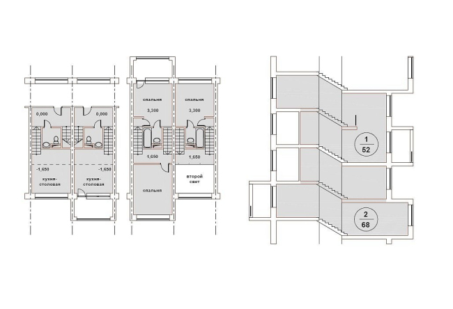
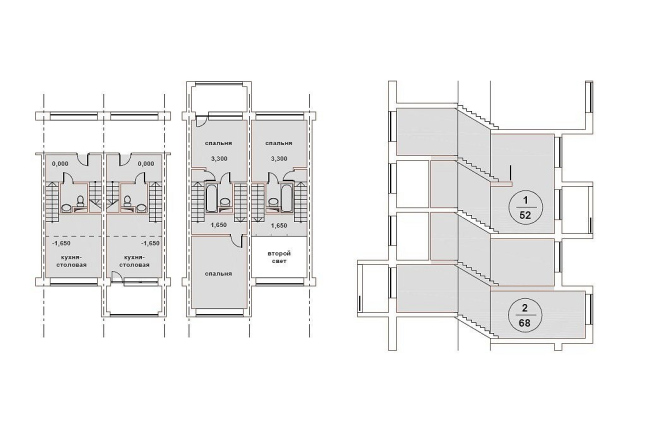
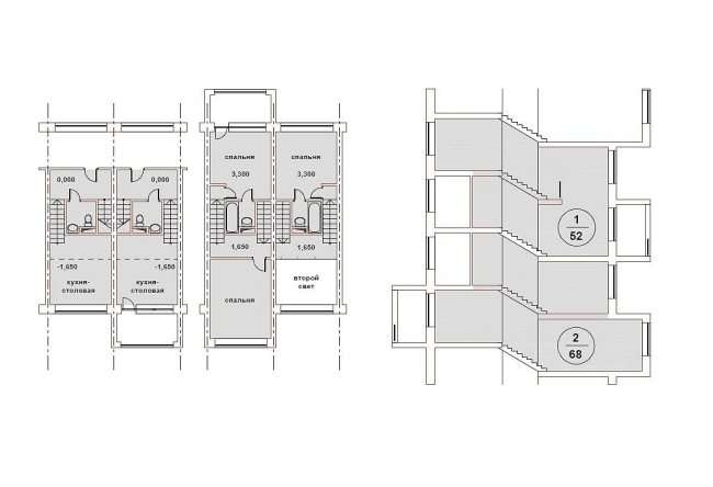
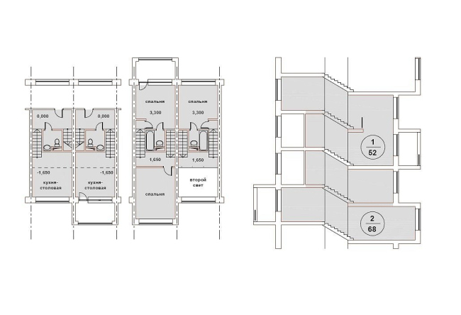
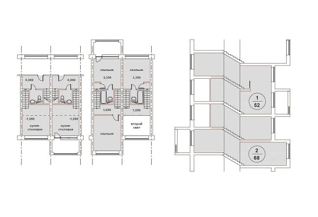
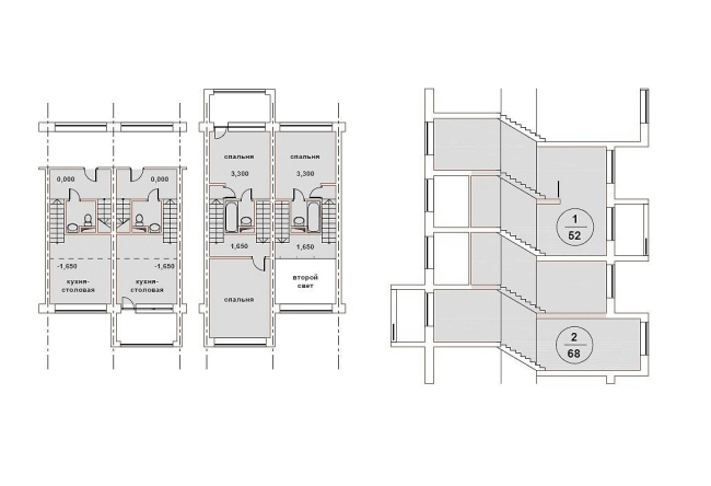
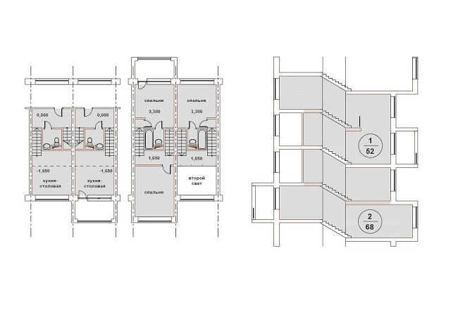
Всматриваясь в боковой фасад гостиницы, можно обнаружить сходство между структурой его фасадов, образованной диагоналями внешних лестниц и внутренней структурой нового комплекса. Его разрез очень напоминает этот фасад. Каждый корпус состоит из галерейной и секционной частей: крыло в сторону моря – галерейное, противоположное – секционное. Это позволяет добиться наиболее выигрышной ориентации квартир. Если при секционной планировке, с которой мы встречаемся довольно часто, квартиры организованы по принципу лестничных клеток, то в противоположном крыле через два этажа со стороны двора проходят галереи. Сами квартиры устроены с перепадом в 1/2 этажа, что позволяет уменьшить длину внутриквартирных лестниц. Через 2-3 этажа состав квартир меняется – они либо 2-х, либо 3-х комнатные, причем существует несколько вариантов их планировки, есть двухуровневые квартиры, есть со вторым светом и.т.д.

Сочинский проект мастерской Виссарионова привлекателен скрупулезным подходом к контексту. Эта архитектура не появляется «вдруг», она глубоко закономерна на этом месте. История приморских курортов юга России – это не только сталинские санатории, о которых Юрий Виссарионов «вспоминал» в  ялтинском проекте и в реконструкции сочинской гостиницы «Камелия/Интурист», но и более современная архитектура, вроде «Ставрополя», и именно она формирует образ данного места, который авторы проекта не стали оспаривать, а подчинились ему. Этот «реверанс» в сторону модернизма замечателен еще и тем, что обращен к наследию 1970-х, значимость которого до сих пор остается без внимания.

Жилой комплекс на сочинской «Мамайке» © ПТАМ Виссарионова
Жилой комплекс на сочинской «Мамайке» © ПТАМ Виссарионова
Жилой комплекс на сочинской «Мамайке» © ПТАМ Виссарионова
Жилой комплекс на сочинской «Мамайке» © ПТАМ Виссарионова
Врисовка
Врисовка
Перспектива
Перспектива
Разрез
Разрез
Схемы квартир
Схемы квартир
Генплан
Генплан