Размещено на портале Архи.ру (www.archi.ru)

01.02.2019

Золотая россыпь

Дарья Горелова
Объект:
Жилой дом «Тwin House»
Адрес:
Россия, Люберцы. ул. Кирова, микр-н 35 АБ
Мастерская:
АБ «Богачкин и Богачкин»
Авторский коллектив:
Богачкин Вячеслав Васильевич, Богачкин Никита Вячеславович, Богачкина Анна Евгеньевна, Архипов Александр Евгеньевич, Ахлебинина Юлия Игоревна, Пашкова Татьяна Алексеевна, Якушева Ольга Анатольевна, Песина Наталья Юрьевна, ГИП: Камышова Оксана Викторовна

Две башни темного кирпича, связанные перемычкой в уровне 2 и 3 этажей, кажутся близнецами. Они заметны на фоне пестроватой, в основном типовой застройки благодаря темному кирпичу и блестящим золотистым акцентам.

Жилой дом «Тwin House»
Жилой дом «Тwin House»
© АБ «Богачкин и Богачкин»

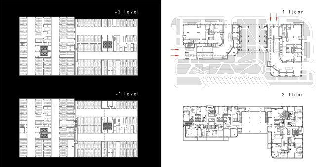
Две жилые башни высотой по 22 этажа строятся в Люберцах на улице Кирова недалеко от открывшегося 5 лет назад метро Жулебино. Выход из метро от архитектора Леонида Борзенкова, надо признать, достаточно красив, но окружающая панельная застройка московского пригорода, некогда знаменитого клетчатыми штанами, скорее наводит уныние. Впрочем окружение двух строящихся домов мастерской архитекторов Богачкиных не так уж плохо: напротив, через улицу, – ряды пятиэтажек, утопающих в почти что парковой зелени; рядом зеленая же территория больницы.
Жилой дом «Тwin House»
Жилой дом «Тwin House»
© АБ «Богачкин и Богачкин»

И все же достаточно очевидно, что задачей архитекторов было облагородить местность пусть высокоплотной, но авторской архитектурой.

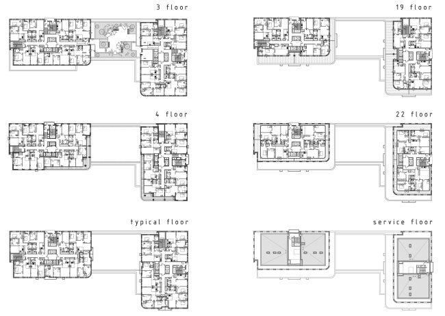
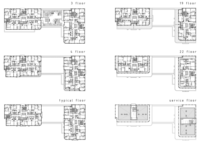
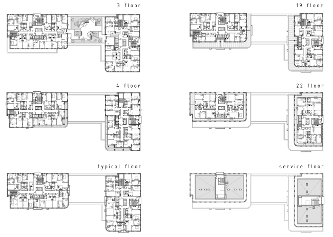
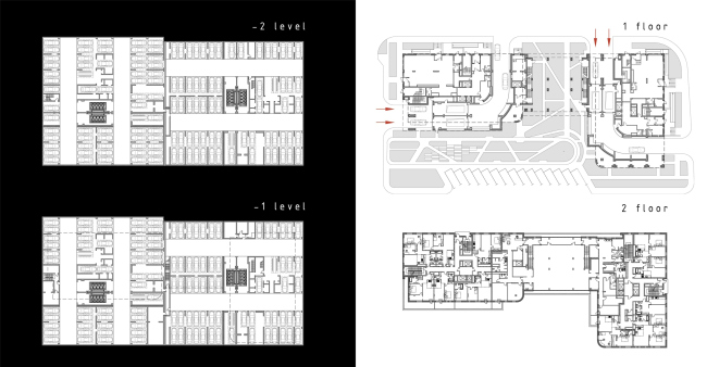
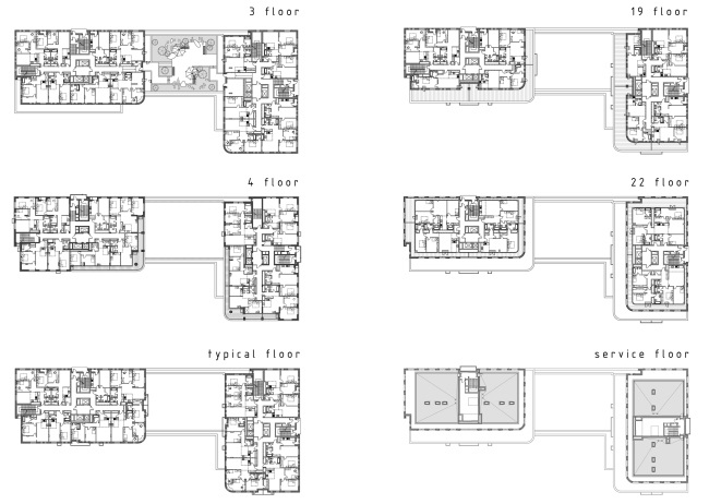
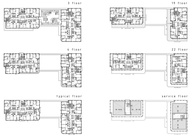
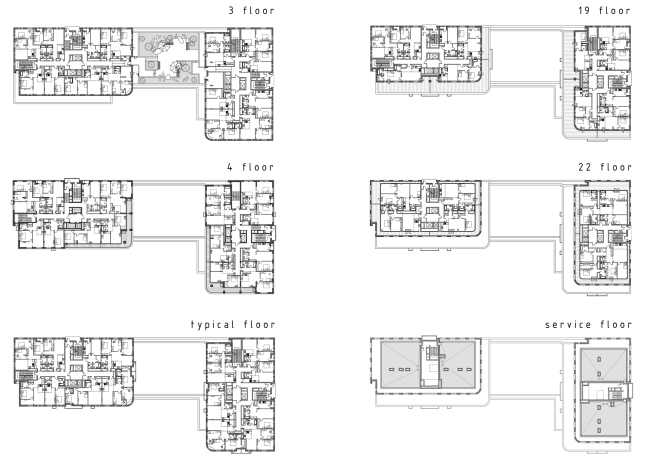
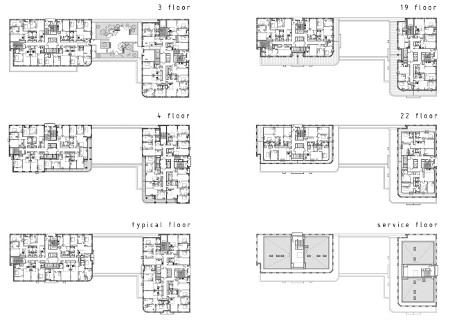
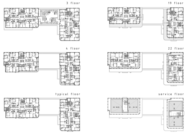
Два слегка вытянутых в плане дома-башни поставлены Г-образно на пятне автоматизированной двухъярусной подземной парковки, которая обеспечивает машиноместами где-то 80% квартир комплекса. Перемычка между домами – фитнес-центр, в первом ярусе приподнят на двух рядах прямоугольных опор, открывающих широкий проход/проезд на противоположную сторону двора. Такого рода перемычки, демонстрирующие возможности железобетона, были популярны в московской архитектуре послевоенного модернизма, что навевает некоторые ностальгические ассоциации. Впрочем, в Европе, Америке и Сингапуре они из моды и не выходили. На кровле двухъярусной фитнес-перемычки запланировано озеленение – приподнятый над двором сквер. Вероятное озеленение также видим на террасах перед квартирами 19 этажей в обеих башнях.
Жилой дом «Тwin House»
Жилой дом «Тwin House»
© АБ «Богачкин и Богачкин»
Жилой дом «Тwin House»
Жилой дом «Тwin House»
© АБ «Богачкин и Богачкин»
Жилой дом «Тwin House»
Жилой дом «Тwin House»
© АБ «Богачкин и Богачкин»
Жилой дом «Тwin House»
Жилой дом «Тwin House»
© АБ «Богачкин и Богачкин»
Жилой дом «Тwin House»
Жилой дом «Тwin House»
© АБ «Богачкин и Богачкин»
Жилой дом «Тwin House»
Жилой дом «Тwin House»
© АБ «Богачкин и Богачкин»

Благодаря перемычке дома немного похожи на сиамских близнецов, отделившихся друг от друга – почти, но не вполне. Их братское почти зеркальное сходство подчеркнуто архитектурными средствами: не только общим сходством, но и «отзеркалированными» скругленными углами – один напротив другого, и столь же похожими, хотя и не вполне зеркальными врезами остекления в уровне 4 этажа над перемычкой. Вырезы акцентированы блестящими угловыми колоннами – раскрытыми фрагментами угловых опор каркаса, которые служат фасадной изюминкой, также как и решетки открытых металлических балконов, темный облицовочный кирпич и золотисто-желтые рамки-откосы окон.
Жилой дом «Тwin House»
Жилой дом «Тwin House»
© АБ «Богачкин и Богачкин»
Жилой дом «Тwin House»
Жилой дом «Тwin House»
© АБ «Богачкин и Богачкин»
Жилой дом «Тwin House»
Жилой дом «Тwin House»
© АБ «Богачкин и Богачкин»

Архитектура двух башен определенно выделяется на фоне типового, недорогого и невнятного окружения; будем надеяться, что показанный на риелторском сайте ЖК иной, более скучный цвет облицовочного кирпича, колонн и рамок окажется временной идеей заказчика. Или вторым вариантом. Так или иначе, представленная архитекторами темно-золотистая версия проекта выглядит более «звонкой».
Жилой дом «Тwin House»
Жилой дом «Тwin House»
© АБ «Богачкин и Богачкин»

 
Жилой дом «Тwin House»
Жилой дом «Тwin House»
© АБ «Богачкин и Богачкин»
Жилой дом «Тwin House»
Жилой дом «Тwin House»
© АБ «Богачкин и Богачкин»
Жилой дом «Тwin House»
Жилой дом «Тwin House»
© АБ «Богачкин и Богачкин»
Жилой дом «Тwin House»
Жилой дом «Тwin House»
© АБ «Богачкин и Богачкин»