Размещено на портале Архи.ру (www.archi.ru)

13.02.2019

Цеппелин Романа Леонидова

Лара Копылова
Объект:
Жилой дом ZEPPELIN
Адрес:
Россия, Московская обл.,
Архитектор:
Роман Леонидов
Мастерская:
АБ Романа Леонидова
Авторский коллектив:
Роман Леонидов

Архитектор Роман Леонидов назвал загородный дом ZEPPELIN в честь одноименных дирижаблей, которые часто летают в графике знаменитого Ивана Леонидова, тёзки Романа. Техно-романтика подсказала архитектурное решение.

Романтика дирижаблей, поднимавшихся на высоту в несколько тысяч метров, совершавших кругосветные перелеты уже в 1920-х (именно «Граф Цеппелин» его и совершил) в этом доме чувствуется. Во-первых, дугообразная, с обратным наклоном, стеклянная стена гостиной (центрального атриума) прямо напоминает нижнюю часть дирижабля, даже рисунок расстекловки – как у гондолы цеппелина. Во-вторых, в этом доме столько палуб (язык не поворачивается назвать их террасами), трамплинов, винтовых лестниц, мачт и прочих капитанских мостиков, что игра в корабль\дирижабль\звездолет подразумевается. Можно представить, что эта сложная машина – часть круглого звездолета, потому что в общем абрисе плана дом является сегментом круга.

Жилой дом ZEPPELIN
Жилой дом ZEPPELIN
© Архитектурное бюро Романа Леонидова
Жилой дом ZEPPELIN
Жилой дом ZEPPELIN
© Архитектурное бюро Романа Леонидова
Жилой дом ZEPPELIN
Жилой дом ZEPPELIN
© Архитектурное бюро Романа Леонидова
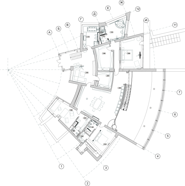
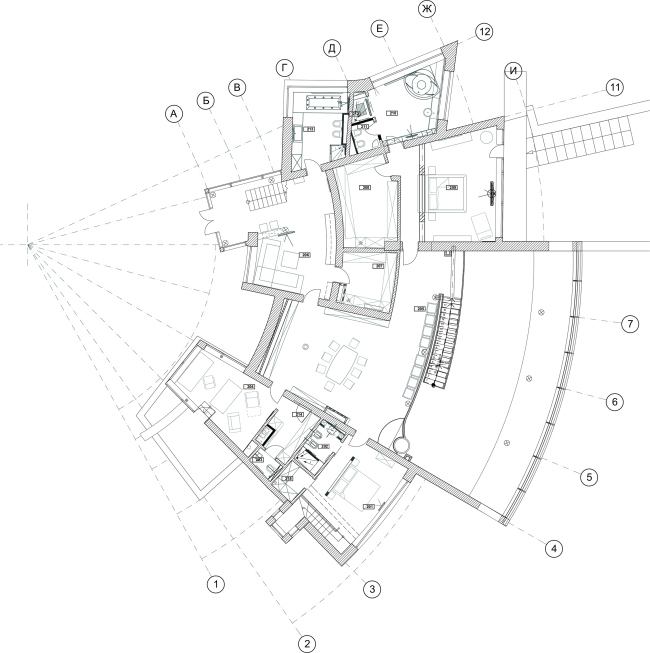
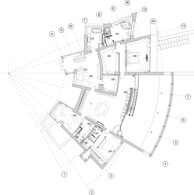
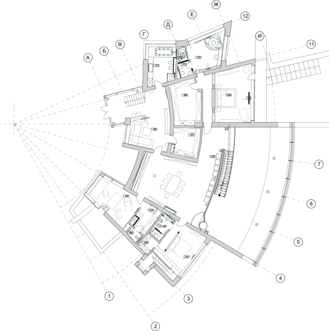
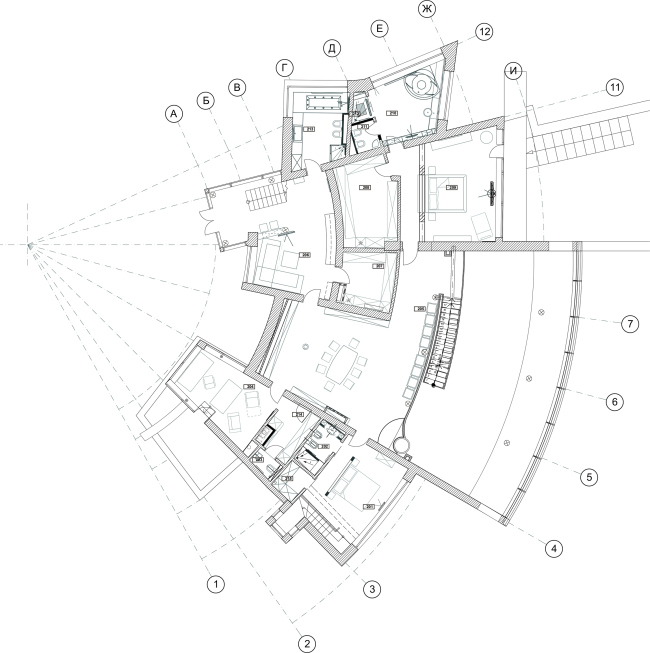
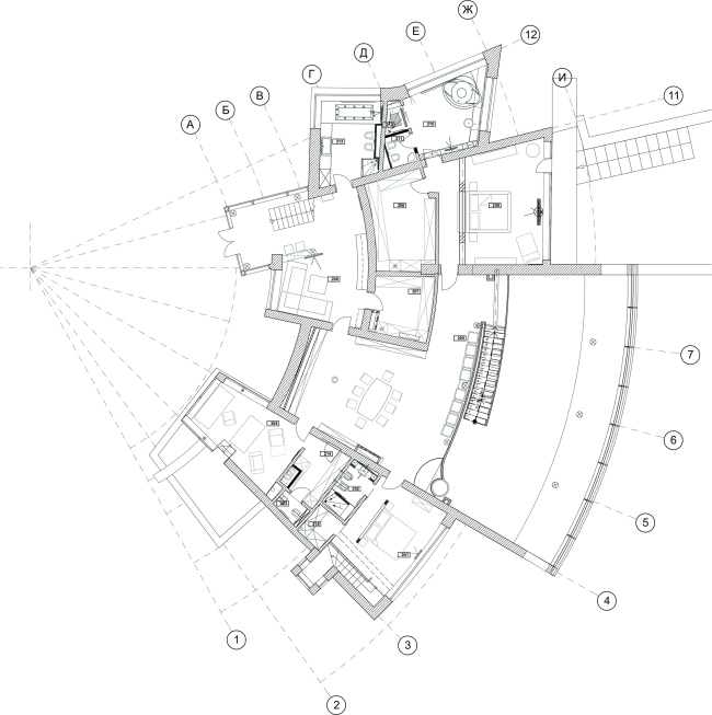
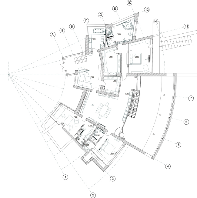
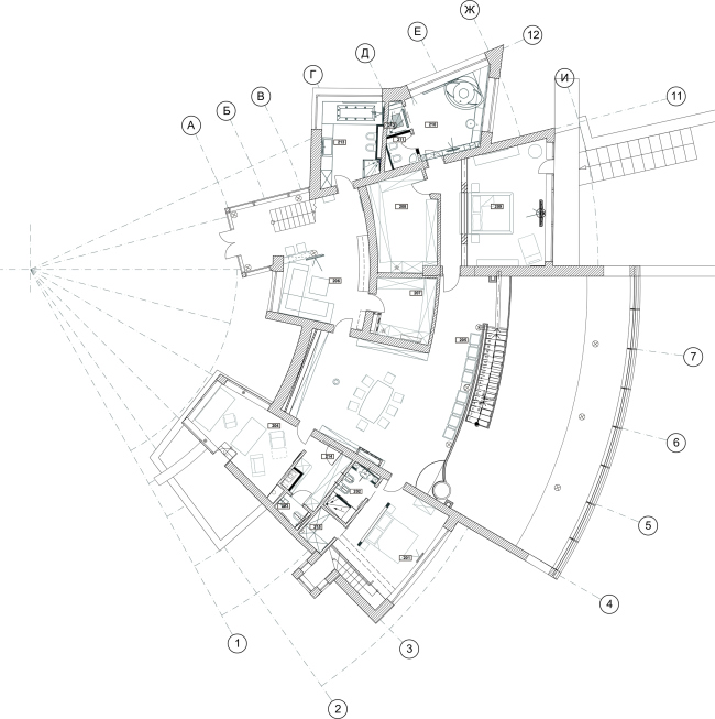
Жилой дом ZEPPELIN. План 1 этажа
Жилой дом ZEPPELIN. План 1 этажа
© Архитектурное бюро Романа Леонидова
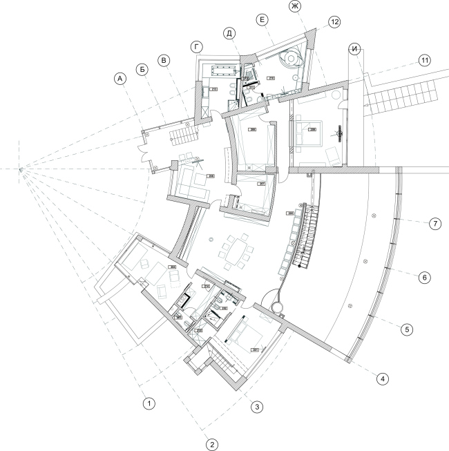
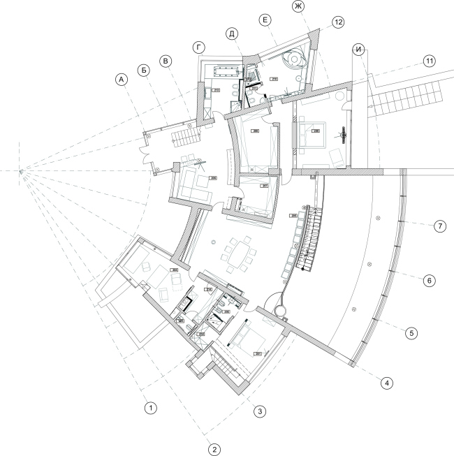
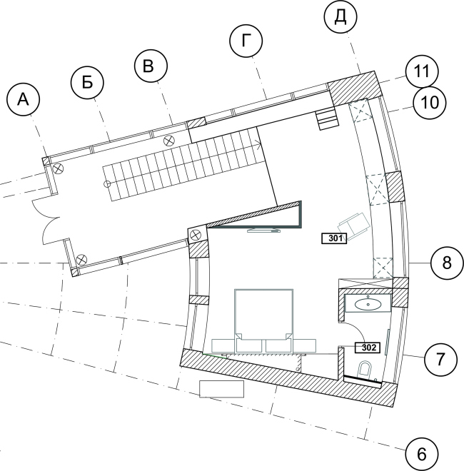
Жилой дом ZEPPELIN. План 2 этажа
Жилой дом ZEPPELIN. План 2 этажа
© Архитектурное бюро Романа Леонидова
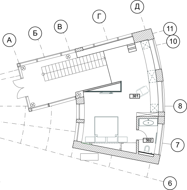
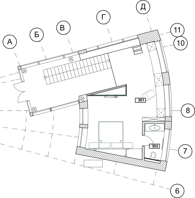
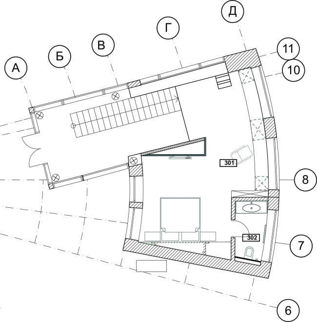
Жилой дом ZEPPELIN. План 3 этажа
Жилой дом ZEPPELIN. План 3 этажа
© Архитектурное бюро Романа Леонидова

Но все, как водится, прозаичней. Сложный план и многосоставный объем дома объясняются задачей расположить его на небольшом участке неправильной формы. Надо было закрыться от соседей, и архитектор с заказчиком приняли нетривиальное решение: парадные части – стеклянный двухэтажный атриум с гостиной и стеклянный бассейн – ориентировать на подъездную дорогу, а к соседям повернуться более закрытыми жилыми помещениями.

На первом этаже находятся гостиная (102 м2), столовая (43 м2), бассейн (172 м2), кухня (52 м2), образуя просторное и светлое парадное пространство для приемов. В другой части дома расположены две гостевых комнаты с санузлом и кабинет, тоже очень просторный (40 м2). На втором этажа устроена спальня хозяев с выходом на террасу и спуском в бассейн, и две гостевых. Здесь же находится большая библиотека – пассеистическая типология, сохраняющаяся лишь в домах гуманитариев.
Жилой дом ZEPPELIN
Жилой дом ZEPPELIN
© Архитектурное бюро Романа Леонидова
Жилой дом ZEPPELIN
Жилой дом ZEPPELIN
© Архитектурное бюро Романа Леонидова
Жилой дом ZEPPELIN
Жилой дом ZEPPELIN
© Архитектурное бюро Романа Леонидова

Для сына владельцев на втором этаже сделано нечто вроде капитанской рубки – стеклянные апартаменты, «летящие» над землей. Должен же быть капитан у дирижабля! Если отвлечься от романтики, то это прозрачный бельведер в техностиле, причем двухэтажный, в высоту второго и третьего этажа. Открытая стеклянная часть служит детской, а спальня и ванная спрятаны в глубине. С третьего этажа есть еще и выход на крышу.

Когда дом планировался, мальчику было 13 лет. Изначально «ZEPPELIN» был предназначен для двух поколений семьи, но, поскольку строился он около десяти лет, за это время успело наметиться третье поколение, сейчас и Роману Леонидову заказали расширение дома – проектирование вот-вот начнется.
Жилой дом ZEPPELIN
Жилой дом ZEPPELIN
© Архитектурное бюро Романа Леонидова
Жилой дом ZEPPELIN
Жилой дом ZEPPELIN
© Архитектурное бюро Романа Леонидова
Жилой дом ZEPPELIN
Жилой дом ZEPPELIN
© Архитектурное бюро Романа Леонидова

Дом настолько сложный и многосоставный, что каждый из фасадов в каком-то смысле непредсказуем, как острый поворот сюжета. Образ дома характеризует супер-пластика: множество уровней, пересекающихся объемов, консолей, далеко вынесенных на металлических опорах, – создают впечатление разнообразных потоков энергии, работающих сил, напряжения стальных мышц или частей механизма.
Жилой дом ZEPPELIN. Фасады
Жилой дом ZEPPELIN. Фасады
© Архитектурное бюро Романа Леонидова
Жилой дом ZEPPELIN
Жилой дом ZEPPELIN
© Архитектурное бюро Романа Леонидова
Жилой дом ZEPPELIN
Жилой дом ZEPPELIN
© Архитектурное бюро Романа Леонидова
Жилой дом ZEPPELIN
Жилой дом ZEPPELIN
© Архитектурное бюро Романа Леонидова
Жилой дом ZEPPELIN
Жилой дом ZEPPELIN
© Архитектурное бюро Романа Леонидова

Единая горизонтальная сетка в обработке светлого камня собирает сложные формы дома в единое целое. К техногенному корабельно-дирижаблевому образу «просится» алюминиевая обшивка, но заказчики предпочли более солидный вариант – камень, что создало некоторое противоречие между имманентной «вечностью» – ретроспективностью известняка как камня, и динамикой техногенно-романтических форм. Так когда-то архитекторы русского авангарда имитировали с помощью традиционного кирпича инновационные бетонные конструкции – более традиционный материал притворялся более инновационным. Здесь камень «притворяется», и надо сказать, довольно успешно, алюминием, и пожалуй, архитектуре это идет на пользу, поскольку сулит благородное старение. Дом становится своего рода памятником цеппелину, более вечным, с более высоким статусом, чем само техническое изделие.
Жилой дом ZEPPELIN
Жилой дом ZEPPELIN
© Архитектурное бюро Романа Леонидова
Жилой дом ZEPPELIN
Жилой дом ZEPPELIN
© Архитектурное бюро Романа Леонидова