Размещено на портале Архи.ру (www.archi.ru)

29.12.2018

Ориентир для архитектуры – ландшафт

Тигран Арутюнян

Образовательный центр СМАРТ в Лорийской области Армении по проекту ливанского бюро Studio Paul Kaloustian.

В декабре 2018-го The Economist назвал Армению страной года, ссылаясь, естественно, на яркие политические перемены в стране – «революцию любви». В тот же день куратором венецианской архитектурной биеннале–2020 был назначен ливанский архитектор Хашим Саркис. Для обеих стран это по-своему беспрецедентные события, которые вывели их на первые полосы СМИ. И между этими, казалось бы, ничем не связанными эпизодами можно проследить своеобразную метафорическую связь: самым важным архитектурным событием года в Армении стал реализованный проект архитектора из Ливана.

В мае этого года в Лорийской области на севере страны открылся образовательный центр СМАРТ. Важный, даже уникальный факт, который понятным образом оказался в тени политических перемен, с которыми новое учреждение, конечно, никак не связано: его здание начали строить еще в 2016. Зарубежные благотворительные фонды, основанные в ответ на существующую в стране социально-экономической ситуацию, создают современные образовательные центры, которые становятся локальными катализаторами обновления общественной инфраструктуры. Архитектура в этом контексте служит для этих преобразований важным инструментом.

Идея открытия центра принадлежит американскому бизнесмену армянского происхождения Гаро Армену. В 2003 он основал благотворительный фонд «Дети Армении», основная цель которого – содействие развитию сельских поселений в стране, привлекая высокие технологии, прогрессивные образовательные методы и т.д. Центр СМАРТ в Лорийской области стал кульминацией в многолетней истории внешкольных образовательных программ фонда. Это первый реализованный фондом «Дети Армении» проект постройки «с нуля». До этого организацией были открыты множество центров – но все они располагались в отремонтированных зданиях детских садов, школ и других объектов социальной инфраструктуры.

Центр СМАРТ по проекту ливанского бюро Поля Калустяна расположен в нетронутых живописных горных ландшафтах Лорийской области. Место строительства было выбрано так, чтобы центр мог равномерно обслуживать как минимум шесть сел (Дсех, Дебет, Егегнут, Вахагни, Дзорагюх, Чкалов) в диаметре 10 километров.

Центр СМАРТ в Лорийской области © Ieva Saudargaite
Центр СМАРТ в Лорийской области © Ieva Saudargaite


Лорийская область – одна из самых проблемных в экономическом плане, отток населения оттуда считается одним из самых высоких в Армении. Мысль об открытии центра СМАРТ связана в том числе и с решением этой задачи – в перспективе остановить отток населения, найдя способы для продуктивной деятельности жителей в родной местности.

Смелое решение здания связано с оптимистичным взглядом автора проекта, Поля Калустяна, на будущее: новое поколение должно гордится не только прошлым и демонстрировать не только эту гордость; молодежь не должна смотреть только назад, только на средневековые церкви. Подход этот – явно модернистский, особенно на фоне общей картины постсоветской армянской архитектуры, сделавшей своим новым «проектом» развитие и реорганизацию парадигм прошлых веков (эта позиция, заметим, характерна не только для Армении, но и для многих других бывших республик СССР).

В основе идеи проекта лежит природа и даруемое ею вдохновение. Калустян стремился построить здание, которое будет восприниматься как часть ландшафта, органично с ним сосуществовать. Поэтому он сознательно отдал архитектуре второстепенную, фоновую роль, она «работает» для природы, а сама природа становится, по его словам, ориентиром для здания.

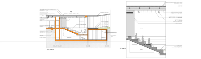
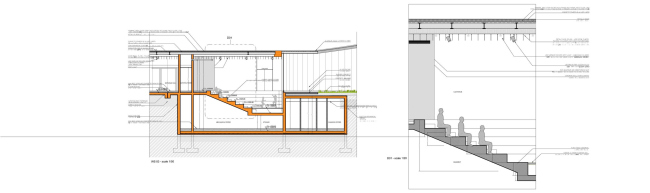
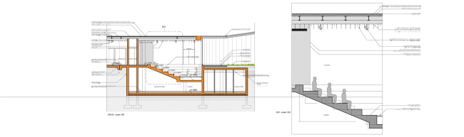
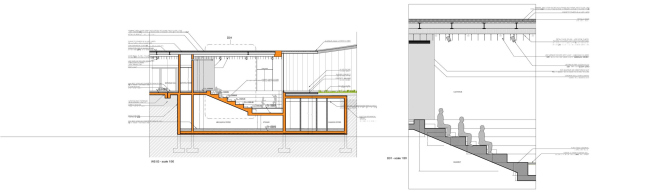
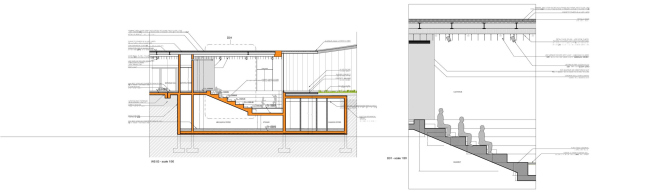
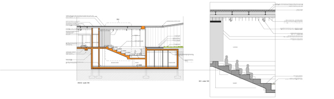
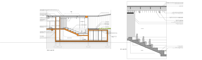
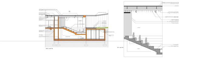
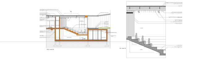
Ось проекта – большой двор площадью 7500 м2; его окольцевало здание центра СМАРТ площадью 3700 м2. Это одноэтажная постройка, которая повторяет контур рельефа. Ее ленточная структура, как щупальца осьминога, стекает по ландшафту, создавая извилистую ленту-дорожку вокруг огромного внутреннего двора.
Центр СМАРТ в Лорийской области © Studio Paul Kaloustian
Центр СМАРТ в Лорийской области © Studio Paul Kaloustian
Центр СМАРТ в Лорийской области © Studio Paul Kaloustian
Центр СМАРТ в Лорийской области © Studio Paul Kaloustian
Центр СМАРТ в Лорийской области © Studio Paul Kaloustian
Центр СМАРТ в Лорийской области © Studio Paul Kaloustian
Центр СМАРТ в Лорийской области © Studio Paul Kaloustian
Центр СМАРТ в Лорийской области © Studio Paul Kaloustian
Центр СМАРТ в Лорийской области © Studio Paul Kaloustian
Центр СМАРТ в Лорийской области © Studio Paul Kaloustian


Изнутри здания, за прозрачным стеклом, она воспринимается как продолжение интерьера, стирая все визуальные границы между зданием и природой.
Центр СМАРТ в Лорийской области © Studio Paul Kaloustian
Центр СМАРТ в Лорийской области © Studio Paul Kaloustian
Центр СМАРТ в Лорийской области © Studio Paul Kaloustian
Центр СМАРТ в Лорийской области © Studio Paul Kaloustian
Центр СМАРТ в Лорийской области © Studio Paul Kaloustian
Центр СМАРТ в Лорийской области © Studio Paul Kaloustian
Центр СМАРТ в Лорийской области © Studio Paul Kaloustian
Центр СМАРТ в Лорийской области © Studio Paul Kaloustian
Центр СМАРТ в Лорийской области © Studio Paul Kaloustian
Центр СМАРТ в Лорийской области © Studio Paul Kaloustian
Центр СМАРТ в Лорийской области © Ieva Saudargaite
Центр СМАРТ в Лорийской области © Ieva Saudargaite
Центр СМАРТ в Лорийской области © Ieva Saudargaite
Центр СМАРТ в Лорийской области © Ieva Saudargaite

Подход, характерный для японского минимализма, – вовлечь природу в здание. А сама эстетика минимализма тут приобретает более вольные проявления, отчасти напоминая некоторые постройки SANAA.

Тонкая пластика постройки стремится к невесомости. Изгибы формы, по мнению автора, никогда не раскрывают пространство полностью, создавая специфическое ощущение таинственности. Одновременно перетекающее пространство без жестких функциональных и пространственных границ подчеркивает тему свободы как основы образования. Это создает также чувство общности и активного диалога.

Основная часть здания – открытое IT-пространство. В его крыльях без дополнительных границ размещены студии, библиотека, вестибюль, выставочное пространство, зрительный зал. Все они выходят во двор, и здание в целом воспринимается как непрерывный цикл образовательной программы.
Центр СМАРТ в Лорийской области © Studio Paul Kaloustian
Центр СМАРТ в Лорийской области © Studio Paul Kaloustian
Центр СМАРТ в Лорийской области © Studio Paul Kaloustian
Центр СМАРТ в Лорийской области © Studio Paul Kaloustian
Центр СМАРТ в Лорийской области © Studio Paul Kaloustian
Центр СМАРТ в Лорийской области © Studio Paul Kaloustian
Центр СМАРТ в Лорийской области © Studio Paul Kaloustian
Центр СМАРТ в Лорийской области © Studio Paul Kaloustian
Центр СМАРТ в Лорийской области © Studio Paul Kaloustian
Центр СМАРТ в Лорийской области © Studio Paul Kaloustian
Центр СМАРТ в Лорийской области © Studio Paul Kaloustian
Центр СМАРТ в Лорийской области © Studio Paul Kaloustian
Центр СМАРТ в Лорийской области © Ieva Saudargaite
Центр СМАРТ в Лорийской области © Ieva Saudargaite

Центр СМАРТ стремится быть вовлеченным в физический и ментальный ландшафт. Его архитектура изначально ставит вопрос о привязанности к своей земле местных жителей, об инструменте, который укрепил бы связь людей с малой родиной. Его архитектура – это альтернативный подход к конструированию связи с местностью. Новый жест, новый вызов: как создать современными методами локальную идентичность, а не просто механически повторить формы прошлого, формально подчиняясь контексту? Во главу угла ставится природа и абсолютно новый для этого района эстетический язык, который, однако, стремится быть не чужеродным, а аутентичным.
Центр СМАРТ в Лорийской области © Ieva Saudargaite
Центр СМАРТ в Лорийской области © Ieva Saudargaite
Центр СМАРТ в Лорийской области © Ieva Saudargaite
Центр СМАРТ в Лорийской области © Ieva Saudargaite
Центр СМАРТ в Лорийской области © Ieva Saudargaite
Центр СМАРТ в Лорийской области © Ieva Saudargaite
Центр СМАРТ в Лорийской области © Ieva Saudargaite
Центр СМАРТ в Лорийской области © Ieva Saudargaite
Центр СМАРТ в Лорийской области © Ieva Saudargaite
Центр СМАРТ в Лорийской области © Ieva Saudargaite
Центр СМАРТ в Лорийской области © Ieva Saudargaite
Центр СМАРТ в Лорийской области © Ieva Saudargaite
Центр СМАРТ в Лорийской области © Ieva Saudargaite
Центр СМАРТ в Лорийской области © Ieva Saudargaite
Центр СМАРТ в Лорийской области © Ieva Saudargaite
Центр СМАРТ в Лорийской области © Ieva Saudargaite

Центр СМАРТ задуман как самый прогрессивный способ развития сообществ в Армении. В дальнейшем фонд намеревается создать по подобному центру в каждой области страны.

Схема появления значимых зданий в современной Армении уже утвердилась: инвестор из диаспоры создает благотворительный фонд, а при нем – центр c современной архитектурой. Это не первый случай основания образовательного центра, более того, не первый с участием ливанского архитектора (достаточно вспомнить разработанные Бернаром Хури проекты ТУМО в разных городах Армении). Гаро Армен видит потенциал Армении в образовании, в знаниях. По его мысли, жители сельской местности не должны быть изолированы от мира.

Несмотря на то, что в силу разных причин Армения в этом году не участвовала в архитектурной биеннале в Венеции, проект Поля Калустяна вполне соответствует повестке этой международной выставки и дает своей функцией и философией большой потенциал для развития Лорийской области. За прошедшие с момента открытия полгода местное население очень полюбило новое здание. Эта постройка стала там настоящей достопримечательностью не только в физическом, но и в общественном плане.
Центр СМАРТ в Лорийской области © Studio Paul Kaloustian
Центр СМАРТ в Лорийской области © Studio Paul Kaloustian
Центр СМАРТ в Лорийской области © Studio Paul Kaloustian
Центр СМАРТ в Лорийской области © Studio Paul Kaloustian
Центр СМАРТ в Лорийской области © Studio Paul Kaloustian
Центр СМАРТ в Лорийской области © Studio Paul Kaloustian
Центр СМАРТ в Лорийской области © Studio Paul Kaloustian
Центр СМАРТ в Лорийской области © Studio Paul Kaloustian
Центр СМАРТ в Лорийской области © Studio Paul Kaloustian
Центр СМАРТ в Лорийской области © Studio Paul Kaloustian
Центр СМАРТ в Лорийской области © Studio Paul Kaloustian
Центр СМАРТ в Лорийской области © Studio Paul Kaloustian
Центр СМАРТ в Лорийской области © Studio Paul Kaloustian
Центр СМАРТ в Лорийской области © Studio Paul Kaloustian
Центр СМАРТ в Лорийской области © Studio Paul Kaloustian
Центр СМАРТ в Лорийской области © Studio Paul Kaloustian