Размещено на портале Архи.ру (www.archi.ru)

26.12.2018

Лед и пламя: архитектура противоборства

Юлия Тарабарина
Объект:
Отель Камчатка
Адрес:
Россия, Петропавловск-Камчатский.
Архитектор:
Левон Айрапетов
Валерия Преображенская
Мастерская:
TOTEMENT/PAPER
Авторский коллектив:
Архитекторы: Левон Айрапетов, Валерия Преображенская, Диана Грекова, Юлия Головенкова, Андрей Каюков, Дмитрий Шклярук, Андрей Гуляев, Константин Фомин, Дмитрий Смирнов, Оксана Абрамова, Наталья Гришинчук, Анастасия Петрова
Конструкторы: Альберт Чапаев, Ксения Каргапольцева
Руководитель проекта: Михаил Безнос
Консультант: Вадим Прасов (вице-президент Федерации рестораторов и отельеров, генеральный директор «Альянс Отель Менеджмент»)

Гостиничный комплекс, спроектированный TOTEMENT / PAPER для Камчатки, переосмысляет природу и культуру полуострова, одновременно бросая вызов катаклизмам сейсмоопасного полуострова, используя современные технологии ради чистой, открытой, ясной и красивой архитектуры.

Отель Камчатка
Отель Камчатка
© TOTEMENT/PAPER

Петропавловск-Камчатский – не самый восточный город страны, но многие его воспринимают его именно так, хотя бы из-за твердо усвоенного: «в Петропавловске-Камчатском полночь». Главный и единственный центр полуострова, чья удаленность стала притчей во языцех, а природа привлекает любителей экзотического туризма Европы и Азии, до сих пор не имел современной гостиницы – ни для туристов, ни для бизнес-партнеров камчатских компаний, ни даже для приема отечественного руководства. Такая гостиница – запоминающаяся архитектура, актуальные сервисы, два ресторана, один из них видовой, словом, полноценные 4 звезды – сейчас строится по проекту архитекторов TOTEMENT на берегу озера Култучное в центре города: южнее расположена городская администрация, западнее Пантелеймонов монастырь, восточнее стадион Спартак.

Гостинице достался участок неправильной формы, вытянутый вдоль берега озера, дороги и, с противоположной стороны – вдоль крутого склона, который фактически отменил все виды из окон, обращенных к северу. На вершине склона стоит пара типовых, довольно старых и обшарпанных, пятиэтажек. К югу же открывается вид на сопки и озеро, проект благоустройства фрагмента берега которого также вошел в состав работ. Виды на юг, восток и запад, надо сказать, исключительные, а близость дороги – Ленинградской улицы – не только уплотняет участок с южной стороны, но и обеспечивает хорошую транспортную доступность. Словом, место сложное, но не лишено достоинств. Помимо гостиницы здесь с самого начала планировалось разместить офисный центр и финтес-спа, а также конференц-зал, который в процессе работы подрос до солидной вместимости в 450 мест.
Отель Камчатка. Ситуационный план
Отель Камчатка. Ситуационный план
© TOTEMENT/PAPER
Отель Камчатка. Генплан
Отель Камчатка. Генплан
© TOTEMENT/PAPER

Сложность участка и обширный набор функций стали причиной долгого поиска концепции: архитекторы передвигали объемы, варьировали форму и планировки. Надо однако признать, что необходимость «упаковывать» функции на небольшом участке на склоне горы в объемную фигуру, подобную оригами – задача, подходящая именно для TOTEMENT / PAPER с их пристрастием к непростым целям, провоцирующим контрастные и сложносочиненные, но продуманные и непротиворечивые решения, также как и с их любовью к тектонической стереометрии и культуре Дальнего Востока. Сложности стали для них поводом для детального исследования и упорной работы.



Когда выяснилось, что участок к западу от основного также можно, освободив от коммуникаций, присоединить к общему пятну «трапеции», сложилась оппозиция башен: 15-этажной гостиничной в восточной части, 11-этажной офисной – в западной. Она сразу оформилась в образное противопоставление: гостиничная башня обтекаемая и угольно- (или пепельно) черная, с поблескивающей каплей подсвеченного красным металлического козырька вверху – ни дать ни взять вулкан, сопка с облаком дыма перед началом извержения. Офисная башня стеклянная, огранена широкими плоскостями с явными углами в противовес скруглениям гостиницы. Стекло покрыто россыпью белых треугольников, призванных замаскировать полосы межэтажных перекрытий, отчасти – защитить от прямых солнечных лучей, но прежде всего сделать объем более цельным и «льдистым» – подобием ледяной горы, протаявшей на углу, обращенном на юго-восток к Петровской сопке, пятном чистого стекла.
Отель Камчатка. Эскиз идеи
Отель Камчатка. Эскиз идеи
© TOTEMENT/PAPER
Отель Камчатка. Аксонометрия © TOTEMENT/PAPER
Отель Камчатка. Аксонометрия © TOTEMENT/PAPER
Отель Камчатка
Отель Камчатка
© TOTEMENT/PAPER
Отель Камчатка © TOTEMENT/PAPER
Отель Камчатка © TOTEMENT/PAPER

В голову сразу же приходит: «лед и пламя» – и авторы особенно не спорят. Действительно, оппозиция ледяной горы и тлеющего вулкана – для Камчатки, места холодного, но подогреваемого природными катаклизмами, ключевая: она отражает и суть, и контрастную красоту местной природы. Неудивительно, что башни заняли крайние позиции слева и справа, между ними же протянулся стеклянный стилобат, туловище тяни-толкая, не только вместившее несколько входных зон, лобби, холл, фитнес и конференц-зал, но и ставшее пространством образного осмысления смысловых напряжений, возникающих между двумя полюсами. Если на востоке у нас тут условный «огонь», на западе «лед», то между ними – земля со всеми ее красотами и противоречиями.

Фитнес-спа-центр встроен в нижние этажи офисной части подобно фигуре объемного пазла. В нем семь бассейнов, один большой с дорожками спортивной длины 25 м, «лягушатник» и спа-ванна; и еще четыре маленьких, фактически серия разных ванн, входящих в состав корейской бани, рассчитанной на туристов соседней страны; такие бани – явление традиционное и на Дальнем Востоке востребованное. Западная стена бассейна белая и испещрена крупным графичным орнаментом, который, во-первых, основан на петроглифах и традиционном камчатском декоре, а во-вторых, мыслится авторами как подобие рисунка сломанного льда, ледохода в основании ледяной горы. Выходя на фасад, эта орнаментированная шаманского вида стена приподнимает «голову» и становится похожа на этакого угловатого дракона, озирающего окрестности шестью асимметричными глазами. Вспоминаются японские мультфильмы с их постоянными превращениями из всего во всё и фантазийно-фантастическими существами. Безногий белый змей погружен с стеклянно-металлический объем, где скошенные линии тонких переплетов по-своему интерпретируют рисунок его «шкуры». В уровне второго яруса с улицы хорошо будут видны люди, купающиеся в ваннах и бассейне; одна ванна расположена прямо над глубокой нишей главного входа. Этажом выше в третьем ярусе разместился фитнес, причем вправо, к востоку, обращены три крупных консольных эркера, нависающих над эксплуатируемой кровлей стилобата; выступы стеклянные, так что, крутя педали или бегая на месте можно будет любоваться и сопкой, и озером.
Отель Камчатка
Отель Камчатка
© TOTEMENT/PAPER
Отель Камчатка. Плавательный бассейн
Отель Камчатка. Плавательный бассейн
© TOTEMENT/PAPER
Отель Камчатка. Плавательный бассейн
Отель Камчатка. Плавательный бассейн
© TOTEMENT/PAPER
Отель Камчатка. Тренажерный зал
Отель Камчатка. Тренажерный зал
© TOTEMENT/PAPER
Отель Камчатка. Интерьеры. Общая концепция
Отель Камчатка. Интерьеры. Общая концепция
© TOTEMENT/PAPER
Отель Камчатка. Схема функционального зонирования
Отель Камчатка. Схема функционального зонирования
© TOTEMENT/PAPER

Конференц-зал расположен правее, восточнее и ближе к гостиничной части. Он очень большой, напомним – 450 мест, и напоминает другое тотемное животное, во всем отличаясь от угловатого китайско-японского «дракона». Левон Айрапетов и Валерия Преображенская называют его не без нежности мишкой. И впрямь похоже на медведя: шестиугольное, но обтекаемое «тело» зала во втором ярусе, четыре крупные ноги тоже обтекаемых, довольно сложных контуров, в плане отчетливо напоминающих известную детскую картинку «медведь лезет по дереву» – ноги объемные, в их стенах спрятаны опоры, а внутри задуманы переговорные, а может быть, и кафе. Все объемы, и «ноги», и «тело», покрыты рельефными полосатыми металлическими панелями медного цвета, отчего наш воображаемый медведь становится похож на шаманскую статуэтку, вырезанную из фактурного дерева, какой-нибудь северной березы. Внутри потолок зала плоский, но ради безопорности конструкции над ним предусмотрено множество ферм – в их закрытом пространстве также разместилось вентиляционное оборудование. Снаружи пространство ферм выступает над кровлей стилобата как уплощенный купол, похожий на спину медведя и на вершину старой потухшей сопки. Или, говоря точнее – сама уснувшая сопка чем-то похожа на медведя, полухтоническое существо – духа земли, который на зиму уходит под снег и приносит весну своим пробуждением; в проекте TOTEMENT характер зверя, который держит на своих крепких ногах всё: то ли комплекс, то ли весь мир, – очень чувствуется.
Отель Камчатка. Конференц-зал, схема
Отель Камчатка. Конференц-зал, схема
© TOTEMENT/PAPER
Отель Камчатка. План на -1 уровне
Отель Камчатка. План на -1 уровне
© TOTEMENT/PAPER
Отель Камчатка. План 1 этажа
Отель Камчатка. План 1 этажа
© TOTEMENT/PAPER
Отель Камчатка. План 2 этажа
Отель Камчатка. План 2 этажа
© TOTEMENT/PAPER
Отель Камчатка. Разрез 2-2
Отель Камчатка. Разрез 2-2
© TOTEMENT/PAPER
Отель Камчатка. Разрез 1-1
Отель Камчатка. Разрез 1-1
© TOTEMENT/PAPER
Отель Камчатка. Схемы раскладки интерьера
Отель Камчатка. Схемы раскладки интерьера
© TOTEMENT/PAPER
Отель Камчатка
Отель Камчатка
© TOTEMENT/PAPER
Отель Камчатка. Конференц-холл
Отель Камчатка. Конференц-холл
© TOTEMENT/PAPER
Отель Камчатка. Конференц-холл
Отель Камчатка. Конференц-холл
© TOTEMENT/PAPER

Но разумеется, здесь нет никакого буквализма: было бы странно обеспечить 4-зведную гостиницу «настоящими» драконом, медведем, ледяной скалой, вулканом. Все темы проведены на уровне метафоры, хотя и довольно легко прочитываемой; впрочем о драконе авторы вовсе не говорят, для них он – образ трескающегося над теплой водой бассейна льда. Но главное, все вместе складывается в стройный сюжет камчатской природы: вот снег и лед, вот вулкан, вот бассейны-«гейзеры», вот теплый и массивный зверь, по духу он ближе к вулкану, чем к ледяной горе, и кажется его порождением, в частности из-за медного цвета. Все они объединены в некую тесную, плотно увязанную «экосистему», где видимый отовсюду «мишка» играет центральную роль, подобную мировому древу. Но еще раз: весь этот срежиссированный и глубоко погруженный в местную природу и культуру сюжет дан отнюдь не прямолинейно, он скорее провоцирует угадывание и обосновывает форму, чем беседует с нами «в лоб».

Между тем скульптурность объема конференц-зала очевидна, он использует один из известных и как правило выигрышных приемов современной архитектуры, восходящий, к примеру скажем, к Sancta Sepolcro – капелле Ручелаи, сооруженной Альберти в церкви Святого Панкратия. В сущности, он использует принцип павильона: это объем в объеме, секрет в шкатулке, он может позволить себе большую скульптурность и в данном случае становится катализатором пластичности здания. Важный принцип – такой объем должно быть видно с разных сторон, он должен мелькать из-за витражей и выступать над кровлей, интриговать и приманивать, служа парадоксальной вывеской, помещенной внутрь и от этого еще более притягательной. Здесь все эти принципы соблюдены, «внутренний магнит» работает.

Неудивительно, что вокруг него закручивается пространство первых этажей и возникают самые интересные решения, мотивированные, впрочем, функционально: архитекторы стремились просчитать сценарии поведения многочисленных посетителей конференц-зала во время перерыва. Людям надо куда-то пойти, распределиться для отдыха и общения, и начальным пространством становится фойе вокруг зала. В здании три основных входа, фойе объединяет два: один, ведущий в лобби гостиницы и второй – центральный, между фитнесом и конференц-холлом. К тому же перепад высот на участке – больше 5 метров, и тот вход, что со стороны гостиницы, ведет нас по широкой лестнице сразу на второй ярус, ко входу к зал, а центральный вход – ниже, на первый этаж. Пространство под опорами зала опущено еще ниже, чтобы не давил потолок – спуски с трех сторон ведут в довольно уютное и удивительное пространство, где по сторонам круглятся бока «ног»-переговорных, а над головой мы видим множество изогнутых пластин, как будто металлическую шкуру разрезали поперечно; мотив продолжается на потолке 1 яруса, а в одном месте эта ячеистая структура стекает к полу «сталактитом», образуя экзотическую колонну.
Отель Камчатка. Пространство под конференц-холлом
Отель Камчатка. Пространство под конференц-холлом
© TOTEMENT/PAPER
Отель Камчатка. Пространство 1 этажа рядом с опорами конференц-холла
Отель Камчатка. Пространство 1 этажа рядом с опорами конференц-холла
© TOTEMENT/PAPER

Фойе со стороны главного фасада и центрального входа двусветное, дальше разделено на два яруса балконом. Пол и потолок второго яруса более спокойные, бело-черные, геометричные. Два типа рисунка: текучий, присущий вулкану, где вьется пепел и течет лава – и льдисто-изломанный, встречаются, причем лава «течет» скорее внизу, а лед «засыпает» ее сверху; примерно то, что и происходит время от времени на Камчатке, но подано оно, конечно же, ярко и красиво, как часть вступительной феерии, впечатляющей зрителя с первых шагов.
Отель Камчатка. Пространство 2 этажа перед конференц-холлом
Отель Камчатка. Пространство 2 этажа перед конференц-холлом
© TOTEMENT/PAPER
Отель Камчатка. Конференц-холл
Отель Камчатка. Конференц-холл
© TOTEMENT/PAPER
Отель Камчатка. Лобби гостиницы
Отель Камчатка. Лобби гостиницы
© TOTEMENT/PAPER

В четвертом ярусе гостиницы расположен ресторан, он слегка нависает над кровлей стилобата, вид из наклонного витража – на бухту, холмы, в пейзаж вписывается купол зала. Дизайн ресторана прост и сдержан, главную роль в нем играют опоры параболического абриса, маскирующие Т-образные опоры. Левон Айрапетов сравнивает их с лодками: «камчатские рыбаки, отдыхая, сушили лодки, ставя их вертикально». Впрочем потолок здесь – сплошная волна, а из-за подсвеченных вырезов, сопровождающих параболический контур, кажется, что столбы в некотором роде «плывут».
Отель Камчатка. План 3 этажа
Отель Камчатка. План 3 этажа
© TOTEMENT/PAPER
Отель Камчатка. Ресторан
Отель Камчатка. Ресторан
© TOTEMENT/PAPER

Нижний, основной ресторан отделен от гостиничной башни техническим этажом с выходами вентиляции, а зрительно – скосом-уступом небольшой «муфты», отсекающей его объем от основного, превращая в цоколь. «Мы сторонники четкого разделения всех объемов и ясного проявления их функции», – поясняют архитекторы.

Много ярче акцентирован второй ресторан, в верхнем этаже, он же sky bar с видом на окрестности. Именно он накрыт каплеобразно изогнутым металлическим козырьком. Пол скай-бара задуман красным, он должен отражаться в металле козырька, образуя тот самый упомянутый вначале эффект тлеющего вулкана. Столбы тоже металлические, с наклоном в разные стороны, метафора катаклизма, как и лампы – светящиеся трещины в потолке. Впрочем рельефные геометрические «шаманские» орнаменты на стенах и задуманные авторами лампы из извивающихся лент стекла под потолком подчеркивают управляемость «катаклизма», транслируя: да, мы на вершине вулкана, но парадоксальным образом в безопасности.
Отель Камчатка. Sky bar
Отель Камчатка. Sky bar
© TOTEMENT/PAPER
Отель Камчатка. Sky bar
Отель Камчатка. Sky bar
© TOTEMENT/PAPER

Задав напряженный контрапункт в объемном решении, в интерьерах архитекторы развили его и усилили, насытили деталями, фактурами, цветом, небольшими объемно-пространственными сюжетами, дополняющими основные. К примеру, на изломе коридоров гостиницы предусмотрено расширение – миниатюрный холл для пространственной разгрузки, а в номерах, чей дизайн разработан в нескольких индивидуальных вариантах, телевизор и полки встроены в одну асимметричную нишу.
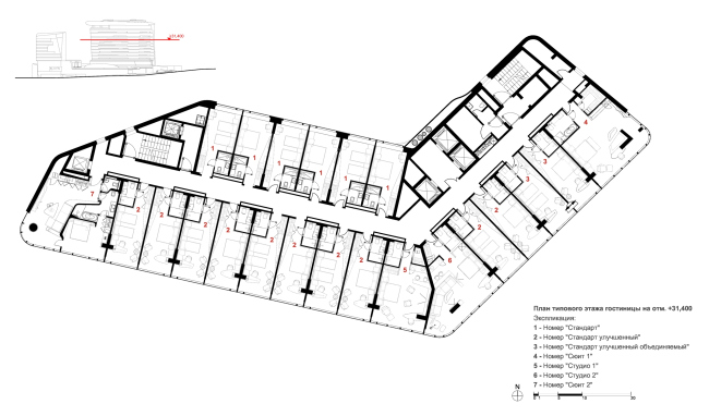
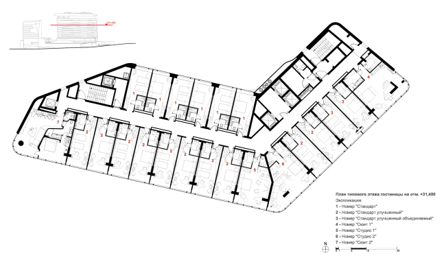
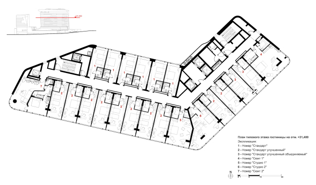
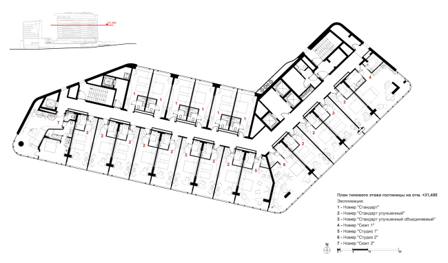
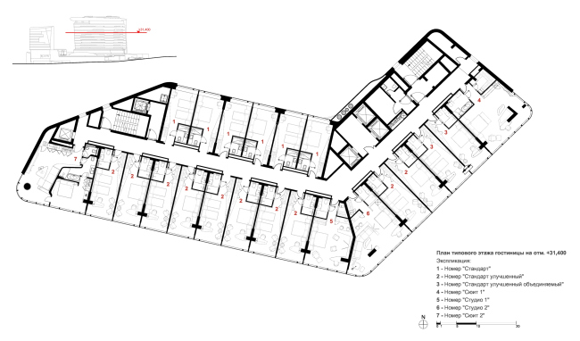
Отель Камчатка. План типового этажа гостиницы
Отель Камчатка. План типового этажа гостиницы
© TOTEMENT/PAPER
Отель Камчатка. Интерьеры. Коридор
Отель Камчатка. Интерьеры. Коридор
© TOTEMENT/PAPER
Отель Камчатка. Интерьеры. Номер Стандарт
Отель Камчатка. Интерьеры. Номер Стандарт
© TOTEMENT/PAPER
Отель Камчатка. Интерьеры. Номер Стандарт
Отель Камчатка. Интерьеры. Номер Стандарт
© TOTEMENT/PAPER
Отель Камчатка. Номер Студия
Отель Камчатка. Номер Студия
© TOTEMENT/PAPER
Отель Камчатка. Номер Сюит
Отель Камчатка. Номер Сюит
© TOTEMENT/PAPER
Отель Камчатка. Номер Сюит
Отель Камчатка. Номер Сюит
© TOTEMENT/PAPER
Отель Камчатка. VIP Lounge
Отель Камчатка. VIP Lounge
© TOTEMENT/PAPER
Отель Камчатка. VIP Lounge
Отель Камчатка. VIP Lounge
© TOTEMENT/PAPER
Отель Камчатка. VIP Lounge
Отель Камчатка. VIP Lounge
© TOTEMENT/PAPER

Достаточно очевидно, что насыщенность формы и смысла сочетается здесь с той степенью детализации, которая местами приближается к «тотальному дизайну». Подчеркнем, проект вовсе не концепция, TOTEMENT сделали все рабочее проектирование, подобрали отделочные материалы, в основном ближайших географически китайских производителей.
Отель Камчатка. Фасадные решения
Отель Камчатка. Фасадные решения
© TOTEMENT/PAPER
Отель Камчатка. Фасадные решения
Отель Камчатка. Фасадные решения
© TOTEMENT/PAPER
Отель Камчатка. Фасадные решения
Отель Камчатка. Фасадные решения
© TOTEMENT/PAPER
Отель Камчатка. Фасадные решения
Отель Камчатка. Фасадные решения
© TOTEMENT/PAPER

Отдельной главой стала работа с нормативами с зоне сейсмической опасности. «Если соблюсти все нормы, ничего, кроме коробки ужасных пропорций с маленькими окнами здесь построить нельзя», – признается Валерия Преображенская. На территории гостиницы требовалось учитывать опасность землетрясения до 9 баллов, сразу за дорогой – до 10. В этих условиях архитекторы разработали все расчеты устойчивости совместно с ЦНИИСК, единственным институтом, который всерьез занимается этой темой в стране; использовали сейсмоопоры, поставив, говоря очень упрощенно, на множество железобетонных выступов фундамента амортизаторы из резины и стали, – что позволило уменьшить 9-балльное ограничение до 8-балльного. Разработали и утвердили несколько спецтехусловий (СТУ), привлекли, в частности, тех же специалистов по пожарной безопасности, кто работал в парке «Зарядье». Все это – краткое резюме каких-то совершенно титанических усилий, результатом которых стали большие витражи стилобата, окна «в пол» в офисах и части гостиничных номеров, невероятное для этого места количество консольных выносов, впрочем, достаточно сдержанных, поскольку все вписано в реальные расчеты и прошло все согласования.

Некоторые редакторы известных журналов подчас любят говорить: придумать может любой, а ты давай построй. Так вот, здесь невероятные усилия вложены не только в изобретение сложной, взаимоувязанной и осмысленной формы, но и в реализацию, начиная от сложных инженерных расчетов и заканчивая детальной раскладкой всех фасадных панелей для того, чтобы их рисунок сошелся. Насколько мне известно, работа заняла около двух лет и велась с подробным анализом деталей. Дизайн номеров заказчик рассматривал на модели 1:1, сравнивая с предложением корейской компании. Выбрали вариант TOTEMENT. Сейчас каркас здания полностью отлит в бетоне.



Так что здание, с одной стороны, становится метафорой дикой камчатской природы и ее внутренней борьбы, оформленной лишь эпизодическим, или же очень архаичным, присутствием человека. С другой стороны, для того чтобы эта метафора была убедительной, красивой и современной, необходимо ответить на вызовы этой природы, перебороть ее, к примеру, рассчитать прочность, проверить обоснованность человеческих ограничений; чем архитекторы TOTEMENT и занимаются, борясь за реальность своих идей убежденно и увлеченно.