Размещено на портале Архи.ру (www.archi.ru)

23.11.2018

Вдохновленный ретрофутуризмом

Юлия Тарабарина
Объект:
Архитектурная концепция гостиницы Ihouse
Адрес:
Россия, Москва. ул. Новый Арбат, 2
Мастерская:
Архитектурная мастерская «Группа АБВ»

Проект реконструкции здания бывшего Дома Связи в начале Нового Арбата, предложенные Никитой Бирюковым, сохраняет пропорции и логику существующей постройки, расчищая и добавляя современности с нотой «ретро», восходящего к технофутуризму 1930-х.

Архитектурная концепция гостиницы Ihouse, 2017
Архитектурная концепция гостиницы Ihouse, 2017
© Архитектурная мастерская «Группа АБВ»

Концепция «Группы АБВ» – один из ряда проектов, связанных с обширной программой реконструкции АТС Москвы, потерявших свой практический смысл после перехода на цифровые стандарты после четвертой промышленной революции, когда площади, необходимые для коммутаторов, уменьшились кажется даже не в десятки, а в сотни раз.

Между тем реконструируемое здание занимает достаточно заметное место как в городе: в самом начале Нового Арбата, на углу Гоголевского бульвара, в пандан «Праге» в начале старого Арбата – так и в истории столичного модернизма: оно построено в 1965 командой мастерской №23 Моспроекта-1 под руководством Виктора Егерева как Дом Связи и вмещало («ленинские» почту, телеграф, телефон), а если серьезно, то, помимо автоматической АТС еще и телеграф, пункт междугородней связи, многофункциональностью полностью оправдывая свое центральное местоположение. Непохожая на АТС, а похожая на советский исследовательский институт узкая семиэтажная пластина с лаконичными ленточными окнами и росчерками металлических ламелей, в конце 1990-х получила гранитную облицовку столбов первого яруса с характерной постмодернистской арочкой, а с конца 2000-х фасад все чаще стали затягивать сплошным полотном медиа-экрана, так что сейчас оно воспринимается как гигантский рекламный щит в преддверии Нового Арбата. А когда-то было современником строительства и пропилеями Калининского проспекта, пресловутой «вставной челюсти Москвы», породившей много споров, песен и даже, я бы сказала, ставшей во многом стимулом развития как контекстуального метода, так и градозащитного движения. Между тем знаковое место, свидетель советских киносъемок, митингов 1991-го, потом 2012-го, развивается: Новый Арбат светится почти как Манхеттен, пару лет назад благоустроен длинной лавкой – словом, все чередом. Дошла очередь и до реконструкции здания-щита в начале пресловутого проспекта, не все же обходиться рекламным медиа-фасадом.

Современный вид на Дом Связи: 

Архитектурная концепция гостиницы Ihouse
Архитектурная концепция гостиницы Ihouse
© Архитектурная мастерская «Группа АБВ»

Итак, мастерская Никиты Бирюкова предложила концепцию превращения АТС в трехзвездную гостиницу. Существующий подвал запланировано переоборудовать в автоматизрованную парковку, автобусам подъезжать со стороны Мерзляковского переулка, поперечного Новому Арбату – переулок проходит сквозь здание невысоким проездом, который к тому же сужен поздними гранитными пилонами по бокам. Архитекторы освобождают опоры, превращают их в блестящие металлические столбы, а полупрозрачный очищенный второй этаж нивелирует приземистые пропорции проезда. Со стороны переулка не то чтобы образуется двор, но город здесь, по контрасту с проспектом, тихий, и пассажиров можно высадить прямо у входа в вестибюль первого этажа. Со стороны проспекта «проездная арка» отмечена широким легким козырьком, отмечающим ее присутствие в пространстве.

Современный вид на «арку» со стороны Мерзляковского переулка: 


Архитектурная концепция гостиницы Ihouse
Архитектурная концепция гостиницы Ihouse
© Архитектурная мастерская «Группа АБВ»
Архитектурная концепция гостиницы Ihouse
Архитектурная концепция гостиницы Ihouse
© Архитектурная мастерская «Группа АБВ»
Архитектурная концепция гостиницы Ihouse
Архитектурная концепция гостиницы Ihouse
© Архитектурная мастерская «Группа АБВ»

Фасадные решения, по признанию архитекторов, искали довольно долго – перебрали порядка пяти вариантов, включая как хайтековские, так и популярные в наше время «ар-декошные», с каменными фасадами. Источником же окончательного варианта стал дизайн автобуса-шоу Futuriliner, машина-герой «Парада прогрессе» – шоу, придуманного General motors ради демонстрации новых технологий: яркий, обтекаемый, с блестящими металлическими желобками по бокам транспорт-снаряд, поражавший воображение американцев 1930-х. Впрочем, подобный же прием – блестящие рельсы-желобки полированный стали – использовал Алексей Душкин в своем вестибюле станции метро «Маяковская», оформленном в 1938 году.
Архитектурная концепция гостиницы Ihouse
Архитектурная концепция гостиницы Ihouse
© Архитектурная мастерская «Группа АБВ»

Собственно от автобуса позаимствован блестящий металл и желобки. Полосы полированной стали на фасаде изгибаются, связывая горизонтали и вертикали в единое плетение и работая на метафору электронной платы с ее металлическими дорожками – напоминание о технологической сути здания, об истории превращения огромного дома-коммутатора в маленькую компьютерную деталь. И в то же время ITшная образность, по словам авторов, связана в одной из сфер инвестирования заказчика данного проекта, АФК «Система»; ей вторит и название гостиницы: Ihouse – предположим, что это расшифровывается как и(интеллектуальный) дом. Но металлические желобки не только подчеркивают гибкую графику дорожек, но и напоминают о противосолнечных ламелях существующего здания – «пучок» из гладкой и ребристой полос в реконструированной версии становится тоньше, но все же сохраняет связь с исходным зданием, что тоже и ретроспективно, и современно. Авторы как будто находят и заостряют его футуристичные черты.

На колоннах, объединяющих два первых этажа, желобки складываются в изящные каннелированные муты, берущие на себя роль капителей, но похожие на шестеренки, что вполне логично как для передовой версии техногенного ар-деко 1930-х, так и для многих других версий архитектуры модернизма, постоянно занятой поиском связей между современной образностью механизма и вечными элементами античного ордера.
Архитектурная концепция гостиницы Ihouse
Архитектурная концепция гостиницы Ihouse
© Архитектурная мастерская «Группа АБВ»
Архитектурная концепция гостиницы Ihouse
Архитектурная концепция гостиницы Ihouse
© Архитектурная мастерская «Группа АБВ»

Далее – фасады максимально очищаются как от поздних застроек, так и от первоначальных бетонных панелей: межэтажные перемычки тонкие, окна «в пол», внутри роскошно-светло, что красиво, хотя неожиданно для трех звезд. Впрочем приватность жилых помещений также учтена, хорошо видно, что прозрачное стекло чередуется с затемненным, которое поддерживает роль фона. Первые два этажа за колоннами – совершенно стеклянные с тонкими стыками, ночью их витрины должны ярко светиться.
Архитектурная концепция гостиницы Ihouse
Архитектурная концепция гостиницы Ihouse
© Архитектурная мастерская «Группа АБВ»
Архитектурная концепция гостиницы Ihouse
Архитектурная концепция гостиницы Ihouse
© Архитектурная мастерская «Группа АБВ»
Архитектурная концепция гостиницы Ihouse
Архитектурная концепция гостиницы Ihouse
© Архитектурная мастерская «Группа АБВ»
Архитектурная концепция гостиницы Ihouse
Архитектурная концепция гостиницы Ihouse
© Архитектурная мастерская «Группа АБВ»
Архитектурная концепция гостиницы Ihouse
Архитектурная концепция гостиницы Ihouse
© Архитектурная мастерская «Группа АБВ»
Архитектурная концепция гостиницы Ihouse
Архитектурная концепция гостиницы Ihouse
© Архитектурная мастерская «Группа АБВ»
Архитектурная концепция гостиницы Ihouse
Архитектурная концепция гостиницы Ihouse
© Архитектурная мастерская «Группа АБВ»
Архитектурная концепция гостиницы Ihouse
Архитектурная концепция гостиницы Ihouse
© Архитектурная мастерская «Группа АБВ»

Внутренности здания в проекте также максимально освобождены: техническая планировка Дома Связи никак не могла подойти для гостиницы. Первый этаж отдан магазинам, кафе и вестибюлю, во втором судя по всему разместятся офисы, а собственно гостиница начинается с третьего этажа, где помещено лобби; выше – номера.
Архитектурная концепция гостиницы Ihouse
Архитектурная концепция гостиницы Ihouse
© Архитектурная мастерская «Группа АБВ»
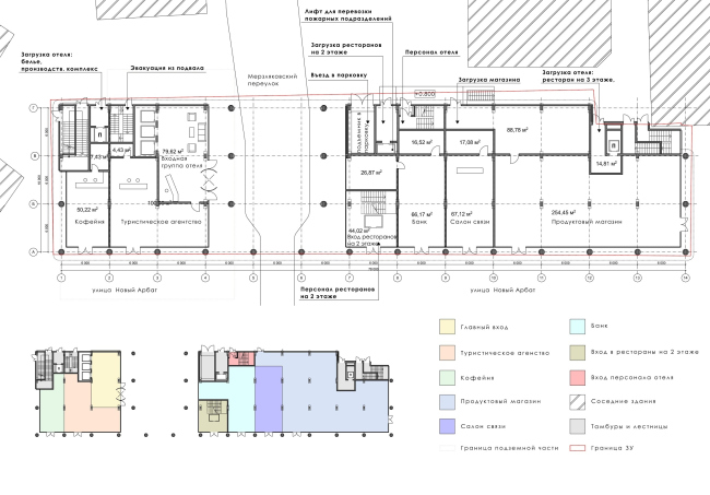
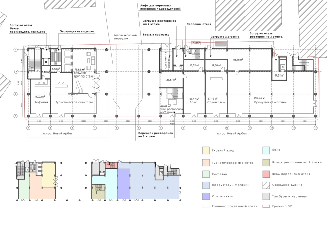
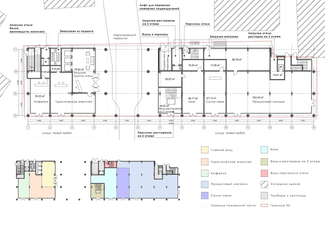
Архитектурная концепция гостиницы Ihouse. План 1 этажа
Архитектурная концепция гостиницы Ihouse. План 1 этажа
© Архитектурная мастерская «Группа АБВ»

Надо признать, что данный «ретрофутуристический» вариант реконструкции, пожалуй, способен оживить начало Нового Арбата – улицы, когда-то декларативно-современной, новой из новых, ставшей камнем преткновения в спорах о приоритетах обновления или, напротив, сохранения города. А теперь – модной, до боли шумной, сверкающей, и этим для Москвы по-своему уникальной. Дом, сияющий полированной стальной рамой, равно как и светом витрин, но в то же время сохраняющий сдержанность ритма, пропорций, формы старого здания АТС, и кроме того связанный в прообразами 1930-х, становится неплохим «правым пилоном пропилей» проспекта, особенно если учесть, что второй пилон здесь Прага, здание соврешенно иное, противоположное, неоклассическое. Да и сам ретрофутуризм сейчас – явление пиковое, актуальное, история мечты о будущем наконец осознана как таковая, и стремиться вперед не оглядываясь уже не комильфо. Оно и к лучшему.