Размещено на портале Архи.ру (www.archi.ru)

29.11.2018

Спортивный холм

Алёна Кузнецова
Объект:
Физкультурно-оздоровительный комплекс в составе ЖК «Лайково»
Адрес:
Россия, Московская обл.,, с/п Горское
Мастерская:
Архитектуриум
Авторский коллектив:
В.Н. Биндеман, Л.А. Бекарева, О.О. Бородин, В.Н. Елисеев

Академия бадминтона, спроектированная на границе ЖК «Лайково», подстраивается под окружение не выходя за рамки языка современной архитектуры.

Физкультурно-оздоровительный комплекс в составе ЖК «Лайково»
Физкультурно-оздоровительный комплекс в составе ЖК «Лайково»
© Архитектуриум

Академию бадминтона – физкультурно-оздоровительный комплекс с бассейном и спортивными залами, Владимир Биндеман спроектировал на границе жилого комплекса Лайково, крупного жилого комплекса неоклассической архитектуры, чье строительство в недавнее время оказалось, как известно, замороженным. Впрочем, здание бадминтонной академии решено самостоятельно, не спорит и не подстраивается под архитектуру жилого комплекса, что позволяет авторам полагать, что проект спортивного комплекса может оказатьсявостребованным: если не здесь, то где-то еще. 
 
Итак, спорткомплекс должен был расположиться недалеко от леса, в невысокой части ЖК, в треугольнике между стадионом и школой. По словам руководителя мастерской Владимира Биндемана, авторы стремились сделать здание Академии как можно более «незаметным», чтобы смягчить переход от одного типа застройки в другому – отсюда «зеленая» концепция: скаты кровель, обнимающие, как будто заворачивающие собой объемы, деревянные откосы порталов, и рейки «пергол», прикрывающих широкие витражи. Все это призвано растворить объем в природном окружении, раскрыть виды изнутри наружу, а снаружи несколько нивелировать его размеры. От первоначальной идеи по-настоящему озеленить все кровли растениями пришлось отказаться, но настоящую траву сменил «маскировочный» цвет окисленной меди.
Физкультурно-оздоровительный комплекс в составе ЖК «Лайково»
Физкультурно-оздоровительный комплекс в составе ЖК «Лайково»
© Архитектуриум

Композиция здания следует за набором функций: ломаные зеленые кровли, нередко спускаясь до земли, накрывают несколько двусветных объемов. Ядро – параллелепипед зала для игры в бадминтон, объединяет 16 кортов. У его торцов, по сторонам два вестибюля; в центре – «прослойка» фитнес-центра и за ним бассейн. Функционально он никак не связан с бадминтонным залом – помещения находятся на разных отметках и разделены стеной, зато с бассейном у него общие просторные раздевалки, на стыке мокрой» и «сухой» зон, чтобы одна и та же функция не дублировалась. На первом этаже фитнес-центра размещены детский зал, залы для сквоша и пинг-понга, спортивные залы побольше – на втором. В этой части предусмотрен также отдельный вход для школьников. Рядом с ним – въезд в двухуровневый подземный паркинг.
Физкультурно-оздоровительный комплекс в составе ЖК «Лайково»
Физкультурно-оздоровительный комплекс в составе ЖК «Лайково»
© Архитектуриум

Все объемы несколько разной высоты, кроме того, скаты кровель направлены в разные стороны – и зеленый холм расслаивается, раскрывается срезами витражей и вертикальных реек-«пергол». Здание, таким образом, похоже не фигуру оригами и наделено отчетливой многофасадностью, каждый ракурс раскрывается по-своему. В кровле большего вестибюля помещено круглое зенитное окно – оно не вторит ее уклону, а приподнимается выше, примерно как застрявший в траве волан, признак основной функции комплекса.
Физкультурно-оздоровительный комплекс в составе ЖК «Лайково»
Физкультурно-оздоровительный комплекс в составе ЖК «Лайково»
© Архитектуриум
Физкультурно-оздоровительный комплекс в составе ЖК «Лайково»
Физкультурно-оздоровительный комплекс в составе ЖК «Лайково»
© Архитектуриум

Самый большой, бадминтонный, зал – самый заметный: его фасад выступает «вперед и вверх» портиком острых, глубоко внесенных вперед ребер, акцентируя главенствующую роль расположенного на ним объема. Рисунок светорассеивающей сетки, необходимой для защиты игроков от прямых солнечных лучей, также обыгрывает контуры «юбки» волана, а собственно портик напоминает его развертку – говорящих деталей в проекте достаточно много.
Физкультурно-оздоровительный комплекс в составе ЖК «Лайково»
Физкультурно-оздоровительный комплекс в составе ЖК «Лайково»
© Архитектуриум
Физкультурно-оздоровительный комплекс в составе ЖК «Лайково»
Физкультурно-оздоровительный комплекс в составе ЖК «Лайково»
© Архитектуриум

Безусловно современный образ здания и динамичные линии подчеркивают спортивную функцию, но эти же каскады, асимметрия и неожиданные формы, в сочетании с деревянными «колоннадами» и зеленью крыши, делают его толерантным практически к любому окружению.
Физкультурно-оздоровительный комплекс в составе ЖК «Лайково»
Физкультурно-оздоровительный комплекс в составе ЖК «Лайково»
© Архитектуриум

Авторы планируют показать проект на выставке «Архитектурный потенциал», что, надо надеяться, даст ему шанс занять место в ряду других реализованных спортивных объектов Архитектуриума – бассейн и фитнес-центр желанны в любом жилом комплексе.
 
Физкультурно-оздоровительный комплекс в составе ЖК «Лайково». Генеральный план
Физкультурно-оздоровительный комплекс в составе ЖК «Лайково». Генеральный план
© Архитектуриум
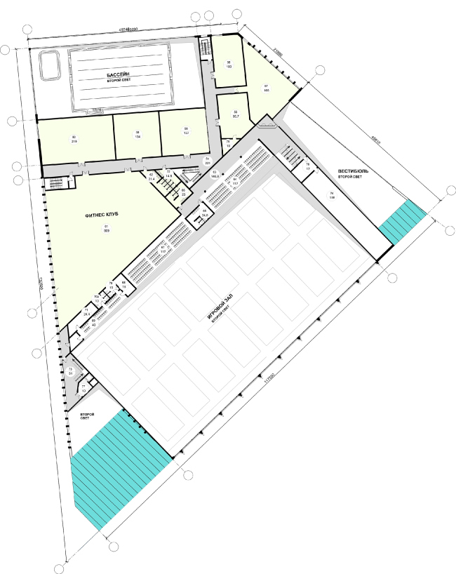
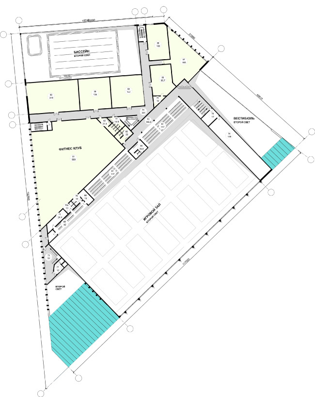
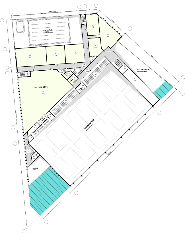
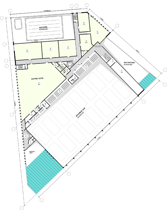
Физкультурно-оздоровительный комплекс в составе ЖК «Лайково». План 1 этажа
Физкультурно-оздоровительный комплекс в составе ЖК «Лайково». План 1 этажа
© Архитектуриум
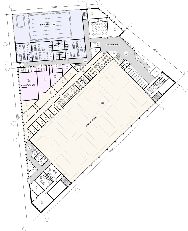
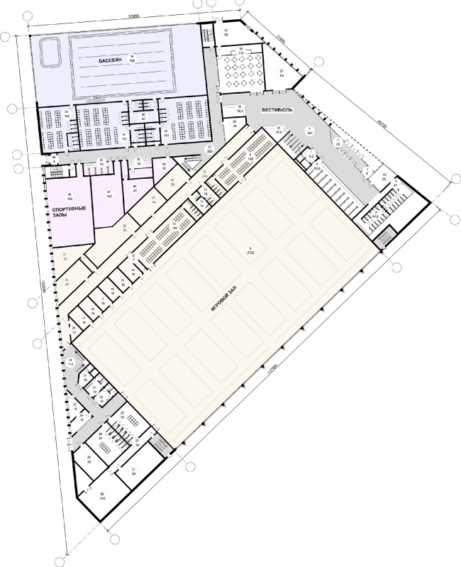
Физкультурно-оздоровительный комплекс в составе ЖК «Лайково». План 2 этажа
Физкультурно-оздоровительный комплекс в составе ЖК «Лайково». План 2 этажа
© Архитектуриум
Физкультурно-оздоровительный комплекс в составе ЖК «Лайково». План подземного этажа, 1 уровень
Физкультурно-оздоровительный комплекс в составе ЖК «Лайково». План подземного этажа, 1 уровень
© Архитектуриум