Размещено на портале Архи.ру (www.archi.ru)

30.10.2018

ЖК процветший

Алёна Кузнецова
Объект:
«Квартал Квартет»
Адрес:
Россия, Пенза.
Мастерская:
AБ «Вещь!»
sp architect
Авторский коллектив:
И.Кудряшов, С. Попрядухин
Дизайн: С.Попрядухин

Простая и ясная композиция, работа с цветом и интересное благоустройство в пензенском квартале «Квартет» от бюро sp architect.

«Квартал Квартет». Общий вид от Универсама
«Квартал Квартет». Общий вид от Универсама
© sp architect

Квартал «Квартет» будут строить на западной окраине Пензы – в вытянутой части города, которая постепенно редуцируется до трассы на Москву М5 «Урал». С одной стороны участка – оживленный проспект Строителей, с противоположной – гаражи и линия Куйбышевской железной дороги, за которой начинаются леса и дачно-коттеджные поселки. Через улицу Стасова от будущего «Квартала» расположен не так давно построенный дворец спорта «Буртасы», который окружает невзрачная жилая застройка 70-80-х годов. «Квартет» должен стать новой локальной доминантой.
«Квартал Квартет». Расположение
«Квартал Квартет». Расположение
© sp architect

От железной дороги и гаражей, которые к тому же дают санитарную зону, архитекторы отделили квартал пятиэтажным зданием паркинга. За ним следует спортивная площадка с футбольным полем, которую пересекает дорожка, ведущая из паркинга во двор жилых корпусов. Такое расположение, по замыслу авторов, на подсознательном уровне подталкивает жильцов к активному досугу на свежем воздухе, пока они каждый день следуют маршруту паркинг-квартира.

Четыре жилых корпуса высотой в 17 этажей стоят по углам почти квадратного в плане участка, образуя закрытый от машин и проницаемый для пешеходов двор. С запада и востока корпуса объединены стилобатом. Дорожки рекреационных зон двора и спортивной площадки ориентированы диагонально, что придает плану сходство с «Супрематической композицией» Казимира Малевича.
«Квартал Квартет». Благоустройство
«Квартал Квартет». Благоустройство
© sp architect

Получилось три квадрата: «сердцевина» двора, «пояс» жилых корпусов и «рамка» из внутриквартальных проездов с открытыми паркингами. На эту идею «центричности» работают также фасады – со стороны улицы жилые корпуса одеты в темно-серую «кожуру», а во двор смотрят ласковым цветом слоновой кости. Но квартал не то чтобы неприступен: некоторые торцы оставили светлыми, чтобы «приоткрыть» внутреннее пространство стороннему зрителю.
«Квартал Квартет». Общий вид комплекса
«Квартал Квартет». Общий вид комплекса
© sp architect

Пластические приемы на всех фасадах одинаковые: выдвинутые «объективы» балконов расположены не регулярно, и вместе с корзинами для кондиционеров и декоративными наличниками окон создают динамичную и пластичную композицию. Балконы расположены через этаж, что отображает разнообразие планировок квартир. Решающую роль играют цветовые сочетания: если фисташковые вкрапления на контрастном темно-сером фоне вызывают ассоциации с бойницами, то на нейтральном бежевом – скорее с пузырьками шампанского. Хотя все в целом может напомнить о первых листьях в весеннем лесу – что должно неплохо работать на поддержание позитивного настроения жильцов.
«Квартал Квартет». Дом 1. Западный фасад © sp architect
«Квартал Квартет». Дом 1. Западный фасад © sp architect

Первые этажи всех корпусов и стилобаты облицованы фиброцементными плитами того же зеленого цвета, который продолжается в интерьере входных групп и общественных мест.
«Квартал Квартет»
«Квартал Квартет»
© sp architect
«Квартал Квартет». Общий вид двора
«Квартал Квартет». Общий вид двора
© sp architect
«Квартал Квартет». Концепция оформления интерьера. Западная скоба. Подъезд 1
«Квартал Квартет». Концепция оформления интерьера. Западная скоба. Подъезд 1
© sp architect

Благоустройством «Квартета» занималось архитектурное бюро «Вещь», которое сделало двор еще более «своим» и «домашним», добавив простых радостей: холм для зимней горки, зоны для пикников и модули в виде кубиков лего, под навесом которых есть столики, гамаки или качели.
«Квартал Квартет». Общий вид благоустройства
«Квартал Квартет». Общий вид благоустройства
© sp architect
«Квартал Квартет». Благоустройство. Спортивное ядро. Фрагмент
«Квартал Квартет». Благоустройство. Спортивное ядро. Фрагмент
© sp architect
«Квартал Квартет». Благоустройство. Элементы наполнения двора
«Квартал Квартет». Благоустройство. Элементы наполнения двора
© sp architect
«Квартал Квартет». Дом 1. Фасады © sp architect
«Квартал Квартет». Дом 1. Фасады © sp architect
«Квартал Квартет». Дом 2. Фасады
«Квартал Квартет». Дом 2. Фасады
© sp architect
«Квартал Квартет». Анализ освещенности и затенения территории © sp architect
«Квартал Квартет». Анализ освещенности и затенения территории © sp architect
«Квартал Квартет». Схема планировочных решений
«Квартал Квартет». Схема планировочных решений
© sp architect
«Квартал Квартет». Схема генплана
«Квартал Квартет». Схема генплана
© sp architect
«Квартал Квартет». Схема блокировки. Первый этаж © sp architects
«Квартал Квартет». Схема блокировки. Первый этаж © sp architects
«Квартал Квартет». Схема блокировки. 3-й этаж
«Квартал Квартет». Схема блокировки. 3-й этаж
© sp architect
«Квартал Квартет». Дом №1. Секция 1А (Западная скоба). План 1 этаж © sp architect
«Квартал Квартет». Дом №1. Секция 1А (Западная скоба). План 1 этаж © sp architect
© sp architect
«Квартал Квартет». Блок-вставка. План 1 этажа
«Квартал Квартет». Блок-вставка. План 1 этажа
© sp architect
«Квартал Квартет». Дом №1. Секции 1Б и 1В (Южная скоба). План 1 этажа
«Квартал Квартет». Дом №1. Секции 1Б и 1В (Южная скоба). План 1 этажа
© sp architect
«Квартал Квартет». Дом 1. Секция 1Б и 1В (Южная скоба). 3 этаж
«Квартал Квартет». Дом 1. Секция 1Б и 1В (Южная скоба). 3 этаж
© sp architect
«Квартал Квартет». Дом №2. Секция 2А (Восточная скоба). План 1 этажа
«Квартал Квартет». Дом №2. Секция 2А (Восточная скоба). План 1 этажа
© sp architect
«Квартал Квартет». Дом №2. Секция 2А (Восточная скоба). План 3 этажа
«Квартал Квартет». Дом №2. Секция 2А (Восточная скоба). План 3 этажа
© sp architect
«Квартал Квартет». Дом №2. Секция 2Б и 2В (Северная скоба). План 1 этажа
«Квартал Квартет». Дом №2. Секция 2Б и 2В (Северная скоба). План 1 этажа
© sp architect
«Квартал Квартет». Схема разреза 1-1
«Квартал Квартет». Схема разреза 1-1
© sp architect
«Квартал Квартет». Закрытый многоуровневый паркинг. Фасады
«Квартал Квартет». Закрытый многоуровневый паркинг. Фасады
© sp architect
«Квартал Квартет». Закрытый многоуровневый паркинг. План типового этажа. Разрез 1-1
«Квартал Квартет». Закрытый многоуровневый паркинг. План типового этажа. Разрез 1-1
© sp architect
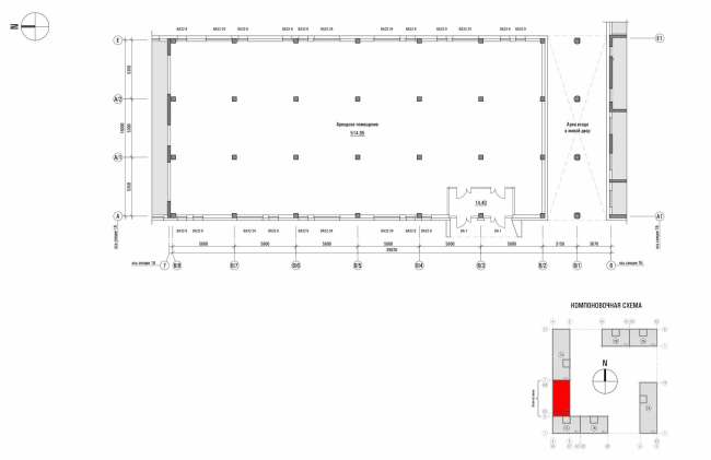
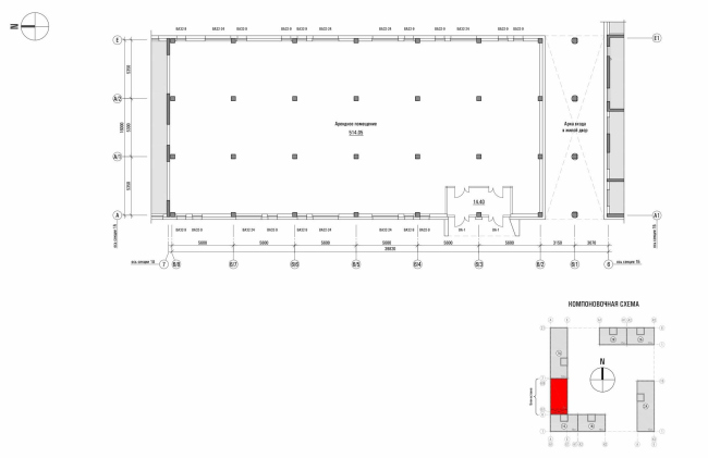
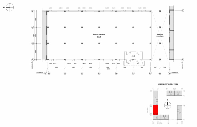
«Квартал Квартет». Закрытый многоэтажный паркинг. 1 этаж
«Квартал Квартет». Закрытый многоэтажный паркинг. 1 этаж
© sp architect