Размещено на портале Архи.ру (www.archi.ru)

21.11.2018

Ювелирная работа

Юлия Тарабарина
Объект:
Клубный дом «Долгоруковская 25»
Адрес:
Россия, Москва. ул. Долгоруковская, вл. 25
Мастерская:
Проектное бюро АПЕКС
Авторский коллектив:
Сергей Сенкевич, Иван Анохин
Дарья Шубенкова, Мария Столярова, Полина Илюшина, Евгений Чебышев, Алексей Пивень
 

Два корпуса дома на Долгоруковской улице похожи на древнерусские ларцы, а кирпич их стен вторит колокольне церкви Николая в Новой слободе. Проект, пусть небольшой, стал результатом тщательного анализа окружения и выбора из многих вариантов.

Клубный дом с подземной парковкой «Долгоруковская 25». Внутренний двор
Клубный дом с подземной парковкой «Долгоруковская 25». Внутренний двор
© Проектное бюро АПЕКС

Речь о миниатюрном участке – всего лишь 0,32 га, 30 соток, на второй линии Долгоруковской улицы, в крайне разномастном и столь же интересном историческом окружении, к северу от Никольской церкви, анфас полукруглой площади Итальянского квартала Михаила Филиппова, за пятачком сквера местной собачьей площадки. К церкви «нарышкинской» архитектуры конца XVII века в 1904 году пристроили кирпичную трапезную и колокольню в неорусском стиле, переходном от эклектики к модерну. Церковь простояла до 1930-х, когда ее передали музею атеизма, а затем снесли, заменив зданием Союзмультфильма – неплохим, в сущности, памятником постконструктивизма; в 2018 его передали общине церкви. Сейчас ансамбль выглядит странно, как многие результаты советских вторжений в храмовые комплексы, но – при этом крайне романтично, в основном благодаря покрытой столетней патиной темно-кирпичной колокольне; человеку несведущему она может напомнить кирпичную готику, хотя архитекторы Воскресенский и Курдюков в начале XX века вдохновлялись, конечно, прообразами конца XVII столетия. Но главное – колокольня определенно «держит» на себе окружающее городское пространство.
Памятники и доминанты района
Памятники и доминанты района
© Проектное бюро АПЕКС

Дальше здесь вокруг все устроено не менее по-московски. Церковь и территория к северу от нее принадлежала Союзмультфильму и была занята небольшими строениями разного времени и степени заброшенности. Большую часть из них планируется снести, одно – небольшой, в три окна, деревянный дом 1821 года, выходящий на Долгоруковскую – имеет статус вновь выявленного памятника. Фактически, корпуса нового клубного дома займут территорию городской усадьбы статского советника Андрея Александровича Петрово-Соколово, построившего этот дом; в середине XIX века здесь был небольшой пруд, а к 1880-м фабрика. Союзмультфильм использовал дом как проявочную, но в 2004 году сруб дома наполовину обрушился, так что, по словам архитекторов, наилучший выход – переборка дома на новом фундаменте.
Клубный дом с подземной парковкой «Долгоруковская 25». Вид на комплекс с высоты птичьего полета
Клубный дом с подземной парковкой «Долгоруковская 25». Вид на комплекс с высоты птичьего полета
© Проектное бюро АПЕКС

Но вернемся к окружению. Ближайший сосед усадьбы Петрово-Соколово, дом прусского подданного Августа Зиберта – раннее, 1891 года, произведение Романа Ивановича Клейна, мастера стиля неогрек, автора Музея изобразительных искусств на Волхонке и ЦУМа; дом несколько подпорчен недавним ремонтом, и все же соседство более чем обязывающее. Следующий, если считать от центра – доходный дом товарищества Фишер, неоготика 1910-х. Напротив, через улицу, брежневские и лужковские гиганты. Так что вокруг миниатюрного пятачка рассматриваемого участка сгруппировались почти все варианты московской застройки. Авторам, следовательно, необходимо было учесть разнообразное соседство – но прежде всего то, каким фоном новый клубный дом станет для дома 1821, и для соседнего дома Романа Клейна.
Вид на клубный дом «Долгоруковская 25» с Долгоруковской улицы. Проект
Вид на клубный дом «Долгоруковская 25» с Долгоруковской улицы. Проект
© Проектное бюро АПЕКС

С таким уровнем ответственности, небольшим участком и высотным ограничением 23 м архитекторы решили проектировать осторожно, лепя будущий дом постепенно – показывая заказчику варианты, отметая и дорабатывая. Получилось в общей сложности 9 версий, довольно разных – с консолью «подвешенной» городской виллы, с заостренным авангардным носом, с современным фасадом из респектабельных вертикальных окон, или с длинным «протуберанцем», этакой любопытной «головой» в створе между усадьбой Соколова и Никольской церковью. Рассматривали протяженные объемы, зигзагообразные и с внутренним двором, и похожие на броненосца бионически-нелинейные.
Варианты жилого комплекса
Варианты жилого комплекса
© Проектное бюро АПЕКС
Вариант 2. Аксонометрия
Вариант 2. Аксонометрия
© Проектное бюро АПЕКС
Вариант 2
Вариант 2
© Проектное бюро АПЕКС
Вариант 4
Вариант 4
© Проектное бюро АПЕКС
Вариант 4
Вариант 4
© Проектное бюро АПЕКС

Исходные данные, впрочем, для всех вариантов общие – еще раз подчеркнем, авторы внимательно проанализировали окрестности как с точки зрения архитектурных точек отсчета, так и относительно видов – и на дом, и из него. Буквально стремясь извлечь максимум информации для проработки в проекте. Даже рассмотрели ретроспективно характер застройки в XX и XIX (!) веке, получив любопытные схемы. Не забыли о церкви Пимена, и о когда-то бывших на Миусской площади торговых рядах. Словом, работа проведена дотошная.
Долгоруковская, 25. Визуальные коридоры
Долгоруковская, 25. Визуальные коридоры
© Проектное бюро АПЕКС
Долгоруковская, 25. Схема развития района на XIX век
Долгоруковская, 25. Схема развития района на XIX век
© Проектное бюро АПЕКС
Долгоруковская, 25. Схема развития района на XX век
Долгоруковская, 25. Схема развития района на XX век
© Проектное бюро АПЕКС
Долгоруковская, 25. Схема развития района на XXI век
Долгоруковская, 25. Схема развития района на XXI век
© Проектное бюро АПЕКС

А основные результаты следующие: самый интересный сосед – колокольня Никольской церкви, в свое время это отлично понял Михаил Филиппов, сориентировав свой огромный ЖК на нее концентрически и тем самым еще раз подчеркнув роль кирпичный башни. Далее – два ближайших соседа очень миниатюрны, да и до-брежневская застройка здесь была в основном в том же «московском» масштабе. Доходный дом товарищества Фишер крупнее, но зато обладает «ритмом дворов человеческого масштаба». И наконец, одну из главных проблем составляло облицованное керамогранитом здание, примыкающее к северной границе участка, точнее, его глубоко вынесенный ризалит, подступающий прямо к границе; сейчас там банк.

От ризалита требовалось отступить, и с этой стороны образовался небольшой дворик, который архитекторы превратили в курдонер – cour d’honneur, «двор чести», неизменная принадлежность замков и дворцов, как французских, так и палладианских.
Анализ существующих ограничений
Анализ существующих ограничений
© Проектное бюро АПЕКС

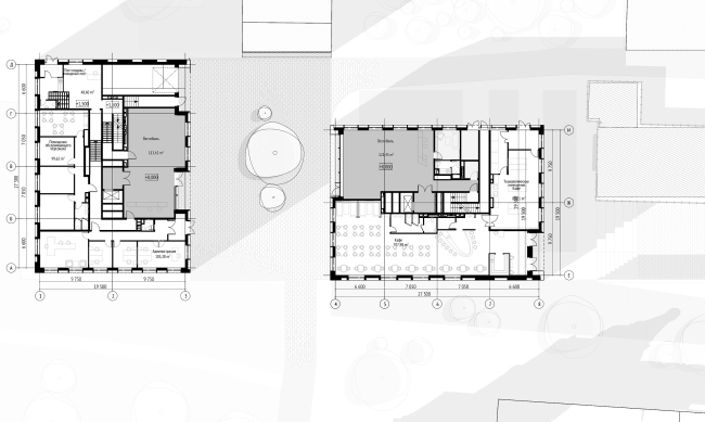
Остановить выбор на одном варианте из девяти помогли аналогии с колокольней, купеческой Москвой и Парижем: получилось два компактных прямоугольных корпуса близких параметров, развернутых под прямым углом друг к другу. Между ними – двор, отступающий от банковского ризалита, к югу он продолжается тропинкой в сторону Пыхова переулка и колокольни. Под двором, как и под всем пятном застройки – 2 яруса подземной парковки. Ближе ко двору и ризалиту северного «соседа» в первых этажах сгруппированы входные вестибюли. Первые этажи общественные, в западном, поставленном в глубине территории, корпусе ground floor, помимо входной зоны, занят офисами управляющей компании, в восточном запланировано кафе. Его продолжение – спускающиеся с Долгоруковской во двор ступеньки «амфитеатра», они отделяют пространство клубного дома от шума улицы.
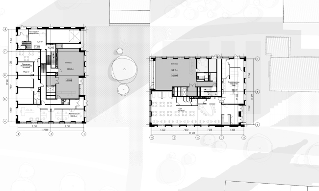
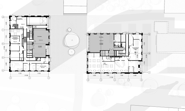
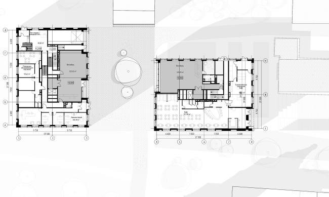
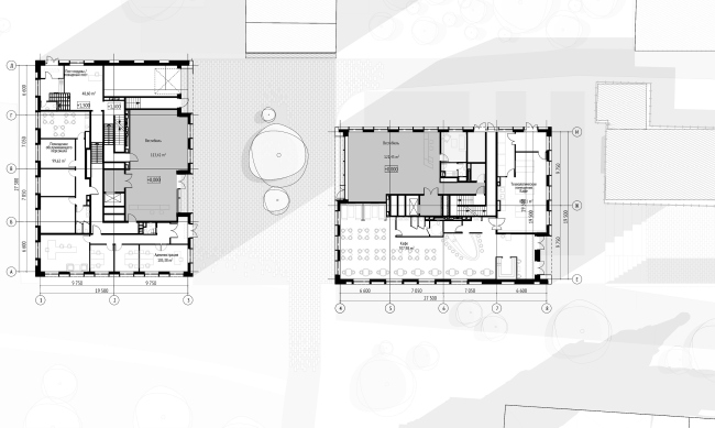
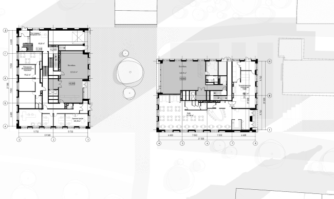
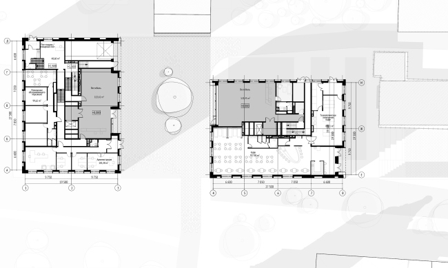
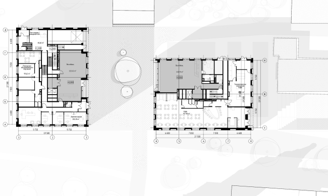
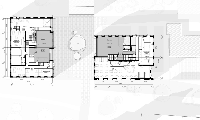
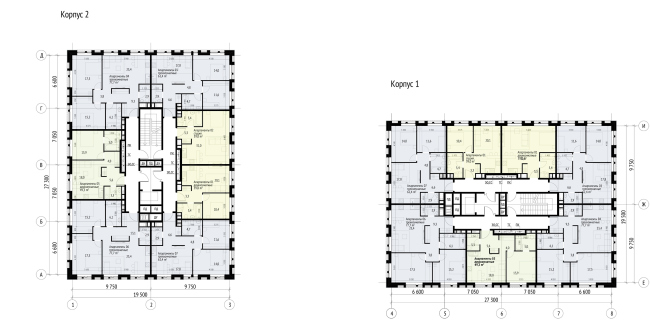
План 1 этажа на отм. 0.000  © Проектное бюро АПЕКС
План 1 этажа на отм. 0.000 © Проектное бюро АПЕКС

Апартаменты на 2-4 этажах – двух-трехкомнатные, от 39 до 78 м2. Зато вверху задуманы двухуровневые пентхаусы – они по контуру обступают центр, скрывая за собой выступы технического этажа (авторы считают важным, что техсооружения не должны быть заметны). Внешние стены пентхаусов наклонены внутрь, сходство с мансардой – парижской составляющей образа – подчеркнуто декоративными «створками ставен» из стеклофибробетона; они же объединяют верх ради большей цельности объема.
Схема разреза
Схема разреза
© Проектное бюро АПЕКС
План 3-4 этажей
План 3-4 этажей
© Проектное бюро АПЕКС

Скошенный силуэт придал дому ясно читаемое сходство с древнерусским ларцом, каких еще много в краеведческих музеях, и это сходство порадовало авторов, поскольку созвучно купеческой-мещанской Москве и их поискам исторического контекста – получилось своего рода «возвращение купеческого города», но не в виде одного из множества утраченных здесь одно- и двухэтажных особняков, а опосредованно, как сейчас принято, через образ вещи, укрупненной до размеров дома.
Вид с Пыхов-Церковного проезда
Вид с Пыхов-Церковного проезда
© Проектное бюро АПЕКС

Родство же с главным акцентом – колокольней – подчеркнуто кирпичной облицовкой. Кирпич выбран полнотелый, ручной работы, бесшовный, с выемкой по краю, подчеркивающий ребра стыков. Авторы подчеркивают, что его применение необходимо для достижения нужного эффекта – конечно же, не только чтобы вписать дома в контекст, но и чтобы подчеркнуть их «драгоценность» через родство с самым интересным объектом окружения. Кстати, подчеркивая «драгоценность» дома предложенные интерьеры используют золотистый оттенок, которому вторят, откосы окон – из панелей, имитирующих медь; как будто золотое свечение сокровищ немного просачивается изнутри, бросая медный «блик».
Фрагмент фасада
Фрагмент фасада
© Проектное бюро АПЕКС
Сечение фасада
Сечение фасада
© Проектное бюро АПЕКС

Кстати у колокольни, между вторым и третьим звоном есть перепад уровней, характерный, в принципе, для «нарышкинских» силуэтов скачок – он также перекликается с мансардным скосом клубных корпусов. Теперь, впрочем, у архитекторов возник новый повод для волнения: началось восстановление Никольской церкви, а вдруг колокольню заштукатурят? Впрочем, надо думать, опасение беспочвенное – ее фасады всегда были только кирпичными, и органы охраны в здравом уме не должны разрешить штукатурку.
Развертка по Долгоруковской улице
Развертка по Долгоруковской улице
© Проектное бюро АПЕКС
Развертка по Пыхов-Церковному проезду
Развертка по Пыхов-Церковному проезду
© Проектное бюро АПЕКС

Кирпичная кладка разбавлена орнаментальными вставками: цветочными, напоминающими жуковины средневековых ларцов, и меандром, который служит своего рода поклоном соседу-Клейну. Получилось похоже на дом Игумнова. Абрисы домов-ларцов несколько приземисты из-за высотных ограничений и «башенной» типологии с коммуникационным ядром в центре объема, – это признают и авторы проекта. Впрочем, с одной стороны, для «ларцов» такая форма даже подходит, а с другой – архитекторы боролись с приземистостью всеми возможными средствами: убрали почти все горизонтальные членения, кроме меандров, и немного приподняли общую высоту.

Словом, строительство началось, и к 2019 во дворах на Долгоруковской должны появиться два дома-ларца, оживив своим нетипичным силуэтом многообразие окружающего города.