Размещено на портале Архи.ру (www.archi.ru)

12.10.2018

Школа открытых дверей

Алёна Кузнецова
Объект:
Гимназия А+
Адрес:
Украина, Киев. ул. Березнева, 14
Жилой квартал «Комфорт-таун»
Адрес:
Украина, Киев. ул. Регенераторная, д. 4
Архитектор:
Александр Попов
Ольга Чернова
Мастерская:
Архиматика
Авторский коллектив:
Архитекторы: Попов А., Васильев Д., Нестерук М., Оначук Е., Алферова О., Босенко А., Ржанова Ж., Веденко Т., Грабар С., Бебшко В., Лимаренко О., Гнатиенко В., Путаненко С., Романенко Е., Синенко В., Синенко И., Столовой А., Юрасов И., Явецкий П., Чубаров А.

Инженеры и констуркторы: Савко В., Курочкин Р., Войтенко О., Загородный В., Малежик А., Назаренко А., Рубаненко А., Шевчук И., Стадник Т., Сухар Р., Шубенко А., Цимбал А., Ляшиченко И.
 

Гимназия А+ на территории киевского ЖК «Комфорт-таун» по проекту компании АРХИМАТИКА примечательна не только архитектурой «дружелюбного форта», но и открытостью: она спланирована так, что время здесь могут проводить как ученики и их родители, так и другие взрослые и дети.

Гимназия А+, проект © Архиматика
Гимназия А+, проект © Архиматика

Гимназия А+ открылась на территории ЖК «Комфорт-таун», также спроектированного АРХИМАТИКОЙ. Здесь же располагается еще один проект компании: комплекс «Академии современного образования А+», состоящий из детского сада, школы искусств и начальной школы. В гимназии А+ дети будут учиться с 3 по 12 классы.

Формально гимназия – одно из тех «обременений» для застройщиков, которое обеспечивает новые жилые комплексы «школоместами». Сначала здесь планировалась обычная государственная общеобразовательная школа, но оказалось, что у города нет средств взять ее на баланс – тогда KAN Development пригласил частную. В результате получилось одно из лучших учебных заведений Киева по всем параметрам: с точки зрения архитектуры, образовательной программы и технического оснащения.
Гимназия А+, проект © Архиматика
Гимназия А+, проект © Архиматика

Участок выбрали на краю «Комфорт-тауна» – у пересечения улиц Березнева и Вифлеемской. Недалеко проходит железнодорожная линия, которая дала санитарно-защитную зону в 100 м. Из-за этого под застройку остался лишь «пятачок», зато вокруг него – большая свободная территория, на которой разместили парк, игровые и спортивные площадки, стадион. Просчитав инсоляционные нормы архитекторы пришли к оптимальной форме – квадратному в плане зданию с двором-колодцем.
Гимназия А+, проект. Генплан © Архиматика
Гимназия А+, проект. Генплан © Архиматика

Архитекторы хотели сделать гимназию строгой – не только для контраста с яркими домами «Комфорт-тауна», но и как выражение идеи фундаментальности образования. В то же время она должна была выглядеть дружелюбной и открытой. На все эти задачи работают форма, цвет и материалы.

Бюджет не позволил сделать фасады полностью каменными, поэтому пришлось искать компромисс. Единственной подходящей штукатуркой архитекторы посчитали Baumit: «за естественный хаос вкраплений разных оттенков серого и черного». Под нее подбирали камень: остановились на армянском базальте – материал не слишком распространенный и узнаваемый, поэтому, как говорят авторы, не отсылает к музеям или мемориальным сооружениям. По выражению одного из главных архитекторов проекта Ольги Черновой, камень этот «мягкий и дружелюбный, как сами армяне, которые ко всем относятся по-семейному». Еще один оттенок серого дает металлическая крыша со свободными скатами.

Первый этаж выложен фактурными глыбами базальта – мощное основание, как руины древнего монастыря, от которого вверх устремляются разной толщины «плитки» вертикально рустованной штукатурки.
Гимназия А+, реализация, двор © Архиматика. Фотография © Александр Ангеловский
Гимназия А+, реализация, двор © Архиматика. Фотография © Александр Ангеловский
Гимназия А+, реализация, двор © Архиматика. Фотография © Александр Ангеловский
Гимназия А+, реализация, двор © Архиматика. Фотография © Александр Ангеловский
Гимназия А+, реализация, двор © Архиматика. Фотография © Александр Ангеловский
Гимназия А+, реализация, двор © Архиматика. Фотография © Александр Ангеловский
Гимназия А+, реализация, двор © Архиматика. Фотография © Александр Ангеловский
Гимназия А+, реализация, двор © Архиматика. Фотография © Александр Ангеловский
Гимназия А+, реализация, двор © Архиматика. Фотография © Александр Ангеловский
Гимназия А+, реализация, двор © Архиматика. Фотография © Александр Ангеловский

Сделать здание полностью серым не удалось – нужно было разместить на главном фасаде логотип гимназии «А+» цвета марсала. Оказалось, что смотрится это органично, тогда немного цвета добавили всему фасаду – ультраматовой краской того же оттенка покрасили обрамления окон.
Гимназия А+, проект. КПП © Архиматика
Гимназия А+, проект. КПП © Архиматика

Выбранный архитекторами сдержанный образ здания гимназии поставил перед ними задачу «как можно дальше уйти от сходства с замком Иф», сделать его спокойным но не суровым, благородным но не мрачным. Скорее, по замыслу авторов, абрис скатной кровли должен напомнить горы, арка – вход в пещеру; может быть, даже вызвать в памяти романтические книжно-киношные образы встречи с наставником – как в «Звездных войнах», да и еще много где.
Гимназия А+, проект
Гимназия А+, проект
© Архиматика

Главный фасад гимназии от почти глухой стены переходит к «хрустальному» витражу почти на всю высоту здания, затем его прорезают окна классов и 25-метровый пролет безопорной арки – он приглашает, почти затягивает во двор с амфитеатром. Во дворе планируется проводить линейки, концерты, выступления театральной студии, а иногда даже уроки.

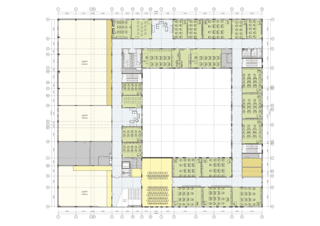
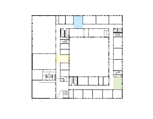
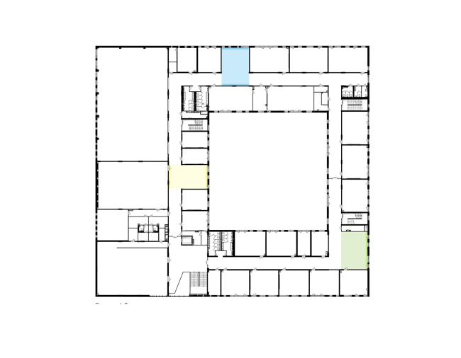
Окна первого этажа на главном фасаде – кафетерий для родителей, отделенный от школы системой доступа. Рядом библиотека, у нее есть собственный выход во двор гимназии, при необходимости библиотеку также можно закрыть от остальных помещений школы для проведения открытых общественных мероприятий, тренингов, презентаций книг и литературных вечеров. По замыслу архитекторов и администрации школы библиотека должна стать культурным «хабом» всего района. Также на первом этаже расположен спортивный зал, сертифицированный по стандартам FIFA, столовая, учительская в формате open space, гардероб, медпункт и несколько кабинетов информатики и технологий.
Гимназия А+, реализация © Архиматика. Фотография © Александр Ангеловский
Гимназия А+, реализация © Архиматика. Фотография © Александр Ангеловский
Гимназия А+, реализация © Архиматика. Фотография © Александр Ангеловский
Гимназия А+, реализация © Архиматика. Фотография © Александр Ангеловский
Гимназия А+, реализация © Архиматика. Фотография © Александр Ангеловский
Гимназия А+, реализация © Архиматика. Фотография © Александр Ангеловский
Гимназия А+, реализация © Архиматика. Фотография © Александр Ангеловский
Гимназия А+, реализация © Архиматика. Фотография © Александр Ангеловский
Гимназия А+, реализация © Архиматика. Фотография © Александр Ангеловский
Гимназия А+, реализация © Архиматика. Фотография © Александр Ангеловский

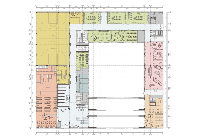
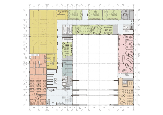
На втором этаже – актовый зал на 200 человек, гимнастический зал, кабинеты математики, химии, физики и биологии. Одно крыло занимает младшая школа – ученики третьих и четвертых классов, у которых есть своя зона отдыха: здесь можно поваляться на «траве», спрятаться в домике или покачаться на лианах.
Гимназия А+, реализация. Интерьер игровой © Архиматика. Фотография © Александр Ангеловский
Гимназия А+, реализация. Интерьер игровой © Архиматика. Фотография © Александр Ангеловский
Гимназия А+, реализация © Архиматика. Фотография © Александр Ангеловский
Гимназия А+, реализация © Архиматика. Фотография © Александр Ангеловский
Гимназия А+, реализация © Архиматика. Фотография © Александр Ангеловский
Гимназия А+, реализация © Архиматика. Фотография © Александр Ангеловский
Гимназия А+, реализация © Архиматика. Фотография © Александр Ангеловский
Гимназия А+, реализация © Архиматика. Фотография © Александр Ангеловский

На третьем этаже расположена арт-студия, универсальный репетиционный зал black box и лекционный зал на 150 мест, который легко превращается в кинотеатр. На всех этажах коридоры создают кольцо-квадрат вокруг кабинетов и рекреационных пространств. Над интерьерами школы АРХИМАТИКА работала в сотрудничестве со Svoya Studio.
Гимназия А+, реализация © Архиматика. Фотография © Александр Ангеловский
Гимназия А+, реализация © Архиматика. Фотография © Александр Ангеловский
Гимназия А+, реализация © Архиматика. Фотография © Александр Ангеловский
Гимназия А+, реализация © Архиматика. Фотография © Александр Ангеловский
Гимназия А+, реализация © Архиматика. Фотография © Александр Ангеловский
Гимназия А+, реализация © Архиматика. Фотография © Александр Ангеловский
Гимназия А+, реализация © Архиматика. Фотография © Александр Ангеловский
Гимназия А+, реализация © Архиматика. Фотография © Александр Ангеловский
Гимназия А+, реализация © Архиматика. Фотография © Александр Ангеловский
Гимназия А+, реализация © Архиматика. Фотография © Александр Ангеловский
Гимназия А+, реализация © Архиматика. Фотография © Александр Ангеловский
Гимназия А+, реализация © Архиматика. Фотография © Александр Ангеловский
Гимназия А+, реализация © Архиматика. Фотография © Александр Ангеловский
Гимназия А+, реализация © Архиматика. Фотография © Александр Ангеловский
Гимназия А+, реализация © Архиматика. Фотография © Александр Ангеловский
Гимназия А+, реализация © Архиматика. Фотография © Александр Ангеловский
Гимназия А+, реализация © Архиматика. Фотография © Александр Ангеловский
Гимназия А+, реализация © Архиматика. Фотография © Александр Ангеловский
Гимназия А+, реализация © Архиматика. Фотография © Александр Ангеловский
Гимназия А+, реализация © Архиматика. Фотография © Александр Ангеловский

У школы автономная система отопления и кондиционирования: под футбольным полем пробито 170 скважин для геотермального теплового насоса. Уличные фонари работают на солнечных батареях, на парковке есть розетки для электромобилей. Также на территории гимназии имеется теплица и небольшой огород. По словам руководителя авторского коллектива Александра Попова, энергоэффективные решения – не просто дань моде. С тех пор как в Украине поднялись тарифы, такие вещи стали окупаться, и спрос на них сейчас растет.
Гимназия А+, реализация © Архиматика. Фотография © Александр Ангеловский
Гимназия А+, реализация © Архиматика. Фотография © Александр Ангеловский
Гимназия А+, реализация © Архиматика. Фотография © Александр Ангеловский
Гимназия А+, реализация © Архиматика. Фотография © Александр Ангеловский
Гимназия А+, реализация © Архиматика. Фотография © Александр Ангеловский
Гимназия А+, реализация © Архиматика. Фотография © Александр Ангеловский
Гимназия А+, реализация © Архиматика. Фотография © Александр Ангеловский
Гимназия А+, реализация © Архиматика. Фотография © Александр Ангеловский
Гимназия А+, реализация © Архиматика. Фотография © Александр Ангеловский
Гимназия А+, реализация © Архиматика. Фотография © Александр Ангеловский
Гимназия А+, реализация © Архиматика. Фотография © Александр Ангеловский
Гимназия А+, реализация © Архиматика. Фотография © Александр Ангеловский
Гимназия А+, реализация © Архиматика. Фотография © Александр Ангеловский
Гимназия А+, реализация © Архиматика. Фотография © Александр Ангеловский

Одна из главных особенностей гимназии А+, которую удалось воплотить в числе прочего инструментами архитектуры, – ее открытость. В лекционный зал для потока из двух-трех классов приглашают телеведущих, политиков, артистов и спортсменов, которые читают лекции или проводят мастер-классы. Актовый зал, который при желании можно отгородить от остальных помещений, – может использоваться как камерный театр, его акустическая и световая системы соответствуют требованиям. Планируется, что здесь будут выступать как ученики, так и участники театральной лаборатории «Ревью». Футбольное поле размером 60х40 м в качестве домашней арены будет использовать юношеский футбольный клуб «Вулкан». Летом школа превращается в лагерь с различными студиями.

Родители могут пользоваться кафетерием, по вечерам – спортивными площадками школы и услугами тренера, могут записаться в театральную студию. Школа вовлекает их и в другие мероприятия – подобные Венскому балу, к которому нужно разучить вальс и продумать костюмы. Жители «Комфорт-тауна», к слову, получают небольшую скидку на обучение детей.

***

Школы, похоже, становятся «сопутствующей» специализацией АРХИМАТИКИ. Это представляется логичным, но на деле встречается не так уж часто: школы и детские сады нередко проектируют «в довесок», не уделяя им особенного внимания. Впрочем, сравнивать частные учреждения и государственные не совсем правильно, программы последних все еще слишком далеки от современной педагогики.

По проекту АРХИМАТИКи в Киеве построены корпус Печерской международной школы и упомянутый выше комплекс «Академии современного образования А+» для детей помладше. Следующую школу компания планирует строить в жилом квартале «Файна Таун», потом будет спортивная в ЖК «Республика», обе под брендом А+.
 
Гимназия А+, проект. Разрез поперечный © Архиматика
Гимназия А+, проект. Разрез поперечный © Архиматика
Гимназия А+, проект. Разрез продольный © Архиматика
Гимназия А+, проект. Разрез продольный © Архиматика
Гимназия А+, проект. План 1 этажа  © Архиматика
Гимназия А+, проект. План 1 этажа © Архиматика
Гимназия А+, проект. План 2 этажа  © Архиматика
Гимназия А+, проект. План 2 этажа © Архиматика
Гимназия А+, проект. План 3 этажа  © Архиматика
Гимназия А+, проект. План 3 этажа © Архиматика
Гимназия А+, проект. Планировка 1 этажа © Архиматика
Гимназия А+, проект. Планировка 1 этажа © Архиматика
Гимназия А+, проект. Планировка 2 этажа © Архиматика
Гимназия А+, проект. Планировка 2 этажа © Архиматика
Гимназия А+, проект © Архиматика
Гимназия А+, проект © Архиматика