Размещено на портале Архи.ру (www.archi.ru)

02.10.2018

Реконструкция с гармонизацией

Алёна Кузнецова
Объект:
Гостиница на площади Советской Армии
Адрес:
Россия, Екатеринбург. ул. Луначарского, 128
Мастерская:
АБ Center
Авторский коллектив:
Андрей Андреевич Чуйков, Андрей Леонидович Фасонов, Иван Сергеевич Ковалев

Проект гостиницы от АБ Center – по сути реконструкция здания техникума в центре Екатеринбурге, которая не только увеличит число квадратных метров и преобразит фасады, но и поставит точку в формировании ансамбля городской площади.


Гостиница на площади Советской Армии © АБ Center
Гостиница на площади Советской Армии © АБ Center

«Основой» для будущей гостиницы станет здание на улице Луначарского, 128, которое выходит на площадь Советской Армии – важное городское пространство, где традиционно проходят различные торжественные мероприятия от праздников до митингов.

Главный объем здания – прямоугольный четырехэтажный корпус техникума «Кулинар», переехавшего сюда в 1960-е годы. К нему со стороны проезжих улиц «углом» пристроены двухэтажные корпуса: в более протяженном располагается банк, в торцевом – ресторан. Архитекторы из бюро Center получили заказ на проектирование в этом разросшемся здании гостиницы, но подошли к задаче шире: обновили все фасады и заодно исправили градостроительную неувязку.
Гостиница на площади Советской Армии. Ситуационный план © АБ Center
Гостиница на площади Советской Армии. Ситуационный план © АБ Center

За точку отсчета авторы проекта взяли тот факт, что здание выходит на значимую площадь и провели ее «морфологический анализ».

Площадь Советской Армии в основном формируют общественные здания: Министерство по управлению государственным имуществом, Институт горного дела, Окружной Дом офицеров. Частью ее ансамбля также является комплекс Городка Чекистов на улице Луначарского. Между ним и девятиэтажным жилым домом на улице Первомайская, 32 – как раз обросший пристройками техникум «Кулинар», самое слабое с точки зрения композиции площади место.

Чтобы устранить визуальный «провал» и сделать геометрию всего здания более чистой, архитекторы предлагают «поднять» двухэтажный объем, пристроенный со стороны площади, до высоты соседнего здания. Это завершит ансамбль площади, очертит ее южную границу, акцентирует перекресток, а кроме того, будет спрятан хозяйственный двор техникума.
Гостиница на площади Советской Армии. Выдержка из анализа ансамбля площади Советской Армии © АБ Center
Гостиница на площади Советской Армии. Выдержка из анализа ансамбля площади Советской Армии © АБ Center
Гостиница на площади Советской Армии. МУГИСО © АБ Center
Гостиница на площади Советской Армии. МУГИСО © АБ Center
Гостиница на площади Советской Армии. МУГИСО © АБ Center
Гостиница на площади Советской Армии. МУГИСО © АБ Center
Гостиница на площади Советской Армии. Вид по ул. Луначарского © АБ Center
Гостиница на площади Советской Армии. Вид по ул. Луначарского © АБ Center

Первый этаж пристроек превратится в застекленную галерею. Второй – в белую «ленту», которая тянется через все здание со стороны улицы Луначарского, заворачивает на Первомайскую, где вырастает до шести этажей. Со стороны жилого дома появится новый шестиэтажный корпус терракотового цвета, такого же цвета объем, «прошивая» белую часть, вырастет и над банком. Получившиеся три элемента соединит «мостик»-козырек эксплуатируемой кровли. Корпус техникума, чуть спрятанный вглубь, будет облицован серым цветом, что чувствительно отмежевывает его от более поздних пристроек.
Гостиница на площади Советской Армии. Вид на фасад по ул. Первомайская © АБ Center
Гостиница на площади Советской Армии. Вид на фасад по ул. Первомайская © АБ Center
Гостиница на площади Советской Армии. Вид с ул. Луначарского от гостиницы «Исеть» © АБ Center
Гостиница на площади Советской Армии. Вид с ул. Луначарского от гостиницы «Исеть» © АБ Center

В результате со стороны улицы Луначарского получается игра прямоугольных объемов вполне в духе конструктивизма – оммаж архитектуре комплекса Городка Чекистов, а фасад со стороны площади ближе к эстетике современных зданий. Цветовая гамма повторяет оттенки соседних зданий, благодаря чему гостиница еще лучше «усаживается» в ансамбле площади.
Гостиница на площади Советской Армии. Вид на фасад по ул. Луначарского © АБ Center
Гостиница на площади Советской Армии. Вид на фасад по ул. Луначарского © АБ Center
Гостиница на площади Советской Армии. Вид от мемориала «Черный тюльпан» (с площади Советской Армии) © АБ Center
Гостиница на площади Советской Армии. Вид от мемориала «Черный тюльпан» (с площади Советской Армии) © АБ Center
Гостиница на площади Советской Армии. Вид по ул. Первомайская от окружного дома Офицеров © АБ Center
Гостиница на площади Советской Армии. Вид по ул. Первомайская от окружного дома Офицеров © АБ Center
Гостиница на площади Советской Армии. Фасад по ул. Первомайская © АБ Center
Гостиница на площади Советской Армии. Фасад по ул. Первомайская © АБ Center
Гостиница на площади Советской Армии. Фасад по ул. Луначарского © АБ Center
Гостиница на площади Советской Армии. Фасад по ул. Луначарского © АБ Center
Гостиница на площади Советской Армии. Фасад со стороны проезда © АБ Center
Гостиница на площади Советской Армии. Фасад со стороны проезда © АБ Center
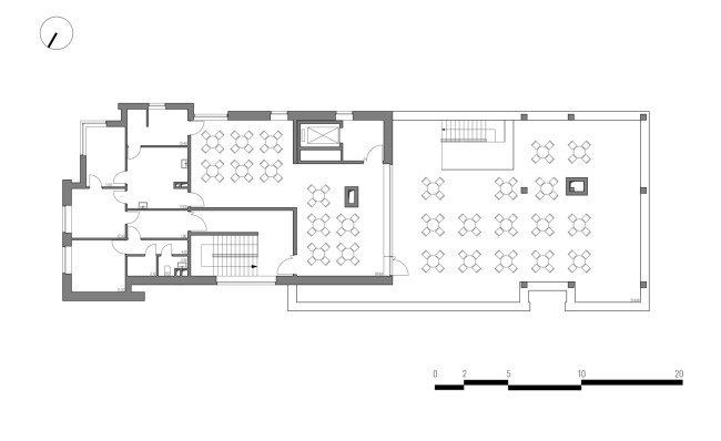
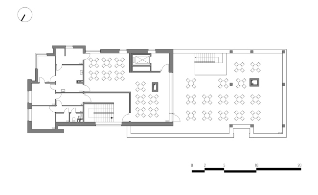
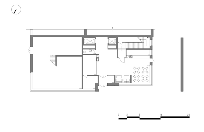
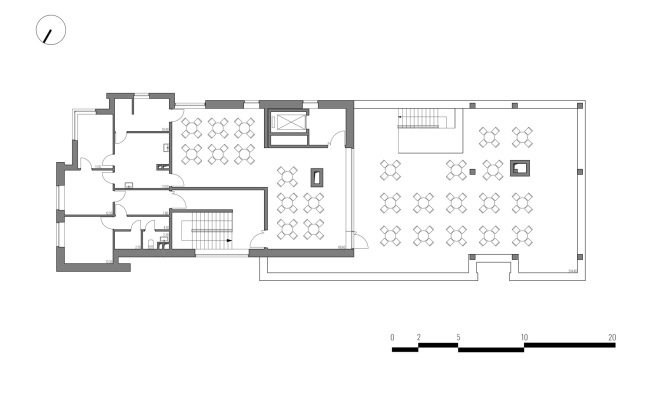
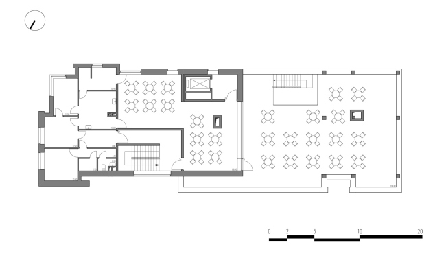
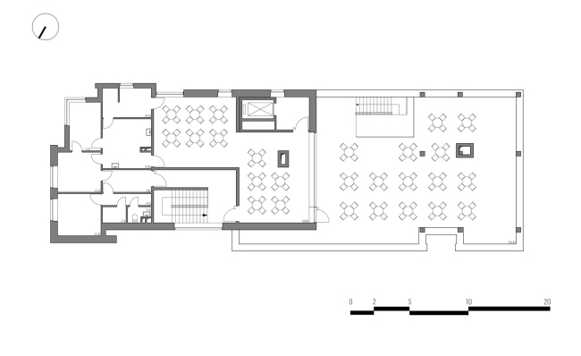
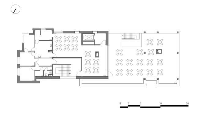
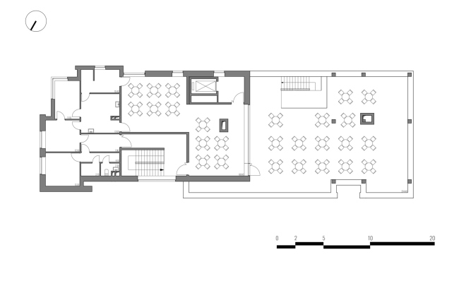
Гостиница на площади Советской Армии. План 1 этажа © АБ Center
Гостиница на площади Советской Армии. План 1 этажа © АБ Center
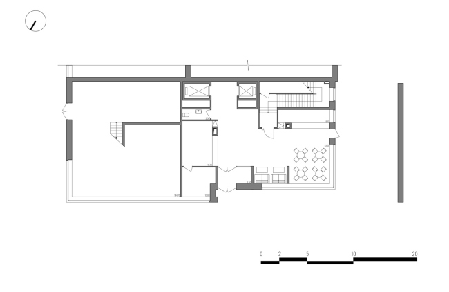
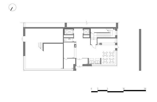
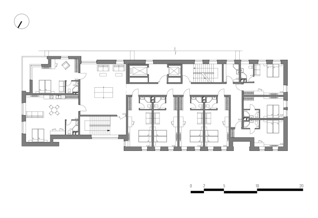
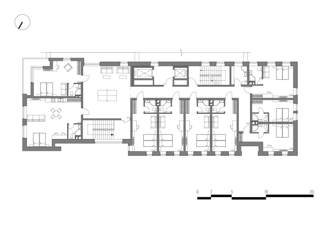
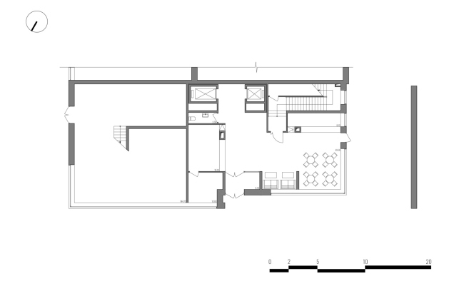
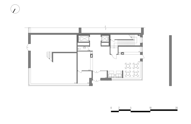
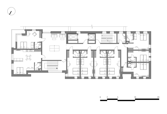
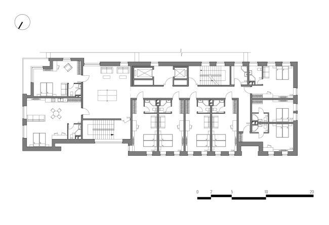
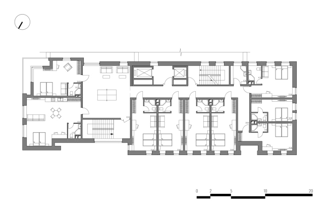
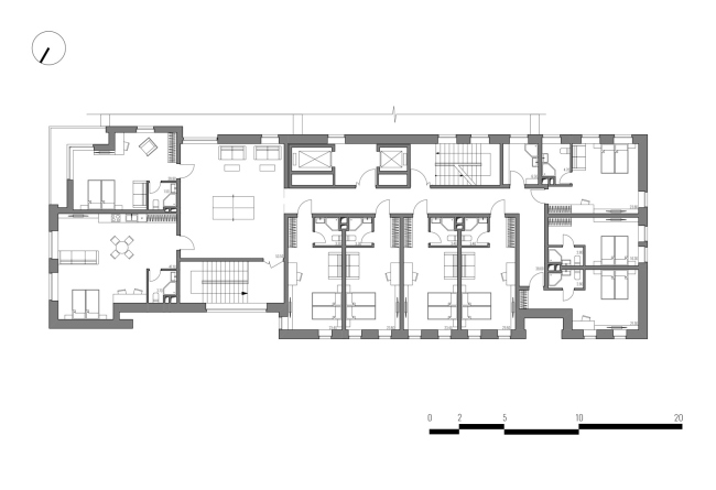
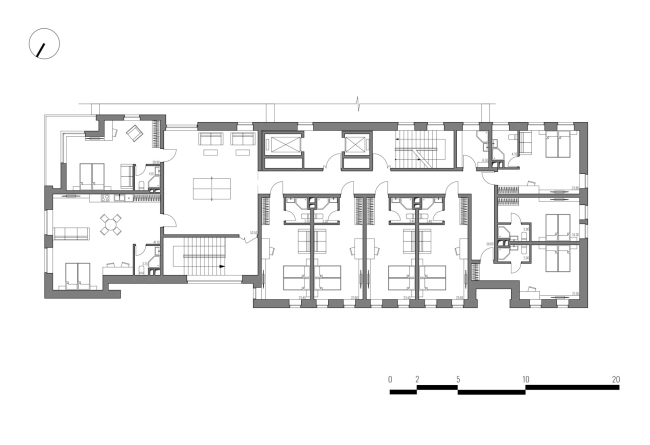
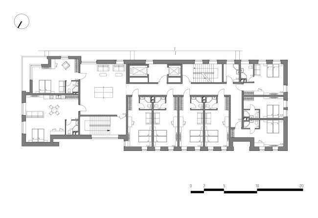
Гостиница на площади Советской Армии. План типового этажа © АБ Center
Гостиница на площади Советской Армии. План типового этажа © АБ Center
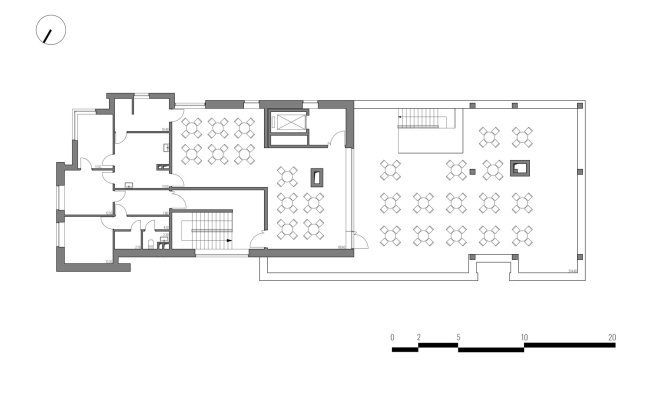
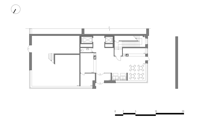
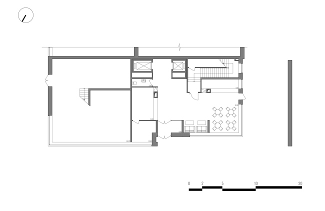
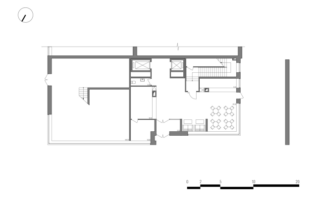
Гостиница на площади Советской Армии. План 7 этажа © АБ Center
Гостиница на площади Советской Армии. План 7 этажа © АБ Center