Размещено на портале Архи.ру (www.archi.ru)

07.09.2018

Ранчо городского типа

Алёна Кузнецова
Объект:
Жилой комплекс Urban Ranch
Адрес:
Украина, Киевская обл.,, с. Чубинское
Мастерская:
АБ «Модус»
Авторский коллектив:
Руководитель: Павел Омельченко (ГАП)
Архитекторы: Ольга Марич, Илья Горбенко, Нина Денисова
Инженеры конструкторы: Александр Радченко (ГИП), Алексей Митраков, Тимофей Бакай, Георгий Краснокутский

Малоэтажный жилой комплекс Urban Ranch в пригороде Киева от архитектурного бюро «Модус».

Жилой комплекс Urban Ranch © АБ «Модус»
Жилой комплекс Urban Ranch © АБ «Модус»

Жилой комплекс Urban Ranch расположен в селе Чубинское, в часе езды от Киева, недалеко от аэропорта. От оживленного Бориспольского шоссе его отделяет зеленый массив и конноспортивный клуб, также он граничит с загородным комплексом отдыха «Эрдем», через дорогу – современный ЖК «Новосельцево». Вокруг этой зарождающейся городской структуры – сплошь дачи и коттеджи.
Жилой комплекс Urban Ranch © АБ «Модус»
Жилой комплекс Urban Ranch © АБ «Модус»

Комплекс состоит из восьми секционных домов: один из них стоит обособленно, остальные образуют два разомкнутых проницаемых квартала: побольше и поменьше. Дворовое пространство большего квартала усложнилось г-образным домом в центре, который, вероятно, появился там по воле застройщика для набора квадратных метров. Однако архитекторы расположили его так, что значительная часть окон смотрит не в окна напротив, а в створы между домами. Вместо одного большого двора получилось несколько уютных пространств, объединенных пешеходной дорожкой. Дворы свободны от машин: для них рядом с комплексом есть просторный открытый паркинг.
Жилой комплекс Urban Ranch. Генеральный план © АБ «Модус»
Жилой комплекс Urban Ranch. Генеральный план © АБ «Модус»
Жилой комплекс Urban Ranch © АБ «Модус»
Жилой комплекс Urban Ranch © АБ «Модус»
Жилой комплекс Urban Ranch © АБ «Модус»
Жилой комплекс Urban Ranch © АБ «Модус»

Все дома составлены из секций трех типов: с плоской кровлей, с террасой и со скатной кровлей. Их сочетание придает комплексу силуэтность и разнообразие, которое усиливается цветом, коньки крыш расставляют акценты. Дома 6-7 этажные, в некоторых также есть мансарды. Все это в тренде современной киевской архитектуры – несложно, к примеру, заметить некоторое сходство с цветным ЖК "Комфорт-таун", хотя тот повыше, или с львовским ЖК на Стрыйской улице бюро Архитматика. Впрочем, сходство в рамках позитивной тенденции, связанной со стремлением к формированию комфортного городского пространства – понятно, предсказуемо, и тяготеет к единству архитектурной морфологии.

Всего в комплексе 865 квартир, от студий площадью 35 м2 до пятикомнатных квартир с террасами, во всех панорамные окна. Urban Ranch – первый масштабный проект бюро, который разрабатывался с помощью BIM-моделирования.
Жилой комплекс Urban Ranch © АБ «Модус»
Жилой комплекс Urban Ranch © АБ «Модус»
Жилой комплекс Urban Ranch © АБ «Модус»
Жилой комплекс Urban Ranch © АБ «Модус»
Жилой комплекс Urban Ranch © АБ «Модус»
Жилой комплекс Urban Ranch © АБ «Модус»

Условность риелторского названия «ранчо» в применении к городскому ЖК очевидна – впрочем и название объяснимо: недалеко конеферма, вокруг поля и леса, рядом небольшой пруд рядом со спортивной площадкой и детским садом.
Жилой комплекс Urban Ranch © АБ «Модус»
Жилой комплекс Urban Ranch © АБ «Модус»

Проект получил диплом «Премии Национального союза архитекторов Украины 2017» в номинации «Многоквартирные жилые дома».

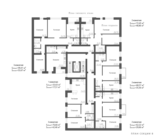
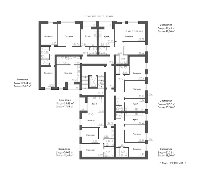
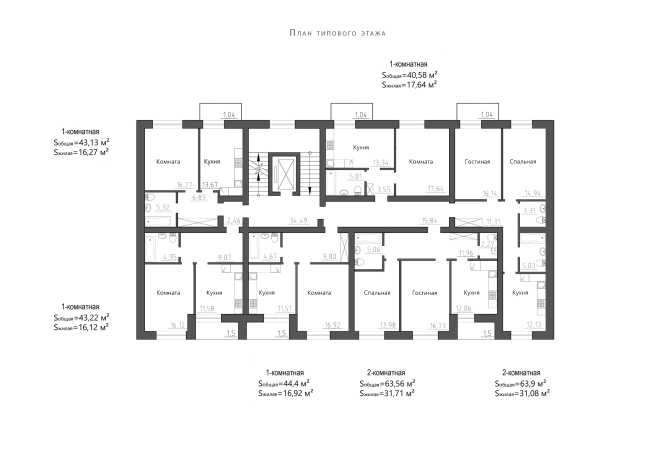
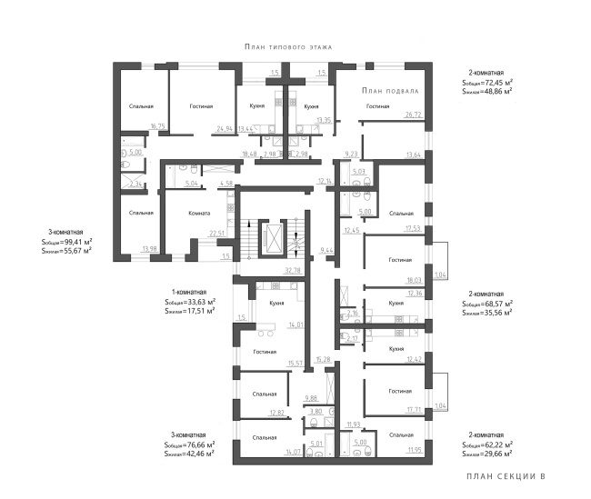
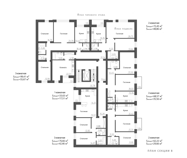
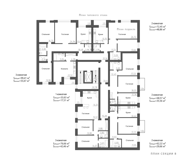
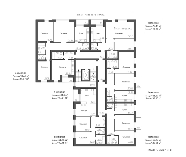
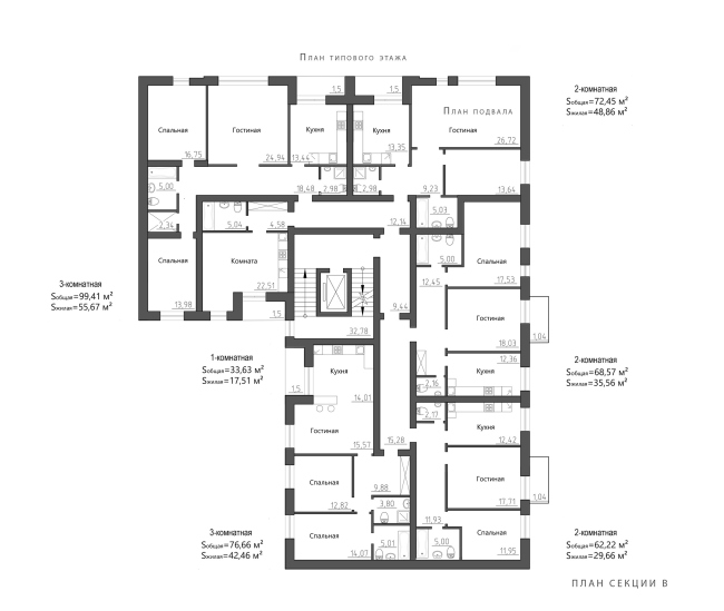
Жилой комплекс Urban Ranch. План секции В © АБ «Модус»
Жилой комплекс Urban Ranch. План секции В © АБ «Модус»
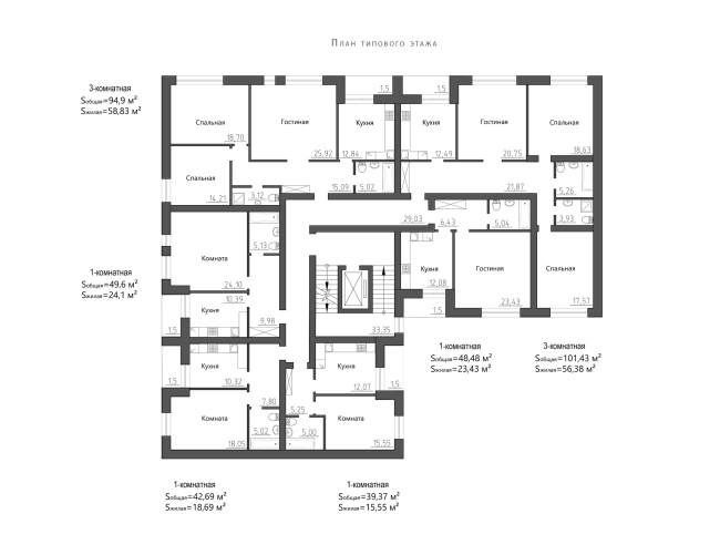
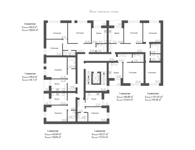
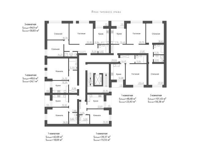
Жилой комплекс Urban Ranch. План секции Б © АБ «Модус»
Жилой комплекс Urban Ranch. План секции Б © АБ «Модус»
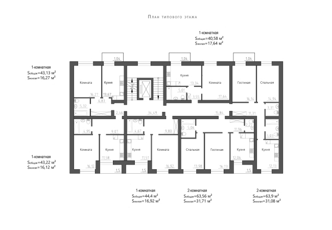
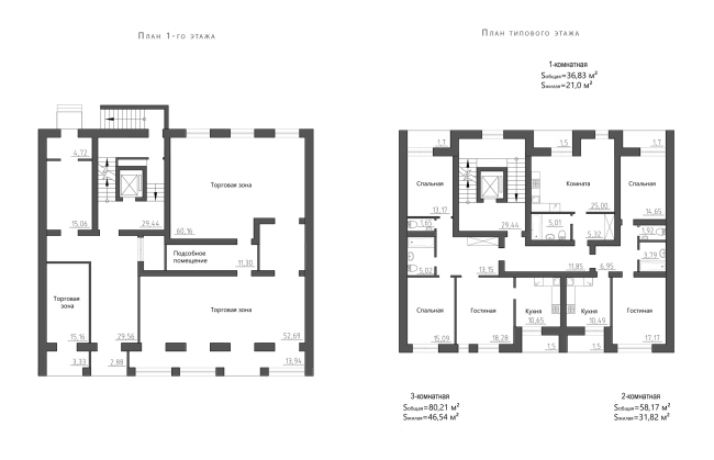
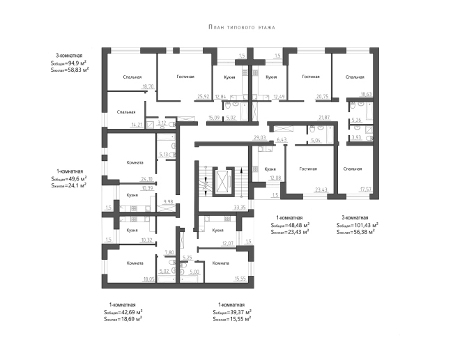
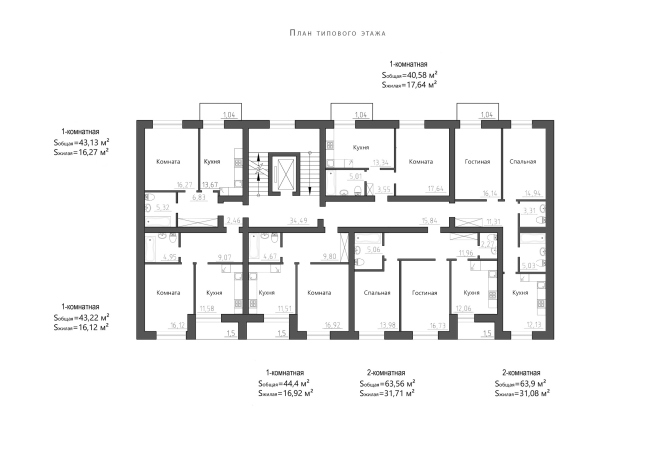
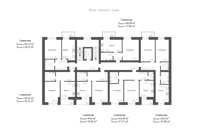
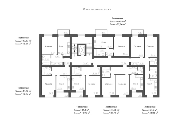
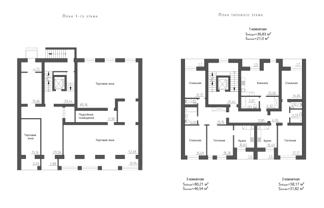
Жилой комплекс Urban Ranch. План секции А © АБ «Модус»
Жилой комплекс Urban Ranch. План секции А © АБ «Модус»
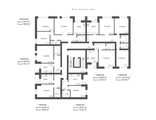
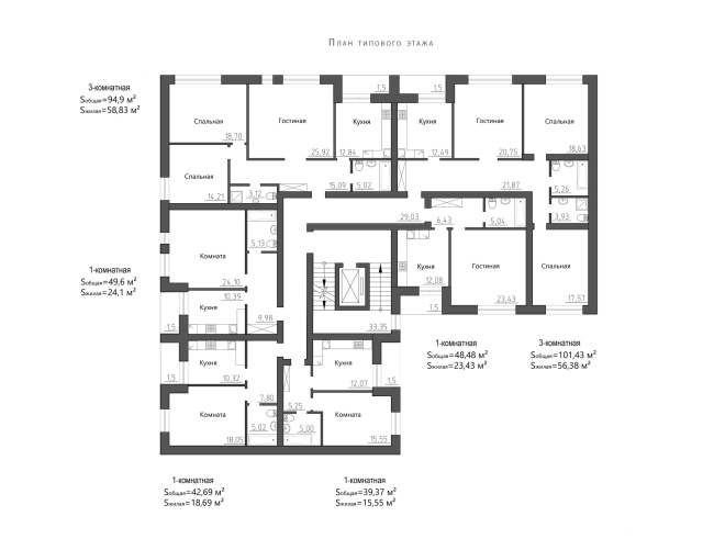
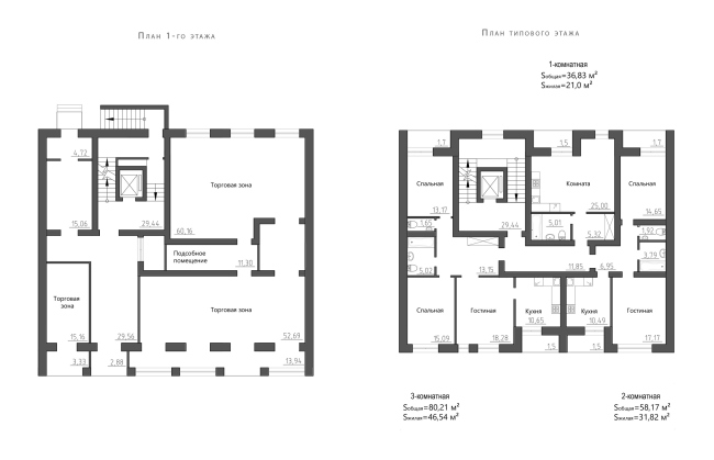
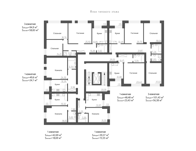
Жилой комплекс Urban Ranch. План секции Г © АБ «Модус»
Жилой комплекс Urban Ranch. План секции Г © АБ «Модус»