Размещено на портале Архи.ру (www.archi.ru)

20.08.2008

Дом с деревом

Юлия Тарабарина
Объект:
Многофункциональный комплекс «Лотос»
Адрес:
Россия, Москва. Ул. Одесская, вл. 2
Архитектор:
Сергей Чобан
Сергей Кузнецов
Мастерская:
СПИЧ
Авторский коллектив:
Авторы проекта: Сергей Чобан, Сергей Кузнецов, Алексей Ильин
Главный архитектор проекта: Алексей Ильин
Главный инженер проекта: Л. Макухина
Архитекторы проекта: А. Борисов, Л. Тришкина, Г. Чембаева
 

Ансамбль из трех похожих дугообразных корпусов, объединенных общим стилобатом с парковкой, прост только на первый взгляд. На самом деле он наделен сюжетом, завязанным вокруг дерева, посаженного в круглом колодце в самом центре комплекса. Вероятно, из-за появления живого древесного стержня здания тоже понемногу начинают оживать и «шевелиться». Образно говоря.

Многофункциональный комплекс «Лотос»
Многофункциональный комплекс «Лотос»
© SPEECH

Многофункциональный комплекс должен быть построен на пересечении Нахимовского проспекта и Одесской улицы, на месте бывшей фабрики-прачечной. Район со старым вотчинно-усадебным названием Зюзино сейчас застроен пятиэтажками вперемежку с более новыми панельными домами и промзонами. Однако по московским меркам он уже довольно-таки «старый» и зеленый – в трех кварталах к югу Битцевский парк, рядом, с противоположной стороны Нахимовского проспекта – «спортивный парк Котловка», да и окружающие пятиэтажки за годы своего существования заросли деревьями. Помимо экологических наблюдений, а также пром- и типовой архитектуры, другого контекста поблизости не вырисовывается – нельзя же считать таковым удаленную на несколько кварталов церковь конца XVII века. Поэтому ничто не мешает появлению на перекрестке автомобильных трасс ансамбля из трех крупных стеклянных зданий.
Многофункциональный комплекс «Лотос». Ситуационный план
Многофункциональный комплекс «Лотос». Ситуационный план
© SPEECH

Комплекс любопытен сочетанием безусловной массивности и некоторого, скажем так, сдержанного изящества, по-видимому, призванного искупить эту очевидную объемность, крупноватость сооружения (на 1,7 гектарах возникает около 150 000 м2). Он состоит из трех зданий, дугообразно изогнутых вокруг общего центра – при взгляде сверху комплекс похож на разомкнутый, разделенный на части цилиндр. А при взгляде на план он обнаруживает отдаленное сходство с пропеллером – «части цилиндра» расставлены не точно по кругу, а скорее по спирали.
Многофункциональный комплекс «Лотос»
Многофункциональный комплекс «Лотос»
© SPEECH
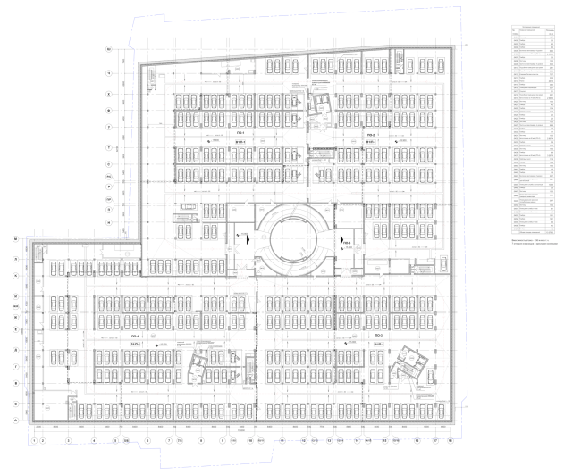
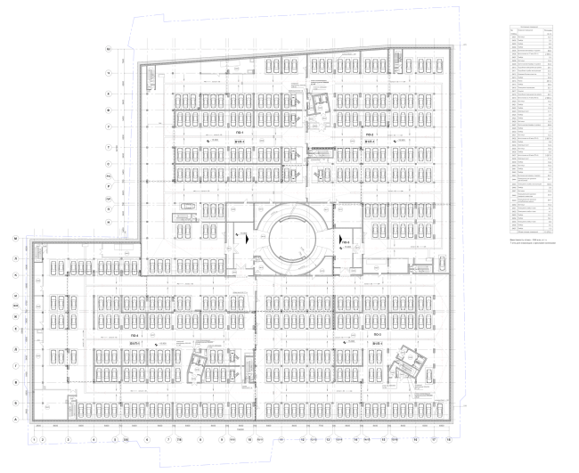
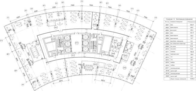
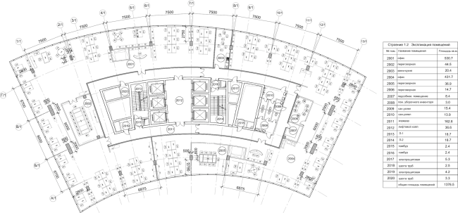
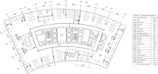
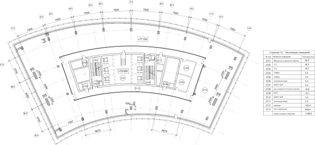
Многофункциональный комплекс «Лотос». План 1 этажа
Многофункциональный комплекс «Лотос». План 1 этажа
© SPEECH
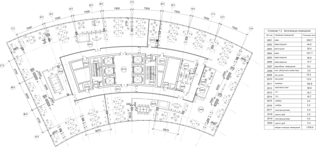
Многофункциональный комплекс «Лотос». План 2 этажа
Многофункциональный комплекс «Лотос». План 2 этажа
© SPEECH

Центр воображаемого пропеллера – круглая площадь, к ней сходятся изогнутые проезды, которые соединяют здания между собой и пронизывают их насквозь, обеспечивая въезды-выезды с разных сторон. Площадь – не просто ландшафтный или транспортный прием – она выступает в роли стержня композиции не только фигурально, но и буквально. В центре площади задуман круглый колодец 12-метровой высоты, в колодце посажено дерево. Корни дерева – на минус четвертом уровне под землей, его крона должна быть видна из сквера, устроенного на крыше стилобата. Получается так, что дерево в колодце обозначает центр архитектурного ансамбля, воплощая в себе его ось – своего рода мифологическое «древо жизни», растущее из-под земли.
Многофункциональный комплекс «Лотос». Проект, 2007 © SPEECH
Многофункциональный комплекс «Лотос». Проект, 2007 © SPEECH
Многофункциональный комплекс «Лотос». План -4 этажа © SPEECH
Многофункциональный комплекс «Лотос». План -4 этажа © SPEECH

Три корпуса (два офисных, один – апартаменты, но внешне они похожи) откликаются на живой «древесный» стержень композиции и вроде бы тоже начинают оживать. Обходя их вокруг, можно будет подумать, что здания шевелятся, но не сильно, без порыва и надрыва, а так, как это делают большие деревья при слабом ветре – слегка меняя форму кроны.

Эффект шевеления возникает из двух архитектурных приемов. Первый – формы зданий не строго вписаны в отрезки цилиндра. Ширина корпусов варьируется снизу вверх: их торцевые стены – не прямоугольные, а трапециевидные. Они сужаются и расширяются, причем так, что если один торец здания сужается книзу, то второй – противоположный – сужается кверху. Объемы корпусов приобретают вдобавок к основной дугообразной форме – слабую диагональную изогнутость, намек на ту форму, которую придают лопастям винта для лучшей аэродинамики. Но все это опять же не слишком. Разглядеть, что логика сужения-расширения именно такова, можно будет лишь пройдясь много раз вокруг и проанализировав ощущения. Первое же впечатление более непосредственное – корпуса не просто изогнутые, они еще и плавно меняют свою толщину.

Второй прием, придающий зданиям гибкость, связан с решением фасадов. Они разделены на горизонтальные ленты по два этажа в каждой. Фасадная плоскость каждой ленты наклонена к небу таким образом, как будто бы каждая пара из двух этажей вписана в гигантскую пирамиду. Сверху на нее надета еще одна такая же пирамида, на нее следующая, и так далее – эффект немного напоминает гигантскую игрушечную елку, составленную из стеклянных ярусов. Он же напоминает чешуйки броненосца или пластины доспеха средневекового рыцаря – в тех местах, где железный панцирь должен был сгибаться, пластины находили друг на друга и обеспечивали некоторую гибкость. В зданиях на Одесской улице, контуры корпусов колеблются, изменяют толщину объемов сверху-вниз и снизу-вверх – это требует от зданий визуального «запаса гибкости». Который и возникает из-за того, объемы кажутся составными – согласитесь, «чешуйчатую» форму легче гнуть, чем жесткий стеклянный параллелепипед.
Многофункциональный комплекс «Лотос». Проект, 2007 © SPEECH
Многофункциональный комплекс «Лотос». Проект, 2007 © SPEECH

Разумеется, описанный эффект существует только на уровне образа – никто не собирается изгибать корпуса в режиме реального времени. Однако выглядят они так, как будто это возможно. Как если бы внутри зданий, например, были спрятаны специальные механизмы, которые позволяют изменять их конфигурацию – например, для того, чтобы обеспечить дереву в колодце максимум света в течение целого дня. Или чтобы медленно поворачивать само здание вслед за солнцем и наоборот, убегая в тень. Повторюсь, это всего лишь фантазии. Но если механизмы подобного рода вдруг появятся – форма корпусов многофункционального комплекса на Одесской улице будет для них подходящим архитектурным решением.

Пока же, в рамках статичной архитектуры, прием служит и некоторым другим, более близким целям. Во-первых, он защищает верхний этаж «лент» от солнца, так как расположенная над ним консоль отбрасывает тень. Во-вторых, стеклянные плоскости «лент» обращены к небу и отражают его эффективнее, чем это получается у вертикальных фасадов. Нельзя не вспомнить, что именно ради отражения неба подобный прием наклонных стеклянных лент был использован в дворовом фасаде «Эрмитаж-Плаза» Сергея Киселева (правда, там не было изгибов и мотив был направлен на решение задачи вписаться в городской контекст). И, наконец, третье – наклонные ленты сдвоены, а горизонтали междуэтажных перекрытий смягчены «растворяющейся» градиентной окраской. Горизонтали акцентированы через одну – это скрывает истинный масштаб здания, избавляет от измельченности полос и делает его более скульптурным – что особенно хорошо при взгляде из окна автомобиля, когда проезжающий не имеет времени вглядываться в детали.
Многофункциональный комплекс «Лотос»
Многофункциональный комплекс «Лотос»
© SPEECH
Многофункциональный комплекс «Лотос». Рзвертка по Нахимовскому проспекту
Многофункциональный комплекс «Лотос». Рзвертка по Нахимовскому проспекту
© SPEECH
Многофункциональный комплекс «Лотос». Развертка по Одесской улице
Многофункциональный комплекс «Лотос». Развертка по Одесской улице
© SPEECH
Многофункциональный комплекс «Лотос». Деталь фасада
Многофункциональный комплекс «Лотос». Деталь фасада
© SPEECH

Среди российских проектов Чобана & Кузнецова есть орнаментально-изобразительные, есть каменные – анализирующие традицию, а этот проект можно было бы, условно говоря, отнести к разряду «шевелящегося модернизма». Он стеклянный и металлический, простой и строгий, но не совсем. В нем наличествует движение – народившееся внутри архитектурной формы и застывшее, но вроде бы ненадолго, провоцируя наблюдателя опасаться, что здания зашевелятся снова.

Такому шевелению плохо быть бессюжетным, и у ансамбля есть интрига. Например такая. В бывшем усадебном, а ныне блочно-панельном, хотя и недешевом районе возникает железо-бетонный внутри, а снаружи стеклянный офисно-гостиничный комплекс. Как и полагается, его парковки занимают весь участок в длину, в ширину и на четыре этажа в глубину. Как и полагается, его архитектура – современная и строгая. Три здания комплекса вписаны в простую геометрическую форму цилиндра – здесь можно вспомнить московскую гостиницу «Космос», представляющую собой две трети очень правильного цилиндра. Но посередине бетонных парковок возникает нечто чуждое – «прорастает» дерево, как отголосок давно утраченной усадебной идентичности места. Это прорастание вынуждает архитектуру реагировать на него – «оживать» и «шевелиться». Что она и делает, взламывая гладкую стеклянную поверхность полосатой «чешуей» и искривляя свои контуры. Но все это – только архитектурный сюжет, дом, конечно же, не выкопается и никуда не уйдет, просто пошумит немного и замрет. Как дерево.
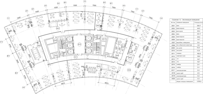
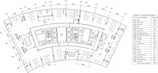
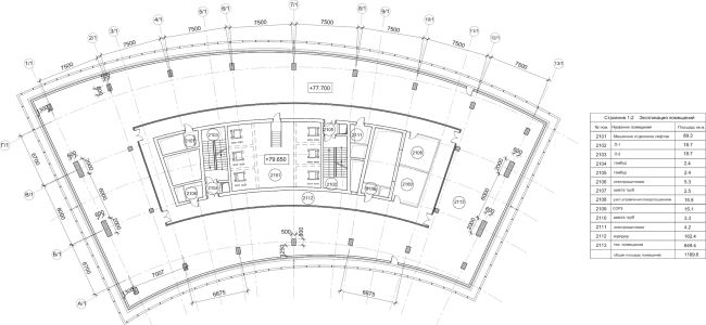
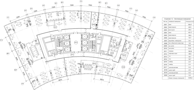
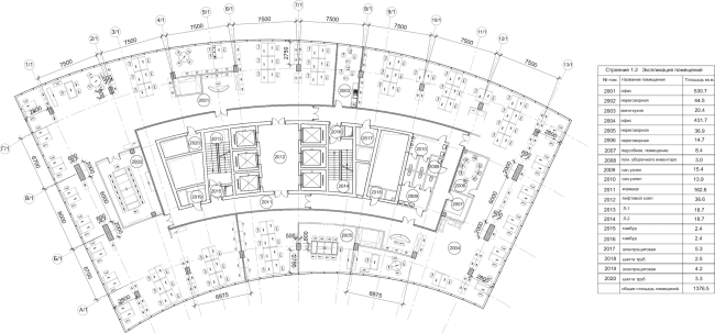
Многофункциональный комплекс «Лотос». План 11 этажа (офисы)
Многофункциональный комплекс «Лотос». План 11 этажа (офисы)
© SPEECH
Многофункциональный комплекс «Лотос». План 20 этажа
Многофункциональный комплекс «Лотос». План 20 этажа
© SPEECH
Многофункциональный комплекс «Лотос». План 21 этажа (офисы, техническая часть)
Многофункциональный комплекс «Лотос». План 21 этажа (офисы, техническая часть)
© SPEECH
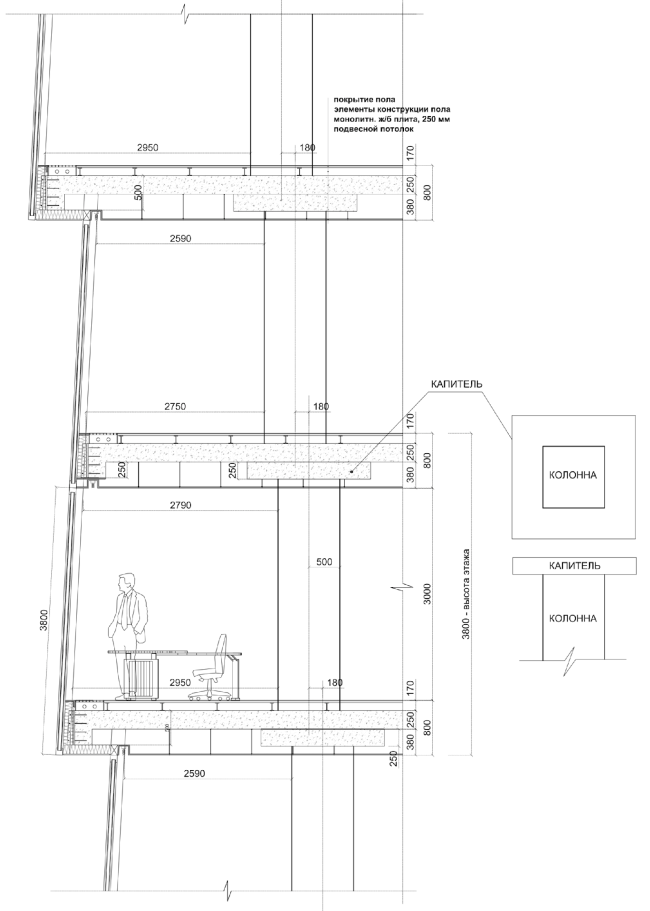
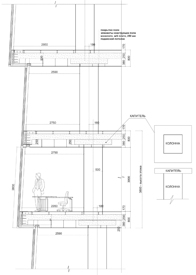
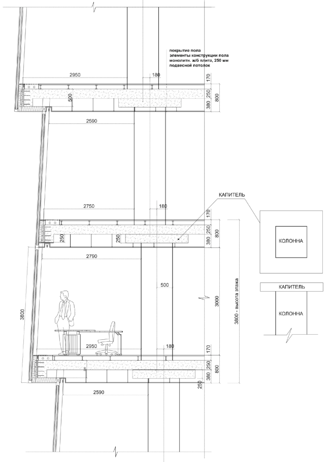
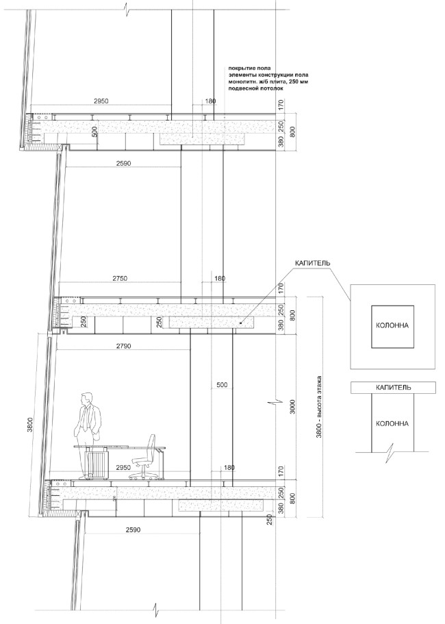
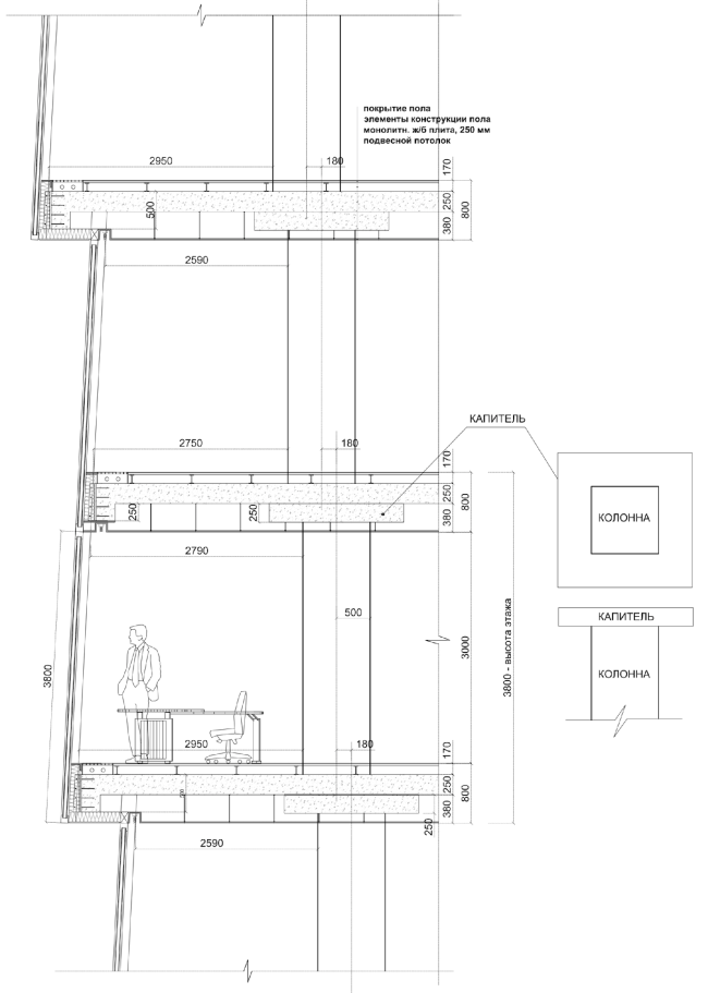
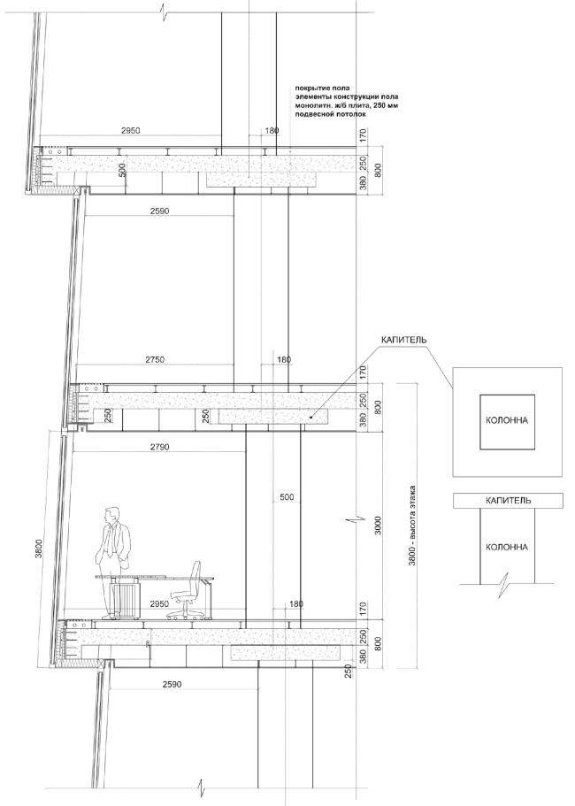
Многофункциональный комплекс «Лотос». Разрез
Многофункциональный комплекс «Лотос». Разрез
© SPEECH
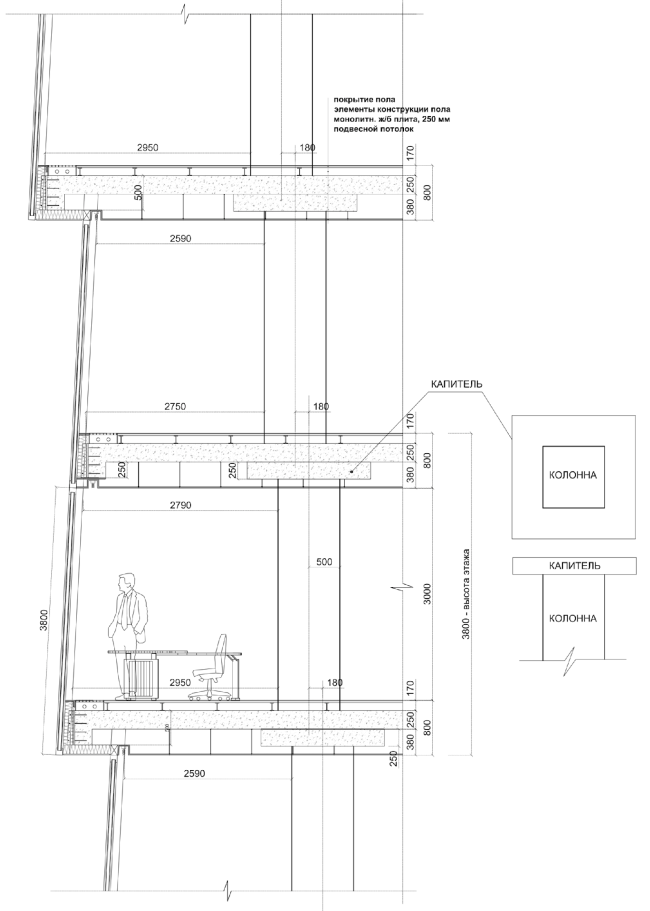
Многофункциональный комплекс «Лотос». Разрез
Многофункциональный комплекс «Лотос». Разрез
© SPEECH
Многофункциональный комплекс «Лотос». Фасад
Многофункциональный комплекс «Лотос». Фасад
© SPEECH
Многофункциональный комплекс «Лотос». Фасад
Многофункциональный комплекс «Лотос». Фасад
© SPEECH