Размещено на портале Архи.ру (www.archi.ru)

08.08.2018

Переодевание

Алёна Кузнецова
Объект:
Административно-офисное здание на Пошехонском шоссе. Корпус А
Адрес:
Россия, Вологда. Пошехонское шоссе, 18
Мастерская:
АртСити
Авторский коллектив:
ГАП: Евгений Николаевич Пылаев
Архитекторы: Алёна Леонидовна Яковлева, Анастасия Вячеславовна Ковалевская, Сергей Александрович Батин, Виктор Сергеевич Грибанов

Проект реновации промзоны в Вологде, предложенный архитекторами АртСити, сохраняет конструктив и даже стены, но довольно радикально освежает внешность. Кроме того между корпусами должны появиться переходы и, конечно же, общественные пространства.

Фасад административного здания корпуса «А» с ул. Медуницинская после реновации © АртСити
Фасад административного здания корпуса «А» с ул. Медуницинская после реновации © АртСити

Промзона расположена на южной окраине Вологды, среди типовых микрорайонов, у перекрестка Ярославской улицы и Пошехонского шоссе. Площадь несколько меньше 100 га, разномастные складские корпуса неказистых пропорций не функционируют и розданы множеству арендаторов.

Архитекторы АртСити подошли к задаче ее реновации, как сейчас принято говорить, урбанистически: помимо вездесущих антресольных этажей и радикального освежения фасадов предложили объединить все корпуса разного рода пешеходными связями, в том числе навесными переходами. Запланировали несколько универсальных общественных пространств.
Границы реновации с наименованием корпусов © АртСити
Границы реновации с наименованием корпусов © АртСити
Административно-офисное здание на Пошехонском шоссе. Генплан © АртСити
Административно-офисное здание на Пошехонском шоссе. Генплан © АртСити
Вид сверху на территорию реновации промзоны © АртСити
Вид сверху на территорию реновации промзоны © АртСити
Вид сверху на территорию реновации промзоны © АртСити
Вид сверху на территорию реновации промзоны © АртСити

Первая очередь предполагаемой реконструкции – корпуса A и D. Корпусу А – простейшему параллелепипеду из силикатного кирпича с кургузыми окошками, архитекторы добавляют пятый этаж – чуть более высокий, чем нижние типовые, и кроме того объединяют белой ребристой сеткой четыре верхних этажа попарно, приводя коробку к вертикальным пропорциям. Словом, результат совершенно не напоминает исходное здание, хотя широкие межэтажные полосы сохраняются, их планируется лишь «утопить» в темном фоне фасада. Белые ребристые простенки кое-где утолщены или поворачиваются против общего движения, разнообразя пластику фасада. Двухэтажную пристройку увенчали парапетом, верхняя граница которого поддерживает линию, разделяющую два верхних блока.
Административно-офисное здание на Пошехонском шоссе. Существующее положение © АртСити
Административно-офисное здание на Пошехонском шоссе. Существующее положение © АртСити
Объемно-пространственное решение фасадов корпуса А © АртСити
Объемно-пространственное решение фасадов корпуса А © АртСити
Административно-офисное здание на Пошехонском шоссе. Фасад 10-1 © АртСити
Административно-офисное здание на Пошехонском шоссе. Фасад 10-1 © АртСити
Объемно-пространственное решение фасадов корпуса А © АртСити
Объемно-пространственное решение фасадов корпуса А © АртСити

Дворовый фасад лаконичнее – прямоугольные объемы здесь облегчены за счет сочетания черного, белого и красного цветов и чуть выступающего верхнего блока. С трех сторон здание опоясывает большое крыльцо-платформа с лестницами и пандусами, во дворе появляется лифтовая шахта, оформленная красными ребристыми панелями.
Административно-офисное здание на Пошехонском шоссе. Фасад 1-10 © АртСити
Административно-офисное здание на Пошехонском шоссе. Фасад 1-10 © АртСити
Объемно-пространственное решение фасадов корпуса А © АртСити
Объемно-пространственное решение фасадов корпуса А © АртСити
Объемно-пространственное решение фасадов корпуса А © АртСити
Объемно-пространственное решение фасадов корпуса А © АртСити

На уровне третьего этажа корпус А соединяется переходом с корпусом D, который стоит параллельно в глубине участка. В нижнем этаже последнего, а также между корпусами, разместится крытая надземная парковка, на ее кровле – двор, он же общественное пространство будущего офисного комплекса. Туда со стороны Пошехонского шоссе ведет широкий марш открытой лестницы, пересекающийся с белой пилонадой, где левые плоскости каждого столба похожи на праздничные или корпоративные флаги – красные, но покрытые орнаментом.

В целом получается меньше стен, больше цвета и разнообразия, привносящих остроту и свежесть. Несложно заметить, что острота сосредоточена прежде всего в первом – А – корпусе, а затем несколько растворяется в контексте. Но среди типовых микрорайонов разной степени запущенности, где сейчас глаз может зацепиться разве что за веселенькую пиксельную расцветку соседнего ТРЦ «Мармелад», бело-черная графика корпуса А вкупе с красными вереницами лифтов и переходов может стать настоящим прорывом в сторону среды, комфортной для тела и глаза. 
Вид сверху на общественное пространство между корпусом А и D © АртСити
Вид сверху на общественное пространство между корпусом А и D © АртСити
Административно-офисное здание на Пошехонском шоссе. Фасады А-D © АртСити
Административно-офисное здание на Пошехонском шоссе. Фасады А-D © АртСити
Фасады зданий Корпусов «А…D» с ул. Медуницинская после реновации © АртСити
Фасады зданий Корпусов «А…D» с ул. Медуницинская после реновации © АртСити
Общественное пространство между Корпусом А и D © АртСити
Общественное пространство между Корпусом А и D © АртСити
Фасады зданий Корпусов «В…А» с ул. Медуницинская после реновации © АртСити
Фасады зданий Корпусов «В…А» с ул. Медуницинская после реновации © АртСити
Административно-офисное здание на Пошехонском шоссе. Разрез 1-1 © АртСити
Административно-офисное здание на Пошехонском шоссе. Разрез 1-1 © АртСити
Административно-офисное здание на Пошехонском шоссе. Фасад B-A © АртСити
Административно-офисное здание на Пошехонском шоссе. Фасад B-A © АртСити
Административно-офисное здание на Пошехонском шоссе. План крыльца © АртСити
Административно-офисное здание на Пошехонском шоссе. План крыльца © АртСити
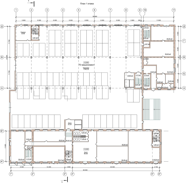
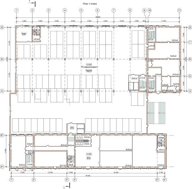
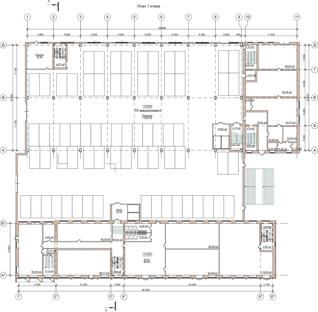
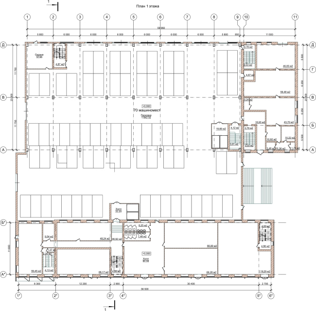
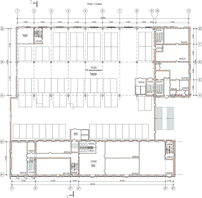
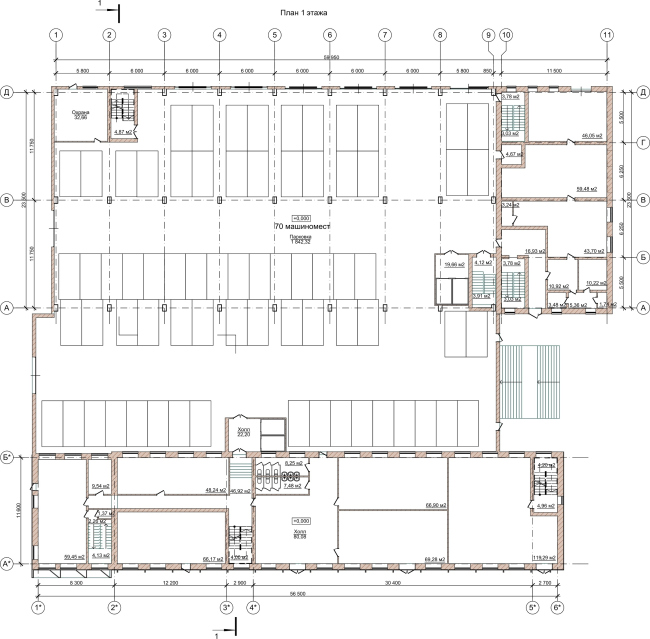
Административно-офисное здание на Пошехонском шоссе. План 1 этажа © АртСити
Административно-офисное здание на Пошехонском шоссе. План 1 этажа © АртСити
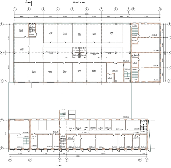
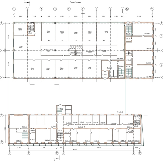
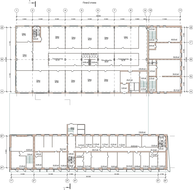
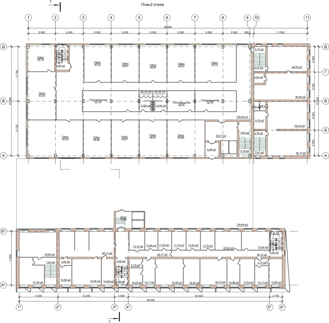
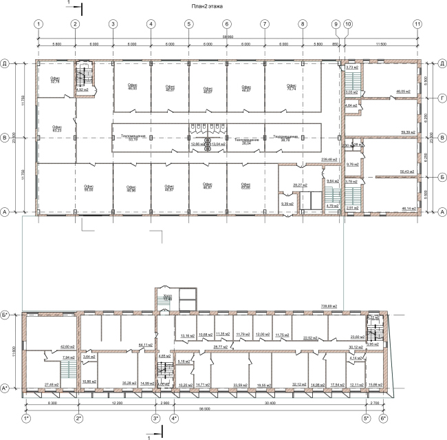
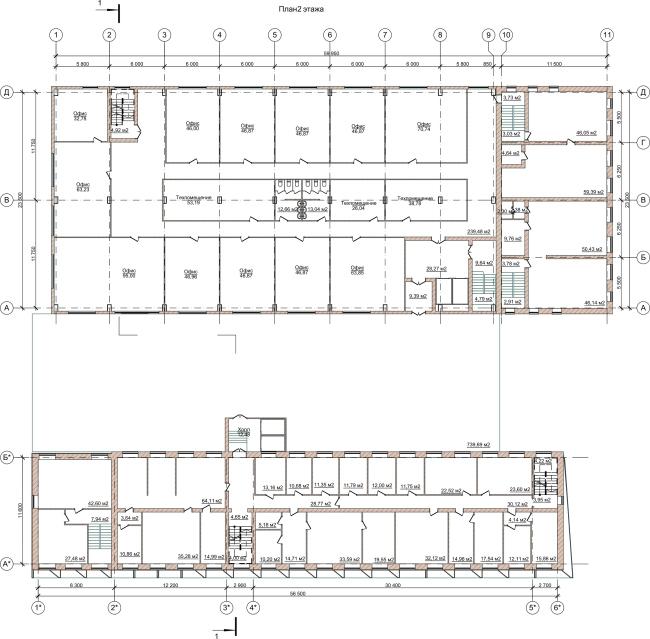
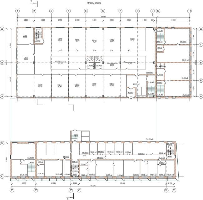
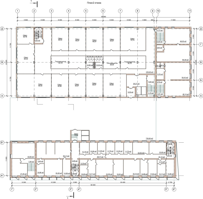
Административно-офисное здание на Пошехонском шоссе. План 2 этажа © АртСити
Административно-офисное здание на Пошехонском шоссе. План 2 этажа © АртСити
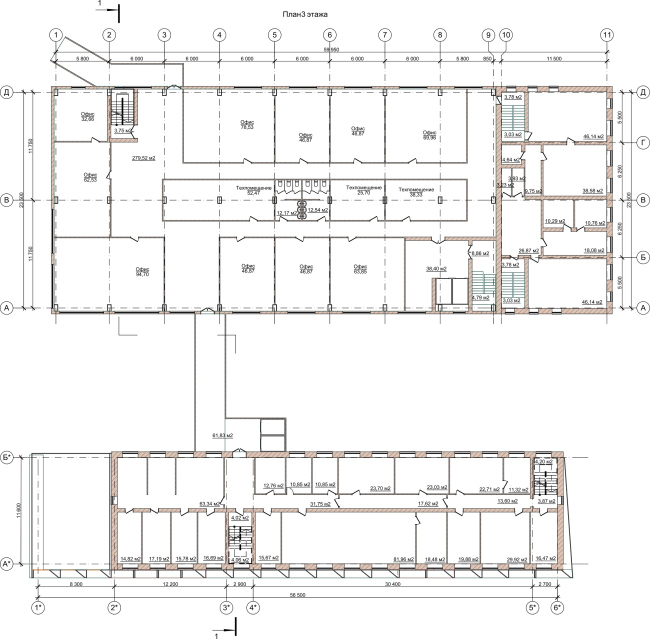
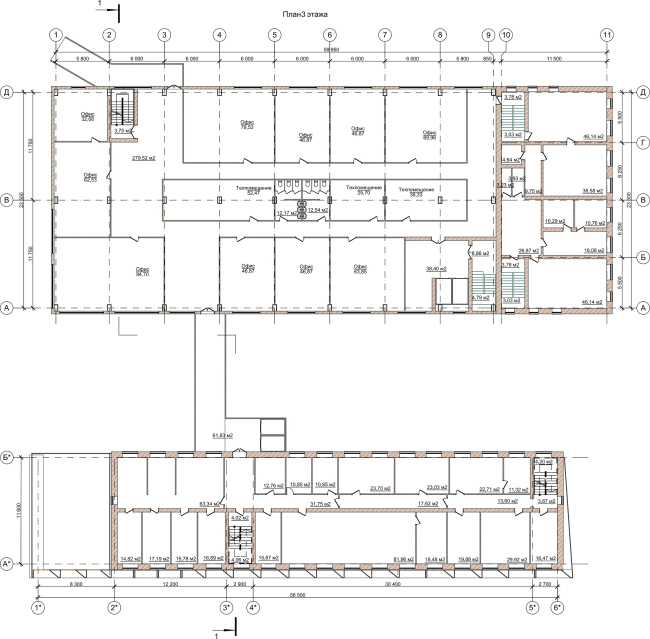
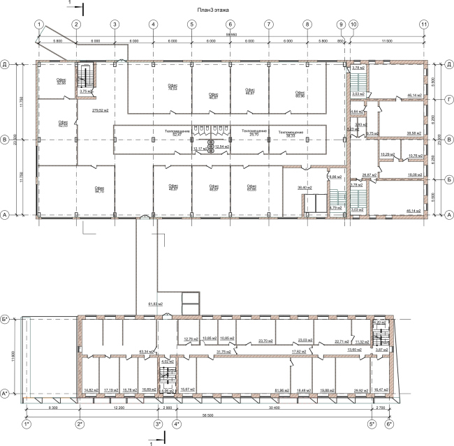
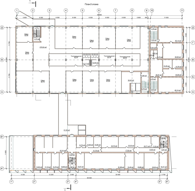
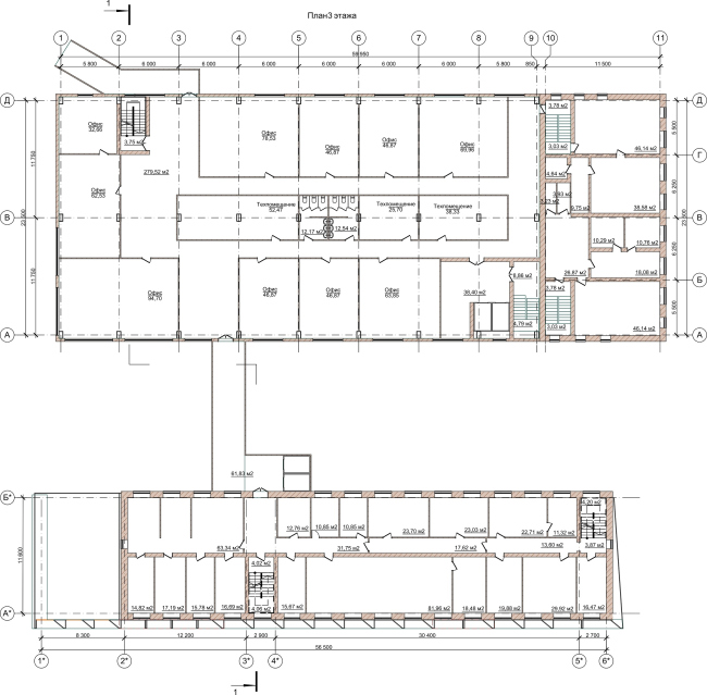
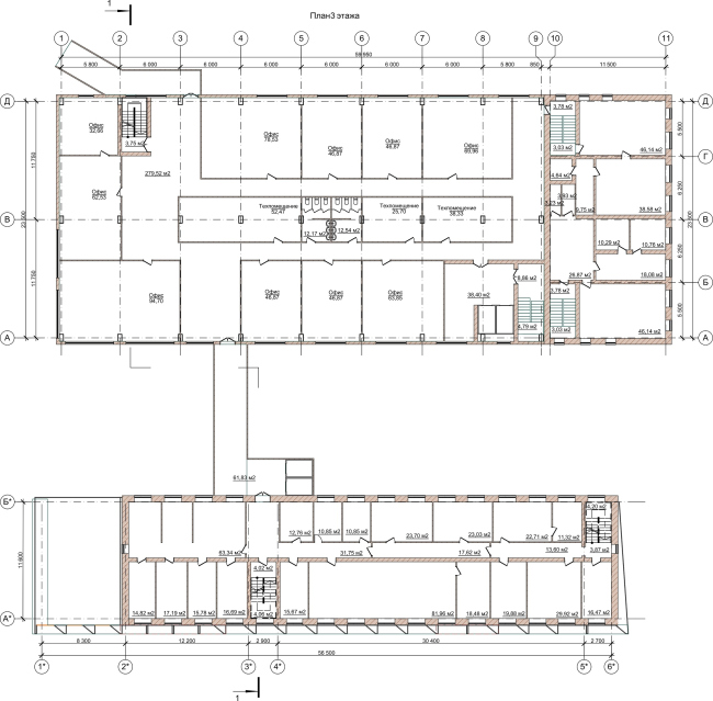
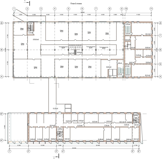
Административно-офисное здание на Пошехонском шоссе. План 3 этажа © АртСити
Административно-офисное здание на Пошехонском шоссе. План 3 этажа © АртСити
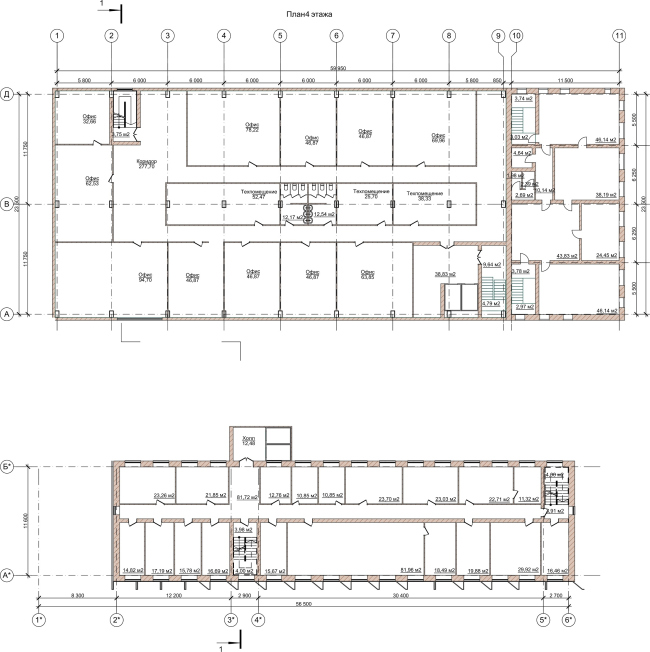
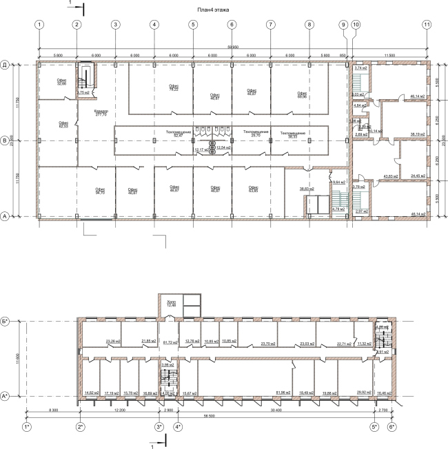
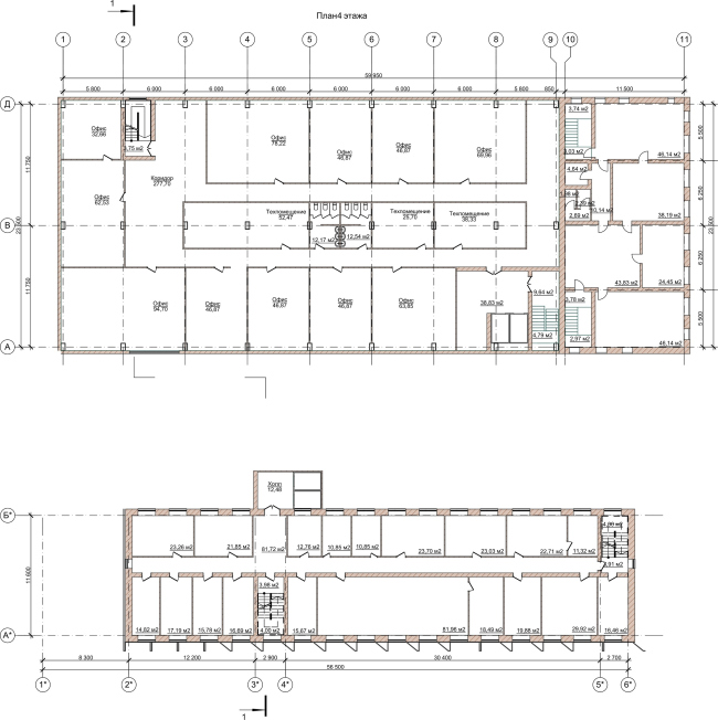
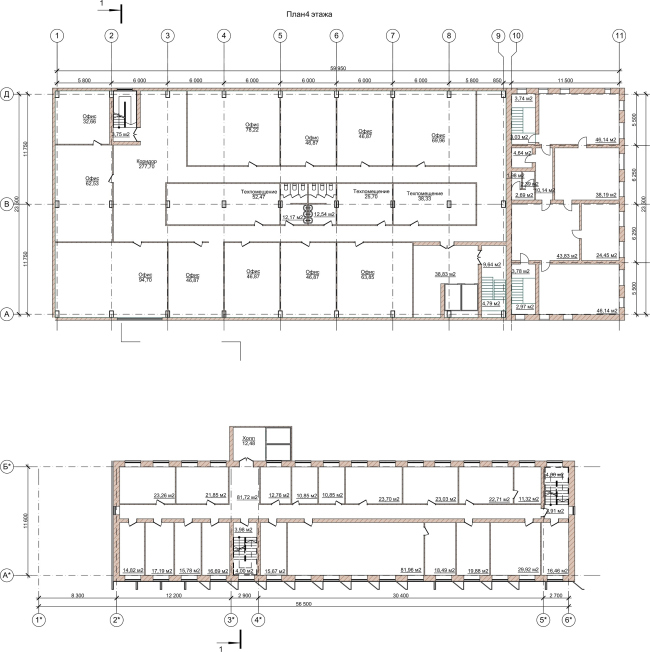
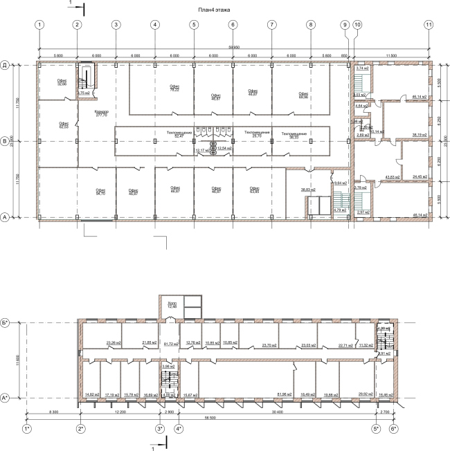
Административно-офисное здание на Пошехонском шоссе. План 4 этажа © АртСити
Административно-офисное здание на Пошехонском шоссе. План 4 этажа © АртСити
Административно-офисное здание на Пошехонском шоссе. План 5 этажа © АртСити
Административно-офисное здание на Пошехонском шоссе. План 5 этажа © АртСити