Размещено на портале Архи.ру (www.archi.ru)

10.08.2018

Двухэтажная Карелия

Алёна Кузнецова
Объект:
Проект застройки малоэтажными жилыми домами в респ. Карелия
Адрес:
Россия, Петрозаводск.

Дома в скандинавском стиле с двориком и верандой, на небольшую семью, для окраины Петрозаводска.

Проект застройки малоэтажными жилыми домами в респ. Карелия © архитектор Рамил Голубев
Проект застройки малоэтажными жилыми домами в респ. Карелия © архитектор Рамил Голубев

Деревянные коттеджи архитектор Рамил Голубев проектировал для удаленного северного района Петрозаводска Соломенное, который выходит не на Онежское озеро, а на Логмозеро. Пока здесь преобладают достаточно ветхие частные дома, но постепенно становится все больше популярных на Северо-Западе «скандинавских» домиков – возможно, для молодых семей Петрозаводска, а может и для уставших от большого города петербуржцев, которым что на машине, что на «Ласточке» ехать сюда пять часов. Рядом – лес и парки, до озер можно дойти пешком.
Проект застройки малоэтажными жилыми домами в респ. Карелия © архитектор Рамил Голубев
Проект застройки малоэтажными жилыми домами в респ. Карелия © архитектор Рамил Голубев

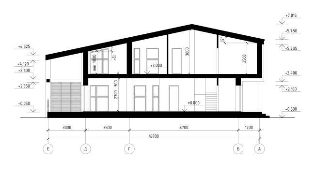
Дома Рамила Голубева также выдержаны в скандинавской эстетике. Прежде всего, материал – местное дерево. Окна небольшие, чтобы удерживать тепло, но их много, чтобы пропускать побольше света. Кровля, для лучшего отвода снега – двускатная.

Шесть коттеджей продолжат фронт застройки улицы местного значения. У каждого дома есть небольшой участок, площадка для парковки автомобиля и «айдентика» – разный цвет оконных рам. Изюминку домов составляет облицовка рейками с треугольным сечением. Где-то они поставлены «елочкой», а где-то идут внахлест, как жалюзи. Некоторые рейки выкрашены в белый цвет, что оживляет лаконичную форму. Вместо водостока – дождевая цепочка и бак для сбора «серой» воды.
Проект застройки малоэтажными жилыми домами в респ. Карелия © архитектор Рамил Голубев
Проект застройки малоэтажными жилыми домами в респ. Карелия © архитектор Рамил Голубев

«Идея отделки вертикальной угловатой доской пришла после посещения шведского города Умео, – рассказывает архитектор, – где находится Школа архитектуры – великолепное здание авторства Henning Larsen Architects».
Проект застройки малоэтажными жилыми домами в респ. Карелия © архитектор Рамил Голубев
Проект застройки малоэтажными жилыми домами в респ. Карелия © архитектор Рамил Голубев

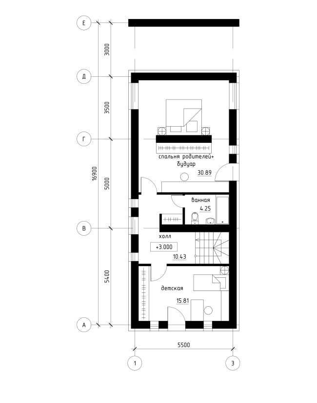
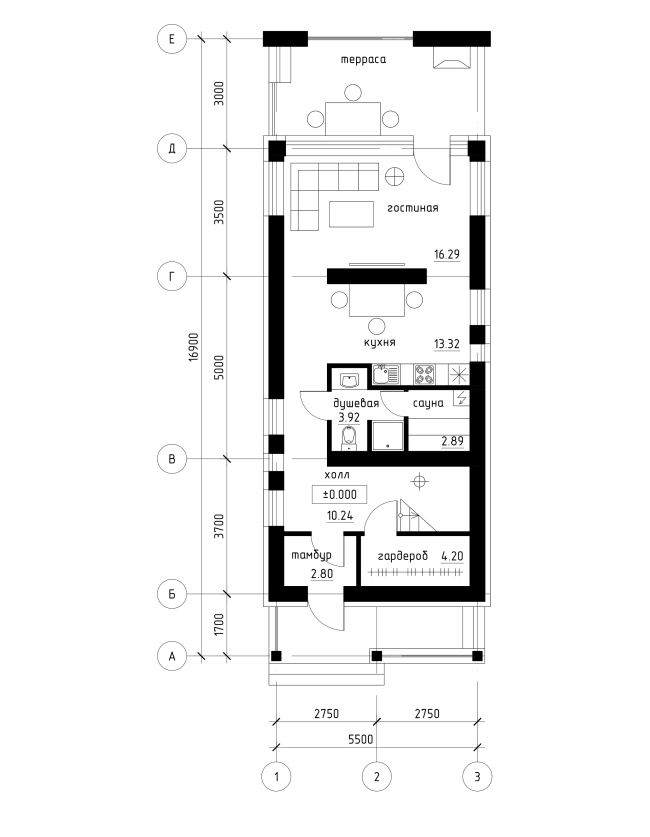
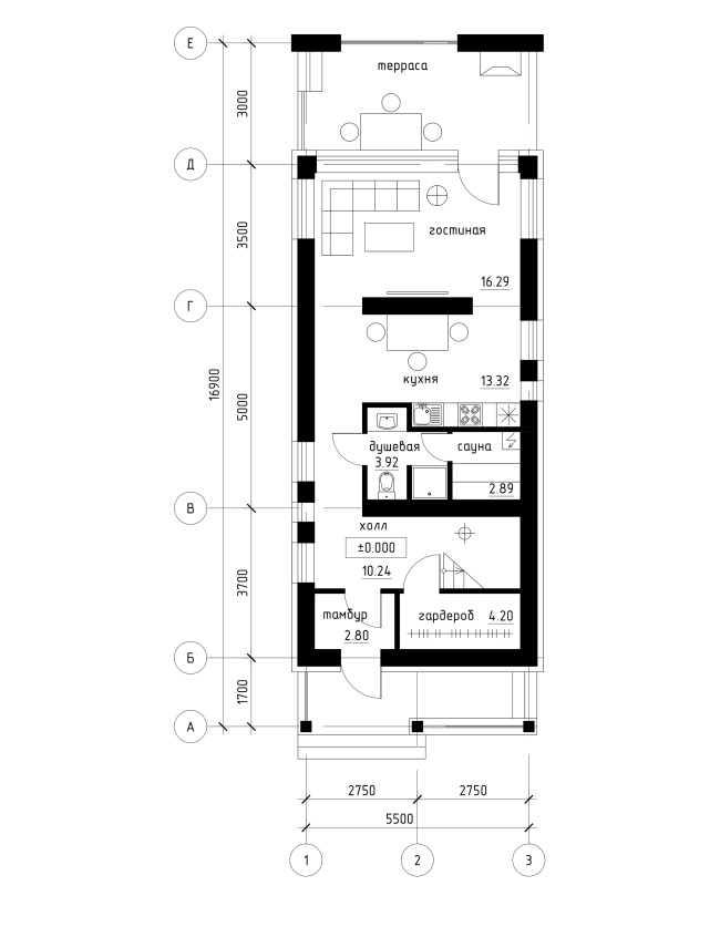
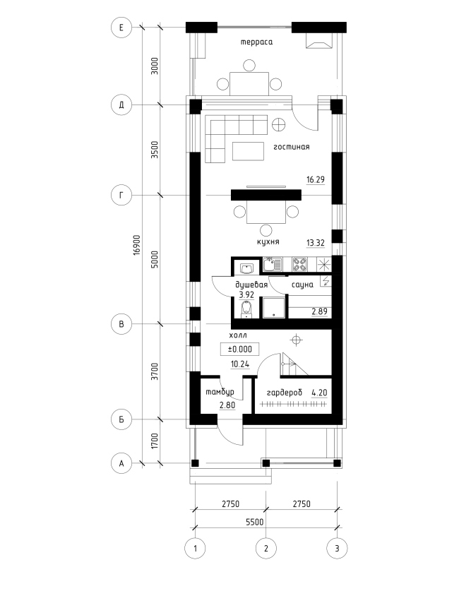
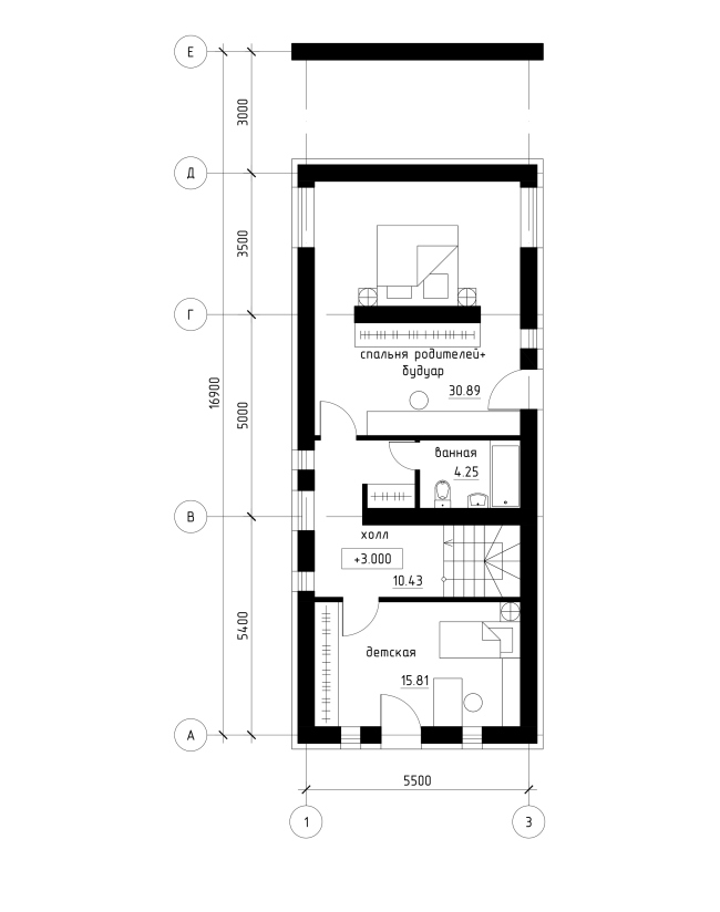
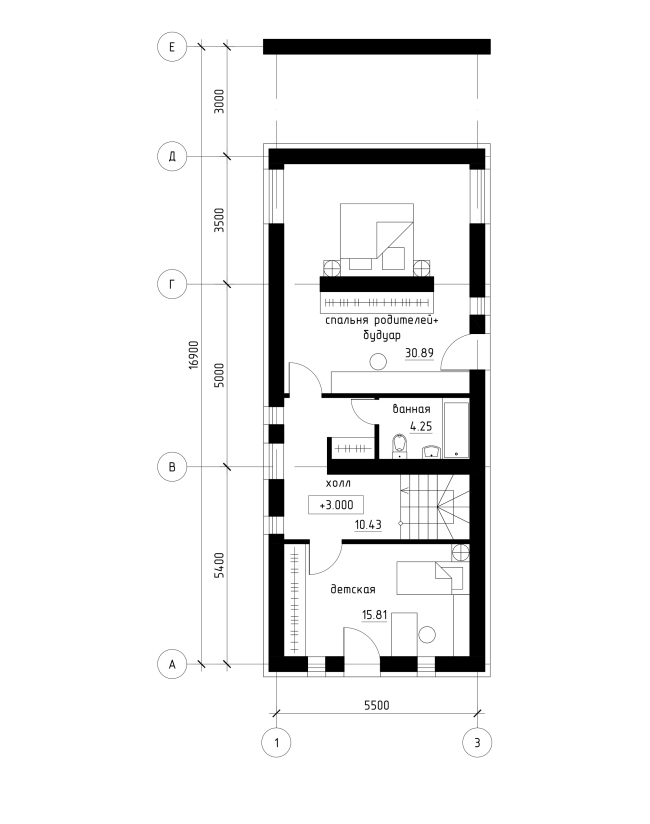
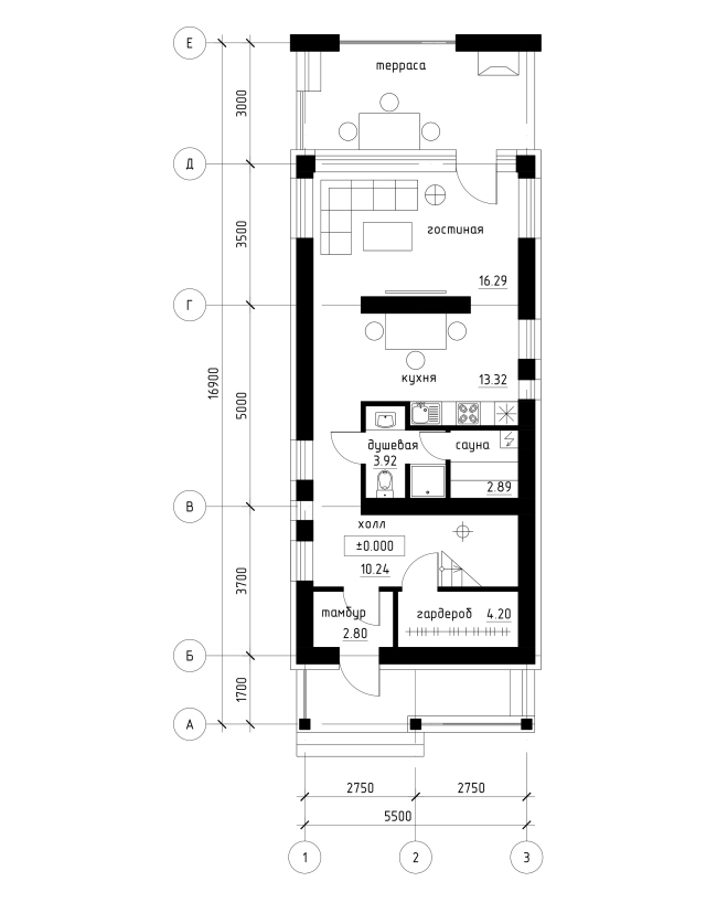
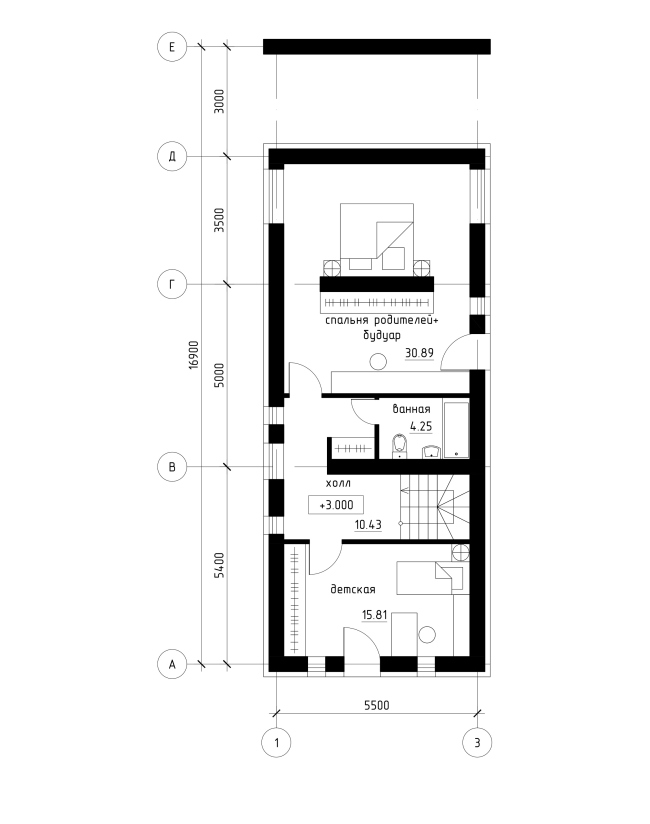
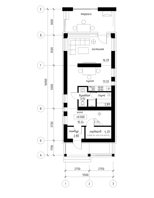
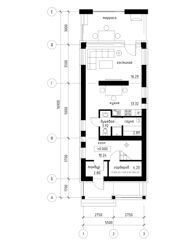
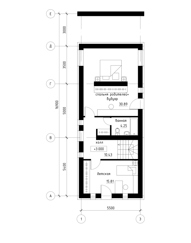
У каждого дома есть веранда, закрытая полупрозрачными деревянными перголами, ориентированная на дворик и лес. Главный вход с небольшой террасой, над которым «нависает» объем детской комнаты, расположен со стороны улицы. Также на втором этаже располагается ванная и «спальня родителей с будуаром». На первом – тамбур и гардероб, холл, душевая с сауной, кухня и гостиная с выходом на террасу. 
Проект застройки малоэтажными жилыми домами в респ. Карелия © архитектор Рамил Голубев
Проект застройки малоэтажными жилыми домами в респ. Карелия © архитектор Рамил Голубев
Проект застройки малоэтажными жилыми домами в респ. Карелия. План 1 этажа © архитектор Рамил Голубев
Проект застройки малоэтажными жилыми домами в респ. Карелия. План 1 этажа © архитектор Рамил Голубев
Проект застройки малоэтажными жилыми домами в респ. Карелия. План 2 этажа © архитектор Рамил Голубев
Проект застройки малоэтажными жилыми домами в респ. Карелия. План 2 этажа © архитектор Рамил Голубев
Проект застройки малоэтажными жилыми домами в респ. Карелия. Разрез © архитектор Рамил Голубев
Проект застройки малоэтажными жилыми домами в респ. Карелия. Разрез © архитектор Рамил Голубев