Размещено на портале Архи.ру (www.archi.ru)

30.07.2018

Виллы веером

Дарья Горелова
Объект:
Апарт-комплекс Cameo
Адрес:
Россия, Москва. ул. Долгоруковская, вл. 23А, стр. 1
Мастерская:
WALL
Авторский коллектив:
Руководитель: Рубен Георгиевич Аракелян, Айк Суренович Навасардян
Главный архитектор: Айк Суренович Навасардян
Ведущий архитектор: Мария Оганян, Кристина Святодух
Архитекторы: Мария Финагина, Ксения Кравцова, Антон Игумнов, Кристина Зарубина, Евгения Кареева, Владимир Козицкий, Юлия Талыкова, Мария Гусенцова, Настя Ищенко

Бюро WALL спроектировало комплекс апартаментов-вилл в центре Москвы рядом с Итальянским кварталом Михаила Филиппова. Ставка – на разнообразие.

Апарт-комплекс Cameo. Проект, 2018
Апарт-комплекс Cameo. Проект, 2018
© WALL

Апарт-отель планируется построить в начале Долгоруковской улицы, в переулке с чудесным московским названием Пыхов-церковный, напротив восточного крыла Итальянского квартала Михаила Филиппова. В противоположность гигантскому неоклассическому ЖК Филиппова, участок, доставшийся WALL, миниатюрный – где-то 80х65 м, да еще и со срезанным углом, приблизительно 0,5 га. Зато, по современным меркам, в самом центре, едва за Садовым кольцом. Сейчас здесь, за зарослями американского клена, стоит типовое здание конца 1930-х годов, похожее на школьное – прямо посреди участка, под углом к улице, зато вытянутое строго с запада на восток; когда-то оно принадлежало «Стройиздату».

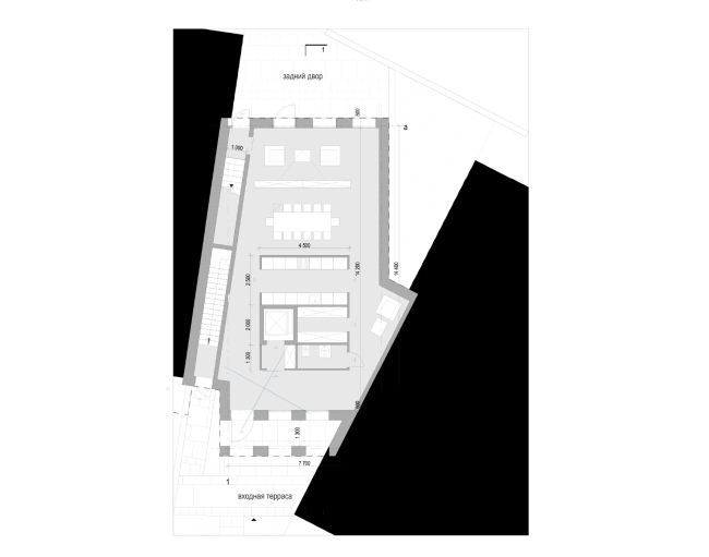
Архитекторы радикально изменяют подход к участку, восстанавливая красную линию и предлагая этой уже вполне недешевой части Москвы сравнительно непривычную типологию апартаментов-вилл двух- и трехэтажной высоты. Дома – вытянутые прямоугольные «пеналы», но довольно крупные: ширина каждого 7-8 м, длина 15-20. А расставлены они вольным, но читаемым веером, центр которого приходится на круглую площадь Итальянского квартала, но не точно, а приблизительно, как у небрежно сбившихся фишек домино. Михаил Филиппов, работая, в частности, над Итальянским кварталом, развивал идею римских руин «обжитых варварами» – так вот, две цепочки вилл в некотором роде могут быть поняты как пригород этих условных руин, хотя на самом деле, конечно же, масштабного дворца. Пригорода, который в градостроительном смысле не может проигнорировать магнетизм помпезного соседа – но и сопротивляется всеми средствами, в частности, подвижной алогичностью разнообразных углов, под которыми расставлены подобные друг другу, но совершенно не одинаковые объемы вилл.
Апарт-комплекс Cameo. Проект, 2018
Апарт-комплекс Cameo. Проект, 2018
Фотография © Илья Иванов, 2021 / предоставлено STONE HEDGE
Апарт-комплекс Cameo. Проект, 2018
Апарт-комплекс Cameo. Проект, 2018
© WALL

Архитекторы объясняют неодинаковость апартаментов так: они рассказывают семнадцать историй разных семей «со своим уникальным образом жизни». Каждая вилла уникальна: этажностью, два или три, углом поворота, который позволяет достичь неповторяемости видов и разнообразных редких бонусов, таких как, к примеру, видовое окно ванной комнаты или освещенная естественным светом лестница. В то же время они подчинены общему модулю и похожи, как брошенные на стол карты – даже «стыковочный уголок», позволяющий всем домам плотно примыкать друг к другу продольными стенами и эффективно использовать пазухи внутреннего пространства, геометрически повторяется, ограничивая произвол авторов нюансами, каждый из которых, не сомневаюсь, прагматически-параметрически обоснован. Собственно этот баланс между разнообразием и подобием, вольностью и регулярностью планировки, надо думать, и есть основной художественный прием жилого комплекса.

Он же свойственен фасадам, облицевать которые планируется благородным травертином – материалом более классическим и фактурным, чем привычный для московских «золотых миль» юрский камень. Архитекторы предлагают несколько вариантов окон: от арочных как в римском EUR, причем арки одного масштаба появляются как снаружи, так и внутри в роли перегородок – до ортогональных, впрочем все окна роскошные, в пол, все фасады в основном состоят из сетки окон с небольшими паузами.
Апарт-комплекс Cameo. Проект, 2018
Апарт-комплекс Cameo. Проект, 2018
© WALL
Апарт-комплекс Cameo. Проект, 2018
Апарт-комплекс Cameo. Проект, 2018
© WALL

Между двумя вереницами вилл образуется приватный променад – своего рода backyard, но крайне миниатюрный и, конечно же, очень цивилизованный, без машин, для которых, впрочем, там точно места нет, но насыщенный сценариями – по словам авторов, здесь умещаются «улица, площадь, галерея, камерная площадь, сад, терраса и тропа». Все виллы снабжены приватными площадками перед входами с обоих торцов: перед уличным входом они продолжаются лоджиями – отрезками колоннад, архитекторы сравнивают их с флорентийскими лоджиями и даже называют «открытыми городскими гостиными»; с внутренней стороны служат «задним двором», где встречаются деревья и даже арт-объекты. Впрочем у каждой виллы есть подземная парковка, откуда в дом можно будет подняться на лифте.
Апарт-комплекс Cameo. Проект, 2018
Апарт-комплекс Cameo. Проект, 2018
© WALL
Апарт-комплекс Cameo. Проект, 2018
Апарт-комплекс Cameo. Проект, 2018
© WALL

Москва город дорогой, но в целом не слишком роскошный: здесь не так много предложений, соответствующих классу люкс не только ценой, но и параметрами жизни. Проект «17 вилл» – определенно одно из таких предложений, демонстрирующее рост разнообразия на насытившемся рынке luxury. Площади апартаментов здесь по приблизительным подсчетам – от 200 до 400 м2, несколько террас, собственный дворик, парковка под домом и собственный лифт плюс расположение в тихом центре центра делают комплекс редкостным примером развития жанра dolce vita в Москве.

О развитии говорят две вещи: во-первых, если раньше городскую виллу встраивали в состав многоквартирного дома, вверху как пентхаус или посередине ради разнообразия, или в крайнем случае пытались закопать под землю, – то здесь мы имеем поселок таких вилл, типологически похожих на обогащенный и отточенный, в противовес привычному удешевлению, вариант таунхаусов. Во-вторых интересно, что в данном случае одним из преимуществ роскошного жилья становится нюансированный выбор, разнообразие видов, углов поворота, планировок. Еще недавно об этом параметре не особенно задумывались. Сейчас же это очень актуально – рассказывать истории. Когда истории, значит, нескучно, к чему и стремимся. Что все это дает городу? Пожалуй, новый масштаб и пример архитектурного подхода, в основу которого положен поиск индивидуальных черт. Может быть когда-нибудь этот подход сможет выбраться из элитного сегмента.