Размещено на портале Архи.ру (www.archi.ru)

20.08.2018

Башни и мосты

Елена Петухова
Объект:
Жилой комплекс «Versis» на Нахимовском проспекте
Адрес:
Россия, Москва. Нахимовский проспект, д. 69 А
Архитектор:
Андрей Асадов
Александр Асадов
Мастерская:
АБ ASADOV
Авторский коллектив:
Архитекторы: А.Р.Асадов, Е.Вдовин, А.Асадов, К.Сапричян, Д.Зражевский, А.Дмитриев, А.Асташов, А.Левашов, А.Зарубина

Комплекс на Нахимовском проспекте – пример яркой и неординарной жилой архитектуры, где смелые пространственные и дизайнерские решения соединяются с традициями отечественной архитектурной школы.

Жилой комплекс «Versis» на Нахимовском проспекте © Архитектурное бюро Асадова
Жилой комплекс «Versis» на Нахимовском проспекте © Архитектурное бюро Асадова


Одно мгновение и 13 лет реализации
Архитектура во многом похожа на музыку и на математику. В ней есть место и ratio, и творческому озарению, которое может прийти неожиданно – тогда и пригождаются салфетки и листки блокнотов. Архитекторы с удовольствием сохраняют эскизы своих проектов, особенно тех, что удалось реализовать. Наброски напоминают о ценном и ярком мгновении, за которым последовали тяжелые месяцы проектной работы по превращению легких линий в тома документации, сменяемые годами строительных терний.

В истории проекта ЖК «Versis» на Нахимовском проспекте есть та самая «салфетка» и замечательная история, которую с удовольствием рассказывает Александр Рафаилович Асадов – о том, как он ехал в метро и нарисовал в блокноте схематичный фасад, аксонометрию и фрагмент здания из нескольких горизонтальных блоков, нанизанных на пару вертикальных объемов; и написал над ними слово «Лайнер».
Жилой комплекс «Versis» на Нахимовском проспекте. Эскиз © Архитектурное бюро Асадова
Жилой комплекс «Versis» на Нахимовском проспекте. Эскиз © Архитектурное бюро Асадова

С этого момента начался проект, растянувшийся на долгие тринадцать лет и, как любят шутить сами Асадовы, переживший два экономических кризиса. Но и сейчас, глядя на фотографии построенного комплекса «Versis», можно почувствовать драйв вдохновения, динамики форм и контраста материалов – все то, чем подкупает рисунок на сохранившемся листке.
Жилой комплекс «Versis» на Нахимовском проспекте © Архитектурное бюро Асадова
Жилой комплекс «Versis» на Нахимовском проспекте © Архитектурное бюро Асадова

Вертикаль, горизонталь и прочая геометрия
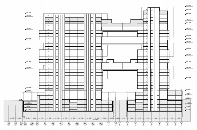
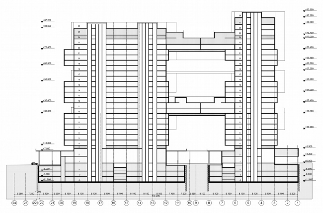
Об истории создания проекта ЖК «Versis» мы подробно рассказывали в статье «Летучий корабль». Архитекторы превратили недостатки узкого участка, через который проходит коллектор, в достоинство, а точнее в оригинальную объемно-пространственную систему из двух вертикальных и нескольких горизонтальных блоков. А главное – убедили заказчика в том, что это можно и нужно построить. Главным аргументом стала популярность на рынке такого эксклюзивного товара, как пентхаусы или видовые квартиры, которых в комплексе из двух башен высотой 22 и 24 этажа и трех висящих в воздухе мостов длиной по 35 метров могло получиться много.

В ходе реализации корректировки проекта продолжались. Архитекторам пришлось не раз убеждать заказчика в необходимости горизонтальных корпусов. Но это уже специфика нашего строительного процесса, при котором никто и никогда не может быть уверен в том, что утвержденное и согласованное на всех уровнях решение будет реализовано именно так, как оно начерчено в рабочем проекте. Как в знаменитом стихотворении Маршака про багаж «за время пути…» с собачкой может произойти много интересного. С проектами оно происходит сплошь и рядом, а с таким сложным и неординарным, как комплекс на Нахимовском проспекте, происходило несколько раз.
Жилой комплекс «Versis» на Нахимовском проспекте. 3-D визуализация. Вид на комплекс со стороны гаражей © Архитектурное бюро Асадова
Жилой комплекс «Versis» на Нахимовском проспекте. 3-D визуализация. Вид на комплекс со стороны гаражей © Архитектурное бюро Асадова

В процессе разработки проекта изменился первоначальный подход к построению композиции. На первом эскизе всё было деконструктивистски радикально: стеклянные блоки нанизывались на каменные стойки, дематериализуя массив комплекса и растворяя его в воздухе за счет отражений. И вертикали башен-столбов доминировали над горизонталями стеклянных мостов.

В проекте баланс сил и расстановка акцентов изменились. Ядро стало стеклянным, оболочка получила каменную облицовку, перфорированную квадратными и прямоугольными проемами и нишами. «Мы поставили перед собой задачу создать композицию, в которой каменные массивные глыбы держались бы на стеклянном основании», – рассказывает Андрей Асадов. Образ стал другим – вертикальные и горизонтальные объемы, стеклянные и каменные блоки образовали единую структуру, где, словно в игре «Дженга», все элементы равноценны и необходимы для поддержания общего баланса.
Жилой комплекс «Versis» на Нахимовском проспекте © Архитектурное бюро Асадова
Жилой комплекс «Versis» на Нахимовском проспекте © Архитектурное бюро Асадова
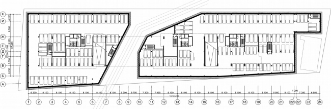
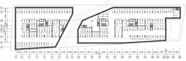
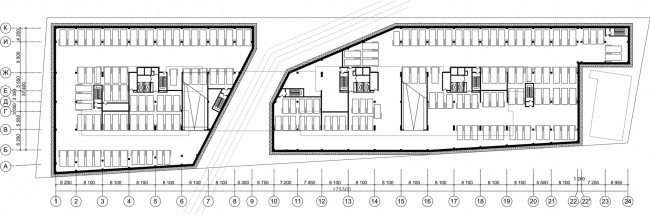
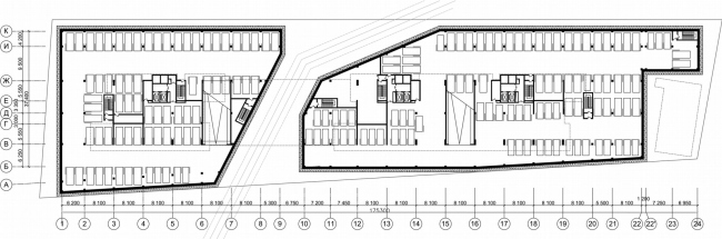
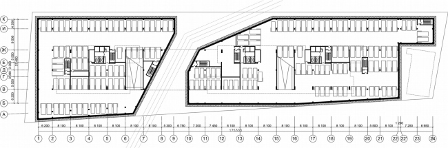
Жилой комплекс «Versis» на Нахимовском проспекте. План подземного этажа © Архитектурное бюро Асадова
Жилой комплекс «Versis» на Нахимовском проспекте. План подземного этажа © Архитектурное бюро Асадова
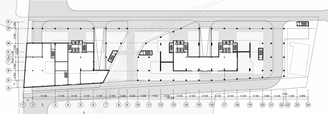
Жилой комплекс «Versis» на Нахимовском проспекте. План 1 этажа © Архитектурное бюро Асадова
Жилой комплекс «Versis» на Нахимовском проспекте. План 1 этажа © Архитектурное бюро Асадова
Жилой комплекс «Versis» на Нахимовском проспекте. План этажа с «мостом» © Архитектурное бюро Асадова
Жилой комплекс «Versis» на Нахимовском проспекте. План этажа с «мостом» © Архитектурное бюро Асадова

Эстетика и экономика 
Два кризиса чуть было не привели к отказу от сложнейших с конструктивной точки зрения мостов-перемычек. Но заказчик понимал, что редкое архитектурное решение способно обеспечить востребованность на рынке, так что продолжить работу и реализовать замысел все-таки удалось.
Жилой комплекс «Versis» на Нахимовском проспекте © Архитектурное бюро Асадова
Жилой комплекс «Versis» на Нахимовском проспекте © Архитектурное бюро Асадова

Вместе с конструкторами института «Промстройпроект» и фирмы «ИСТОКСтрой» архитекторы разработали остроумную схему, чье дополнительное достоинство – незаметность. Основной вес воспринимают металлические фермы высотой в этаж, установленные в нижней части «мостов». Снаружи они закрыты навесным фасадом, практически не отличимым от расположенной выше системы остекления. Для перераспределения нагрузок используются дополнительные подвесы, соединяющие верх балок, примерно на трети пролета, с поперечными несущими конструкциями корпусов на два этажа выше. Их можно разглядеть сквозь ленточное остекление мостовых квартир. Конструкции вселяют уверенность в безопасности, а вот обыграть их брутальную внешность в интерьерах квартир – дело будущих дизайнеров.
Жилой комплекс «Versis» на Нахимовском проспекте  © Архитектурное бюро Асадова
Жилой комплекс «Versis» на Нахимовском проспекте © Архитектурное бюро Асадова
Жилой комплекс «Versis» на Нахимовском проспекте © Архитектурное бюро Асадова
Жилой комплекс «Versis» на Нахимовском проспекте © Архитектурное бюро Асадова

В ходе реализации уточняли и некоторые фасадные решения. В какой-то момент авторам показалось, что масштаб членений слишком крупный и необходимо раздробить объемы на более мелкие фракции. Так появились ниши глубиной до 1,5 метров, объединяющие группы из нескольких окон на одном или нескольких соседних этажах. Увлечение нишами и консолями на торцевых фасадах, достигающими 6 метров, чуть было не лишило фасад цельности, так что некоторые из них пришлось убрать уже из рабочей документации. До последнего момента шла работа над пропорциями и конструкциями крупных выступающих блоков, расположенных на двух верхних этажах каждого корпуса, которые должны были играть роль своеобразных «замковых камней» – акцентов, отмечающих остановку вертикальной композиционной темы.
Жилой комплекс «Versis» на Нахимовском проспекте © Архитектурное бюро Асадова
Жилой комплекс «Versis» на Нахимовском проспекте © Архитектурное бюро Асадова

В большинстве случаев усложнение фасадного рисунка пошло на пользу. К примеру нижняя часть облицовки «мостов» в проекте делалась из того же материала, что и облицовка торцевых консольных выступов. Архитекторы вместе со специалистами компании, которая занималась фасадами, подобрали материалы таким образом, что с земли невозможно отличить облицовку керамогранитом на вертикальных поверхностях от облицовки металлическими кассетами на горизонтальных. Совпадает цвет, матовость и даже размер ячеек. Но на «мостах» облицовка сделана иначе – в нижней части горизонтального блока используются серые металлические кассеты, напоминающие по оттенку остекление. Создается ощущение, что стекло продолжается до конца стены и заворачивается вниз. За счет этого приема удается визуально облегчить объем всего блока.
Жилой комплекс «Versis» на Нахимовском проспекте © Архитектурное бюро Асадова
Жилой комплекс «Versis» на Нахимовском проспекте © Архитектурное бюро Асадова

Держать напряжение
История разработки проекта и его реализации доказывает – для того чтобы создать настоящую архитектуру, недостаточно одного мгновения творческого напряжения. Нужны месяцы и годы, в течение которых автору необходимо держать проект в фокусе внимания и критического переосмысления так, как это удалось сделать команде Асадова. Не удивительно, что комплекс, спроектированный тринадцать лет назад и не замороженный на этапе строительства только чудом, до сих пор воспринимается более чем актуальным и местами даже футуристичным. На некоторых фотографиях, показывающих острые ракурсы с перспективой уходящих вверх и вниз мостовых террас, возникает ощущение, что тут вполне можно снимать сериалы про будущее, такое, где Брюс Уилисс спасет человечество при помощи пятого элемента.
Жилой комплекс «Versis» на Нахимовском проспекте © Архитектурное бюро Асадова
Жилой комплекс «Versis» на Нахимовском проспекте © Архитектурное бюро Асадова
Жилой комплекс «Versis» на Нахимовском проспекте © Архитектурное бюро Асадова
Жилой комплекс «Versis» на Нахимовском проспекте © Архитектурное бюро Асадова
Жилой комплекс «Versis» на Нахимовском проспекте © Архитектурное бюро Асадова
Жилой комплекс «Versis» на Нахимовском проспекте © Архитектурное бюро Асадова

Наследие славной школы
В околоархитектурных кругах социальных сетей популярна игра под названием «угадай прототип». Ее суть, но не смысл, – в том чтобы найти для какой-то новой постройки или проекта именитого автора как можно больше схожих по объемно-пространственному решению аналогов. У этого развлечения, камуфлирующего обвинение в плагиате под соревнование в эрудиции, есть только одна ценность – они позволяют вычленить локальные тенденции и проанализировать их жизнеспособность и соответствие тем изменениям, которые переживает мировая архитектура. Еще более продуктивным может быть исследование исторических прототипов, созданных в рамках одной национальной школы, и выстраивающихся в некую линию, каждое звено в которой отмечает новый этап развития определенной типологии, формирование метода или даже стиля. Иногда эти связи и отсылки легко читаются, иногда они ощущаются на каком-то подсознательном уровне, но их наличие всегда говорит о жизнеспособности и эволюции национальной школы.
Жилой комплекс «Versis» на Нахимовском проспекте © Архитектурное бюро Асадова
Жилой комплекс «Versis» на Нахимовском проспекте © Архитектурное бюро Асадова
Жилой дом на Большой Тульской улице. Архитекторы Владимир Бабад и Всеволод Воскресенский. Фото © Денис Есаков
Жилой дом на Большой Тульской улице. Архитекторы Владимир Бабад и Всеволод Воскресенский. Фото © Денис Есаков
Жилой «Лебедь» на Ленинградском шоссе. Архитектор Андрей Меерсон. Фото © Денис Есаков
Жилой «Лебедь» на Ленинградском шоссе. Архитектор Андрей Меерсон. Фото © Денис Есаков
Жилой комплекс «Versis» на Нахимовском проспекте © Архитектурное бюро Асадова
Жилой комплекс «Versis» на Нахимовском проспекте © Архитектурное бюро Асадова

При взгляде на жилой комплекс на Нахимовском проспекте с его мощной пластикой, где вертикали широких башен спорят с горизонтальными тягами обитаемых двух- и трехэтажных мостов, перекинутых между ними, в памяти возникают образы знаменитых московских домов, своей инаковостью и примечательностью заслуживших народное признание в виде имен собственных: дом атомщиков на Тульской или дом Лебедь на Ленинградском шоссе слишком самобытны и слишком соответствуют тем реалиям, в которых создавались, чтобы претендовать на роль архитектурных «прародителей» новой постройки Асадовых, но имеет смысл увидеть и оценить взаимосвязь. Авторы признаются, что впитывают многое и ассоциации с шедеврами Андрея Меерсона, Всеволода Воскресенского и Владимира Бабада воспринимают как комплимент и подтверждение своей принадлежности к традициям российской архитектурной школы. И можно быть уверенными, что и у комплекса на Нахимовском проспекте будет свое имя. Какое – пока можно только гадать.