Размещено на портале Архи.ру (www.archi.ru)

04.09.2018

Чайка и Мастер-ключ

Лара Копылова
Объект:
ЗИЛАРТ. 2-ая очередь. Квартал 14.1 «Чайка»
Адрес:
Россия, Москва. ул. Автозаводская, 23 (14)
ЗИЛАРТ. 3-ая очередь. Квартал 26. «Мастер-ключ»
Адрес:
Россия, Москва. ул. Автозаводская, вл. 23 (26)
Архитектор:
Даниил Лоренц
Наталья Сидорова
Константин Ходнев
Мастерская:
DNK ag
Авторский коллектив:
Д. Лоренц, Н. Сидорова, К. Ходнев, А.Картавая, И.Каширин, при участии М. Устюговой, Е. Филатовой, А. Таранухи, П. Швецова
26.3 (фасады) Бюро BERNASKONI

DNK ag спроектировали для ЗИЛАРТа башню «Чайка», а также выступили кураторами 26 квартала, где некоторые «партии» исполнили самостоятельно. Говорим с DNK ag об их работе на ЗИЛе.

ЗИЛАРТ – уникальный строительный проект
«ЗИЛАРТ – жилой район на полуострове бывшего завода ЗИЛ в 5 км от центра Москвы, – уникален по своему подходу к проектированию, поэтому мы с большим интересом приняли приглашение поучаствовать в этом проекте. Его уникальность – в сотворчестве многих архитектурных бюро и в наличии дизайн-кода. А по словам Юрия Григоряна, основателя бюро «Меганом», автора мастерплана и главного куратора, ЗИЛАРТ – пилотный проект современной московской градостроительной политики, частью которой является реконструкция промзон: «Здесь переосмыслены и применены все те стандарты устройства городской среды, которые были созданы для центра города и изобретено много нового».

DNK ag спроектировали на ЗИЛАРТе дом «Чайка» 14 квартала во второй очереди и 26 квартал в третьей очереди.
ЗИЛАРТ. 2-я и 3-ая очередь. Квартал 14 и 26. Генплан © предоставлено DNK ag
ЗИЛАРТ. 2-я и 3-ая очередь. Квартал 14 и 26. Генплан © предоставлено DNK ag

ЗИЛАРТ как кураторский проект
«Концепция ЗИЛАРТа – продуманный мастерплан и единый дизайн-код, где здания и кварталы разрабатывают разные архитекторы, создавая тем самым многообразие среды. В первой очереди заказчик (компания ЛСР) приглашала архитекторов, каждый из которых делал свой квартал. Затем было выделено три куратора из состава первой очереди, которые занимались архитектурой второй очереди. Ими стали «Меганом», Sergey Skuratov Architects и «Цимайло, Ляшенко и партнеры». У каждого куратора было по два квартала, один он проектировал сам, а второй отдавал приглашенным архитекторам. Нас позвал Сергей Александрович Скуратов, и мы сделали башню «Чайка» в едином квартале с Ильей Уткиным. Несмотря на то, что каждый автор презентовал свой проект заказчику, за общий результат отвечал куратор. Для него сложность состояла в непредсказуемости: что принесут другие авторы и понравится ли это заказчику. Кураторы не вмешиваются в творческий процесс, при этом их задача заключается в том, чтобы собрать правильный оркестр и дирижировать. Заказчику понравилась наша «Чайка», и по итогам второй очереди нам предложили в третьей уже курировать целый квартал».
ЗИЛАРТ. 2-ая очередь, «Чайка». Квартал 14.1 © DNK ag
ЗИЛАРТ. 2-ая очередь, «Чайка». Квартал 14.1 © DNK ag
ЗИЛАРТ. 3-я очередь, «Мастер-Ключ». Квартал 26
ЗИЛАРТ. 3-я очередь, «Мастер-Ключ». Квартал 26
© DNK ag

ЗИЛАРТ как синергия архитекторов
«Это одна из важных особенностей ЗИЛАРТа. Проектирование по всем кварталам велось параллельно, у всех что-то менялось, поэтому приходилось координировать задачи по планировкам, инсоляции, взаимной увязке с соседними кварталами. Все договаривались, как и что изменить. Очень интересно проходила защита одной из очередей. Архитекторов было много, двенадцать бюро. Каждый делал презентацию своего дома, и каждый по-разному интерпретировал одну и ту же программу. Задача добиться разнообразия была выполнена: использовали один и тот же дизайн-код, а результаты получили отличные друг от друга».
ЗИЛАРТ. Фрагмент общего вида. Авторы проекта © предоставлено DNK ag
ЗИЛАРТ. Фрагмент общего вида. Авторы проекта © предоставлено DNK ag
ЗИЛАРТ. 2-ая очередь,  «Чайка». Квартал 14.1
ЗИЛАРТ. 2-ая очередь, «Чайка». Квартал 14.1
© DNK ag

Дизайн-код
«В проектах мы следовали дизайн-коду ЗИЛАРТа. Он задавал градостроительные параметры и параметры для зданий по высотности и основным членениям объемов, требования к материалам. В каждой очереди был дан набор из нескольких высот, чтобы силуэт вдоль улиц был неоднородным: не череда пластин, а ритм. Например, для второй очереди в нашем проекте в рамках дизайн-кода было задано, что одни дома представляют собой точечные башни, а другие – пластины по периметру. Все вместе они образовывают квартал, довольно проницаемый. Проницаемые разновысотные кварталы – так можно описать один из принципов дизайн-кода ЗИЛАРТа. Что касается ярусности, то все было демократично: автор сам выбирал, членить фасад на ярусы или нет. В материалах распределение было такое: 70% кирпича и 30% другого материала. По цвету дома предполагались краснокирпичные, темные и белые. Как раз в 14 квартале, в котором мы приняли участие вместе с Ильей Уткиным, у нас была белая башня «Чайка», а у Ильи – краснокирпичный дом.
ЗИЛАРТ. 2-ая очередь, «Чайка». Квартал 14.1
ЗИЛАРТ. 2-ая очередь, «Чайка». Квартал 14.1
© DNK ag
ЗИЛАРТ. 2-ая очередь, «Чайка». Квартал 14.1 © DNK ag
ЗИЛАРТ. 2-ая очередь, «Чайка». Квартал 14.1 © DNK ag

Для благоустройства всей территории и дворов в дизайн-коде тоже были разработаны правила. Под каждым кварталом находится гараж, а на его эксплуатируемой кровле расположен двор. Подземную часть и благоустройство дворов в наших 14 и 26 кварталах мы также сделали сами силами бюро».

Материалы
«Из-за прямоугольной сетки генплана и кирпичных фасадов у ЗИЛАРТа отчасти образ Нью-Йорка, что необычно для Москвы. К достоинствам ЗИЛАРТа относятся очень хорошие пропорции улиц, соотношение ширины улиц к высоте домов. Уже сейчас видно, что структура, созданная «Меганомом», успешна. Здесь есть свой «Центральный парк» – «Тюфелева роща», свой Бродвей – бульвар с высотными зданиями, который пока не построен. Скорее всего, по пропорциям улиц и домов там тоже все угадано хорошо.

Что касается материалов, то были планы по выпуску авторского кирпича. Компания ЛСР имеет свое производство, и она добилась определенных успехов в выпуске кирпича, но экономика сейчас не благоприятствует индивидуальным авторским разработкам. Для самых красивых кирпичей, по мнению архитекторов, нужны самые дорогие глины, а их в России нет. Впрочем, с применением определенных технологий удается получить и белый кирпич, и черный, и глянцевый. Для всех проектов обязательно делается образец фрагмента фасада в натуральную величину. У ЛСР есть понимание, что материал облицовки должен быть долговечен и удобен в эксплуатации. Это не тот девелопер, который действует по принципу «построить и уйти».

Кроме материала как такового, в проекте очень важны и пластика фасадов, и учет светотени на поверхности, так как почти все здания воспринимаются в ракурсе улиц. Наш кирпичный дом в третьей очереди в чем-то продолжает тему с многослойным фасадом на «Рассвете». Для детского сада придумана ребристая поверхность. На «Чайке» кроме складчатости общей геометрии фасада поверхность имеет рельефную поверхность.
ЗИЛАРТ. 2-ая очередь, «Чайка». Квартал 14.1
ЗИЛАРТ. 2-ая очередь, «Чайка». Квартал 14.1
© DNK ag
ЗИЛАРТ. 2-ая очередь, «Чайка». Квартал 14.1 © DNK ag
ЗИЛАРТ. 2-ая очередь, «Чайка». Квартал 14.1 © DNK ag
ЗИЛАРТ. 2-ая очередь, «Чайка». Квартал 14.1 © DNK ag
ЗИЛАРТ. 2-ая очередь, «Чайка». Квартал 14.1 © DNK ag

Квартирография ЗИЛАРТа
«Во второй очереди довольно крупные квартиры (трехкомнатные – 100-120 м², двухкомнатные – от 63 м², однокомнатные – 46 м²). В «Чайке» на типовом этаже однокомнатные и двухкомнатные квартиры. В угловых квартирах кухни-гостиные ориентированы на хорошие виды. Последний этаж отдан наиболее просторным трехкомнатным квартирам с более высокими потолками 3,60 м, выходящим на две стороны. Остальные потолки 3,10 м.

В третьей очереди трехкомнатные квартиры начинаются от 80 м², двухкомнатные по 54 м², а однокомнатные от 34 до 40 м². У нас много европланировок, когда кухня объединена с гостиной, хотя есть и традиционные планировки с маленькой кухней. В однокомнатных квартирах кухня-гостиная составляет 16-17 м², спальня минимального размера 12-13 м². В трехкомнатных квартирах размером 80 м² у нас кухня-гостиная 26 м². Это хороший размер. Люди вполне готовы к кухням-гостиным».

 
14 квартал и Башня «Чайка»
«Чайка» – доминанта внутри квартала, мы придали ей более активную поверхность, чем у соседних зданий. Стилизованная галочка – угол излома фасада – означает чайку из-за сходства с силуэтом расправленных крыльев. Этот мотив проявляется и в складчатом фасаде, и в более мелком диагональном рисунке на нем.
ЗИЛАРТ. 2-ая очередь, «Чайка». Квартал 14.1 © DNK ag
ЗИЛАРТ. 2-ая очередь, «Чайка». Квартал 14.1 © DNK ag
ЗИЛАРТ. 2-ая очередь, «Чайка». Квартал 14.1
ЗИЛАРТ. 2-ая очередь, «Чайка». Квартал 14.1
© DNK ag
ЗИЛАРТ. 2-ая очередь, «Чайка». Квартал 14.1
ЗИЛАРТ. 2-ая очередь, «Чайка». Квартал 14.1
© DNK ag

То есть у фасада есть крупный рисунок и мелкий: пластика существует на разных уровнях. Складчатость и разная освещенность граней создает эффектное скользящее восприятие в ракурсе. Окна разные, они тем больше, чем выше расположены. Есть несколько модулей: от пола до потолка и поменьше. Стеклянные углы башни – это и художественный акцент и функциональный, потому что из них открывается вид на реку.
ЗИЛАРТ. 2-ая очередь, «Чайка». Квартал 14.1
ЗИЛАРТ. 2-ая очередь, «Чайка». Квартал 14.1
© DNK ag
ЗИЛАРТ. 2-ая очередь, «Чайка». Квартал 14.1
ЗИЛАРТ. 2-ая очередь, «Чайка». Квартал 14.1
© DNK ag

В квартале есть один главный вход во двор с рецепцией и консьержем, и дальше, через двор, уже можно попасть в подъезды. Двор приватный, для жителей и их гостей. По периметру квартала идут общественные помещения. На ЗИЛАРТе специальные консультанты занимались стрит-ритейлом, заполнением первых этажей, и они для каждого квартала указали, где должны быть фитнесс-залы, кафе, офис и пекарни. Так что это не безликие помещения, а запрограммированная инфраструктура с учетом пешеходных и автомобильных потоков.

Проектируя башню «Чайка», мы с автором соседнего дома Ильей Уткиным работали независимо, но при этом неожиданно угадали движения друг друга. У нас складчатая структура фасада собирается из фибробетонных плит, каждая из которых имеет диагональный рельеф. На фасаде уткинского дома сделан шевронный рисунок. И хотя у нас с Уткиным отсылка к разным первоосновам, образовался объединяющий мотив. И голубь Александра Бродского на его кирпичном доме, по-соседству с нашим, тоже оказался в чем-то созвучен, но уже по теме «птиц», хотя заранее это не планировалось».
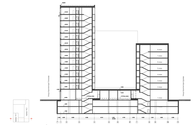
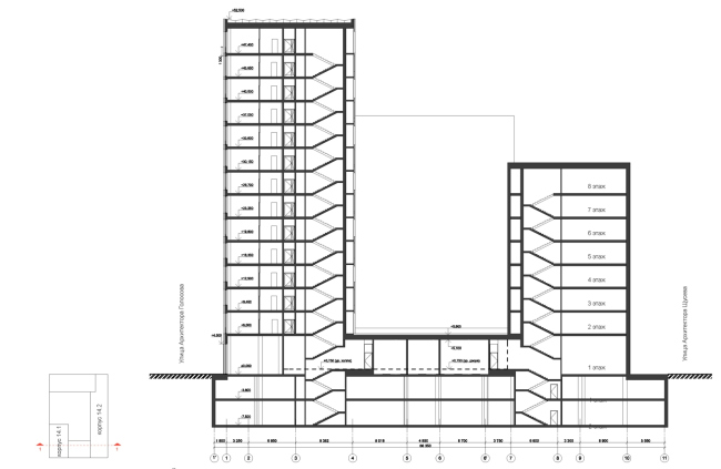
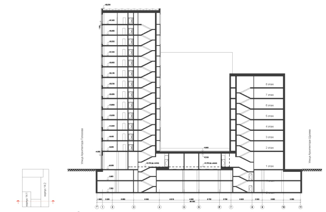
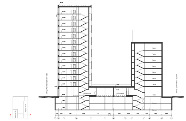
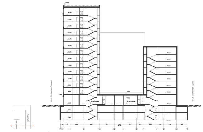
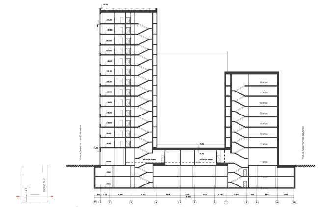
ЗИЛАРТ. 2-ая очередь, «Чайка». Квартал 14.1. Разрез
ЗИЛАРТ. 2-ая очередь, «Чайка». Квартал 14.1. Разрез
© DNK ag

26 квартал и «Мастер-ключ»
«Как уже говорилось ранее, после успешной работы на второй очереди на третью нас уже выбрали кураторами. Мы курировали 26-ой квартал, примыкающий к школьной площади. Для работы над фасадами одного из домов квартала мы, в свою очередь, пригласили бюро Бориса Бернаскони. Квартал состоит из трех жилых корпусов и детского сада, объединенных общей подземной частью.

Мы решили продолжить тему сотрудничества разных авторов, одну из самых ярких особенностей ЗИЛАРТа, но в микромасштабе, внутри нашей мастерской. Для фасада угловой башни каждый сотрудник разработал свой этаж, потом мы смешали в случайном порядке эти этажи, выбирая высоту по жеребьевке, собрали их в макете, а дальше доработали и гармонизировали фасады.
ЗИЛАРТ. 3-я очередь, «Мастер-Ключ». Квартал 26
ЗИЛАРТ. 3-я очередь, «Мастер-Ключ». Квартал 26
© DNK ag
ЗИЛАРТ. 3-я очередь, «Мастер-Ключ». Квартал 26
ЗИЛАРТ. 3-я очередь, «Мастер-Ключ». Квартал 26
© DNK ag
ЗИЛАРТ. 3-я очередь, «Мастер-Ключ». Квартал 26
ЗИЛАРТ. 3-я очередь, «Мастер-Ключ». Квартал 26
© DNK ag

Получился дом-манифест или, как мы его назвали, «Мастер-ключ», в котором много разных рук, и голов, и глаз, и подходов, – живой фасад с разными окнами и богатой поверхностью, у которой есть и узор, и рельеф, и фактура, и текстура. Разработали варианты паттерна из «пикселей»: светлый выступающий «камень» с темными кирпичами, темный «камень» – со светлыми. Тем более у нас есть аналогичный опыт «Рассвета». Даже если рельеф сделать не удастся по экономическим соображениям, наш кирпичный узор сохранит характер благодаря цвету и «пиксельной» структуре.

За белый дом в 26 квартале отвечал Борис Бернаскони. Он сделал выступающие окна-эркеры. Если у нас на фасаде мелкие пиксели, то у него пикселем стало окно. При этом у него еще и активный фон – черно-белый узор «березка». В обоих случаях есть пересечение с нашей поверхностью, просто у нас регулярный орнамент, а у него – хаотический. Фасад он предпочел спроектировать без ярусов, монолитный.

Градостроительная роль у домов в квартале разная: дом Бернаскони и наш краснокирпичный находятся внутри застройки, поэтому они более спокойные. Наша пестрая башня «Мастер-ключ», наоборот, акцентирует угол, выходит на улицу, заканчивает застройку перед паузой школьного парка. По улице идет ряд домов-пластин, построенных на той или иной сетке, а нам хотелось сделать вещь-событие в другой логике».
ЗИЛАРТ. 3-я очередь, «Мастер-Ключ». Квартал 26
ЗИЛАРТ. 3-я очередь, «Мастер-Ключ». Квартал 26
© DNK ag

«Детский сад – домик со скатной крышей в 1-2 этажа замыкает периметр квартала. Он имеет меньший масштаб, потому что выходит на пешеходный бульвар и школу. На ЗИЛАРТе в основном большие дома, но мы вместе с куратором Юрием Григоряном считали, что должны быть и микрособытия. В данном случае это детсад. Часть его крыши предназначена для прогулок. Это площадка, разведенная по высоте с двором дома. Так мы решили не только функциональную проблему, но и тему кровли: люди будут видеть из окон продолжение двора».
ЗИЛАРТ. 3-я очередь, «Мастер-Ключ». Квартал 26
ЗИЛАРТ. 3-я очередь, «Мастер-Ключ». Квартал 26
© DNK ag