Размещено на портале Архи.ру (www.archi.ru)

20.07.2018

Как в кино

Алёна Кузнецова
Объект:
Дом «KINO»
Адрес:
Россия, Московская обл.,,
Мастерская:
Ле Ателье
Авторский коллектив:
Сергей Колчин, Антон Архипов
Интерьер: Сергей Колчин, Надежда Торшина

Дом KINO от бюро Le Atelier – пример претворения особенностей участка в сложную, но интересную структуру двухчастного и трехуровневого дома на склоне.

Дом «KINO» © Ле Ателье
Дом «KINO» © Ле Ателье

Деревянный дом площадью 250 м2 строили в Московской области. У архитекторов было два больших ограничения: участок на крутом лесном склоне и желание не срубить ни одного дерева. Поэтому план дома и его внутреннее устройство получились оправданно-сложносочиненными, что, собственно, и интересно.
Дом «KINO» © Ле Ателье
Дом «KINO» © Ле Ателье
Дом «KINO» © Ле Ателье
Дом «KINO» © Ле Ателье
Дом «KINO» © Ле Ателье
Дом «KINO» © Ле Ателье

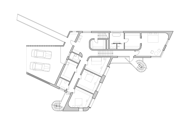
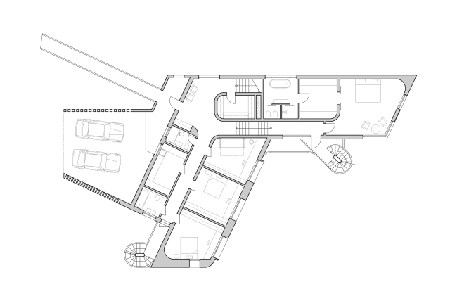
Дом складывается из двух основных объемов: черного и светлого. Черный – побольше и повыше, подстраивается под рельеф угловатыми поворотами, опорами и дополнительными секциями, которые усложняют форму. Он, в свою очередь, состоит из двух секций: вытянутой трапеции с мансардным окном и широкой, но короткой трапеции-гаража, рядом с которой есть также мостик-вход в дом. На первом уровне здесь располагается хозяйская спальня и холл с круглым окном, на втором – кухня, столовая, просторная гостиная и две лестницы на третий полу-уровень – «секретную» мансарду.
Дом «KINO» © Ле Ателье
Дом «KINO» © Ле Ателье
Дом «KINO» © Ле Ателье
Дом «KINO» © Ле Ателье
Дом «KINO» © Ле Ателье
Дом «KINO» © Ле Ателье
Дом «KINO» © Ле Ателье
Дом «KINO» © Ле Ателье
Дом «KINO» © Ле Ателье
Дом «KINO» © Ле Ателье

Черный объем углом «обнимает» светлый – пристройку, обшитую некрашеной, поставленной вертикально деревянной рейкой. Здесь находятся детские комнаты и гостевая спальня, и две винтовые лестницы в башенках соединяют все уровни с эксплуатируемой кровлей, которая становится для обитателей дома вариантом плоского двора – имея просторную крышу, крутой склон рядом с домом можно особенно и не благоустраивать.
Дом «KINO» © Ле Ателье
Дом «KINO» © Ле Ателье
Дом «KINO» © Ле Ателье
Дом «KINO» © Ле Ателье
Дом «KINO» © Ле Ателье
Дом «KINO» © Ле Ателье
Дом «KINO» © Ле Ателье
Дом «KINO» © Ле Ателье

Внутреннее пространство дома, таким образом, состоит из трех полу-уровней, но воспринимается как единое, так как здесь нет лестниц с пролетами и все помещения просматриваются. Из окон открываются, по словам архитекторов, «фантастические виды».
Дом «KINO» © Ле Ателье
Дом «KINO» © Ле Ателье

Как мы уже писали, дом довольно отчетливо похож на кинокамеру: «круглое окно – на глаз объектива, внешние башни винтовых лестниц – на свернутые рулончики пленки, в целом дом – парафраз кинокамеры, наблюдающей за окрестностями с высоты». Название «Дом кино» тоже не оставляет особых сомнений – как-то он с кино связан, уж не в истринском поселке Кино-1 расположен? Но вроде бы нет... С другой стороны кто знает, угловато струящийся над склоном черный объем мог бы напомнить о «Черном объеме» группы «Кино».

С другой стороны, архитектура дома – возможно и впрямь из-за перепадов рельефа, но хочется думать, что по желанию автора и заказчика, – представляет собой довольно яркий, почти классический образец модернистского подхода к частному дому. Нет никаких сомнений, что дом построен согласно принципу изнутри-наружу, исходя из функций и из особенностей участка. Он совершенно многофасаден – настолько, что устройство проще понять в аксонометрии, и, возможно, пройдя вокруг и внутри; на фотографиях же «главного» фасада не получается, да он, как говорится, и не нужен. Сама по себе кинокамера, техническое устройство как образец – предположим, что образец – тоже прием вполне модернистский, характерный для ряда направлений авангарда.

Надо сказать, что современные архитекторы нередко опираются в своих работах на приемы модернизма, но у многих получается скорее стилизация. Здесь же не так: пожалуй, Сергею Колчину удалось припасть к истокам искренне и честно.
Дом «KINO» © Ле Ателье
Дом «KINO» © Ле Ателье
Дом «KINO» © Ле Ателье
Дом «KINO» © Ле Ателье

Дом уже получил премию АрхиWOOD 2018 в номинации «Загородный дом», а также первую премию EXTERIA Best Russian House AWARDS, которая вручается за лучший реализованный частный архитектурный объект.
 
Дом «KINO» © Ле Ателье
Дом «KINO» © Ле Ателье
Дом «KINO» © Ле Ателье
Дом «KINO» © Ле Ателье
Дом «KINO» © Ле Ателье
Дом «KINO» © Ле Ателье