Размещено на портале Архи.ру (www.archi.ru)

15.08.2018

Общество спектакля

Лара Копылова
Объект:
Французский лицей А.Дюма (новый корпус)
Адрес:
Россия, Москва. Милютинский переулок
Мастерская:
SYNCHROTECTURE
Авторский коллектив:
AAAB:Anthony BECHU (Антони Бешу), Pablo Lorenzino (Пабло Лорензино)
SYNCHROTECTURE: Антон Барклянский, Татьяна Лёушкина, Станислав Ширяев, Илья Ободовский, Борис Коломоец
СЕТЕК ИНЖИНИРИНГ: Benoît Sellès (Бенуа Селлес)

Agence d’Architecture Anthony Bechu & Associés и SYNCHROTECTURE Антона Барклянского создали проект реконструкции французского лицея Александра Дюма в Милютинском переулке. Главная идея авторов – соединение стран и времен.

Так случилось, что фрагмент Москвы между Милютинским переулком и Новой Лубянкой, где находится лицей, – самое французское место столицы: он принадлежит французской общине с XVII века. В екатерининские времена здесь построили католическую церковь Св. Людовика, а в 1827 году на его месте возник нынешний ампирный храм Доменико Жилярди. При католическом приходе в 1885 году появился трехэтажный приют Св. Доротеи, а в 1899-м Оскар Дидио возвел четырехэтажное кирпичное здание для мужского реального училища Св. Филиппа Нери и женской гимназии Св. Екатерины. В этом здании сейчас располагается лицей Александра Дюма, который реконструировали в 2004 году по проекту HUBERT & ROY Architects, надстроив стеклянным этажом, а теперь решили расширить: к нему добавится трехэтажный дом бывшего приюта, переданного лицею, и новый корпус.

Концепция расширения французского лицея А.Дюма в Милютинском переулке © SYNCHROTECTURE совместно с Agence d′Architecture A. Bechu et Associés, СЕТЕК Инжиниринг
Концепция расширения французского лицея А.Дюма в Милютинском переулке © SYNCHROTECTURE совместно с Agence d′Architecture A. Bechu et Associés, СЕТЕК Инжиниринг

На этот ансамбль заказчик AEFE – Ассоциация французского образования за границей – провел конкурс. Во второй этап вышли четыре консорциума, в их числе французское бюро Антони Бешю, их партнеры – архитектурная компания Антона Барклянского SYNCHROTECTURE, и СЕТЕК Инжиниринг. Проект консорциума получил первое место на конкурсе Департамента градостроительной политики ГБУ Мосстройинформ в номинации «Прошлое и настоящее».

Новый корпус со стеклянным атриумом подчеркнуто контрастен старым кирпичным домам – один из любимых приемов Антона Барклянского. «Работа в исторической среде – интересная задача, потому что даже если здания нейтральны с точки зрения архитектуры, есть ощущение, что строители делали их с любовью, задан уровень качества, которому надо соответствовать», – говорит Антон. «К тому же старая архитектура создает чувство безопасности, она говорит, что прошлое существует, – значит, есть, на что опереться», – добавляет Марина Букина, партнер SYNCHROTECTURE.
Концепция расширения французского лицея А.Дюма в Милютинском переулке © SYNCHROTECTURE совместно с Agence d′Architecture A. Bechu et Associés, СЕТЕК Инжиниринг
Концепция расширения французского лицея А.Дюма в Милютинском переулке © SYNCHROTECTURE совместно с Agence d′Architecture A. Bechu et Associés, СЕТЕК Инжиниринг

Выступающий из черной оправы стеклянный фасад оттеняет кирпич исторических построек. На черном, поглощающем, цвете верхнего яруса настоял Пабло Лорензино, архитектор-партнер AAAB – вечером верх угольного цвета должен сливаться с небом.

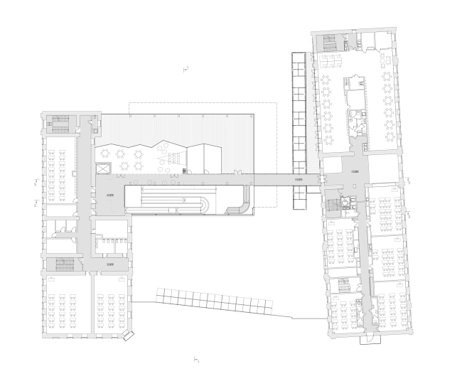
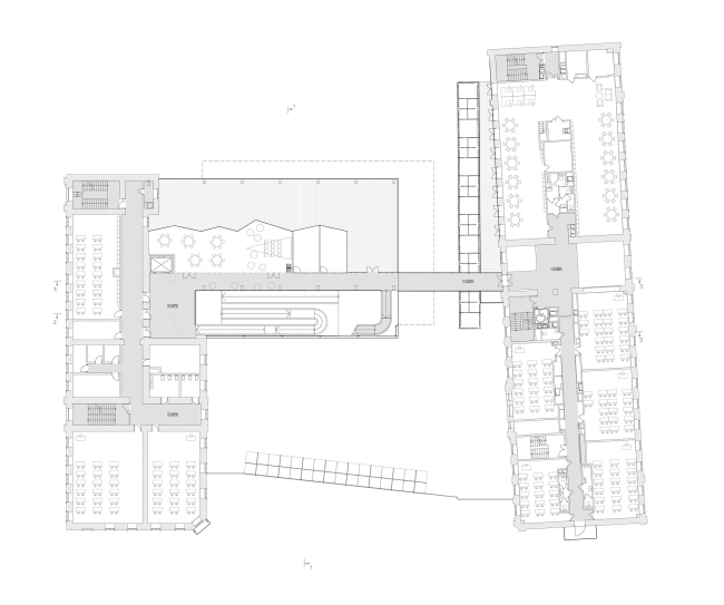
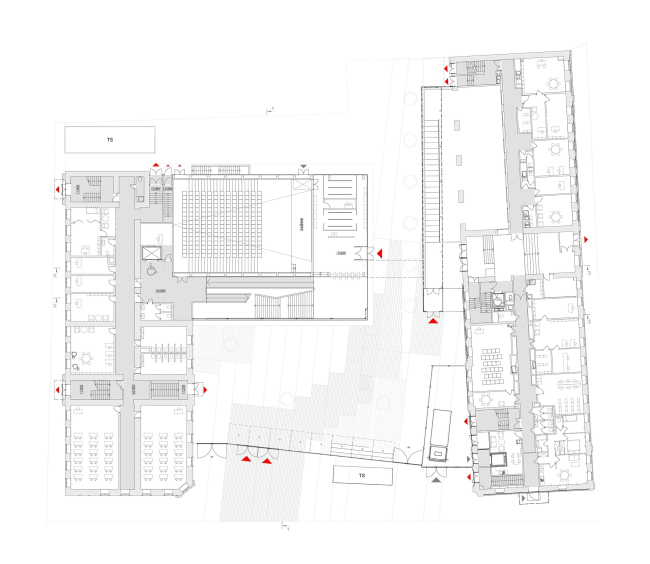
Новый корпус лицея изменяет организацию территории, пересматривает организацию пешеходных потоков. Раньше вход в лицей был для родителей – со стороны Милютинского переулка, а для детей – с маленького пятачка в проулке между храмом и домом Дидио. По проекту перед новым зданием образуется просторный двор с мощением, фланкированный с двух сторон фактурными кирпичными фасадами. Именно там будет главный вход. Напротив этого двора, с другой стороны проулка, находится сквер церкви Св. Людовика – свободное пространство, отступ вглубь от улицы, дающий некоторый обзор. Архитекторы специально открыли новый двор в сквер, сдвинув главный вход, чтобы глаз не упирался в стенку. Хотя формально территория лицея закрыта, стеклянный забор даст визуальную проницаемость.
Концепция расширения французского лицея А.Дюма в Милютинском переулке © SYNCHROTECTURE совместно с Agence d′Architecture A. Bechu et Associés, СЕТЕК Инжиниринг
Концепция расширения французского лицея А.Дюма в Милютинском переулке © SYNCHROTECTURE совместно с Agence d′Architecture A. Bechu et Associés, СЕТЕК Инжиниринг

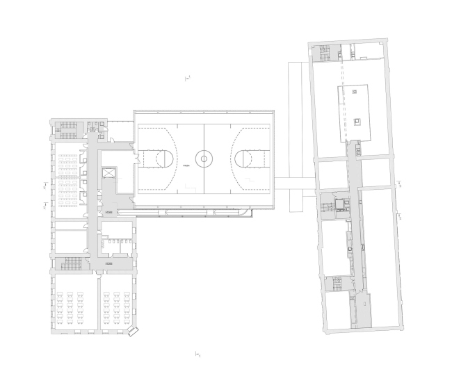
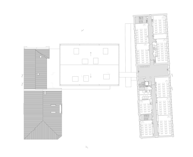
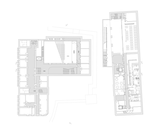
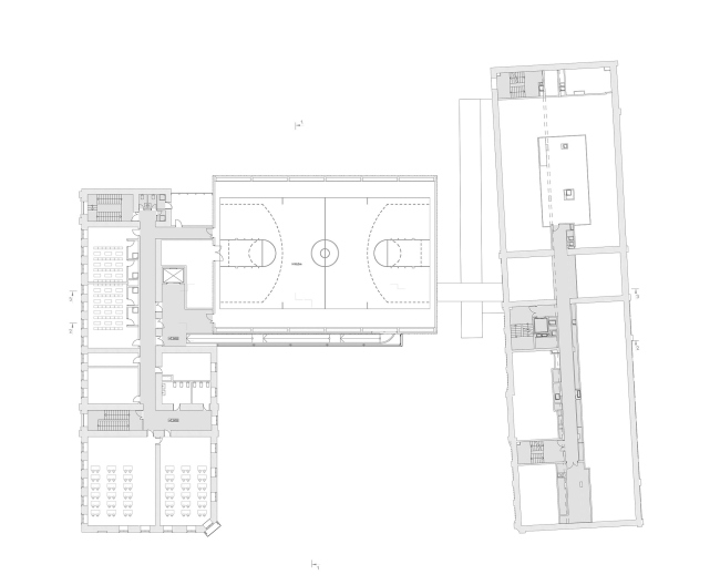
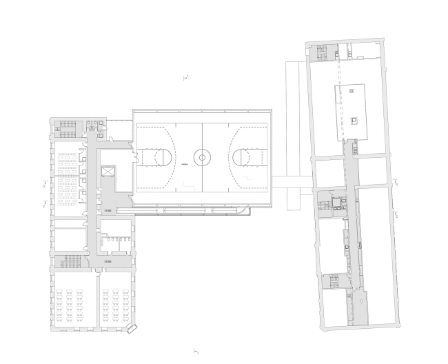
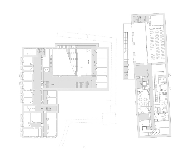
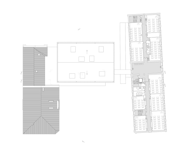
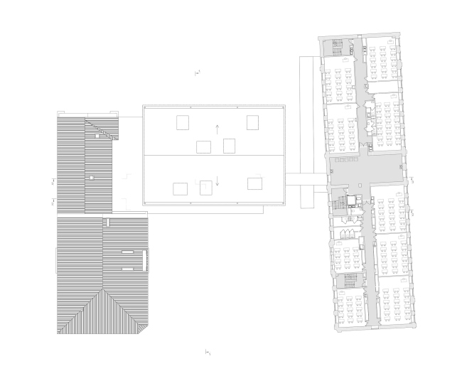
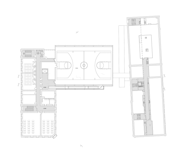
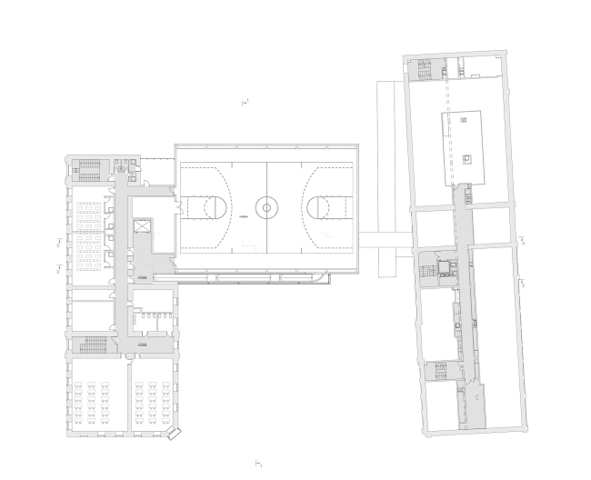
Сценарий для трех зданий писали тщательно. Требовалось разместить в новом корпусе два больших объема – спортзал и актовый зал. Спортзал остроумно расположили в нависающей черной коробке на верхнем уровне, а актовый, многофункциональный зал наполовину заглублен в землю.
Концепция расширения французского лицея А.Дюма в Милютинском переулке © SYNCHROTECTURE совместно с Agence d′Architecture A. Bechu et Associés, СЕТЕК Инжиниринг
Концепция расширения французского лицея А.Дюма в Милютинском переулке © SYNCHROTECTURE совместно с Agence d′Architecture A. Bechu et Associés, СЕТЕК Инжиниринг

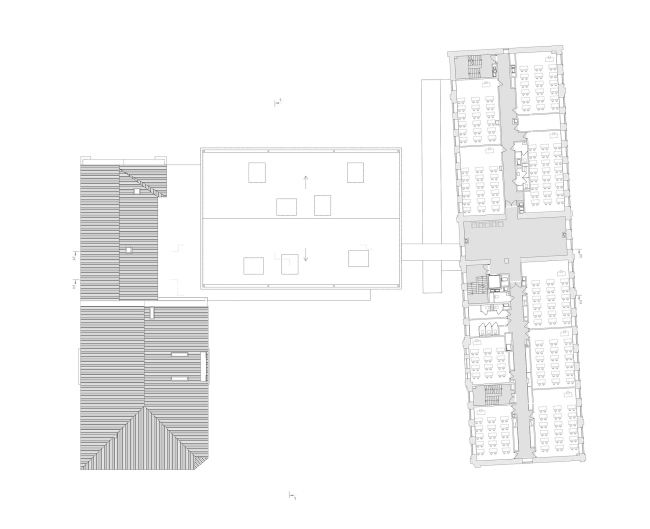
Между спортзалом и актовым залом в антресольном этаже появилось полуоткрытое общественное пространство – так называемый preau, или школьный двор. Это позволило исключить воздействие шума от спортивного зала на актовый зал.
Концепция расширения французского лицея А.Дюма в Милютинском переулке © SYNCHROTECTURE совместно с Agence d′Architecture A. Bechu et Associés, СЕТЕК Инжиниринг
Концепция расширения французского лицея А.Дюма в Милютинском переулке © SYNCHROTECTURE совместно с Agence d′Architecture A. Bechu et Associés, СЕТЕК Инжиниринг

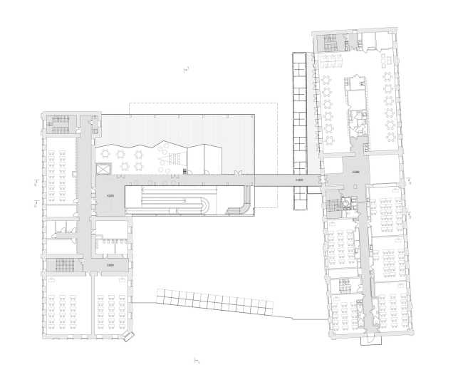
Preau полностью крытый, там можно гулять во время перемен, одна его часть – уличная, другая – интерьерная, за стеклянным ограждением, которое открывают в теплую погоду. Это не только пространство для отдыха детей, но и переход, связывающий все три здания в единую систему. Именно на эту ось нанизаны основные общественные помещения: комнаты для встреч родителей с учителями, библиотека, административные функции.
Концепция расширения французского лицея А.Дюма в Милютинском переулке © SYNCHROTECTURE совместно с Agence d′Architecture A. Bechu et Associés, СЕТЕК Инжиниринг
Концепция расширения французского лицея А.Дюма в Милютинском переулке © SYNCHROTECTURE совместно с Agence d′Architecture A. Bechu et Associés, СЕТЕК Инжиниринг

Еще одна функциональная и красивая идея – пандус, который дублирует лестницу. Благодаря ему разведены потоки людей: мероприятия, проходящие в актовом зале, не будут мешать учебному процессу. Пандус соединяет все уровни и находится на первом плане сразу за стеклянным фасадом. Люди, идущие по пандусу, хорошо видны с улицы – получается подобие городского спектакля, – весь трехъярусный интерьер прозрачен и вся структура здания – как на ладони, и из двора сразу понятно, куда идти. Пандус и прео – это место встреч и общения. А при взгляде изнутри лицея ощущается контакт с городским окружением. Классы, наоборот, расположены в скрытых от уличного шума кирпичных корпусах.
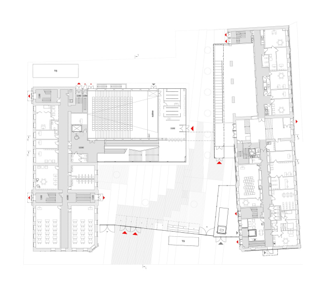
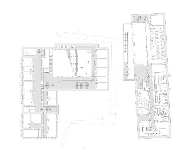
Концепция расширения французского лицея А.Дюма в Милютинском переулке. План уровня 4 © SYNCHROTECTURE совместно с Agence d′Architecture A. Bechu et Associés, СЕТЕК Инжиниринг
Концепция расширения французского лицея А.Дюма в Милютинском переулке. План уровня 4 © SYNCHROTECTURE совместно с Agence d′Architecture A. Bechu et Associés, СЕТЕК Инжиниринг
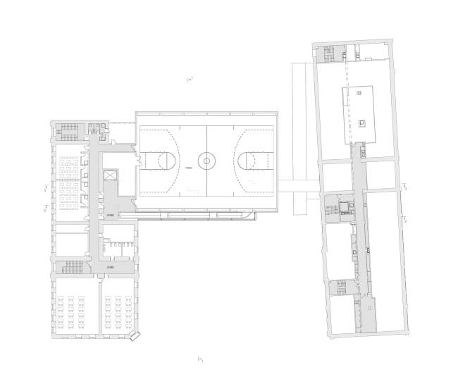
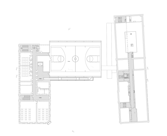
Концепция расширения французского лицея А.Дюма в Милютинском переулке. План уровня 3 © SYNCHROTECTURE совместно с Agence d′Architecture A. Bechu et Associés, СЕТЕК Инжиниринг
Концепция расширения французского лицея А.Дюма в Милютинском переулке. План уровня 3 © SYNCHROTECTURE совместно с Agence d′Architecture A. Bechu et Associés, СЕТЕК Инжиниринг
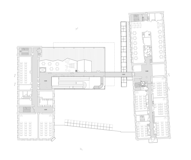
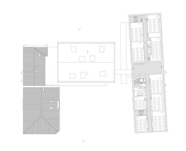
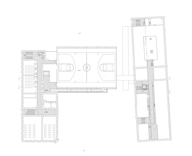
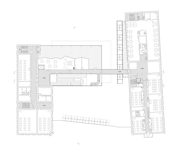
Концепция расширения французского лицея А.Дюма в Милютинском переулке. План уровня 2 © SYNCHROTECTURE совместно с Agence d′Architecture A. Bechu et Associés, СЕТЕК Инжиниринг
Концепция расширения французского лицея А.Дюма в Милютинском переулке. План уровня 2 © SYNCHROTECTURE совместно с Agence d′Architecture A. Bechu et Associés, СЕТЕК Инжиниринг
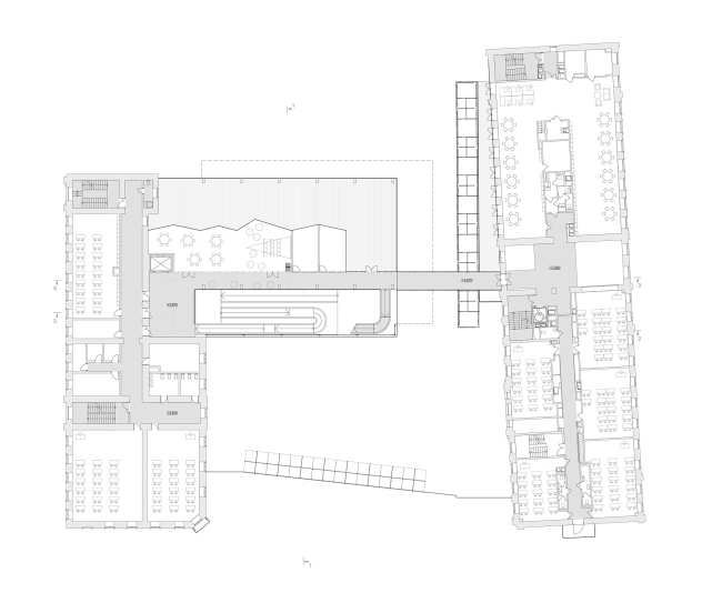
Концепция расширения французского лицея А.Дюма в Милютинском переулке. План уровня 1 © SYNCHROTECTURE совместно с Agence d′Architecture A. Bechu et Associés, СЕТЕК Инжиниринг
Концепция расширения французского лицея А.Дюма в Милютинском переулке. План уровня 1 © SYNCHROTECTURE совместно с Agence d′Architecture A. Bechu et Associés, СЕТЕК Инжиниринг
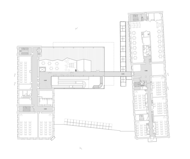
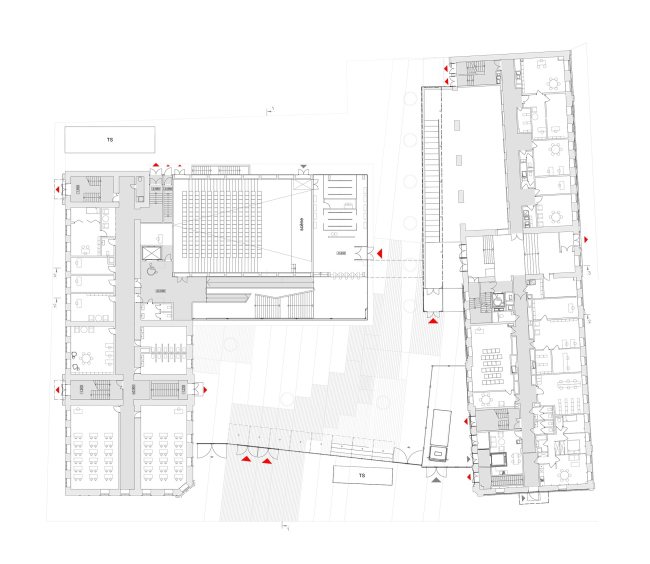
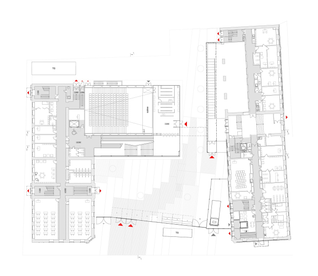
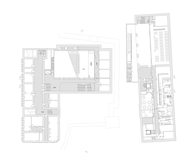
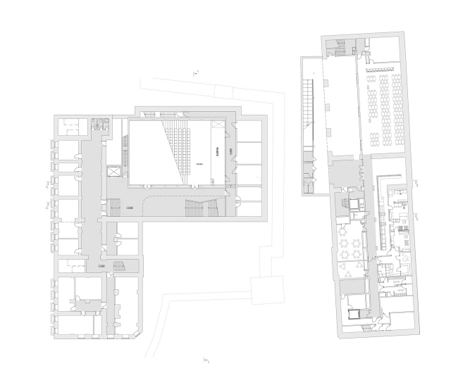
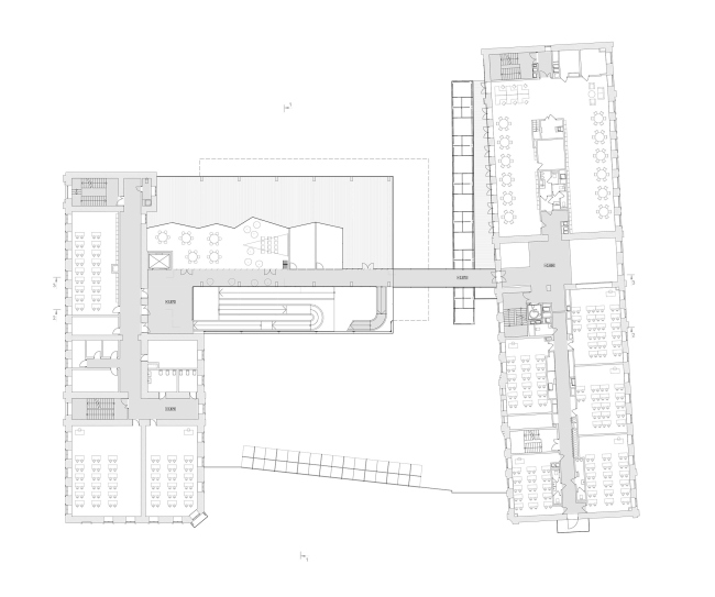
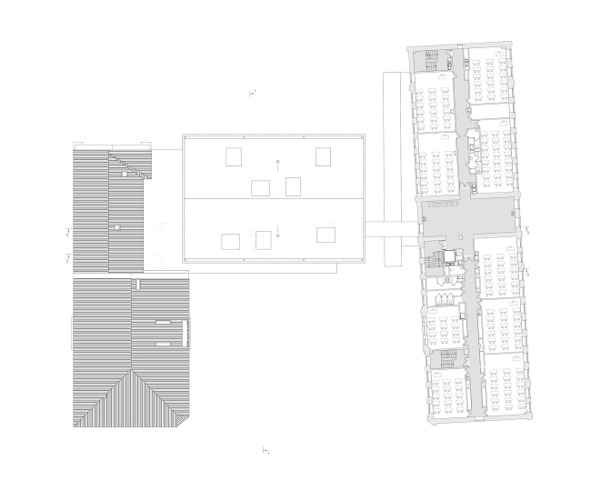
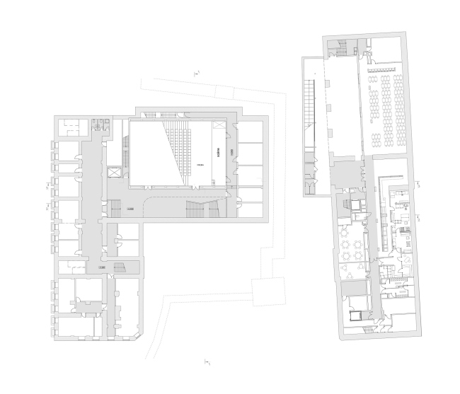
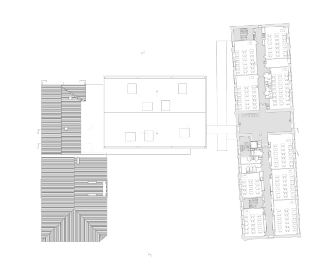
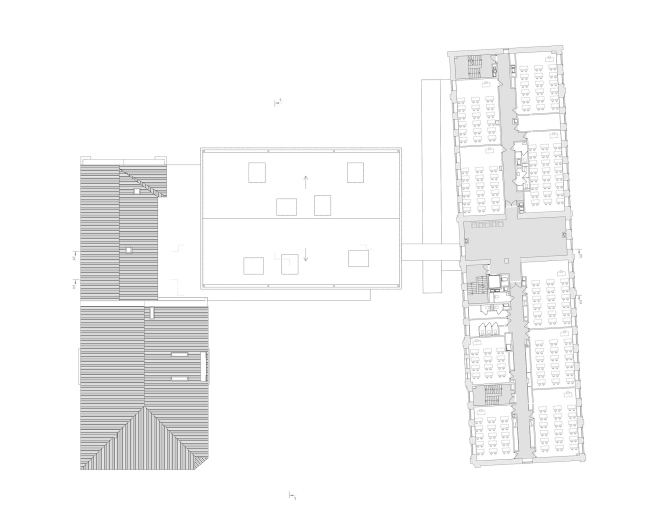
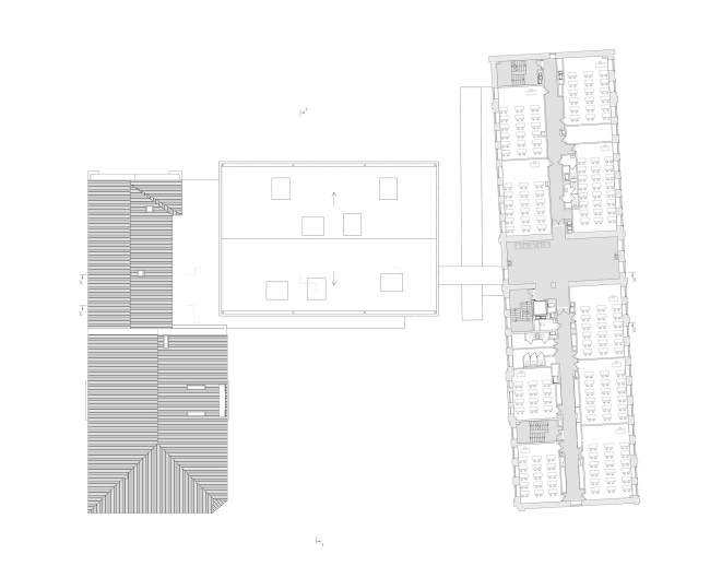
Концепция расширения французского лицея А.Дюма в Милютинском переулке. План уровня 0 © SYNCHROTECTURE совместно с Agence d′Architecture A. Bechu et Associés, СЕТЕК Инжиниринг
Концепция расширения французского лицея А.Дюма в Милютинском переулке. План уровня 0 © SYNCHROTECTURE совместно с Agence d′Architecture A. Bechu et Associés, СЕТЕК Инжиниринг
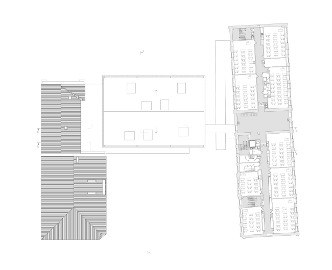
Концепция расширения французского лицея А.Дюма в Милютинском переулке. Разрез 3 © SYNCHROTECTURE совместно с Agence d′Architecture A. Bechu et Associés, СЕТЕК Инжиниринг
Концепция расширения французского лицея А.Дюма в Милютинском переулке. Разрез 3 © SYNCHROTECTURE совместно с Agence d′Architecture A. Bechu et Associés, СЕТЕК Инжиниринг
Концепция расширения французского лицея А.Дюма в Милютинском переулке. Разрез 2 © SYNCHROTECTURE совместно с Agence d′Architecture A. Bechu et Associés, СЕТЕК Инжиниринг
Концепция расширения французского лицея А.Дюма в Милютинском переулке. Разрез 2 © SYNCHROTECTURE совместно с Agence d′Architecture A. Bechu et Associés, СЕТЕК Инжиниринг
Концепция расширения французского лицея А.Дюма в Милютинском переулке. Разрез © SYNCHROTECTURE совместно с Agence d′Architecture A. Bechu et Associés, СЕТЕК Инжиниринг
Концепция расширения французского лицея А.Дюма в Милютинском переулке. Разрез © SYNCHROTECTURE совместно с Agence d′Architecture A. Bechu et Associés, СЕТЕК Инжиниринг

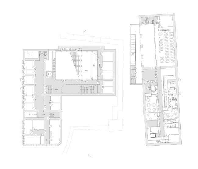
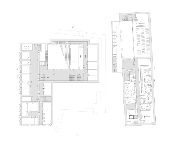
Старый корпус тоже перепрограммировали: пересмотрели организацию первого этажа и расширили столовую на минус первом этаже. В бывшем приютском доме переделали интерьер, сохранив несущие конструкции, открыли замурованные окна на торцевом фасаде, приямки цокольного этажа, чтобы дать доступ дневному свету. Двор состоит из курдонера перед новым корпусом и небольшого дворика за ним. Переход и прео подняты на второй уровень, чтобы не мешать связи этих двух частей.
Концепция расширения французского лицея А.Дюма в Милютинском переулке © SYNCHROTECTURE совместно с Agence d′Architecture A. Bechu et Associés, СЕТЕК Инжиниринг
Концепция расширения французского лицея А.Дюма в Милютинском переулке © SYNCHROTECTURE совместно с Agence d′Architecture A. Bechu et Associés, СЕТЕК Инжиниринг

Проект Лицея Дюма – очень французское решение. Умение работать со стеклом, понимание его природы свойственно многим французским архитекторам. В Париже даже ограда кондоминиума бывает пятиметровой стеклянной стеной без переплетов. Жан Нувель в парижском Фонде Картье (1996) создал цепь отражений деревьев: сады просвечивают сквозь стеклянные пластины фасада, сады перед ними отражаются в стекле.

Во французском лицее тоже есть сад около храма напротив. И парадный двор со стеклянной оградой – атмосферный островок Франции в Москве.
Концепция расширения французского лицея А.Дюма в Милютинском переулке © SYNCHROTECTURE совместно с Agence d′Architecture A. Bechu et Associés, СЕТЕК Инжиниринг
Концепция расширения французского лицея А.Дюма в Милютинском переулке © SYNCHROTECTURE совместно с Agence d′Architecture A. Bechu et Associés, СЕТЕК Инжиниринг

Итак, у курдонера стеклянный забор. За ним разворачивается действие, которое наблюдает идущий мимо горожанин. Это тоже очень по-французски: даже если не иметь в виду «общество спектакля» французского философа Ги Дебора как модель современного мира, жизнь напоказ, как в кино, – это узнаваемая черта французской культуры. За прозрачной стеной, за прозрачной оградой... Хотя школа в России – закрытое учреждение, такое деликатное решение поможет включить ее в ткань города и еще немножко улучшить наш город.

Тем более, что рядом находится Мясницкая улица, освоенная Высшей школой экономики, с множеством кафе и книжных, – практически университетский квартал, переходящий в не менее облагороженную Покровку. Так что контекст благоприятный.