Размещено на портале Архи.ру (www.archi.ru)

01.06.2018

Архсовет – 57

Мария Трошина
Объект:
ЖК AQUATORIA
Адрес:
Россия, Москва.
Мастерская:
ТПО «Резерв»

После одобрения Архсоветом проекта ЖК AQUATORIA на Ленинградском шоссе в градостроительном плане земельного участка возможно произойдут изменения.

МФК на Ленинградском шоссе, вл. 69 © ТПО «Резерв»
МФК на Ленинградском шоссе, вл. 69 © ТПО «Резерв»

На этот раз заседание архсовета было очень динамичным: участники хорошо помнят живое обсуждение достоинств и недостатков проекта ЖК AQUATORIA, разработанного компанией Metex Design group, в феврале.

Для доработки проекта по замечаниям заказчик пригласил ТПО «Резерв». На защите Владимир Плоткин напомнил о главных проблемах, которые предстояло решить бюро: создать узнаваемый яркий образ офисного блока, обращенного в сторону Ленинградского шоссе, изменить фасады жилых корпусов с «южного» типа на более соответствующие нашим широтам, акцентировать благоустройство набережной и ее связь с жилыми кварталами.

ЖК AQUATORIA
ЖК AQUATORIA
© ТПО «Резерв»

Особые требования предъявлялись именно к офисному блоку. В предшествующем проекте он состоял из трех башен, внешний вид которых в целом повторял тему жилых корпусов, отличаясь при этом от них своим функциональным наполнением.
Было необходимо не только создать собственный характер бизнес-центра, но и подчеркнуть значимость места на въезде в город, а также обеспечить его прозрачность и компактность с тем, чтобы комплекс не перекрывал виды на реку из города.
МФК на Ленинградском шоссе, вл. 69 © ТПО «Резерв»
МФК на Ленинградском шоссе, вл. 69 © ТПО «Резерв»

В ходе проектирования было разработано несколько вариантов объемно-пространственного решения, учитывающих эти аспекты, в том числе с использованием темы трех блоков из предыдущего предложения. Их смещение и объединение мощной перемычкой сверху сделало композицию более цельной.
Последующая корректировка проекта происходила по мере высказывания заказчиком конкретных пожеланий, в частности, желания иметь полноценный офисный центр с площадью этажа не менее 1000 метров. Вариант протяженного моноблока, принимавшего во внимание эти новые вводные ТЗ, был отклонен как не соответствующий принципу прозрачности. В целом, в других предложениях ТПО «Резерв», сохранялась идея некоего портала в город.
МФК на Ленинградском шоссе, вл. 69 © ТПО «Резерв»
МФК на Ленинградском шоссе, вл. 69 © ТПО «Резерв»

Итоговый вариант офисного комплекса, одобренный заказчиком и представленный на архсовете, воплотил все искомые качества: два объема, стоящие на стилобате, вписаны в полуциркульный план и образуют своеобразную подкову с разрывом в центре. Это решение позволило сделать комплекс компактней на четверть.
МФК на Ленинградском шоссе, вл. 69. © ТПО «Резерв»
МФК на Ленинградском шоссе, вл. 69. © ТПО «Резерв»

Полукружье подчеркнуто перемычкой в нижней части здания, которая с одной стороны усиливает единое визуальное восприятие формы, а с другой – организует пространство компактной пьяцетты внутреннего двора. В этом «мосте» между двумя объемами предполагается размещение конференц-зала, фитнесс-центра и кафе.
В стилобатной части размещена парковка.
МФК на Ленинградском шоссе, вл. 69 © ТПО «Резерв»
МФК на Ленинградском шоссе, вл. 69 © ТПО «Резерв»

Выразительность комплекса со стороны реки подчеркнута консольными выносами в верхней части объемов, которые делают объект узнаваемым. Большое внимание было уделено и видам из окон офисов: внутренняя плоскость подковы имеет максимальное остекление, а для внешней разработана система зубчатого фасада, позволяющего организовать максимально возможное количество помещений, раскрытых к реке. Этот же прием создает динамический эффект при движении по Ленинградскому шоссе. 

Для жилых корпусов архитекторы придумали новую стеклянную оболочку, оставив террасы лишь в их самой верхней части .

МФК на Ленинградском шоссе, вл. 69. Фотография © Мария Трошина
МФК на Ленинградском шоссе, вл. 69. Фотография © Мария Трошина

В благоустройстве территории особый акцент был сделан на связности набережной с соседними участками, в частности, с парком по другую сторону моста: пешеходный проход под мостом соединяет набережные в единую цепь, а обустройство причала оживляет жизнь прибрежной зоны у подножья бизнес-центра.
МФК на Ленинградском шоссе, вл. 69 © ТПО «Резерв»
МФК на Ленинградском шоссе, вл. 69 © ТПО «Резерв»

Обсуждение проекта членами архсовета было очень коротким и касалось самого проблемного углового участка, где расположился офисный комплекс. Юлия Бурдова при одобрении общего объемно-планировочного решения, высказала пожелание «немного успокоить пластику фасадов». Алексеем Воронцовым было высказано предложение об усилении связей с жилыми районами через обустройство надземного перехода на Ленинградском шоссе. «Учитывая масштабность комплекса и появление большого количества рабочих мест, можно предположить, что не все будут ездить издалека. Наверняка часть работающих предпочтет жить поблизости».

Также Алексей Воронцов позволил себе смелое замечание о возможности изменения ГПЗУ для офисного блока, чтоб сделать крайнюю башню повыше: «Регламент в 75 метров хорош для какого-то рядового районного решения». Сергей Кузнецов отметил, что «у нас есть примеры, когда по решению совета поднималась высота в ГПЗУ, но это в первую очередь зависит от желания заказчика. Мы со своей стороны можем оказать такую поддержку и рекомендовать внесение необходимых изменений». О знаковости предложенного проекта и создании настоящего лэнд марка говорили и другие участники Архсовета, так или иначе поддержавшие идею усиления высотного акцента.
МФК на Ленинградском шоссе, вл. 69 © ТПО «Резерв»
МФК на Ленинградском шоссе, вл. 69 © ТПО «Резерв»

Проект был принят. Теперь остался лишь вопрос, как возможное внесение изменений в ГПЗУ отразиться на заключительном варианте, который будет реализован.
МФК на Ленинградском шоссе, вл. 69 © ТПО «Резерв»
МФК на Ленинградском шоссе, вл. 69 © ТПО «Резерв»
МФК на Ленинградском шоссе, вл. 69 © ТПО «Резерв»
МФК на Ленинградском шоссе, вл. 69 © ТПО «Резерв»
МФК на Ленинградском шоссе, вл. 69. План -1 этажа © ТПО «Резерв»
МФК на Ленинградском шоссе, вл. 69. План -1 этажа © ТПО «Резерв»
МФК на Ленинградском шоссе, вл. 69. План – 2 этажа © ТПО «Резерв»
МФК на Ленинградском шоссе, вл. 69. План – 2 этажа © ТПО «Резерв»
МФК на Ленинградском шоссе, вл. 69. План 1 этажа © ТПО «Резерв»
МФК на Ленинградском шоссе, вл. 69. План 1 этажа © ТПО «Резерв»
МФК на Ленинградском шоссе, вл. 69. План 4 этажа © ТПО «Резерв»
МФК на Ленинградском шоссе, вл. 69. План 4 этажа © ТПО «Резерв»
МФК на Ленинградском шоссе, вл. 69. План типового этажа © ТПО «Резерв»
МФК на Ленинградском шоссе, вл. 69. План типового этажа © ТПО «Резерв»
МФК на Ленинградском шоссе, вл. 69. Поперечный разрез © ТПО «Резерв»
МФК на Ленинградском шоссе, вл. 69. Поперечный разрез © ТПО «Резерв»
МФК на Ленинградском шоссе, вл. 69. Продольный разрез © ТПО «Резерв»
МФК на Ленинградском шоссе, вл. 69. Продольный разрез © ТПО «Резерв»
МФК на Ленинградском шоссе, вл. 69. Фасады блок С1 © ТПО «Резерв»
МФК на Ленинградском шоссе, вл. 69. Фасады блок С1 © ТПО «Резерв»
МФК на Ленинградском шоссе, вл. 69. Фасады блок С2 © ТПО «Резерв»
МФК на Ленинградском шоссе, вл. 69. Фасады блок С2 © ТПО «Резерв»
МФК на Ленинградском шоссе, вл. 69. Фасады жилых домов  В1, В2 © ТПО «Резерв»
МФК на Ленинградском шоссе, вл. 69. Фасады жилых домов В1, В2 © ТПО «Резерв»
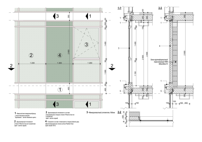
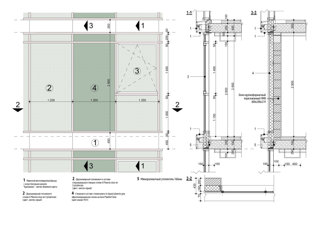
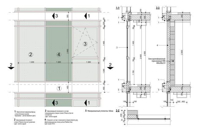
МФК на Ленинградском шоссе, вл. 69. Фасады © ТПО «Резерв»
МФК на Ленинградском шоссе, вл. 69. Фасады © ТПО «Резерв»
МФК на Ленинградском шоссе, вл. 69. Фасады © ТПО «Резерв»
МФК на Ленинградском шоссе, вл. 69. Фасады © ТПО «Резерв»
МФК на Ленинградском шоссе, вл. 69 © ТПО «Резерв»
МФК на Ленинградском шоссе, вл. 69 © ТПО «Резерв»
МФК на Ленинградском шоссе, вл. 69 © ТПО «Резерв»
МФК на Ленинградском шоссе, вл. 69 © ТПО «Резерв»
МФК на Ленинградском шоссе, вл. 69. Фотография © Мария Трошина
МФК на Ленинградском шоссе, вл. 69. Фотография © Мария Трошина
МФК на Ленинградском шоссе, вл. 69 © ТПО «Резерв»
МФК на Ленинградском шоссе, вл. 69 © ТПО «Резерв»
МФК на Ленинградском шоссе, вл. 69. Фотография © Мария Трошина
МФК на Ленинградском шоссе, вл. 69. Фотография © Мария Трошина
МФК на Ленинградском шоссе, вл. 69. Фотография © Мария Трошина
МФК на Ленинградском шоссе, вл. 69. Фотография © Мария Трошина
МФК на Ленинградском шоссе, вл. 69 © ТПО «Резерв»
МФК на Ленинградском шоссе, вл. 69 © ТПО «Резерв»
МФК на Ленинградском шоссе, вл. 69 © ТПО «Резерв»
МФК на Ленинградском шоссе, вл. 69 © ТПО «Резерв»
МФК на Ленинградском шоссе, вл. 69 © ТПО «Резерв»
МФК на Ленинградском шоссе, вл. 69 © ТПО «Резерв»
МФК на Ленинградском шоссе, вл. 69 © ТПО «Резерв»
МФК на Ленинградском шоссе, вл. 69 © ТПО «Резерв»
МФК на Ленинградском шоссе, вл. 69 © ТПО «Резерв»
МФК на Ленинградском шоссе, вл. 69 © ТПО «Резерв»
МФК на Ленинградском шоссе, вл. 69 © ТПО «Резерв»
МФК на Ленинградском шоссе, вл. 69 © ТПО «Резерв»
МФК на Ленинградском шоссе, вл. 69 © ТПО «Резерв»
МФК на Ленинградском шоссе, вл. 69 © ТПО «Резерв»
Фотография © Мария Трошина
Фотография © Мария Трошина
МФК на Ленинградском шоссе, вл. 69 © ТПО «Резерв»
МФК на Ленинградском шоссе, вл. 69 © ТПО «Резерв»
МФК на Ленинградском шоссе, вл. 69 © ТПО «Резерв»
МФК на Ленинградском шоссе, вл. 69 © ТПО «Резерв»