Размещено на портале Архи.ру (www.archi.ru)

01.06.2018

Библиотеки Москвы: новый виток обновления

Дарья Горелова

Практикум «Библиотеки_7» проходил в феврале-апреле, итоги подвели в начале мая. Теперь организаторы планируют открыть в Венеции выставку лучших работ, а некоторые участники уже начали реализацию. Публикуем 7 проектов, отобранных организаторами.

В практикуме – который можно понять как очередной виток превращения столичных библиотек из устаревших мест, хранящих «бумагу», в многофункциональные общественные центры, – участвовали более сорока молодых архитекторов, каждая группа получила одну из 30 библиотек, выбранных московской ЦБС из более чем 400 имеющихся в ее распоряжении. В процессе участники общались с директорами библиотек и жителями, учитывали в проектах экономику; так что проекты вполне реальные. Итак, 7 проектов для библиотек:


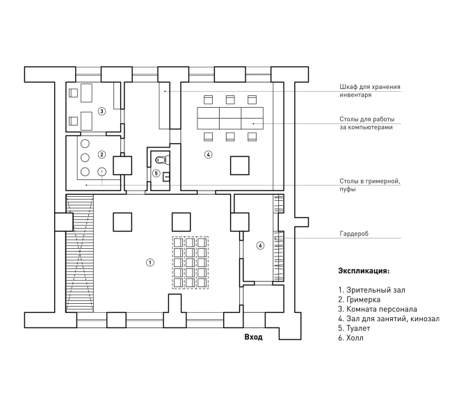
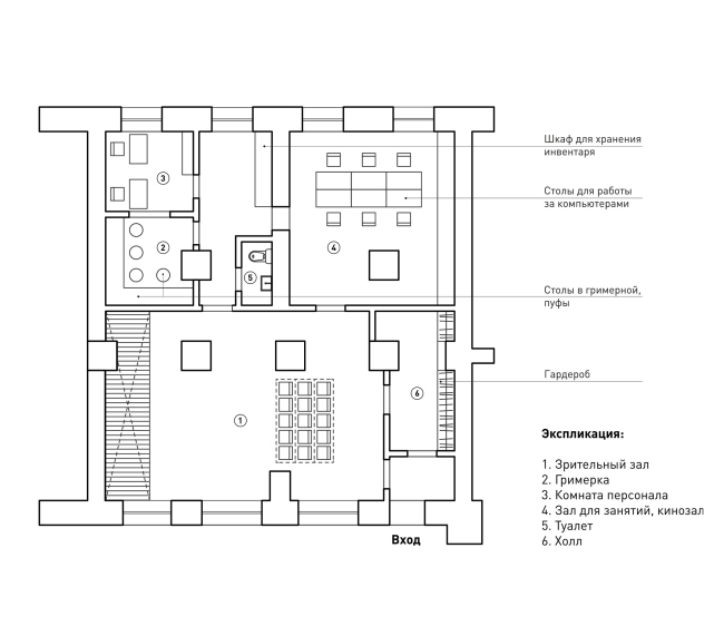
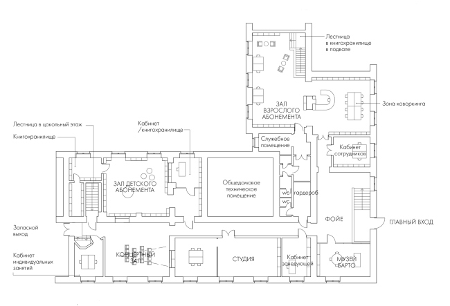
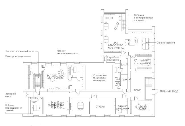
№ 3 им. Добролюбова
Адрес: Москва, Смоленская пл., д.13/21
Авторы: И. Матвеев, К. Ракова, С. Мальцева, Творческое объединение «Дмитровка»

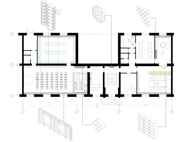
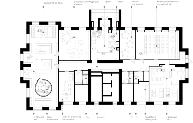
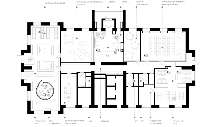
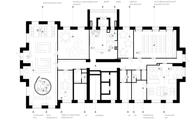
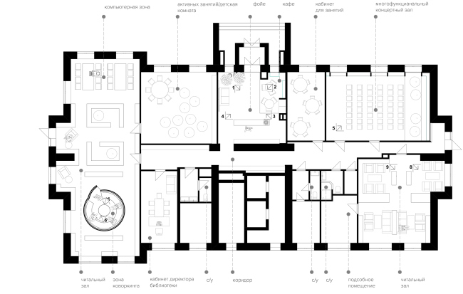
Библиотека №3 им. Добролюбова». Паблик центр. Лекторий. Авторы проекта: И. Матвеев, К. Ракова, С. Мальцева
Библиотека №3 им. Добролюбова». Паблик центр. Лекторий. Авторы проекта: И. Матвеев, К. Ракова, С. Мальцева

Здание 1940-х – 1950-х годов на Смоленской площади нуждается в реставрации, авторы планируют провести ее в верхних этажах «взрослого» отделения, где интерьер сталинского времени сохранился, максимально бережно, лишь раскрыть часть заложенных проемов ради лучшей видимости и предложить несколько вариантов расстановки мебели. Интерьер нижнего яруса с так называемым паблик-центром, совмещающим экспозиционное пространство с помещениями для кружков, где историческая отделка не сохранилась, получает новый дизайн, никак прямо не связанный с историческим.
Библиотека №3 им. Добролюбова». Паблик центр. Лекторий. Авторы проекта: И. Матвеев, К. Ракова, С. Мальцева
Библиотека №3 им. Добролюбова». Паблик центр. Лекторий. Авторы проекта: И. Матвеев, К. Ракова, С. Мальцева
Библиотека №3 им. Добролюбова». Паблик центр. Лекторий. Авторы проекта: И. Матвеев, К. Ракова, С. Мальцева
Библиотека №3 им. Добролюбова». Паблик центр. Лекторий. Авторы проекта: И. Матвеев, К. Ракова, С. Мальцева
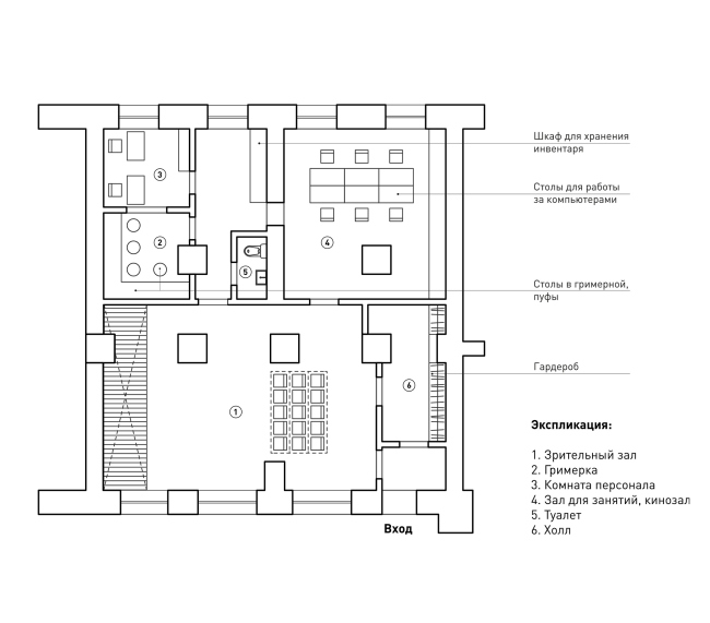
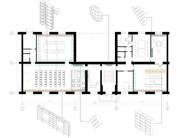
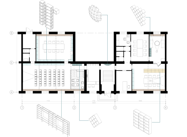
Архитектурная концепция реконструкции
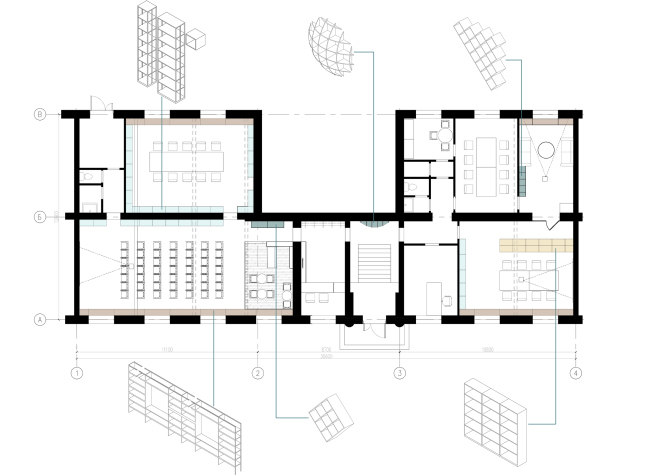
библиотеки №3 им. Добролюбова». Паблик-центр. Экспозиционный этаж. Зонирование экспозиционного этажа. Авторы проекта: И. Матвеев, К. Ракова, С. Мальцева
Архитектурная концепция реконструкции библиотеки №3 им. Добролюбова». Паблик-центр. Экспозиционный этаж. Зонирование экспозиционного этажа. Авторы проекта: И. Матвеев, К. Ракова, С. Мальцева
Библиотека №3 им. Добролюбова». Авторы проекта: И. Матвеев, К. Ракова, С. Мальцева
Библиотека №3 им. Добролюбова». Авторы проекта: И. Матвеев, К. Ракова, С. Мальцева
Архитектурная концепция реконструкции
библиотеки №3 им. Добролюбова». Паблик центр. Лекторий. Авторы проекта: И. Матвеев, К. Ракова, С. Мальцева
Архитектурная концепция реконструкции библиотеки №3 им. Добролюбова». Паблик центр. Лекторий. Авторы проекта: И. Матвеев, К. Ракова, С. Мальцева
***

№ 64
Адрес: Москва, Путевой проезд, 38А
Авторы проекта: А. Желтов, К. Грошелев, С. Сычугова
Библиотека №64. Авторы проекта: А. Желтов,
К. Грошелев, С.
Сычугова
Библиотека №64. Авторы проекта: А. Желтов, К. Грошелев, С. Сычугова

На ступеньках входной группы авторы предлагают разместить летнее кафе, «где можно почитать книгу и пообщаться за чашкой чая или кофе». То же в вестибюле – стеллажи, кофемашина. Коворкинг разместили в цилиндрическом объеме посреди основного читального зала за поглощающими шум перегородками 1,5-метровой высоты – в проекте вообще активно используются шумопоглощающие перегородки, театральный зал может быть разделен на 2 части с двумя сценами в торцах, на каждой по краям – полукруглые кулисы.
Библиотека №64. Авторы проекта: А. Желтов,
К. Грошелев, С.
Сычугова
Библиотека №64. Авторы проекта: А. Желтов, К. Грошелев, С. Сычугова
Библиотека №64. Авторы проекта: А. Желтов,
К. Грошелев, С.
Сычугова
Библиотека №64. Авторы проекта: А. Желтов, К. Грошелев, С. Сычугова
Библиотека №64. Авторы проекта: А. Желтов,
К. Грошелев, С.
Сычугова
Библиотека №64. Авторы проекта: А. Желтов, К. Грошелев, С. Сычугова
Библиотека №64. Авторы проекта: А. Желтов,
К. Грошелев, С.
Сычугова
Библиотека №64. Авторы проекта: А. Желтов, К. Грошелев, С. Сычугова
***

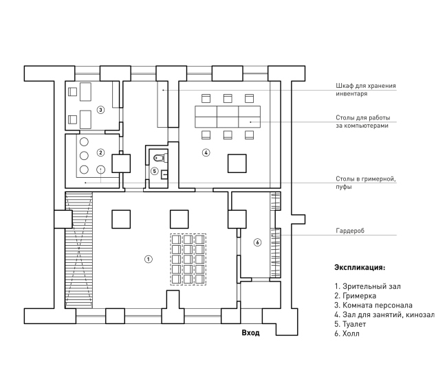
Детская № 178 им. Агнии Барто
Адрес: ул. Дмитрия Ульянова, 24
Автор проекта: Н. Жернакова

Детская библиотека №178 им. Агнии Барто. Взрослый абонемент. Автор проекта: Н. Жернакова
Детская библиотека №178 им. Агнии Барто. Взрослый абонемент. Автор проекта: Н. Жернакова

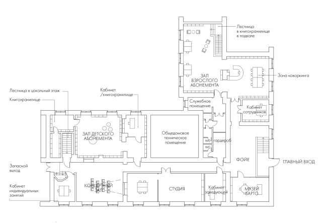
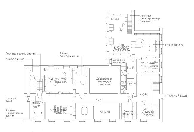
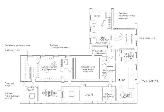
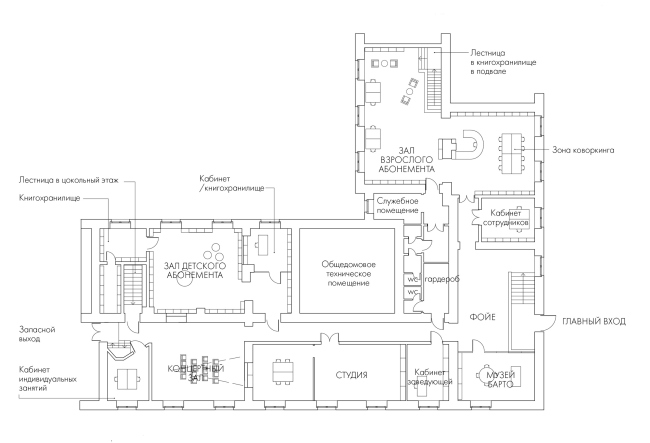
Библиотека в «Генеральском доме» на улице Дмитрия Ульянова, часть престижного академического юго-запада, включает музей Агнии Барто, и довольно активно работает для взрослых и детей. В цокольном этаже с 1990-х существует выставочный зал. В то же время в библиотеке после того, как прорвало трубы, надо ремонтировать пол; нет мест для детских игр, тесно и книгам, и занятиям. Авторы предложили два образа, оба, надо сказать, очень спокойные в пику пестрому «детскому китчу». Один – «бабушкина библиотека», ностальгическая и продолжающая образ музея Барто. Второй – «навырост», основанный на деликатных пастельных цветах и «забавной и ироничной мебели». Место для игровых и занятий авторы проекта находят... за счет читальных залов: раньше они были разделены с абонементом, в проекте совмещены.
Детская библиотека №178 им. Агнии Барто. Взрослый абонемент. Автор проекта: Н. Жернакова
Детская библиотека №178 им. Агнии Барто. Взрослый абонемент. Автор проекта: Н. Жернакова
Детская библиотека №178 им. Агнии Барто. Детский абонемент. Автор проекта: Н. Жернакова
Детская библиотека №178 им. Агнии Барто. Детский абонемент. Автор проекта: Н. Жернакова
Детская библиотека №178 им. Агнии Барто. Студия детских кружков. Автор проекта: Н. Жернакова
Детская библиотека №178 им. Агнии Барто. Студия детских кружков. Автор проекта: Н. Жернакова
Детская библиотека №178 им. Агнии Барто. План первого этажа. библиотеки. Проектное предложение. Автор проекта: Н. Жернакова
Детская библиотека №178 им. Агнии Барто. План первого этажа. библиотеки. Проектное предложение. Автор проекта: Н. Жернакова
***

№ 85
Адрес: ул. 3-я Парковая, 26/2
Авторы проекта: Инна Сафиуллина, Оксана Базанова

Библиотека №85. Медиазал. Авторы проекта: Инна Сафиуллина, Оксана Базанова
Библиотека №85. Медиазал. Авторы проекта: Инна Сафиуллина, Оксана Базанова

Инна Сафиуллина и Оксана Базанова определили направленность библиотеки на 3-й Парковой как детскую, посвященную дизайну, и целью их проекта обновления стало – познакомить читателей с разными направлениями авангарда. Авангард важен для дизайна, но его «не проходят в школе», – объясняют авторы. Предложенный дизайн интерьера тоже вдохновлен принципами авангарда. Стеллажи в читальном зале решают в виде амфитеатра: можно сидеть на полках и перед ними, брать книги, здесь же читать, ставить на место. Вокруг опор тоже группируются стеллажи. Поскольку в библиотеке есть детский театр, для него оборудуется трансформируемое помещение со сценой-антресолью. Летом спектакли можно будет давать прямо в арке входа в библиотеку, там тоже мини-сцена, которая использует и ступеньки лестницы: кукольные, теневые и прочие спектакли должны привлечь внимание посетителей.
Библиотека №85. Зал выдачи книг. Вид на стойку рецепции. Авторы проекта: Инна Сафиуллина, Оксана Базанова
Библиотека №85. Зал выдачи книг. Вид на стойку рецепции. Авторы проекта: Инна Сафиуллина, Оксана Базанова
Библиотека №85. Читальный зал. Авторы проекта: Инна Сафиуллина, Оксана Базанова
Библиотека №85. Читальный зал. Авторы проекта: Инна Сафиуллина, Оксана Базанова
Библиотека №85. Зал выдачи книг. Авторы проекта: Инна Сафиуллина, Оксана Базанова
Библиотека №85. Зал выдачи книг. Авторы проекта: Инна Сафиуллина, Оксана Базанова
Библиотека №85. Пространство «Театр». Зонирование помещений. Авторы проекта: Инна Сафиуллина, Оксана Базанова
Библиотека №85. Пространство «Театр». Зонирование помещений. Авторы проекта: Инна Сафиуллина, Оксана Базанова
***

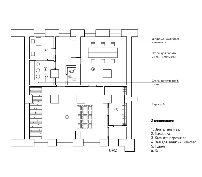
№ 40
Адрес: ул. 1-я Хуторская д.2, к.2
​Авторы проекта: Точка Хайпа

Библиотека №40 © Точка Хайпа
Библиотека №40 © Точка Хайпа

Точка хайпа – это антикафе, клуб для разговоров по душам. В данной библиотеке уже есть много современных функций, и они скорее требуют оформления. Существует клуб подростковых разговоров и антикафе, вскоре планируются фото- и кинозал; задачей архитекторов было все это оформить, а не инициировать. Предложены цветные подвижные стулья и пуфики, стеллажи, столы и сиденья – в том числе из фанерных кассет-поддонов.
Библиотека №40 © Точка Хайпа
Библиотека №40 © Точка Хайпа
Библиотека №40 © Точка Хайпа
Библиотека №40 © Точка Хайпа
Библиотека №40 © Точка Хайпа
Библиотека №40 © Точка Хайпа
Библиотека №40 © Точка Хайпа
Библиотека №40 © Точка Хайпа
***

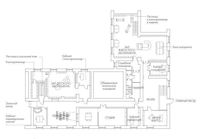
№ 2 им. Ю. В. Трифонова
Адрес: Москва, 4-я Тверская-Ямская улица, 26/8
Авторы проекта: М. Бахрамеева, Е. Ермакова, Д. Петухов

Библиотека №2 им. Ю. В. Трифонова. Вход. Авторы проекта: М. Бахрамеева, Е. Ермакова, Д. Петухов
Библиотека №2 им. Ю. В. Трифонова. Вход. Авторы проекта: М. Бахрамеева, Е. Ермакова, Д. Петухов

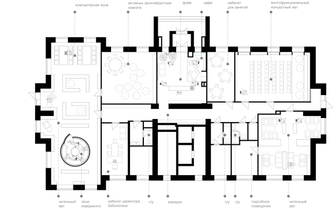
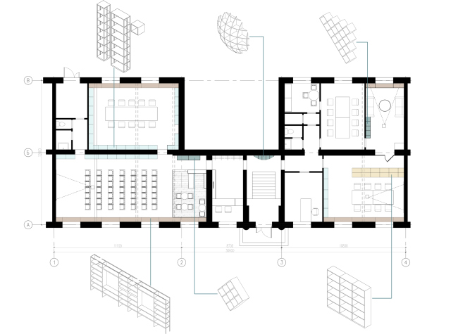
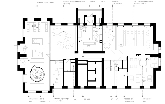
Авторы назвали свой проект «библиотека мышления». Все книгохранилище они делают открытым и распределяют книжные стеллажи по вновь образованному в бывшем хранилище коворкингу, конференц-залу и «экономическому отделению». В зале периодики, тоже, видимо, распределенной по открытым залам, образуется переговорная, а в конференц-зале – небольшое кафе на месте кафедры выдачи книг, которая перемещается на место компьютерного зала, тоже распределенного по опен-спейсу. Стеллажи распределяются вдоль стен, изготавливаются по авторским проектам ради оптимального размещения, а иногда и согласно творческой фантазии – на лестнице стеллаж выпуклый как линза, над амфитеатром же стеллаж сливается с ребристым арочным потолком. Убирают облицовочные панели с потолка, стен, линолеум с пола, – все это позволит не только обновить ощущения от интерьера, но и выиграть пару сантиметров пространства за счет толщины облицовок.
Библиотека №2 им. Ю. В. Трифонова. Вход. Авторы проекта: М. Бахрамеева, Е. Ермакова, Д. Петухов
Библиотека №2 им. Ю. В. Трифонова. Вход. Авторы проекта: М. Бахрамеева, Е. Ермакова, Д. Петухов
Библиотека №2 им. Ю. В. Трифонова. Вход. Авторы проекта: М. Бахрамеева, Е. Ермакова, Д. Петухов
Библиотека №2 им. Ю. В. Трифонова. Вход. Авторы проекта: М. Бахрамеева, Е. Ермакова, Д. Петухов
Библиотека №2 им. Ю. В. Трифонова. Вход. Авторы проекта: М. Бахрамеева, Е. Ермакова, Д. Петухов
Библиотека №2 им. Ю. В. Трифонова. Вход. Авторы проекта: М. Бахрамеева, Е. Ермакова, Д. Петухов
Библиотека №2 им. Ю. В. Трифонова. Главный зал. Авторы проекта: М. Бахрамеева, Е. Ермакова, Д. Петухов
Библиотека №2 им. Ю. В. Трифонова. Главный зал. Авторы проекта: М. Бахрамеева, Е. Ермакова, Д. Петухов
Библиотека №2 им. Ю. В. Трифонова. Переговорная. Авторы проекта: М. Бахрамеева, Е. Ермакова, Д. Петухов
Библиотека №2 им. Ю. В. Трифонова. Переговорная. Авторы проекта: М. Бахрамеева, Е. Ермакова, Д. Петухов
***

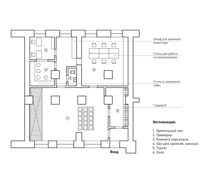
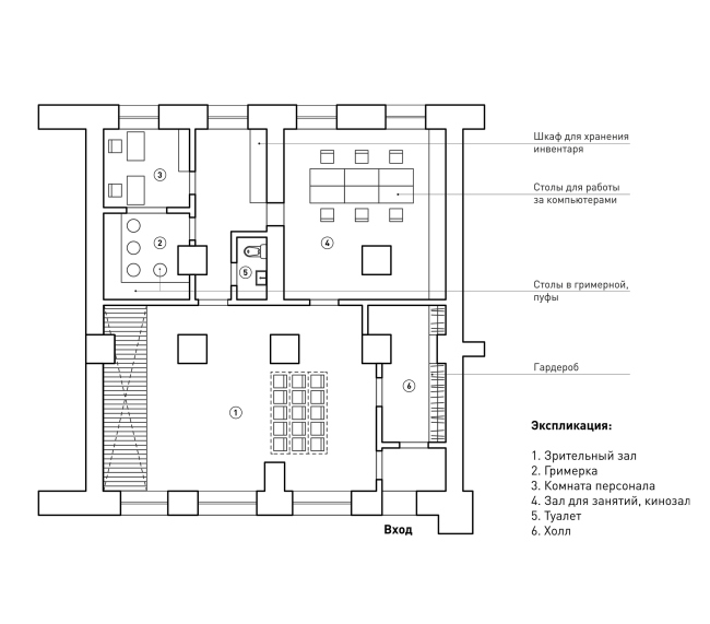
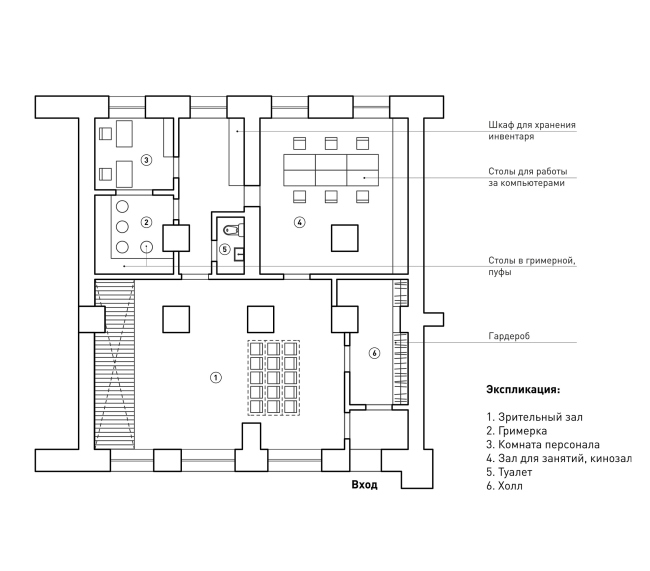
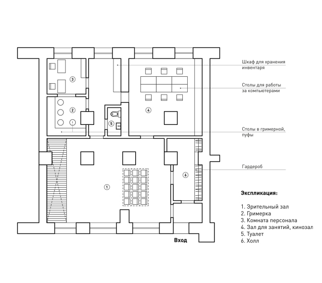
№ 106
Адрес: Москва, Шатурская улица, 49к1
Авторы проекта: ​Татьяна Скибо

Библиотека №106 © Татьяна Скибо
Библиотека №106 © Татьяна Скибо

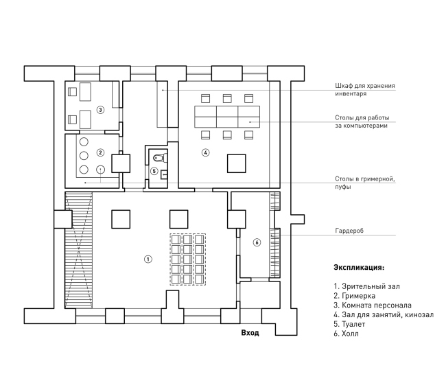
Библиотеке тесно, читальный зал, где должно быть тихо, совмещен с залом для занятий, по определению шумным, в одном пространстве. Татьяна Скирбо предлагает потеснить администрацию, которая сейчас заняла более половины помещений, устроить за счет ее площадей отдельный класс для занятий и расширить читальный зал. Тихий приватный уголок для чтения предусмотрен даже на лестнице, а на кровле входа Татьяна предложила разместить террасу с выходом на нее из читального зала, который остается многофункциональным, то есть в нем тоже можно проводить лекции и кинопоказы, сдвигая вместе мобильные части амфитеатра.
Библиотека №106. Цокольный этаж © Татьяна Скибо
Библиотека №106. Цокольный этаж © Татьяна Скибо
Библиотека №106. Цокольный этаж © Татьяна Скибо
Библиотека №106. Цокольный этаж © Татьяна Скибо
Библиотека №106. Цокольный этаж © Татьяна Скибо
Библиотека №106. Цокольный этаж © Татьяна Скибо
Библиотека №106 © Татьяна Скибо
Библиотека №106 © Татьяна Скибо

С противоположной стороны разместились кафе и его терраса, куда в случае праздников можно выносить стеллажи с книгами. Хранение книг оптимизировано: обычные стеллажи автор предлагает заменить автоматическими, потеснив таким образом не только администрацию, но и сами книги.

Помимо кафе функции дополнены копи-центром и йогой.
Библиотека №106 © Татьяна Скибо
Библиотека №106 © Татьяна Скибо
Библиотека №106 © Татьяна Скибо
Библиотека №106 © Татьяна Скибо
***

Организаторы:
Точка Роста архитектурные практики;
ГКУК г. Москвы «Дирекция культурных центров».

При поддержке:
Творческое объединение Дмитровка;
Архитектурное бюро Асадова;
Высшая школа урбанистки им. Высоковского НИУ ВШЭ.

Кураторы: Никита Асадов, Иван Матвеев, Елена Овденко.
Страница семинара: vk.com/biblioteki_7