Размещено на портале Архи.ру (www.archi.ru)

25.06.2018

Гнездо

Лара Копылова
Объект:
Офис компании ATRIUM
Адрес:
Россия, Москва. Столярный пер., 3, стр.13
Архитектор:
Вера Бутко
Антон Надточий
Мастерская:
ATRIUM
Авторский коллектив:
Антон Надточий, Вера Бутко, Татьяна Матвиенко, Евгений Кутай, Сергей Надточий, Юлия Раннева

Новый офис бюро ATRIUM отражает авторскую концепцию Антона Надточего и Веры Бутко. В центре двухъярусного пространства подвешен арт-объект: одновременно и переговорная, и ядро композиции, и презентация метода.

Офис компании ATRIUM
Офис компании ATRIUM
Фотография © Сергей Надточий / ATRIUM

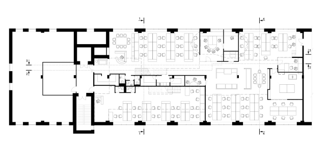
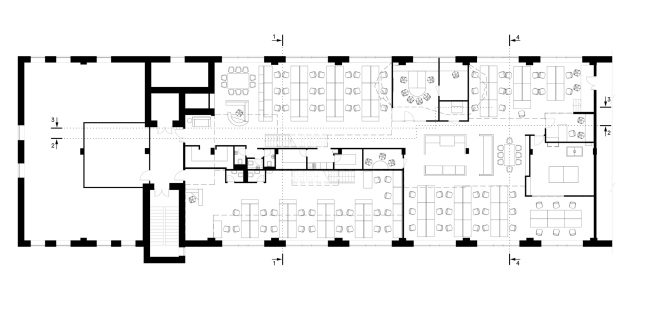
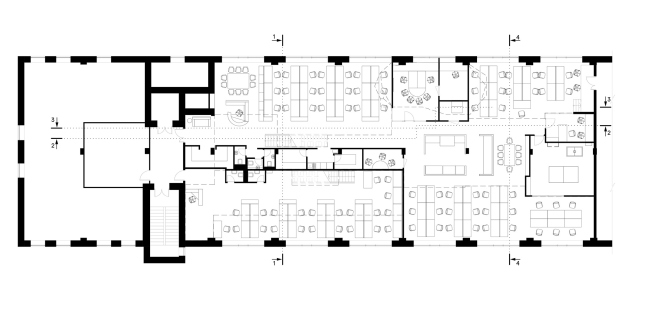
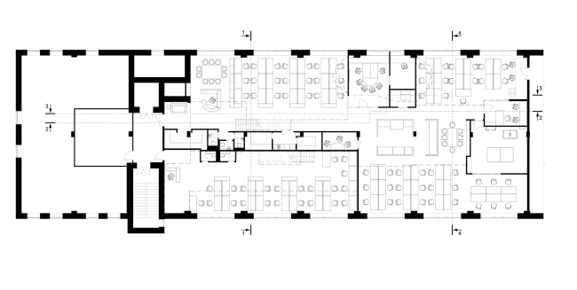
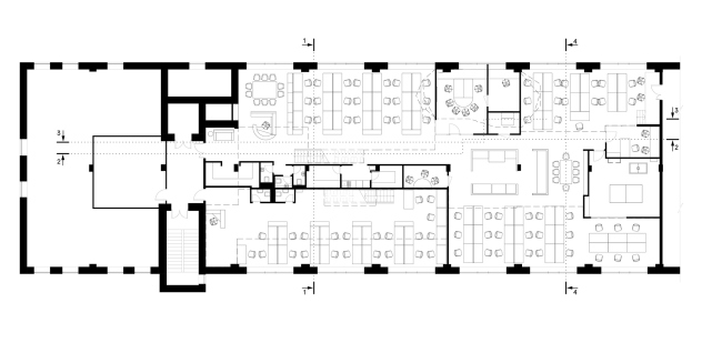
Новый офис мастерской находится на территории завода «Рассвет» (ранее фабрика «Мюр и Мерилиз»), на Красной Пресне, которую сейчас активно реновируют и развивают по концепции друзей и коллег ATRIUM – архитектурной группы ДНК ag. ATRIUM арендовал здесь большое двухсветное пространство в одном из старых производственных цехов 70-х годов с шестиметровыми потолками и огромными окнами. Помещение полностью реконструировали: вычистили, поменяли полы и витражи, встроили новые перекрытия и организовали антресольный этаж, всё полностью перепланировали. Излишки площади приспособили для сдачи в субаренду.
Офис компании ATRIUM: в процессе строительства
Офис компании ATRIUM: в процессе строительства
© Сергей Надточий / ATRIUM

Авторы стремились создать максимально открытый интерьер, наполненный светом и воздухом. Встроенная антресоль позволяет воспринимать пространство сверху и создает дополнительные визуальные ракурсы. В ее черный каркас, как в раму, встроены геометрические объемы помещений, артикулированные цветом и материалами (цементные декоративные панели, сотовый поликарбонат).
Офис компании ATRIUM. Фотография © Илья Егоркин / ATRIUM
Офис компании ATRIUM. Фотография © Илья Егоркин / ATRIUM

Исходная оболочка оставлена без отделки: потолки обеспылены, а стены покрашены, сохраняя следы истории места. Артефакты советского времени, обнаруженные во время ремонта, тоже сохранили – теперь они экспонируются во входном холле. И это лишь один из приемов, через которые архитекторы развивают лофт-эстетику – как наиболее подходящую для креативных пространств и позволяющую оптимизировать бюджет. Наиболее ярким акцентом становятся наливные полы фирменного красного цвета ATRIUM – осознанный отсыл авторов к эстетике русского авангарда. 

Однако композиционная и смысловая доминанта интерьера – объём главной переговорки. Зависшая под потолком скульптурная форма, построенная по принципу минимальных поверхностей, стала визитной карточкой всего проекта и олицетворяет новейшие тенденции в современной архитектуре. В основе формообразования этого объёма лежат артикулированные окна, которые создают неожиданные визуальные связи не только с внутренним пространством офиса, но и с улицей. Форма оптимально адаптируется под окружающую ситуацию и функционал и неожиданно меняет свои очертания при восприятии с разных точек.

Офис компании ATRIUM. Фотография © Сергей Надточий / ATRIUM
Офис компании ATRIUM. Фотография © Сергей Надточий / ATRIUM
Офис компании ATRIUM. Фотография © Илья Егоркин / ATRIUM
Офис компании ATRIUM. Фотография © Илья Егоркин / ATRIUM
Офис компании ATRIUM. Фотография © Илья Егоркин / ATRIUM
Офис компании ATRIUM. Фотография © Илья Егоркин / ATRIUM

Антон Надточий: «Мы взяли исходный параллелепипед и трансформировали его в зависимости от функции и существующей ситуации. Переговорка должна была быть и изолированной, и иметь определённую степень прозрачности и открытости. Мы решили сделать несколько проемов-плоскостей: один обеспечивает визуальную связь с входной зоной, второй, в уровне пола, смотрит на территорию, а стеклянная перегородка с входной дверью как бы встречает тебя при движении по коридору и приглашает войти. В этих местах форма вытягивается и трансформируется, а реагируя на телеэкран внутри помещения – как бы продавливается в другую сторону. В результате получается новая скульптурная форма, функциональная по своей природе и идеально вписанная в контекст».
Офис компании ATRIUM. Переговорная
Офис компании ATRIUM. Переговорная
© ATRIUM
Офис компании ATRIUM. Переговорная © ATRIUM
Офис компании ATRIUM. Переговорная © ATRIUM
Офис компании ATRIUM. Переговорная © ATRIUM
Офис компании ATRIUM. Переговорная © ATRIUM
Офис компании ATRIUM. Переговорная
Офис компании ATRIUM. Переговорная
© ATRIUM

Так же, как весь интерьер строится по принципу «минимально-оптимального вмешательства» – для экономии сил и средств, – так и объем переговорной, несмотря на свою геометрическую сложность, конструктивно и в исполнении очень прост: внешние стены – это металлический каркас, обшитый с двух сторон ГКЛ со звукоизоляционным заполнением и обтянутый ПВХ-тканью. В результате получившаяся форма напоминает осиное гнездо, прилепившееся к внешней стене, между перекрытием и потолком. Так и представляешь, как туда, жужжа, слетаются сотрудники. Сходство, разумеется, образное. Пропущенный сквозь футуристический фильтр, объём имеет оптимальные грани и поверхности, и строили его существа, определенно знакомые с геометрией плоскости и эстетикой супрематизма.

Кроме того, белые плоскости, подставленные под косой свет из окна, не могут не напомнить каждому выпускнику МАРХИ граненую голову, которую все рисовали. И демонстрация метода ATRIUM именно в этой «многоликости» объекта, когда с разных точек зрения он воспринимается по-разному, раскрываясь в новом ракурсе при каждом шаге; нарушая модернистский принцип соответствия формы и содержания, внешняя и внутренняя оболочки создаются формально независимо друг от друга.
Офис компании ATRIUM. Фотография © Сергей Надточий / ATRIUM
Офис компании ATRIUM. Фотография © Сергей Надточий / ATRIUM
Офис компании ATRIUM. Фотография © Илья Егоркин / ATRIUM
Офис компании ATRIUM. Фотография © Илья Егоркин / ATRIUM
Офис компании ATRIUM. Фотография © Сергей Надточий / ATRIUM
Офис компании ATRIUM. Фотография © Сергей Надточий / ATRIUM
Офис компании ATRIUM. Фотография © Илья Егоркин / ATRIUM
Офис компании ATRIUM. Фотография © Илья Егоркин / ATRIUM
Офис компании ATRIUM. Фотография © Илья Егоркин / ATRIUM
Офис компании ATRIUM. Фотография © Илья Егоркин / ATRIUM

Архитекторы проектировали форму этого сложного «гибкого кристалла» в программе Grasshoper, которая позволяет работать со сложной геометрией и просчитывать поверхности двоякой кривизны. С её помощью был сделан раскрой ПВХ-ткани и определена геометрия несущего каркаса.
Офис компании ATRIUM. Фотография © Илья Егоркин / ATRIUM
Офис компании ATRIUM. Фотография © Илья Егоркин / ATRIUM
Офис компании ATRIUM. Фотография © Илья Егоркин / ATRIUM
Офис компании ATRIUM. Фотография © Илья Егоркин / ATRIUM
Офис компании ATRIUM. Фотография © Сергей Надточий / ATRIUM
Офис компании ATRIUM. Фотография © Сергей Надточий / ATRIUM

Большая переговорная – не только внешне концептуальный объект, она и по смыслу – консолидирующее пространство. По пятницам там собирается коллектив для лекций и общения. Интересно, что согласно формальной логике построения офисных пространств там мог бы располагаться кабинет руководителя – сверху видно всё, и место центральное. Но руководителей двое, и они демократично разместили свой кабинет на первом этаже, ближе ко входу и остальным сотрудникам.

Многочисленные зоны для работы и общения, зона для спецпроектов, просторная кухня, библиотека, спортзал с теннисным столом – все это рассчитано на то, что команда бюро проводит в офисе много времени, особенно в период сдачи объекта. В этом интерьере архитекторы полностью реализовали свое представление об идеальном рабочем пространстве – месте, где рождаются и вынашиваются идеи.
Офис компании ATRIUM. Фотография © Илья Егоркин / ATRIUM
Офис компании ATRIUM. Фотография © Илья Егоркин / ATRIUM
Офис компании ATRIUM. Фотография © Сергей Надточий / ATRIUM
Офис компании ATRIUM. Фотография © Сергей Надточий / ATRIUM
Офис компании ATRIUM. Фотография © Сергей Надточий / ATRIUM
Офис компании ATRIUM. Фотография © Сергей Надточий / ATRIUM
Офис компании ATRIUM. Фотография © Сергей Надточий / ATRIUM
Офис компании ATRIUM. Фотография © Сергей Надточий / ATRIUM
Офис компании ATRIUM. Фотография © Сергей Надточий / ATRIUM
Офис компании ATRIUM. Фотография © Сергей Надточий / ATRIUM
Офис компании ATRIUM. Фотография © Сергей Надточий / ATRIUM
Офис компании ATRIUM. Фотография © Сергей Надточий / ATRIUM
Офис компании ATRIUM. Фотография
Офис компании ATRIUM. Фотография
© Сергей Надточий / ATRIUM
Офис компании ATRIUM. Фотография
Офис компании ATRIUM. Фотография
Фотография © Сергей Надточий / ATRIUM
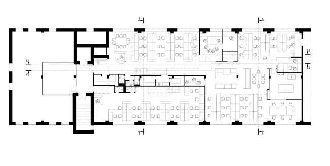
Офис компании ATRIUM
Офис компании ATRIUM
© ATRIUM
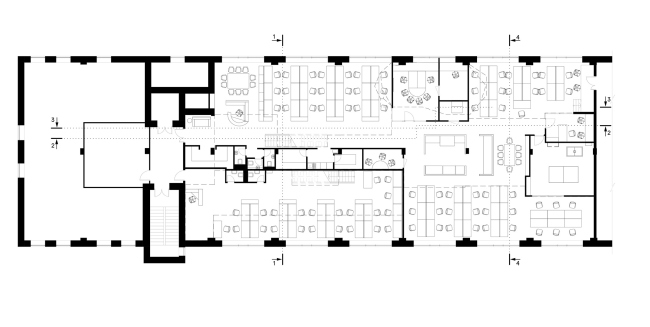
Офис компании ATRIUM
Офис компании ATRIUM
© ATRIUM
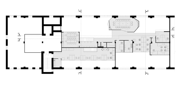
Офис компании ATRIUM
Офис компании ATRIUM
© ATRIUM
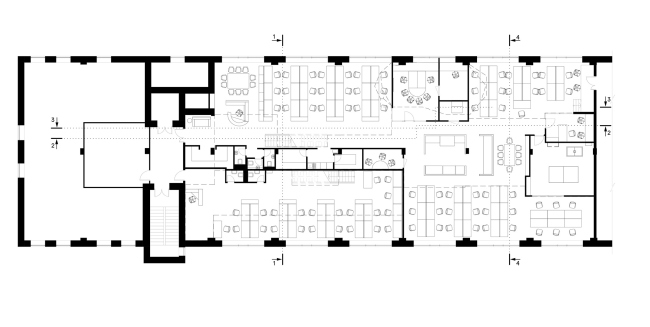
Офис компании ATRIUM
Офис компании ATRIUM
© ATRIUM
Офис компании ATRIUM
Офис компании ATRIUM
© ATRIUM
Офис компании ATRIUM
Офис компании ATRIUM
© ATRIUM
Офис компании ATRIUM. Переговорная
Офис компании ATRIUM. Переговорная
© ATRIUM