Размещено на портале Архи.ру (www.archi.ru)

15.05.2018

На северной заставе

Дарья Горелова
Объект:
Дом для двух художников
Адрес:
Россия, Ленинградская обл., , посёлок Рощино
Мастерская:
ХВОЯ

Дом от бюро «Хвоя»: скаты кровель для уловления солнца, финский лаконизм и данная намеком образность лесной заставы, уже горевшей, опытной. Для сурового елового леса к северу от Финского залива – подходящая идея.

Дом для двух художников. Фотография © Дмитрий Цыренщиков
Дом для двух художников. Фотография © Дмитрий Цыренщиков
АБ ХВОЯ

Деревянный «Дом для двух художников» расположился на заросшем лесом краю СНТ ЛОМО-1 к западу от поселка Рощино, к северу от Финского залива. Лес – разновозрастный, сыроватый, еловый.
Дом для двух художников. Фотография © Дмитрий Цыренщиков
Дом для двух художников. Фотография © Дмитрий Цыренщиков
АБ ХВОЯ
Дом для двух художников. Фотография © Дмитрий Цыренщиков
Дом для двух художников. Фотография © Дмитрий Цыренщиков
АБ ХВОЯ
Дом для двух художников. Фотография © Дмитрий Цыренщиков
Дом для двух художников. Фотография © Дмитрий Цыренщиков
АБ ХВОЯ

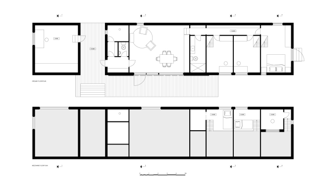
Архитекторам удалось разместить дом так, чтобы не рубить деревья, отчего он превратился в узкий и длинный, хотя и довольно крупный – 159 м2 – «пенал» длиной 30 м и шириной 5,5. Сквозная дыра-прострел крыльца, с лестницей с одной стороны и пандусом с другой, своего рода ворота в лес с шутливой решеткой статичной деревянной «герсы» над проемом, делит дом на мастерскую – почти квадратное высокое пространство в левой, занимающей примерно четверть всей длины в западной части – и жилые три четверти. Здесь расположены гостиная, комнаты двух детей спальня родителей, куда ведет еще одна небольшая лестница, с торца дома, видимо для того чтобы пробраться тайком от детей с лесной прогулки.
Дом для двух художников. Фотография © Дмитрий Цыренщиков
Дом для двух художников. Фотография © Дмитрий Цыренщиков
АБ ХВОЯ
Дом для двух художников. Фотография © Дмитрий Цыренщиков
Дом для двух художников. Фотография © Дмитрий Цыренщиков
АБ ХВОЯ
Дом для двух художников.Фотография © Дмитрий Цыренщиков
Дом для двух художников.Фотография © Дмитрий Цыренщиков
АБ ХВОЯ
Дом для двух художников. Фотография © Дмитрий Цыренщиков
Дом для двух художников. Фотография © Дмитрий Цыренщиков
АБ ХВОЯ
Дом для двух художников. Фотография © Дмитрий Цыренщиков
Дом для двух художников. Фотография © Дмитрий Цыренщиков
АБ ХВОЯ
Дом для двух художников. Фотография © Дмитрий Цыренщиков
Дом для двух художников. Фотография © Дмитрий Цыренщиков
АБ ХВОЯ
Дом для двух художников. Фотография © Дмитрий Цыренщиков
Дом для двух художников. Фотография © Дмитрий Цыренщиков
АБ ХВОЯ

Брусок дома стоит на склоне, а кровля горизонтальная, поэтому мастерская – самое высокое помещение, а дальше к востоку потоки комнат становятся ниже. Впрочем в детских хватает место для антресолей с кроватями, хорошо освещенных благодаря южному скосу кровли. Над родительской спальней вырастает башенка-полуэтаж, как бы смотровая, перекликающаяся с «герсой» ворот. Что вкупе с обожженным деревом фасадов наделяет дом образностью северной заставы: башня, ворота, горелое дерево, где-то рядом за стеной белые ходоки... Все это провоцирует фантазировать – лес, север; русские заставы, да и финские, были деревянными. Кто-то тут обороняется при случае, не пускает врага перейти границу, обозревает окрестности в поисках опасности... Если идти дальше, включается ирония: известная банальность про дом-крепость, «замки» новых русских вокруг каждого большого города; здесь та же тема трактована иначе, в благородном «северном» ключе. Впрочем ассоциации даны не в лоб, считываются не сразу и быстро развеиваются: лес много выше смотровой башенки, а окна большие, светятся живо и уютно. Больше похоже на романтическое воспоминание о фрагменте укрепления, обжитого под дачу.

Дом участвует в премии АрхиWOOD, победителей которой объявят на Арх Москве.
Дом для двух художников. Фотография © Дмитрий Цыренщиков
Дом для двух художников. Фотография © Дмитрий Цыренщиков
АБ ХВОЯ
Дом для двух художников. Фотография © Дмитрий Цыренщиков
Дом для двух художников. Фотография © Дмитрий Цыренщиков
АБ ХВОЯ
Дом для двух художников. Фотография © Дмитрий Цыренщиков
Дом для двух художников. Фотография © Дмитрий Цыренщиков
АБ ХВОЯ
Дом для двух художников. Фотография © Дмитрий Цыренщиков
Дом для двух художников. Фотография © Дмитрий Цыренщиков
АБ ХВОЯ
Дом для двух художников. Фотография © Дмитрий Цыренщиков
Дом для двух художников. Фотография © Дмитрий Цыренщиков
АБ ХВОЯ
Дом для двух художников. Фотография © Дмитрий Цыренщиков
Дом для двух художников. Фотография © Дмитрий Цыренщиков
АБ ХВОЯ
Дом для двух художников. Фотография © Дмитрий Цыренщиков
Дом для двух художников. Фотография © Дмитрий Цыренщиков
АБ ХВОЯ