Размещено на портале Архи.ру (www.archi.ru)

18.04.2018

Сладкая жизнь

Лара Копылова
Объект:
Поселок «Рафинад»
Адрес:
Россия, Московская область,
Мастерская:
PANACOM
РЕХАУ
Авторский коллектив:
А. Леонович, К. Маркус, М. Саксон, А. Белинская, Ю. Фролов

В проекте поселка «Рафинад» под Москвой, в городском округе Химки, архитекторы PANACOM предложили разнообразное, гуманное и комфортное жилье.

Поселок «Рафинад», проект
Поселок «Рафинад», проект
© PANACOM

«Из маленькой овчинки семь шапок»
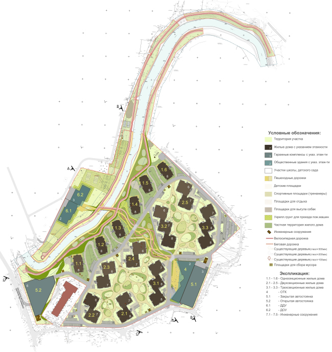
В 12 га требовалось упаковать максимальное количество квартир и машиномест или, как говорит основатель и главный архитектор PANACOM Арсений Леонович, из маленькой овчинки сшить семь шапок. И архитекторы ухитрились это сделать, предложив разнообразные фасады и планировки квартир, спроектировав инфраструктурные объекты, мост через реку и общественный центр, гуманное благоустройство с арт-объектами и спортивным променадом. В общем, проект получился изящный, по стилю – элегантный ретро-модернизм дострелкинской эпохи. Здесь нет системы кварталов и улиц, а дома стоят по курортному принципу среди леса и полянок и настраивают на отдых.

Вечерний кефир
Свистуха – место примечательное. Здесь сохранились заросшие руины сталинского санатория, как из фильма «Волга-Волга» – так и видишь, как люди в белых костюмах, штанах-пароходах сидят на верандах и пьют свой вечерний кефир.

Деревья в проекте постарались сохранить, хотя и без особой надежды на то, что все их удастся спасти в процессе реализации. Недалеко от «Рафинада» расположена деревня Трахонеево. Когда-то она принадлежала сыну грека Траханиота, приехавшего в Россию в 1472 году с невестой Ивана III Софьей Палеолог.
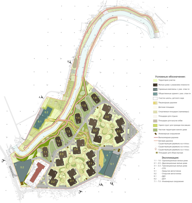
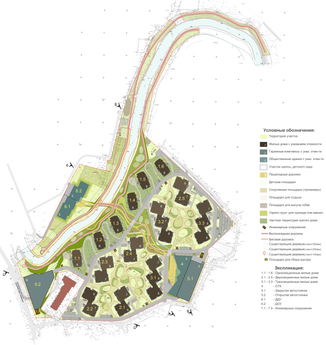
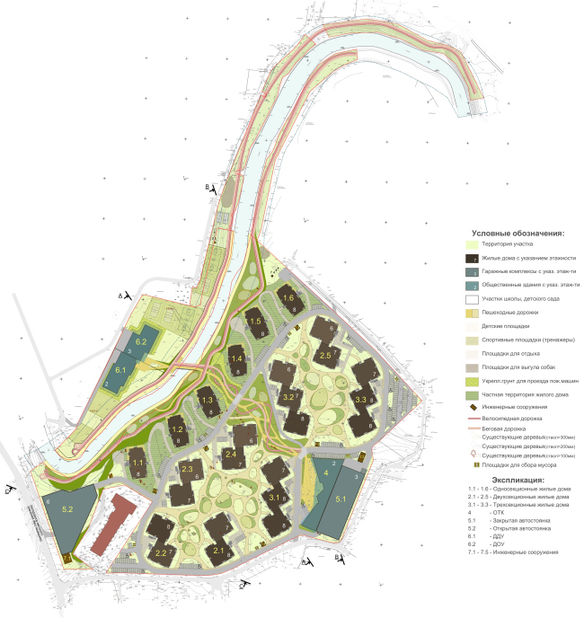
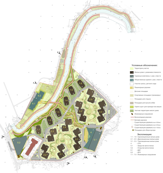
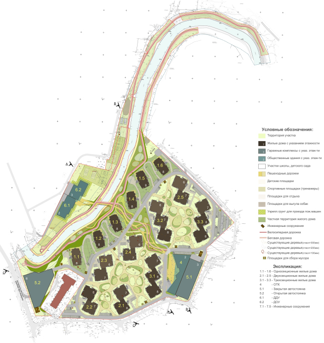
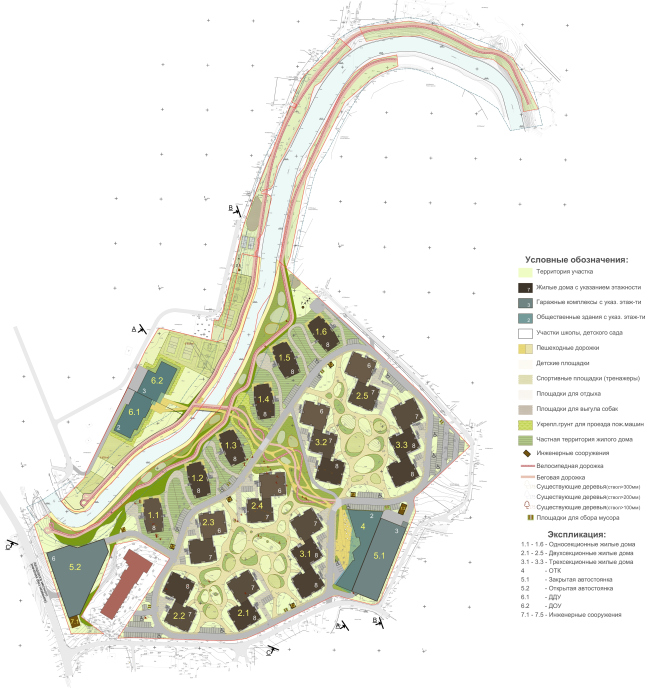
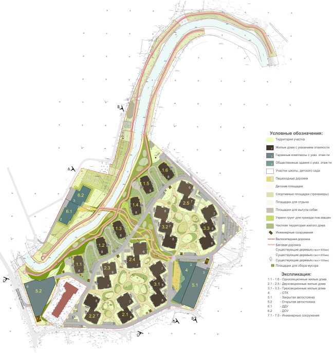
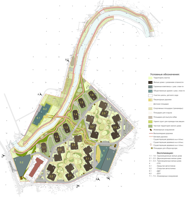
Поселок «Рафинад», проект. Генплан
Поселок «Рафинад», проект. Генплан
© PANACOM
Поселок «Рафинад», проект
Поселок «Рафинад», проект
© PANACOM
Поселок «Рафинад», проект
Поселок «Рафинад», проект
© PANACOM
Поселок «Рафинад», проект
Поселок «Рафинад», проект
© PANACOM
Поселок «Рафинад», проект, 2017
Поселок «Рафинад», проект, 2017
© PANACOM

Фирменные рыбки – оммаж башне Джо Понти
Шесть домов в форме рыбок выстроились вдоль реки, чуть дальше – пять сдвоенных башен и четыре блока по три башни. Все это невысокое, в гуманном масштабе в 7-8 этажей. Квартиры с террасами, а в домах-рыбках – пентхаусы с зелеными крышами. Эти атрибуты роскоши здесь удалось запланировать по демократичной цене – предполагаемая себестоимость квадратного метра около 65 000 рублей. Впрочем проект пока не реализован, заказчик «держит паузу». Отдельно стоящие дома-рыбки – фирменный знак PANACOM, переходящий из проекта в проект. Форма отчасти навеяна скошенными углами стеклянной башни Джо Понти около вокзала Чентрале в Милане. Но на самом деле все глубже. Это любимая оптимальная планировка архитекторов PANACOM: центральное лестничное ядро и квартиры вокруг. Планировка придумана несколько лет назад и реализована в разных вариантах с разным количеством квартир. «Планировка с одной лестницей и коротким коридором крайне выгодна для инвестиций», – говорит Арсений Леонович.
Поселок «Рафинад», проект
Поселок «Рафинад», проект
© PANACOM
Поселок «Рафинад», проект, 2017
Поселок «Рафинад», проект, 2017
© PANACOM
Поселок «Рафинад», проект. Разрез
Поселок «Рафинад», проект. Разрез
© PANACOM

Кусочки сахара на зеленом поле
Заказчик долго думал, как назвать проект. «Сначала пытались зацепиться за форму участка, найти природные ассоциации, – рассказывает Арсений Леонович. – Мы же порекомендовали обратить внимание на архитектуру домов: наши белые кубические домики похожи на кусочки сахара. Так и появилось название «Рафинад». Название удачно ухватывает образ: белые кубики на зеленых полянках.Когда видишь строгий рисунок фасадов с преобладанием горизонталей, авангардные стеклянные углы, легкий заглубленный нижний ярус, благодаря чему дома как бы висят в воздухе, вспоминается ранний романтический модернизм.
Поселок «Рафинад», проект
Поселок «Рафинад», проект
© PANACOM
Поселок «Рафинад», проект
Поселок «Рафинад», проект
© PANACOM
Поселок «Рафинад», проект
Поселок «Рафинад», проект
© PANACOM
Поселок «Рафинад», проект
Поселок «Рафинад», проект
© PANACOM
Поселок «Рафинад», проект
Поселок «Рафинад», проект
© PANACOM

Благоустройство с артом
Группы домов организованы вокруг собственных рекреационных зон: пять сблокированных домов вокруг одной, три сблокированных – вокруг другой, а у каждого дома есть своя территория. Парковки были вынесены на края поселка, чтобы освободить дворы-поляны от машин. Благоустройство основано на округлых линиях, что подчеркивает эффект курорта: среди деревьев и трав проложены пешеходные пути с деревянным настилом и велодорожки. Пешеходный мостик, перекинутый по проекту через речку, ведет в школу со спортивной площадкой. Индивидуальность пространств подчеркнута арт-объектами в каждой рекреационной зоне. Набережная реки оборудована модными стеклянными перилами, вдоль нее устроен спортивный променад.

Французские окна и травяные крыши
Авторы сделали все возможное, чтобы разнообразить и гуманизировать среду, фасады и планировки. Были придуманы варианты облицовки: от штукатурки по утеплителю до отечественного кирпича и панелей, имитирующих дерево. Дома-рыбки – более дорогие, ориентированы на реку. В однокомнатных квартирах есть лоджии, а двух- и трехкомнатных – террасы с видами, причем и те, и другие – со стеклянными ограждениями. Террасы – роскошь в российских условиях, появление их в жилье комфорт-класса – отличная тенденция, которую хочется продолжать.

В результате получился интеллигентный проект жилья в духе Северной Европы с нормальными человеческими пространствами, комфортной плотностью, небольшой ценой, достигнутой за счет больших интеллектуальных и творческих усилий.