Размещено на портале Архи.ру (www.archi.ru)

25.04.2018

Музейное пространство

Алла Павликова

Проекты студентов 4 курса МАРХИ группы Андрея Некрасова на тему «Музей».

Музейный квартал в районе Трубной площади. Общий вид
Музейный квартал в районе Трубной площади. Общий вид

Музеи посвящены писателям, художникам, композиторам, инженеру Шухову и Дворцу Советов. В качестве площадок для проектирования студенты могли выбрать любой из центральных районов Москвы. Но одну из площадок – в районе Трубной площади – предложили преподаватели и руководители проекта Андрей Некрасов, Александр Цыбайкин и Кирилл Архипов. На первом этапе проектирования студентам предложили выбрать несколько характерных существующих исторических московских домов и условно перенести их на пустующую внутреннюю площадь квартала на Трубной. На ней гипотетически разместили сразу семь музеев, сформировав «музейный квартал», подобный венскому. Здания, образующие квартал, как бы восстанавливают градостроительные решения старой Москвы.
Музейный квартал. Макет
Музейный квартал. Макет
Музейный квартал. Макет
Музейный квартал. Макет
Музейный квартал. Макет
Музейный квартал. Макет


Андрей Некрасов
, руководитель проекта:

«В квартале, который мы рассматривал в рамках учебного задания, сейчас расположены спортивный клуб и несколько зданий, построенных в начале девяностых. Мы предположили, что музеи могли бы разместиться внутри старых московских домов XIX – начала ХХ века, и попытались разместить на небольшой площади семь разных музеев, сохранив периметральную застройку. Помимо музейных пространств, здания вместили бы мастерские и жилые помещения для художников, а на первых этажах – кафе, рестораны и тематические магазины. Таким образом, мы получили бы что-то похожее на парижский Монмартр, только в Москве".
Музейный квартал. Макет
Музейный квартал. Макет
*** 

Музей Чехова
Юлия Морина
Юлия Морина, музей Чехова
Юлия Морина, музей Чехова

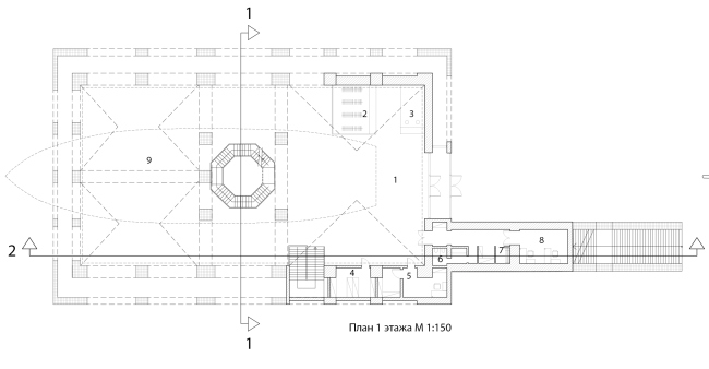
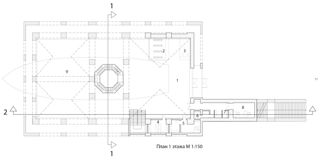
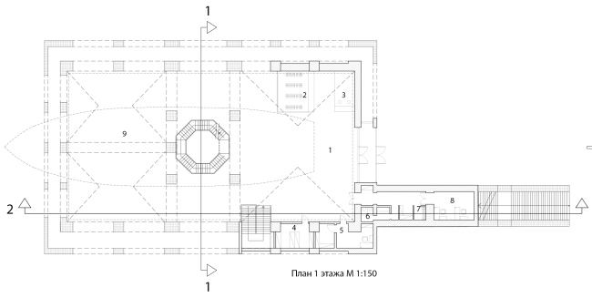
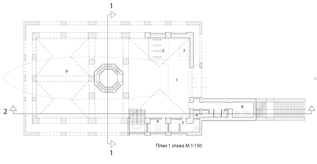
Музей, посвященный жизни и творчеству Антона Павловича Чехова, авторы предложили расположить в существующем монументальном доме периода сталинского классицизма, вырезав в нем развернутый по диагонали двор – открытый зрительный зал, где в торце сцены – фасад чеховского особняка. Двухэтажное здание музея становится частью музейного квартала и сохраняет градостроительную канву исторической застройки Москвы. Простой объем с курдонером и мезонином отсылает к чеховскому образу старого дачного дома. В сторону просторного внутреннего двора выходит главный фасад дома. О современном характере постройки говорит слегка деформированная конфигурация двора, ориентированного на озеро, которое предложено разбить перед музеем в память о некогда существовавших здесь прудах. Помимо выставочных галерей в виде лабиринта книжных полок, в здании предлагается разместить литературное кафе и трехуровневое сценическое пространство. В теплое время года сцена с вечерними литературными чтениями и концертами выходит в курдонер.
Юлия Морина, музей Чехова
Юлия Морина, музей Чехова
Юлия Морина, музей Чехова
Юлия Морина, музей Чехова
***

Музей Ахматовой и Гумилева
Екатерина Востокова 
Екатерина Востокова, музей Ахматовой и Гумилева
Екатерина Востокова, музей Ахматовой и Гумилева

Автор проекта предлагает посвятить музей не столько творческой биографии поэтов, сколько их жизням, тесно переплетенным между собой и весьма драматичным. Жизненный путь Ахматовой и Гумилева изображается как диалог пространств, где путь Ахматовой представлен в виде длинного, разнообразного и извилистого пандуса-лабиринта, а путь Гумилева – в виде прямого, ясного и совсем короткого маршрута. Сложное переплетение объемов и плоскостей двух траекторий жизни пронизывает простое и лаконичное здание, спрятанное внутри нового музейного пространства, выходит за его пределы и возвращается обратно, отправляясь блуждать по внутренним пространствам музея.
Екатерина Востокова, музей Ахматовой и Гумилева
Екатерина Востокова, музей Ахматовой и Гумилева
Екатерина Востокова, музей Ахматовой и Гумилева
Екатерина Востокова, музей Ахматовой и Гумилева
Екатерина Востокова, музей Ахматовой и Гумилева
Екатерина Востокова, музей Ахматовой и Гумилева
***

Музей Рахманинова
Наталья Гущина 
Наталья Гущина, музей Рахманинова
Наталья Гущина, музей Рахманинова

Музей, посвященный жизни и творчеству композитора Сергея Рахманинова, решен в виде большой прозрачной звезда, пронзающей историческое здание.
Наталья Гущина, музей Рахманинова
Наталья Гущина, музей Рахманинова

Звезда – это прямая ассоциация с личностью композитора, ставшего одной из центральных фигур в культурной и музыкальной жизни мира. Внутри звезды расположен небольшой концертный зал, на сцене пианист исполняет шедевры Рахманинова. Зрители занимают места в амфитеатре, устроенном в расходящихся лучах звезды, которые прорезают каждый этаж здания и вырываются за его пределы. Все лучи подсвечены изнутри, тогда как интерьеры решены в сдержанных, приглушенных тонах. На первом этаже музея располагаются кафе, ресторан и небольшой магазин.
Наталья Гущина, музей Рахманинова
Наталья Гущина, музей Рахманинова
Наталья Гущина, музей Рахманинова
Наталья Гущина, музей Рахманинова
***

Музей Врубеля
Валерия Шевцова
Валерия Шевцова, Музей Врубеля
Валерия Шевцова, Музей Врубеля

Фасады крупного пятиэтажного объема превращены в огромное скульптурное панно по мотивам «Демона». Музей расположен внутри квартала и довольно близко подходит к соседнему зданию музея Васнецова. В связи с этим между двумя музеями решено сформировать общий «двор художников», который служит неким центром данной части квартала. Вокруг двора – апартаменты для художников, галереи, скульптурные мастерские. На первых этажах кафе, магазины и книжная лавка.
Валерия Шевцова, Музей Врубеля
Валерия Шевцова, Музей Врубеля
Валерия Шевцова, Музей Врубеля
Валерия Шевцова, Музей Врубеля

Внутри музей устроен таким образом, чтобы посетители следовали по определенному маршруту осмотра с прозрачными галереями, подвешенными в многосветном пространстве музея. Прозрачность дает возможность издали видеть картины большого размера. Один из периодов творчества Врубеля связан с росписью церквей. Этому посвящено одно из пространств музея, решенное в виде своеобразного купольного зала с росписями художника.
Валерия Шевцова, Музей Врубеля
Валерия Шевцова, Музей Врубеля
Валерия Шевцова, Музей Врубеля
Валерия Шевцова, Музей Врубеля
Валерия Шевцова, Музей Врубеля
Валерия Шевцова, Музей Врубеля
***

Музей Васнецова
Ангелина Васнецова 
Ангелина Васнецова, музей Васнецова
Ангелина Васнецова, музей Васнецова

Существующее здание, в котором предлагается устроить музей Васнецова, «окружает» существующий храм прп. Сергия Радонежского в Крапивенском переулке. Снаружи здание практически не меняется. Зато внутри новое музейное пространство создает ощущение пребывания внутри одной из картин знаменитого художника. Эффект достигается благодаря огромным репродукциям картин и художественным инсталляциям, позволяющим погрузиться в творчество художника и лучше понять его настроение. В основе идеи – проект собственного сказочного дома-мастерской Васнецова.
Ангелина Васнецова, музей Васнецова
Ангелина Васнецова, музей Васнецова
Ангелина Васнецова, музей Васнецова
Ангелина Васнецова, музей Васнецова
Ангелина Васнецова, музей Васнецова
Ангелина Васнецова, музей Васнецова
Ангелина Васнецова, музей Васнецова
Ангелина Васнецова, музей Васнецова
***
 

Музей Маяковского
Елена Королева
Елена Королева, музей Маяковского
Елена Королева, музей Маяковского

Между Неглинной и Петровкой, по замыслу авторов, можно расположить новую доминанту – музей Владимира Маяковского. Конструкция сформирована двумя высокими объемами, разделенными по диагонали стеклянным лучом лестницы, и непредсказуема как сама поэзия Маяковского. В вершине музея объем лестницы вырывается за пределы здания, формируя обзорную площадку, откуда можно рассмотреть весь музейный квартал целиком. Внутри сформированы двухуровневые экспозиционные залы.
Елена Королева, музей Маяковского
Елена Королева, музей Маяковского
Елена Королева, музей Маяковского
Елена Королева, музей Маяковского
***

Музей Булгакова
Мария Корнеева 
Мария Корнеева, музей Булгакова
Мария Корнеева, музей Булгакова

Музей Михаила Булгакова располагается внутри существующего весьма протяженного доходного дома с небольшими квартирами и скучными планировками. Примерно таким и мог быть дом, в котором располагалась знаменитая квартира №50 в романе «Мастер и Маргарита», считают авторы, хотя, впрочем, тот дом на Большой Садовой хорошо известен, в нем и музей, в нем театр.

Согласно замыслу автора проекта, музей на Неглинной занимает некоторую часть дома, которая буквально «взрывается» новым стеклянным объемом. Мощная потусторонняя – то ли дьявольская, то ли божественная сила – разрушает этот обыкновенный дом с налетом советского времени изнутри.
Мария Корнеева, музей Булгакова
Мария Корнеева, музей Булгакова

В сформированном на месте взрыва стеклянном облаке неявно читается образ средневекового замка с длинными узкими окнами и характерным силуэтом. за стеклом виднеется широкая парадная лестница, ведущая на третий этаж, в центр стеклянного объема, где и сосредоточены основные экспозиционные пространства и галереи.
Мария Корнеева, музей Булгакова
Мария Корнеева, музей Булгакова
***
 
 

проекты музеев, не вошедших в «квартал»:

Музей Малевича
Анастасия Талаева

Музей расположен на углу Садовой-Самотечной и Самотеки, на углу рядом с тем местом, где в 2008 году планировался, да скис отель Фрэнка Гери. Музей в виде стеклянной призмы трактован как большая объемная супрематическая картина.
Анастасия Талаева, музей Малевича
Анастасия Талаева, музей Малевича
Анастасия Талаева, музей Малевича
Анастасия Талаева, музей Малевича
Анастасия Талаева, музей Малевича
Анастасия Талаева, музей Малевича
Анастасия Талаева, музей Малевича
Анастасия Талаева, музей Малевича
***
 
Музей Дворца Советов
Надежда Егерева

Музей Дворца Советов расположился на Воздвиженке рядом с ГНИМА, на площадке возле подземного перехода, ведущего к Военторгу. Надо сказать, это один из самых интересных проектов группы. Семиэтажный объем, в плане – четверть круга, на 3 этажа закопан в землю, еще 4 этажа вверху. Получается метров 20, что довольно монументально. Внутри – 15-метровая четвертинка модели несостоявшегося сталинского дворца, вокруг – амфитеатр для ее созерцания, с подобием пантеонообразного купола, образованного балконами для экспозиции и зрителей – копии интерьера главного зала в проекте Иофана. Предполагается, что в амфитеатре можно было бы читать лекции и проводить прочие тусовки.
Надежда Егерева, музей Дворца советов
Надежда Егерева, музей Дворца советов
Надежда Егерева, музей Дворца советов
Надежда Егерева, музей Дворца советов
Надежда Егерева, музей Дворца советов
Надежда Егерева, музей Дворца советов

Музей продолжается двумя корпусами на улице и в глубине двора, они соединены подземными переходами, также используется переход под Воздвиженкой к Военторгу. Кровлю светового фонаря во дворе планируется приспособить под амфитеатр. Масштаб проекта, тема и подача – все тяготеет к «бумажной архитектуре» 1980-х и выглядит воспоминанием о ней.
Надежда Егерева, музей Дворца советов
Надежда Егерева, музей Дворца советов
Надежда Егерева, музей Дворца советов
Надежда Егерева, музей Дворца советов
Надежда Егерева, музей Дворца советов
Надежда Егерева, музей Дворца советов
***

Музей возникновения русского флота
Сергей Левченко
Сергей Левченко, музей возникновения русского флота
Сергей Левченко, музей возникновения русского флота

Автор проекта предлагает восстановить утраченную Сухареву башню, но не в буквальном смысле – метод был обнаружен у итальянских коллег, которые восстанавливают только объем и пропорции здания. Весь объем представляет собой каркас с часто расположенными горизонтальными трубами или стержнями, повторяющими абрис (форму фасадов) исторического здания. Днем такое сооружение почти не видно на фоне яркого неба, но ночью, подсвеченное снизу, оно возникает как здание призрак, из-за чего кажется, что здание, как фантом, парит в воздухе. Внутри башни расположен музей возникновения русского флота. Его центральный экспонат – гигантский макет первого парусника Петра I, сомасштабный зданию.
Сергей Левченко, музей возникновения русского флота
Сергей Левченко, музей возникновения русского флота
Сергей Левченко, музей возникновения русского флота
Сергей Левченко, музей возникновения русского флота
Сергей Левченко, музей возникновения русского флота
Сергей Левченко, музей возникновения русского флота
Сергей Левченко, музей возникновения русского флота
Сергей Левченко, музей возникновения русского флота
***

Музей Шухова
Сергей Киселев 
Сергей Киселев, музей Шухова
Сергей Киселев, музей Шухова

Музей поместился на площади «Известий», рядом с Пушкинской – автор проекта, по-видимому, здраво рассудил, что после сноса всех ненавистных передовым урбанистам ларьков там образовалось многовато пустого и неуютно-холодного места. Музей, чем-то похожий на музей Малевича выше по тексту, представляет собой стеклянную призму-башню, девятиэтажной высоты или выше, с одним ярусом подземного пространства – словом, берет на себя роль нереализованного конкурсного проекта братьев Весниных. Внутри в углу помещен крупный фрагмент сетчатой башни великого инженера с ответвлениями, напоминающими инсталляцию Петра Виноградова в Выксе.
Сергей Киселев, музей Шухова
Сергей Киселев, музей Шухова
Сергей Киселев, музей Шухова
Сергей Киселев, музей Шухова
Сергей Киселев, музей Шухова
Сергей Киселев, музей Шухова
Сергей Киселев, музей Шухова
Сергей Киселев, музей Шухова
***