Размещено на портале Архи.ру (www.archi.ru)

17.01.2018

Взмах крыла расправленный

Лара Копылова
Объект:
Wing House
Адрес:
Россия, Московская область,
Архитектор:
Роман Леонидов
Мастерская:
АБ Романа Леонидова
Авторский коллектив:
Роман Викторович Леонидов

Wing-house Романа Леонидова в Подмосковье представляет собой новый тип русской усадьбы в стиле органической архитектуры. Дом-крыло следует трем правилам: комфорт заказчика, вписанность в природу и пластическое совершенство. Мы встретились с Романом Леонидовым и поговорили о зданиях-манифестах и подсознании архитекторов.

Дом в Подмосковье. Архитектор Роман Леонидов © АБ Романа Леонидова
Дом в Подмосковье. Архитектор Роман Леонидов © АБ Романа Леонидова

Откуда взялось название Wing-house? По словам Романа Леонидова, образ дома возник из характера владельца. Это человек известный в бьюти-индустрии, с вольным полетом фантазии. И потому появился мотив крыла. «Заказчик – харизматичный. Я боялся, что он меня передавит, он – что я его передавлю. Поэтому остались на уровне уважения друг к другу, но душевных отношений не получилось, как с девяноста процентами клиентов».

Кроме того, архитектору хотелось поэкспериментировать с обратным скатом крыши. Снеговая нагрузка сегодня никого не пугает, она рассчитывается на любой тип кровли. А дождь уходит по водостоку. Так появилась «галочка» крыши основного дома. Она повторена в оформлении крыши боковых флангов. Что касается конструкции «главного крыла», то один элемент под крышей бетонный, потому что на него большая нагрузка. Остальные конструкции деревянные. В крышах флигелей видны выгнутые деревянные клееные балки: они-то и обыгрывают мотив крыла.
Дом в Подмосковье. Архитектор Роман Леонидов © АБ Романа Леонидова
Дом в Подмосковье. Архитектор Роман Леонидов © АБ Романа Леонидова
Дом в Подмосковье. Архитектор Роман Леонидов © АБ Романа Леонидова
Дом в Подмосковье. Архитектор Роман Леонидов © АБ Романа Леонидова
Дом в Подмосковье. Архитектор Роман Леонидов © АБ Романа Леонидова
Дом в Подмосковье. Архитектор Роман Леонидов © АБ Романа Леонидова
Дом в Подмосковье. Архитектор Роман Леонидов © АБ Романа Леонидова
Дом в Подмосковье. Архитектор Роман Леонидов © АБ Романа Леонидова


Современная русская усадьба с курдонером
Заказчику нужен был дом достаточно открытый и репрезентативный, и в то же время дающий возможность уединения. Поскольку участок граничит с лесом, с тем, чтобы закрыться от соседей, проблем не было, но была задача создать камерную обстановку во дворе, чтобы человек, находясь там, не ощущал ничьего присутствия. Поэтому композиция дома включает центральную высокую часть (главный дом) и боковые пониженные фланги (флигели), которые образуют парадный двор перед главным фасадом – курдонер. Выходя в него, видишь только лес и участок. Ограда спрятана глубоко в лесу, поэтому нет ощущения ограниченности. Слово курдонер возникло не случайно. В типичной для сегодняшнего дня функциональной программе здания Роман Леонидов видит новый тип русской усадьбы. Сюда входит довольно развитый общественный блок: гостиная, кухня, столовая, спортивно-оздоровительная часть, состоящая из бассейна, бани и спортзала. Из бассейна со сплошным остеклением есть выход на природу: на открытую деревянную террасу с шезлонгами (в тот самый курдонер). Это целый спа-комплекс, как на дорогом курорте. Эта часть нужна была заказчику и для собственного использования, и для репрезентации перед гостями и партнерами по бизнесу.
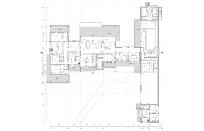
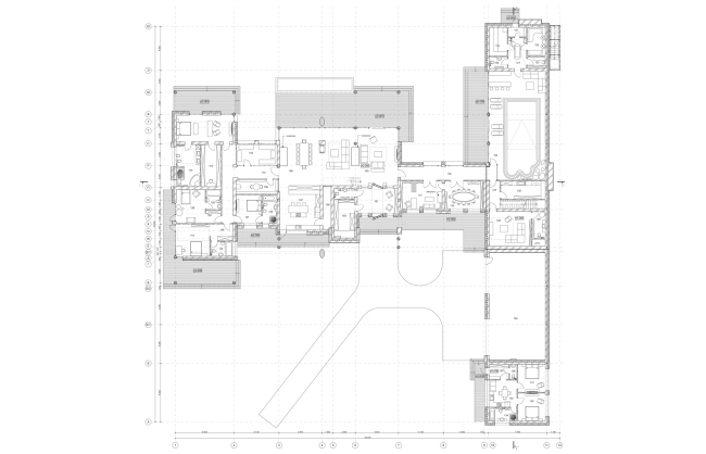
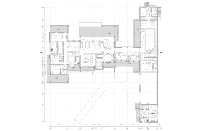
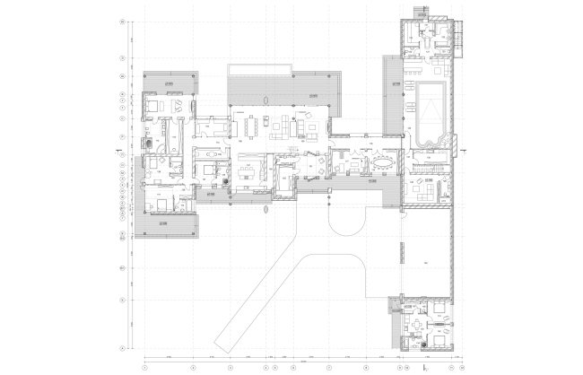
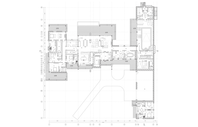
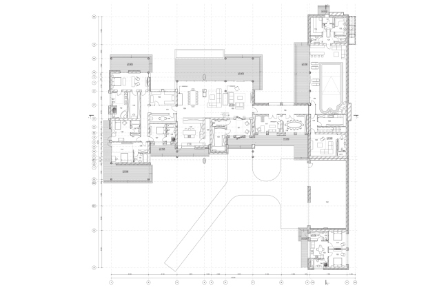
План первого этажа. Дом в Подмосковье. Архитектор Роман Леонидов © АБ Романа Леонидова
План первого этажа. Дом в Подмосковье. Архитектор Роман Леонидов © АБ Романа Леонидова
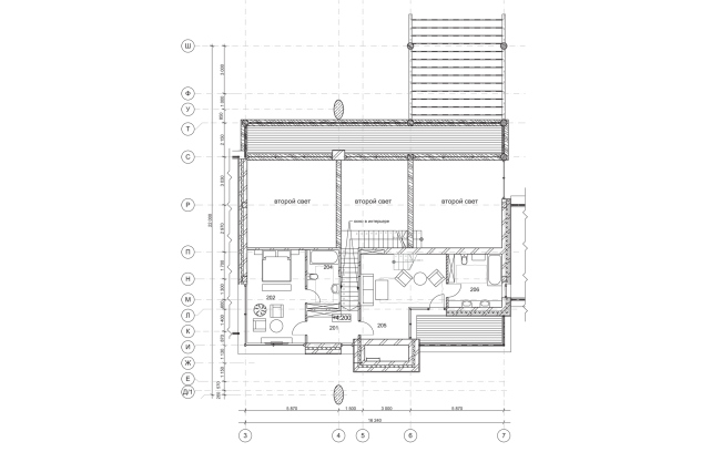
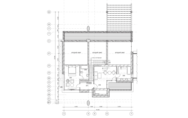
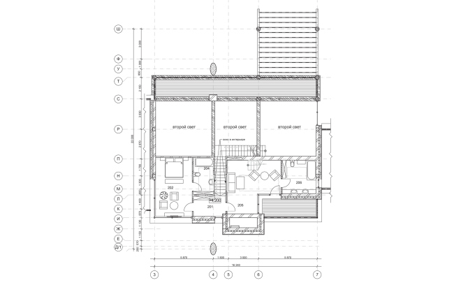
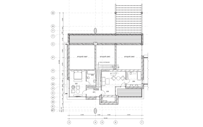
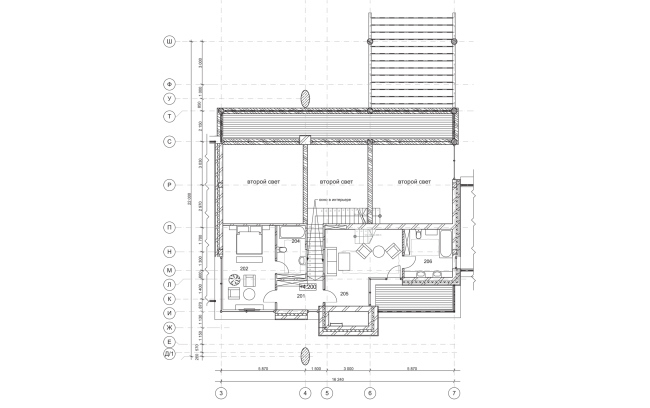
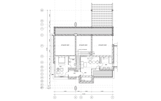
План второго этажа. Дом в Подмосковье. Архитектор Роман Леонидов © АБ Романа Леонидова
План второго этажа. Дом в Подмосковье. Архитектор Роман Леонидов © АБ Романа Леонидова

Как положено в усадьбе, здесь построены «конюшни», то есть гаражи с машинами на всю семью. Потому что за городом одним автомобилем не обойдешься. Туда же помещена уборочная техника и хозяйская коллекция авто. Получается целый парк машин. Территория усадьбы занимает целый гектар, так что ландшафтом занимается садовник, точнее, помощник широкого профиля.
Дом в Подмосковье. Архитектор Роман Леонидов © АБ Романа Леонидова
Дом в Подмосковье. Архитектор Роман Леонидов © АБ Романа Леонидова
Дом в Подмосковье. Архитектор Роман Леонидов © АБ Романа Леонидова
Дом в Подмосковье. Архитектор Роман Леонидов © АБ Романа Леонидова
Дом в Подмосковье. Архитектор Роман Леонидов © АБ Романа Леонидова
Дом в Подмосковье. Архитектор Роман Леонидов © АБ Романа Леонидова

В главном доме расположены двусветная гостиная, столовая, а на втором этаже – хозяйская спальня. В одном из флигелей поместились комнаты для домочадцев и гостей, под ними – спа-комплекс, в другом флигеле – «конюшни»-гаражи, и над ними квартира садовника. Интересно, что переход от главного дома к флигелю на втором этаже представляет собой террасу, открытую всем взорам, с которой в свою очередь можно любоваться окрестностями. Терраса придает дому образ открытости (эксплуатируемая кровля, если уж она плоская, должна быть наполнена жизнью), но ее роль бельведера – скорее, репрезентация: как уже говорилось, большим успехом пользуется защищенный от взоров курдонер.
Дом в Подмосковье. Архитектор Роман Леонидов © АБ Романа Леонидова
Дом в Подмосковье. Архитектор Роман Леонидов © АБ Романа Леонидова
Дом в Подмосковье. Архитектор Роман Леонидов © АБ Романа Леонидова
Дом в Подмосковье. Архитектор Роман Леонидов © АБ Романа Леонидова


«Сначала мы с заказчиком были в шоке, но потом поняли, что будет смело и хорошо»
Модный черный цвет – результат строительной ошибки. Роман Леонидов: «Заказанная краска пришла, по накладной все совпадало. Строители начали красить, звонят, говорят: темновато. Приезжаю и вижу абсолютно черное дерево, пытаюсь снять слой и понимаю, что это абсолютно невозможно. Даже стесать нельзя. Сначала мы с заказчиком были в шоке, но потом поняли, что будет смело и хорошо. Тем более, что он человек эмоционально открытый и лихой. Сам бы я не решился сделать черный, а теперь вижу, что это удача».
Дом в Подмосковье. Архитектор Роман Леонидов © АБ Романа Леонидова
Дом в Подмосковье. Архитектор Роман Леонидов © АБ Романа Леонидова
Дом в Подмосковье. Архитектор Роман Леонидов © АБ Романа Леонидова
Дом в Подмосковье. Архитектор Роман Леонидов © АБ Романа Леонидова
Дом в Подмосковье. Архитектор Роман Леонидов © АБ Романа Леонидова
Дом в Подмосковье. Архитектор Роман Леонидов © АБ Романа Леонидова
Дом в Подмосковье. Архитектор Роман Леонидов © АБ Романа Леонидова
Дом в Подмосковье. Архитектор Роман Леонидов © АБ Романа Леонидова
Дом в Подмосковье. Архитектор Роман Леонидов © АБ Романа Леонидова
Дом в Подмосковье. Архитектор Роман Леонидов © АБ Романа Леонидова


«Вилла над водопадом мне нравится по композиции, но с точки зрения функции это чудовище» 
О некоторых своих постройках Роман Леонидов говорит, что они вдохновлены органической архитектурой. На вопрос, отталкивался ли он в Wing house также от архитектуры Френка Ллойда Райта, получила неожиданный ответ. И разговор вышел на иной уровень. «Архитектор не может не вдохновляться Райтом. Все мы ранены «Виллой над водопадом». Она мне нравится по композиции, но с точки зрения функции это чудовище, вещь в себе. Она не предполагает жизни. Жизнь там только мешает архитектуре. Я пытаюсь быть модернистом как Корбюзье или Райт, но не получается. Сейчас в ходу эклектика. Модернизм, на первый взгляд, более честен. Но на самом деле мы занимаемся теми же украшательствами, что и авторы конца ХIХ века. В этом нет философской составляющей, которая бы толкала изнутри. Ну, нету. И в этом проблема современной архитектуры вообще. Нет цельной философской конструкции, которая формировала бы содержание и форму архитектуры. Но задачи, которые у нас остались, – важные: надо вписать дом в природу, обеспечить комфорт заказчика и добиться внешнего пластического совершенства».
Дом в Подмосковье. Архитектор Роман Леонидов © АБ Романа Леонидова
Дом в Подмосковье. Архитектор Роман Леонидов © АБ Романа Леонидова
Дом в Подмосковье. Архитектор Роман Леонидов © АБ Романа Леонидова
Дом в Подмосковье. Архитектор Роман Леонидов © АБ Романа Леонидова
Дом в Подмосковье. Архитектор Роман Леонидов © АБ Романа Леонидова
Дом в Подмосковье. Архитектор Роман Леонидов © АБ Романа Леонидова
Дом в Подмосковье. Архитектор Роман Леонидов © АБ Романа Леонидова
Дом в Подмосковье. Архитектор Роман Леонидов © АБ Романа Леонидова
Дом в Подмосковье. Архитектор Роман Леонидов © АБ Романа Леонидова
Дом в Подмосковье. Архитектор Роман Леонидов © АБ Романа Леонидова

В доме-крыле эти три задачи успешно решены. Про комфорт было сказано. В природу дом вписан за счет материалов. Их здесь много: бетон и дерево, камень и кирпич, стекло и штукатурка. «В нашем доме, может быть, многовато материалов. Будь их меньше, он был бы более цельный, форма бы лучше читалась, говорит Роман Леонидов. – Но людям хочется фактурности, материальности, тактильности». В данном случае архитектор очень чутко отнесся к человеческой психологии. Дерево, кирпич и бетон применены в конструкциях. В отделке тон задают известняк и лиственница. Вертикальные башни покрыты битым песчаником: «красоты ради, а не функции для».

Композиция, как уже говорилось, строится из трех частей. Там, где требовался вертикальный акцент, появились облицованные камнем «райтовские» башни – воспоминание о «Вилле над водопадом». («Вертикальная стенка – это не камин, к сожалению. Просто здесь была нужна вертикаль»). Эти башни пересекаются с другими элементами, одна из них пронизывает крышу-крыло, например. Таким образом, архитектурной форме придается драматизм. Напряжение между пластическими задачами и функцией всегда сохраняется.
Дом в Подмосковье. Архитектор Роман Леонидов © АБ Романа Леонидова
Дом в Подмосковье. Архитектор Роман Леонидов © АБ Романа Леонидова
Дом в Подмосковье. Архитектор Роман Леонидов © АБ Романа Леонидова
Дом в Подмосковье. Архитектор Роман Леонидов © АБ Романа Леонидова
Дом в Подмосковье. Архитектор Роман Леонидов © АБ Романа Леонидова
Дом в Подмосковье. Архитектор Роман Леонидов © АБ Романа Леонидова

В домах-манифестах, как известно, не живут. Если «Вилла над водопадом», по признанию Романа Леонидова, по функции чудовище при всем своем художественном совершенстве (или благодаря ему), а Гласс-хаус Филиппа Джонсона – опять-таки манифест, в котором он не жил, то следующий вопрос Роману Леонидову был – почему так получается? И выяснилось, что «художественный замысел архитектора – это одно, а на подкорке – другое». И когда я спросила, не следует ли попытаться услышать, что там, в подсознании, ответ был такой: «А это трудно. Хорошо, когда кто-то может тебя поправить, помочь освободиться. А когда ты сам с собой ведешь борьбу – это тяжело. Моя задача – чтобы мой карандашный эскиз был потом виден в стройке». В доме-крыле Роману Леонидову это удалось. Дом получился цельным по образу и комфортным для жизни. Художественный замысел с функцией примирились и держат хороший баланс.