Размещено на портале Архи.ру (www.archi.ru)

26.12.2017

От Лувра к Лувру

Нина Фролова
Объект:
Лувр Абу-Даби
Адрес:
ОАЭ, None, Абу-Даби.
Мастерская:
ООО "Дюравит Рус" (Duravit)

Публикуем Лувр Абу-Даби Жана Нувеля, одно из важнейших зданий уходящего года, с большим набором чертежей.

Лувр Абу-Даби
Лувр Абу-Даби
© Louvre Abu Dhabi, фото: Mohamed Somji

Лувр Абу-Даби – первый музей, открывшийся на искусственном острове Саадийат в столице ОАЭ. Казалось, что мировой экономический кризис 2008-го положил конец амбициозным планам создать там целый «букет» масштабных учреждений культуры в не менее масштабных зданиях, но Лувр Жана Нувеля все же был реализован, а в будущем откроют двери еще Музей Гуггенхайм-Абу-Даби Фрэнка Гери и Национальный музей шейха Зайда Нормана Фостера. Напомним, это уже второй филиал Лувра, первый открылся в Лансе на севере Франции, в здании SANAA.
 
Лувр Абу-Даби. Фото © Roland Halbe. Архитектор Жан Нувель
Лувр Абу-Даби. Фото © Roland Halbe. Архитектор Жан Нувель

Лувр Абу-Даби представлен его создателями как первый «универсальный» музей арабского мира; экспозицию его наполовину будут составлять произведения из собраний 13 французских музеев, половину – из его собственной активно собираемой коллекции (а еще там будет выставлен «Спаситель мира» Леонардо да Винчи, недавно проданный с аукциона за рекордные 450 млн долларов).
 
Лувр Абу-Даби. © Louvre Abu Dhabi, фото: Mohamed Somji
Лувр Абу-Даби. © Louvre Abu Dhabi, фото: Mohamed Somji

Здание музея окружено водой; ландшафт Эмиратов – плоскость земли и моря под небосводом – отражен в устройстве сооружения, «архипелага», перекрытого огромным ажурным куполом из металла. Под ним создан «музейный город»: лаконичные белые постройки, как и купол, отсылают к традициям арабского зодчества. Всего их 55, в 26-ти расположены залы постоянной экспозиции. Стены этой «медины» сделаны из сверхэффективного фибробетона.
 
Лувр Абу-Даби. © Louvre Abu Dhabi, фото: Mohamed Somji
Лувр Абу-Даби. © Louvre Abu Dhabi, фото: Mohamed Somji

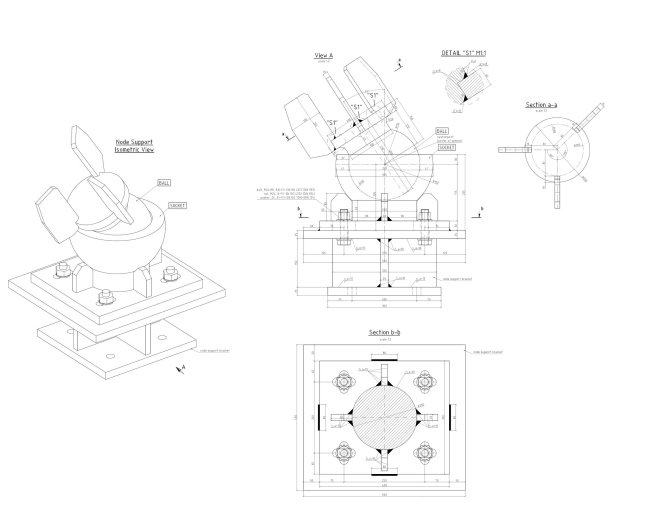
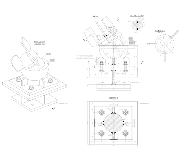
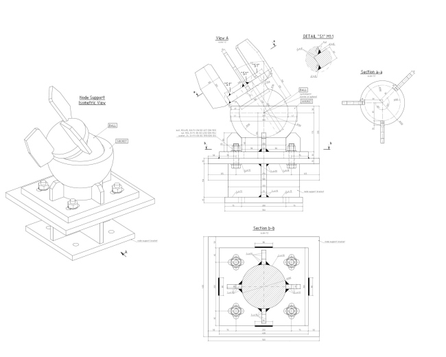
Диаметр купола (его проектированием совместно с бюро Нувеля занимались специалисты Waagner Biro Stahlbau) – 180 м, длина окружности – более полкилометра, толщина – семь метров; верхняя точка находится в 36 м над уровнем земли. Его составляют 7850 «звезд» разного размера и формы, крупнейшая из которых – диаметром 13 м и весом 1,3 тонны. Проницаемость купола создает под ним эффект «светового дождя», меняющийся в зависимости от времени суток. Ночью купол светится изнутри. Он состоит из восьми слоев – четырех внешних, из нержавеющей стали, и четырех внутренних, из алюминия. Между ними помещен стальной каркас высотой пять метров, из 10 000 деталей, собранных в 85 крупных элементов со средним весом 50 тонн. Купол общим весом 7500 тонн (почти как Эйфелева башня) опирается на четыре опоры с пролетом 110 метров.
 
Лувр Абу-Даби. Работа Дженни Хольцер, выполненная специально для этого музея. Фото © Marc Domage. Архитектор Жан Нувель
Лувр Абу-Даби. Работа Дженни Хольцер, выполненная специально для этого музея. Фото © Marc Domage. Архитектор Жан Нувель

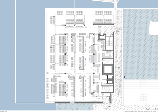
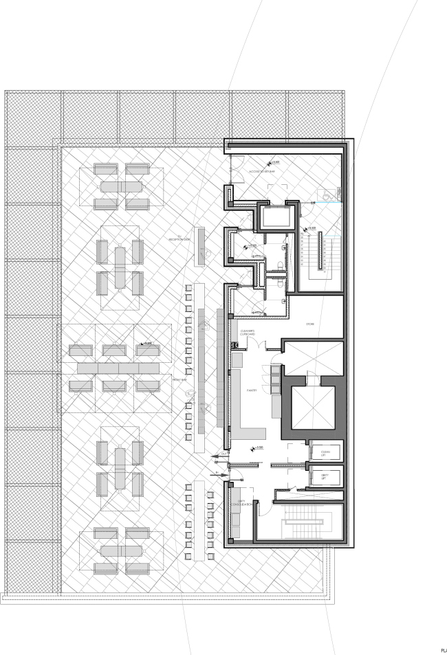
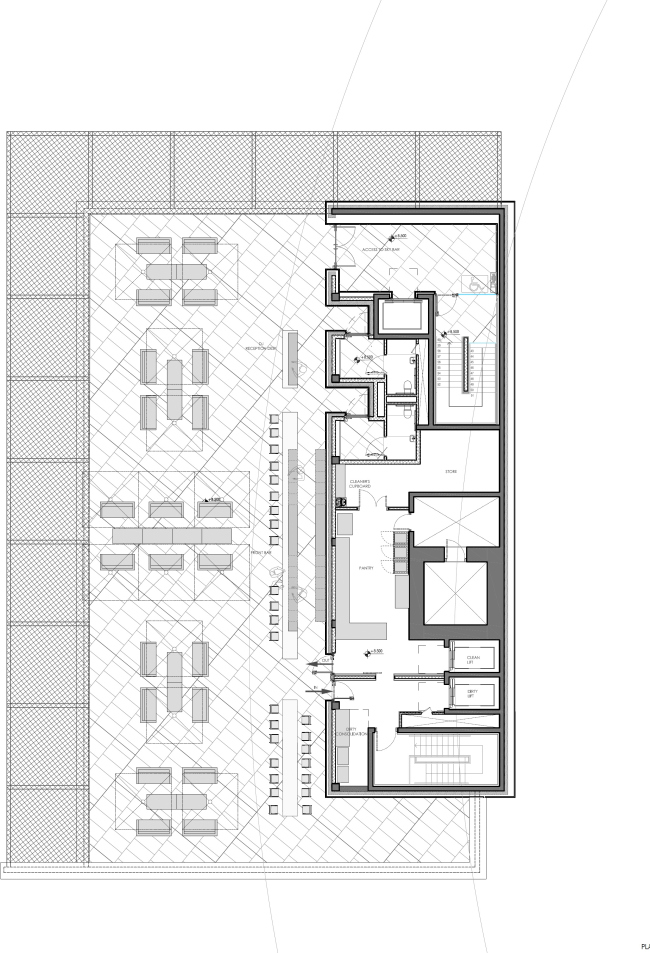
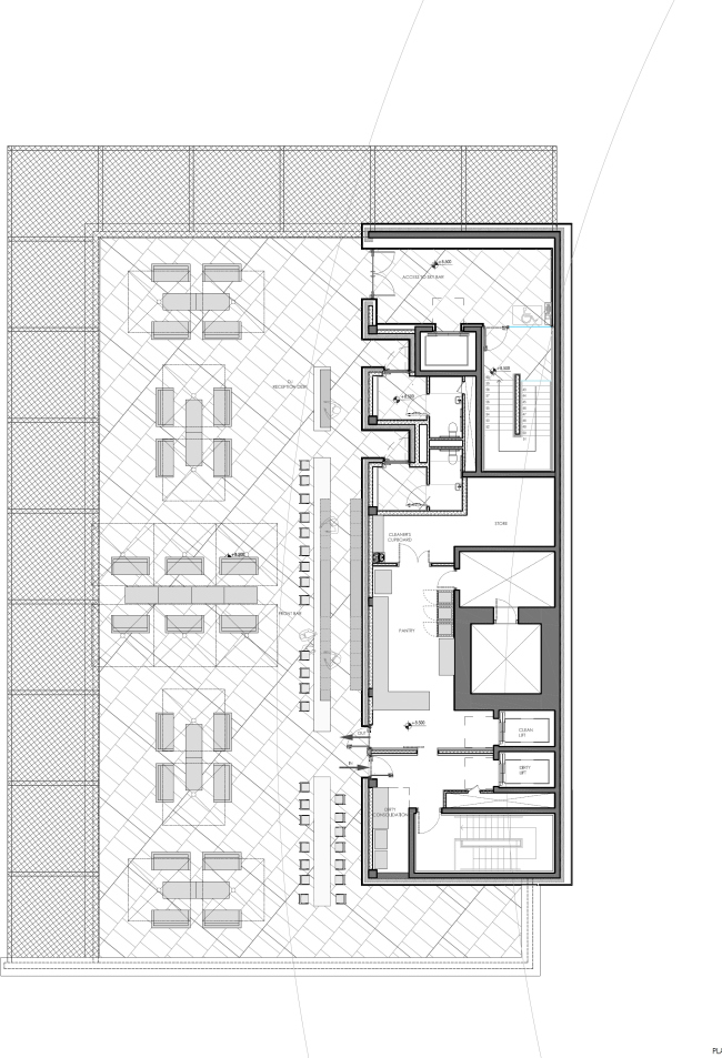
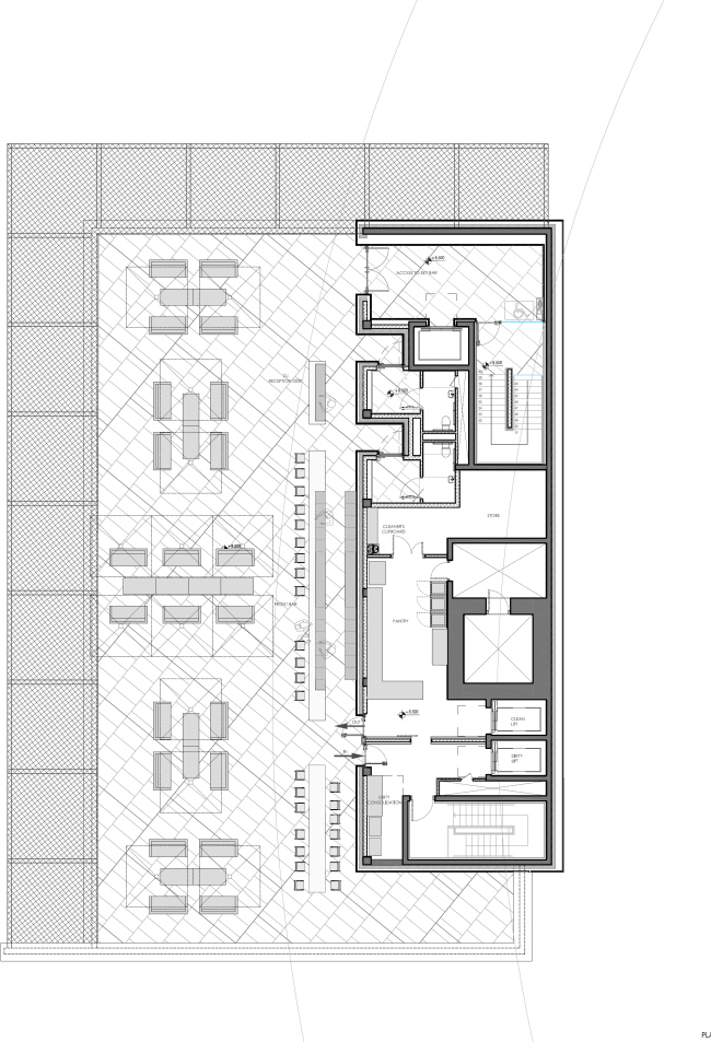
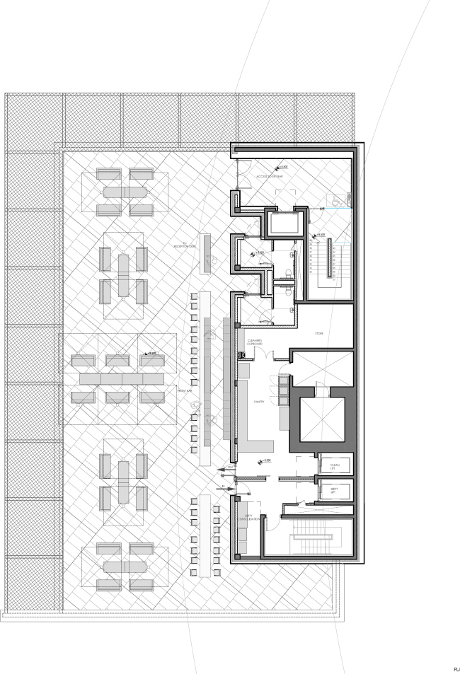
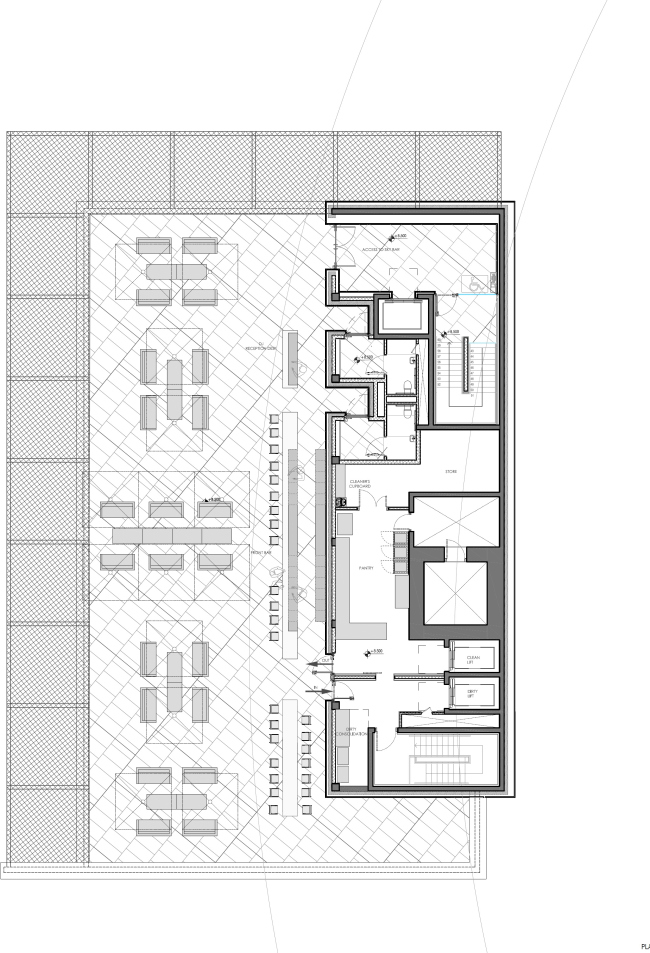
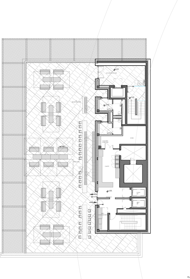
Общая площадь музея – 97 000 м2; из них 6400 м2 заняты постоянной экспозицией, 2000 м2 – пространством временных выставок, детский музей охватывает 200 м2, аудитория на 250 мест – 420 м2. В Лувре Абу-Даби также есть запасник, реставрационные мастерские, административный корпус, музейный магазин, ресторан, кафе и общественные пространства.
 
Лувр Абу-Даби. © Louvre Abu Dhabi, фото: Mohamed Somji
Лувр Абу-Даби. © Louvre Abu Dhabi, фото: Mohamed Somji

В интерьерах полы вымощены каменными модулями в бронзовых «обрамлениях»; выбор камня обусловлен временем создания выставленных в зале экспонатов. Перекрытия выполнены из 25 000 стеклянных панелей 18 типов. Жан Нувель разработал специально для музея комплект мебели, произведенный компанией Poltrona Frau.
 
Лувр Абу-Даби. © Louvre Abu Dhabi, фото: Mohamed Somji
Лувр Абу-Даби. © Louvre Abu Dhabi, фото: Mohamed Somji

Фасад одного из внешних корпусов покрыт произведением Дженни Хольцер: в нем она соединила три текста разных эпох и культур, клинописную табличку с мифом творения на шумерском и аккадском – как, помимо прочего, один из ранних примеров перевода, три отрывка из «Мукаддимы», труда арабского историка Ибн Хальдуна 1377 года (взят оригинальный свиток), и «Опыты» Монтеня (использована авторская рукопись 1588 года).
 
Лувр Абу-Даби. Фото © Roland Halbe. Архитектор Жан Нувель
Лувр Абу-Даби. Фото © Roland Halbe. Архитектор Жан Нувель

Благодаря эффективным системам обогрева, вентиляции, кондиционирования, светильникам и смесителям, а также защите от перегрева с помощью купола и использованию естественного освещения в т.ч. через его ажурные отверстия здание потребляет на 27% меньше энергии и на столько же – воды, чем аналогичное тех же параметров. От штормов музей защищают вбитые в морское дно сваи, волнорезы и т.д.
 
Лувр Абу-Даби. Фото © Roland Halbe. Архитектор Жан Нувель
Лувр Абу-Даби. Фото © Roland Halbe. Архитектор Жан Нувель

В конце декабря в Лувре Абу-Даби открылась первая временная выставка, «От одного Лувра к другому: открытие музея для всех»: она рассказывает о бытовании Лувра как центра культуры и, в итоге, музея в XVIII веке.
Лувр Абу-Даби. Фото © Roland Halbe. Архитектор Жан Нувель
Лувр Абу-Даби. Фото © Roland Halbe. Архитектор Жан Нувель
Лувр Абу-Даби. Фото © Roland Halbe. Архитектор Жан Нувель
Лувр Абу-Даби. Фото © Roland Halbe. Архитектор Жан Нувель
Лувр Абу-Даби. Фото © Roland Halbe. Архитектор Жан Нувель
Лувр Абу-Даби. Фото © Roland Halbe. Архитектор Жан Нувель
Лувр Абу-Даби. Фото © Marc Domage. Архитектор Жан Нувель
Лувр Абу-Даби. Фото © Marc Domage. Архитектор Жан Нувель
Лувр Абу-Даби. Фото © Marc Domage. Архитектор Жан Нувель
Лувр Абу-Даби. Фото © Marc Domage. Архитектор Жан Нувель
Лувр Абу-Даби. Фото © Marc Domage. Архитектор Жан Нувель
Лувр Абу-Даби. Фото © Marc Domage. Архитектор Жан Нувель
Лувр Абу-Даби. Фото © Marc Domage. Архитектор Жан Нувель
Лувр Абу-Даби. Фото © Marc Domage. Архитектор Жан Нувель
Лувр Абу-Даби. Работа Ай Вэйвэя «Источник света». Фото © Marc Domage. Архитектор Жан Нувель
Лувр Абу-Даби. Работа Ай Вэйвэя «Источник света». Фото © Marc Domage. Архитектор Жан Нувель
Лувр Абу-Даби © Architecte Jean Nouvel
Лувр Абу-Даби © Architecte Jean Nouvel
Лувр Абу-Даби © Architecte Jean Nouvel
Лувр Абу-Даби © Architecte Jean Nouvel
Лувр Абу-Даби © Architecte Jean Nouvel
Лувр Абу-Даби © Architecte Jean Nouvel
Лувр Абу-Даби © Architecte Jean Nouvel
Лувр Абу-Даби © Architecte Jean Nouvel
Лувр Абу-Даби © Architecte Jean Nouvel
Лувр Абу-Даби © Architecte Jean Nouvel
Лувр Абу-Даби © Architecte Jean Nouvel
Лувр Абу-Даби © Architecte Jean Nouvel
Лувр Абу-Даби © Architecte Jean Nouvel
Лувр Абу-Даби © Architecte Jean Nouvel
Лувр Абу-Даби © Architecte Jean Nouvel
Лувр Абу-Даби © Architecte Jean Nouvel
Лувр Абу-Даби © Architecte Jean Nouvel
Лувр Абу-Даби © Architecte Jean Nouvel
Лувр Абу-Даби © Architecte Jean Nouvel
Лувр Абу-Даби © Architecte Jean Nouvel
Лувр Абу-Даби © Architecte Jean Nouvel
Лувр Абу-Даби © Architecte Jean Nouvel
Лувр Абу-Даби © Architecte Jean Nouvel
Лувр Абу-Даби © Architecte Jean Nouvel
Лувр Абу-Даби © Architecte Jean Nouvel
Лувр Абу-Даби © Architecte Jean Nouvel
Лувр Абу-Даби © Architecte Jean Nouvel
Лувр Абу-Даби © Architecte Jean Nouvel
Лувр Абу-Даби © Architecte Jean Nouvel
Лувр Абу-Даби © Architecte Jean Nouvel
Лувр Абу-Даби © Architecte Jean Nouvel
Лувр Абу-Даби © Architecte Jean Nouvel
Лувр Абу-Даби © Architecte Jean Nouvel
Лувр Абу-Даби © Architecte Jean Nouvel
Лувр Абу-Даби © Architecte Jean Nouvel
Лувр Абу-Даби © Architecte Jean Nouvel
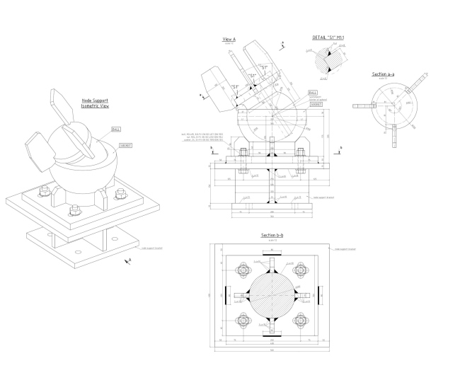
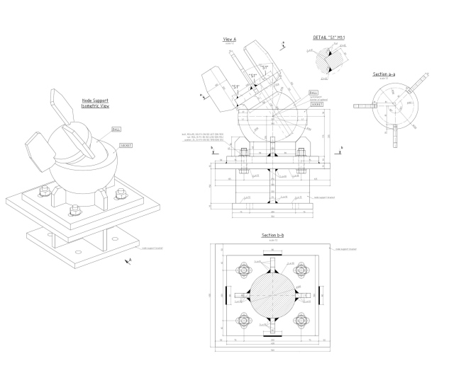
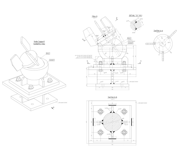
Лувр Абу-Даби © Waagner Biro Stahlbau AG / Architecte Jean Nouvel
Лувр Абу-Даби © Waagner Biro Stahlbau AG / Architecte Jean Nouvel
Лувр Абу-Даби © Waagner Biro Stahlbau AG / Architecte Jean Nouvel
Лувр Абу-Даби © Waagner Biro Stahlbau AG / Architecte Jean Nouvel
Лувр Абу-Даби © Waagner Biro Stahlbau AG / Architecte Jean Nouvel
Лувр Абу-Даби © Waagner Biro Stahlbau AG / Architecte Jean Nouvel
Лувр Абу-Даби © Waagner Biro Stahlbau AG / Architecte Jean Nouvel
Лувр Абу-Даби © Waagner Biro Stahlbau AG / Architecte Jean Nouvel
Лувр Абу-Даби © Architecte Jean Nouvel
Лувр Абу-Даби © Architecte Jean Nouvel
Лувр Абу-Даби © Architecte Jean Nouvel
Лувр Абу-Даби © Architecte Jean Nouvel
Лувр Абу-Даби © Architecte Jean Nouvel
Лувр Абу-Даби © Architecte Jean Nouvel
Лувр Абу-Даби © Architecte Jean Nouvel
Лувр Абу-Даби © Architecte Jean Nouvel
Лувр Абу-Даби © Architecte Jean Nouvel
Лувр Абу-Даби © Architecte Jean Nouvel
Лувр Абу-Даби © Architecte Jean Nouvel
Лувр Абу-Даби © Architecte Jean Nouvel
Лувр Абу-Даби © Architecte Jean Nouvel
Лувр Абу-Даби © Architecte Jean Nouvel
Лувр Абу-Даби © Waagner Biro Stahlbau AG / Architecte Jean Nouvel
Лувр Абу-Даби © Waagner Biro Stahlbau AG / Architecte Jean Nouvel
Лувр Абу-Даби © Waagner Biro Stahlbau AG / Architecte Jean Nouvel
Лувр Абу-Даби © Waagner Biro Stahlbau AG / Architecte Jean Nouvel
Лувр Абу-Даби © Waagner Biro Stahlbau AG / Architecte Jean Nouvel
Лувр Абу-Даби © Waagner Biro Stahlbau AG / Architecte Jean Nouvel
Лувр Абу-Даби © Architecte Jean Nouvel
Лувр Абу-Даби © Architecte Jean Nouvel
Лувр Абу-Даби © Architecte Jean Nouvel
Лувр Абу-Даби © Architecte Jean Nouvel
Лувр Абу-Даби © Architecte Jean Nouvel
Лувр Абу-Даби © Architecte Jean Nouvel
Лувр Абу-Даби © Architecte Jean Nouvel
Лувр Абу-Даби © Architecte Jean Nouvel
Лувр Абу-Даби © Architecte Jean Nouvel
Лувр Абу-Даби © Architecte Jean Nouvel
Лувр Абу-Даби © Architecte Jean Nouvel
Лувр Абу-Даби © Architecte Jean Nouvel
Лувр Абу-Даби © Architecte Jean Nouvel
Лувр Абу-Даби © Architecte Jean Nouvel
Лувр Абу-Даби © Architecte Jean Nouvel
Лувр Абу-Даби © Architecte Jean Nouvel
Лувр Абу-Даби © Architecte Jean Nouvel
Лувр Абу-Даби © Architecte Jean Nouvel
Лувр Абу-Даби © Waagner Biro Stahlbau AG / Architecte Jean Nouvel
Лувр Абу-Даби © Waagner Biro Stahlbau AG / Architecte Jean Nouvel
Лувр Абу-Даби © Architecte Jean Nouvel
Лувр Абу-Даби © Architecte Jean Nouvel
Лувр Абу-Даби © Waagner Biro Stahlbau AG / Architecte Jean Nouvel
Лувр Абу-Даби © Waagner Biro Stahlbau AG / Architecte Jean Nouvel
Лувр Абу-Даби © Architecte Jean Nouvel
Лувр Абу-Даби © Architecte Jean Nouvel
Лувр Абу-Даби © Architecte Jean Nouvel
Лувр Абу-Даби © Architecte Jean Nouvel
Лувр Абу-Даби © Architecte Jean Nouvel
Лувр Абу-Даби © Architecte Jean Nouvel
Лувр Абу-Даби © Architecte Jean Nouvel
Лувр Абу-Даби © Architecte Jean Nouvel
Лувр Абу-Даби © Architecte Jean Nouvel
Лувр Абу-Даби © Architecte Jean Nouvel
Лувр Абу-Даби © Architecte Jean Nouvel
Лувр Абу-Даби © Architecte Jean Nouvel
Лувр Абу-Даби © Architecte Jean Nouvel
Лувр Абу-Даби © Architecte Jean Nouvel
Лувр Абу-Даби © Architecte Jean Nouvel
Лувр Абу-Даби © Architecte Jean Nouvel
Лувр Абу-Даби © Architecte Jean Nouvel
Лувр Абу-Даби © Architecte Jean Nouvel
Лувр Абу-Даби © Architecte Jean Nouvel
Лувр Абу-Даби © Architecte Jean Nouvel