Размещено на портале Архи.ру (www.archi.ru)

25.09.2018

Белая нить

Лилия Аронова
Объект:
Жилой комплекс WhiteLines
Адрес:
Украина, Киев. Васильковская, 1
Архитектор:
Александр Попов
Мастерская:
Архиматика

Бюро «Архиматика», авторы проекта жилого комплекса в южной части Киева, нашли яркий прием, объединяющий три визуально разрозненных объема в единый «живой организм».

Жилой комплекс White Lines © Архиматика
Жилой комплекс White Lines © Архиматика

Концепцию WhiteLines – нечасто встречающуюся пока на нашем рынке типологию единого комплекса, включающего в себя практически все необходимые человеку функции, от жилья до кинотеатра, – Дмитрию Васильеву и Александру Попову предложил заказчик. Архитекторы восприняли ее с энтузиазмом: идея квартала, обитатели которого обеспечены всем необходимым непосредственно по месту жительства, вполне соответствует идеологии комфортной среды, которая давно стала творческим кредо «Архиматики». «Когда в своем доме ты можешь в тапочках спуститься за хлебом в супермаркет, вечером в халате пойти посмотреть кино, с утра отправиться поплавать в бассейн – для нашего климатического пояса это очень адекватная концепция», – рассуждает сооснователь бюро Дмитрий Васильев.

Участок, на котором предполагается строительство комплекса, находится в южной части Киева, на развилке Голосеевского проспекта и Васильковской улицы. Ограниченный с запада Ужгородским переулком, он имеет почти правильную треугольную форму, но поскольку поперек острого угла стоит здание Национального центра имени Александра Довженко, собственно территория застройки превращается в трапецию. Расположение на втором плане с точки зрения проспекта, кстати, задало авторам проекта непростую задачу: как сделать так, чтобы три 24-этажные башни, «выглядывающие» из-за приземистого параллелепипеда Довженко-центра, не выглядели хаотично посаженными разрозненными объемами? Решение нашлось оригинальное, но об этом ниже, а пока нельзя не упомянуть о преимуществах территории, главное среди которых – непосредственное соседство с прекрасным Голосеевским парком, он же парк имени Максима Рыльского, – памятником садово-паркового искусства с озерами, аллеями и детскими площадками, переходящим далее в почти не тронутый цивилизацией лес. Кроме того, в непосредственной близости от площадки находится выход из метро «Голосеевская».
Жилой комплекс White Lines © Архиматика
Жилой комплекс White Lines © Архиматика
Жилой комплекс White Lines © Архиматика
Жилой комплекс White Lines © Архиматика

Три высотные жилые башни стоят на двухэтажном стилобате, по углам площадки, в самых выгодных с точки зрения видовых характеристик точках. В стилобатной части сосредоточены все спортивно-развлекательные функции, а его кровля используется как приватное благоустроенное дворовое пространство, отведенное под нужды жильцов комплекса. Что же касается торговой галереи первого этажа, то ее решено было развернуть вовне, лицом к городу. «Сейчас там мертвая зона, – объясняет Дмитрий Васильев. – Люди, идущие по проспекту от метро к своим домам, проходят вдоль глухого бетонного забора – потерянное время, потерянное пространство. Мы же хотим сделать живую улицу с магазинами, аптеками, кафе – всем тем, что может понадобиться жильцам не только нашего комплекса, но и всего района».
Жилой комплекс White Lines © Архиматика
Жилой комплекс White Lines © Архиматика

Как же все-таки собрать воедино три высотных здания, если их основание не просматривается со стратегически важных точек обзора? Ясно было, что просто единообразного оформления фасадов недостаточно – нужен некий яркий прием. После долгих поисков родилась идея горизонтали как пластического лейтмотива, красной – точнее, белой – нитью проходящего по всем объемам комплекса. Выглядит это так, словно на сплошь стеклянные башни действительно ряд за рядом намотана белая нитка – причем намотана не слишком тщательно, где-то она потолще, где-то потоньше, где-то вовсе обрывается и через перерыв начинается снова; захватывает она, конечно, и стилобат, да и здание Довженко-центра заодно – так уж точно не усомнишься, что весь этот комплекс представляет собой единый и, кажется, вполне живой организм. Белая «нить» имеет и практический смысл – за ней спрятаны ящики для кондиционеров, так что форма – мотивированная. Образ оказался настолько ярким, что сейчас, на днях, комплекс, ранее носивший маркетинговое название Smart Plaza Holoseevo, переименовали в WhiteLines – белые линии.
Жилой комплекс White Lines © Архиматика
Жилой комплекс White Lines © Архиматика

Да, некий намек на органику прослеживается в не слишком правильной формы, как грибы на опушке леса вырастающих объемах, тем более что начиная с определенной высоты архитекторы предлагают сменить строго прямоугольные планы на параллелограммы со скругленными острыми углами, принимающие по одной из стен форму волны. Способствуют этому ощущению и нелинейные абрисы козырьков торговой галереи, тоже чем-то напоминающие грибы, только древесные, растущие на старых стволах.
Жилой комплекс White Lines © Архиматика
Жилой комплекс White Lines © Архиматика
Жилой комплекс White Lines © Архиматика
Жилой комплекс White Lines © Архиматика

Большинство жилых помещений в WhiteLines предназначены для семей с детьми – здесь они смогут не только выйти погулять в Голосеевский парк, но и позагорать в собственном солярии или поиграть в баскетбол на кровле стилобата. Именно в расчете на эту целевую аудиторию авторы проекта делали планировки квартир, среди которых есть и двухъярусные. К планировкам «Архиматика» по традиции подходит творчески и с особым вниманием, считая, что каждый метр такого дорогого жилья должен использоваться рационально и с комфортом – 99% квартир спроектированы по методике PRO – так архитекторы называют планировки, разработанные методом тщательного анализа параметров ради наибольшей эффективности использования каждого квадратного метра и удобства жильцов.

Проект вошел в шорт-лист международной премии World Architecture Festival в номинации многофункциональной коммерческой недвижимости. Начало строительства запланировано на 4 квартал 2018 года. 
Жилой комплекс White Lines © Архиматика
Жилой комплекс White Lines © Архиматика
Жилой комплекс White Lines. Планировка квартир PRO © Архиматика
Жилой комплекс White Lines. Планировка квартир PRO © Архиматика
Жилой комплекс White Lines. Планировка квартир PRO © Архиматика
Жилой комплекс White Lines. Планировка квартир PRO © Архиматика
Жилой комплекс White Lines. Планировка квартир PRO © Архиматика
Жилой комплекс White Lines. Планировка квартир PRO © Архиматика
Жилой комплекс White Lines. Планировка квартир PRO © Архиматика
Жилой комплекс White Lines. Планировка квартир PRO © Архиматика
Жилой комплекс White Lines. Планировка квартир PRO © Архиматика
Жилой комплекс White Lines. Планировка квартир PRO © Архиматика
Жилой комплекс White Lines. Планировка квартир PRO © Архиматика
Жилой комплекс White Lines. Планировка квартир PRO © Архиматика
Жилой комплекс White Lines. Планировка квартир PRO © Архиматика
Жилой комплекс White Lines. Планировка квартир PRO © Архиматика
Жилой комплекс Smart Plaza. Отметка +14.550 © Архиматика
Жилой комплекс Smart Plaza. Отметка +14.550 © Архиматика
Жилой комплекс White Lines. Разрез 2-2 © Архиматика
Жилой комплекс White Lines. Разрез 2-2 © Архиматика
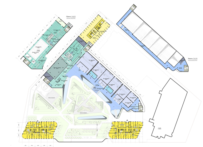
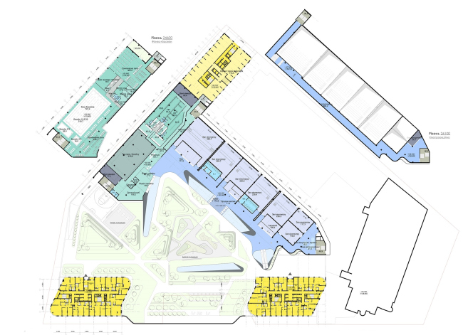
Жилой комплекс White Lines. Отметка +20.100 © Архиматика
Жилой комплекс White Lines. Отметка +20.100 © Архиматика
Жилой комплекс White Lines. Типовой 1-5 этаж © Архиматика
Жилой комплекс White Lines. Типовой 1-5 этаж © Архиматика
Жилой комплекс White Lines. Типовой жилой  3-5 этаж © Архиматика
Жилой комплекс White Lines. Типовой жилой 3-5 этаж © Архиматика