Размещено на портале Архи.ру (www.archi.ru)

11.12.2017

Скромное обаяние

Лилия Аронова
Объект:
Конкурсный проект реновации первой образцовой типографии
Адрес:
Россия, Москва. ул. Пятницкая, 71/5, стр. 1-4, 5,6,8
Мастерская:
Архитектурная мастерская «Группа АБВ»

Реконструируя под жилье здание бывшей Сытинской типографии на Пятницкой улице, Никита Бирюков и его команда вступили в неравный бой с техническим заданием, и с другой стороны, вместо кирпично-промышленной природы здания акцентировали буржуазность исходного стиля модерн.

Конкурсный проект реновации первой образцовой типографии. Корпус 1 © Архитектурная мастерская «Группа АБВ»
Конкурсный проект реновации первой образцовой типографии. Корпус 1 © Архитектурная мастерская «Группа АБВ»
Отправной точкой для авторов проекта, представленного на конкурс архитектурным бюро АБВ, стала эпоха сооружения исторических корпусов типографии – рубеж XIX – XX столетий. Формирование буржуазии как класса и тесно связанные с этим явлением художественные течения, прежде всего рождение стиля модерн – эти процессы, грубо прерванные известными историческими событиями, легли в основу концепции Никиты Бирюкова. Именно буржуазность в лучшем значении этого слова он предложил сделать визитной карточкой комплекса. «Это комплекс для людей, уверенных в себе», – так авторы определяют целевую аудиторию своего проекта.
Конкурсный проект реновации первой образцовой типографии. Существующее положение. 
Главный сытинский корпус первой образцовой типографии. Корпус 1 Вид с ул. М.Ордынка (до реконструкции) © Архитектурная мастерская «Группа АБВ»
Конкурсный проект реновации первой образцовой типографии. Существующее положение. Главный сытинский корпус первой образцовой типографии. Корпус 1 Вид с ул. М.Ордынка (до реконструкции) © Архитектурная мастерская «Группа АБВ»

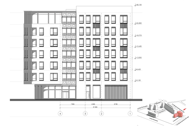
Архитекторы видели свою миссию прежде всего в восстановлении исторического силуэта главного корпуса типографии. Главное «зло»–надстроенный в советское время пятый этаж, выровнявший верхнюю линию фасада и тем самым грубо нарушивший замысел архитектора – по проекту демонтируется, а на его месте возводится мансарда, которая за счет отступа вглубь от линии фасада не мешает восприятию характерного силуэта здания. Вместо одного «советского» этажа авторы сумели добиться полноценных двух, а за счет заглубления надстройки квартиры, располагающиеся на верхних этажах, получили выход на террасы. Сам фасад, решенный в изысканной бежево-серой гамме, украшен нежным лепным декором, а окна первого этажа опущены практически до земли, чтобы разместить там витрины магазинов – разумеется, дорогих и престижных, какие только и могут располагаться в респектабельном буржуазном здании.
Конкурсный проект реновации первой образцовой типографии. Корпус 1. Схема реновации © Архитектурная мастерская «Группа АБВ»
Конкурсный проект реновации первой образцовой типографии. Корпус 1. Схема реновации © Архитектурная мастерская «Группа АБВ»
Конкурсный проект реновации первой образцовой типографии. Корпус 1. Главный фасад © Архитектурная мастерская «Группа АБВ»
Конкурсный проект реновации первой образцовой типографии. Корпус 1. Главный фасад © Архитектурная мастерская «Группа АБВ»
Конкурсный проект реновации первой образцовой типографии. Корпус 1 © Архитектурная мастерская «Группа АБВ»
Конкурсный проект реновации первой образцовой типографии. Корпус 1 © Архитектурная мастерская «Группа АБВ»

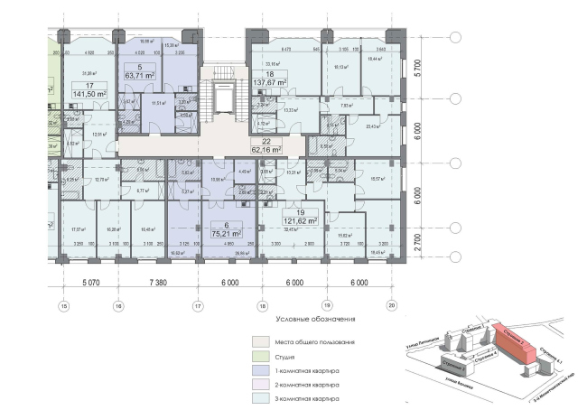
А вот над квартирографией этого корпуса авторам проекта пришлось всерьез поломать голову. Пытаясь распланировать квартиры в соответствии с ТЗ, они столкнулись с тем, что оно вступает в непримиримое противоречие с существующим конструктивом: шагом несущих колонн, потолочными сводами, расположением окон. Что, в общем, неудивительно, учитывая, что Эрихсон и Шухов проектировали не жилье, а производственное помещение. Получалось, что перегородки упираются в оконные переплеты, окна «липнут» к стенам, своды потолков ломаются в самых неожиданных местах, да и общие пропорции комнат оставляют желать лучшего. С конструктивом ничего сделать было нельзя, это объект культурного наследия, – значит, пришлось пожертвовать ТЗ. Авторы проекта предложили заказчику свой вариант планировок – с комнатами правильных пропорций, грамотным расположением окон и сводов плюс, как бонус, «выкроенным» на самом высоком втором этаже антресольным уровнем – и заказчик, что приятно, с их аргументами согласился. «Из типографских помещений мы сделали жилые, – резюмирует один из авторов проекта Валентин Остроумов, – при этом не ухудшив их качество и не разрушая историческое наследие».
Конкурсный проект реновации первой образцовой типографии. Корпус 1. Продольный разрез © Архитектурная мастерская «Группа АБВ»
Конкурсный проект реновации первой образцовой типографии. Корпус 1. Продольный разрез © Архитектурная мастерская «Группа АБВ»
Конкурсный проект реновации первой образцовой типографии. Корпус 1. Продольный разрез (Вариант 2) © Архитектурная мастерская «Группа АБВ»
Конкурсный проект реновации первой образцовой типографии. Корпус 1. Продольный разрез (Вариант 2) © Архитектурная мастерская «Группа АБВ»
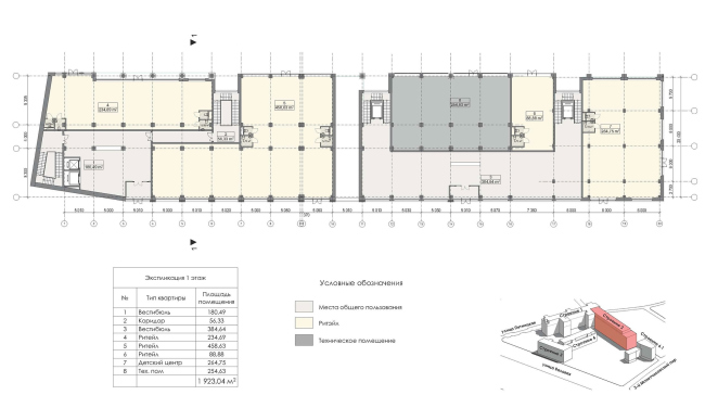
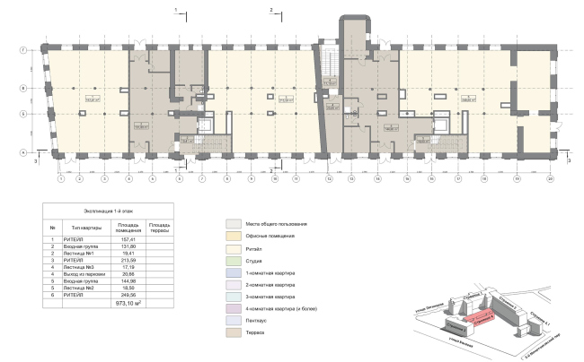
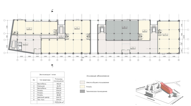
Конкурсный проект реновации первой образцовой типографии. Корпус 1. План 1 этажа © Архитектурная мастерская «Группа АБВ»
Конкурсный проект реновации первой образцовой типографии. Корпус 1. План 1 этажа © Архитектурная мастерская «Группа АБВ»
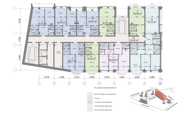
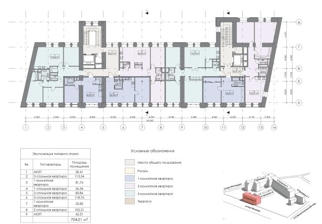
Конкурсный проект реновации первой образцовой типографии. Корпус 1. План 2 этажа © Архитектурная мастерская «Группа АБВ»
Конкурсный проект реновации первой образцовой типографии. Корпус 1. План 2 этажа © Архитектурная мастерская «Группа АБВ»
Конкурсный проект реновации первой образцовой типографии. Корпус 1. План 2 этажа (вариант 2) © Архитектурная мастерская «Группа АБВ»
Конкурсный проект реновации первой образцовой типографии. Корпус 1. План 2 этажа (вариант 2) © Архитектурная мастерская «Группа АБВ»

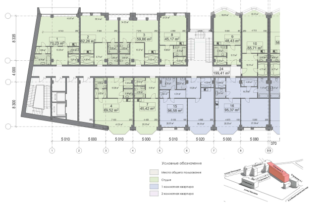
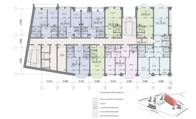
В остальных корпусах от технического задания отступать не пришлось, хотя в каждом случае задача была новой и непростой. Строение номер 2, тянущееся вдоль 2-го Монетчиковского переулка, отличается не только солидной протяженностью, но и невероятной для жилого здания глубиной – больше двадцати метров, – что опять же существенно затрудняет планировку квартир, которые при стандартном подходе получаются огромными по площади. Обе проблемы удалось решить одновременно за счет фасадных решений, благо в этом строении, напомним, согласно ТЗ сохранялся только каркас здания, все остальное возводилось заново. Утопленные в глубину фасада лифтовые шахты разделили объем здания на четыре части, настолько отличающиеся друг от друга, что их легко можно принять за четыре стоящих в ряд компактных, независимых друг от друга строения. Разница и в использованных материалах – облицовочный камень, керамический кирпич, снова камень, – и в цветовой гамме, и в самой пластике: квадраты заглубленных окон с французскими балконами чередуются с гармошкой треугольных эркеров. Возвращаясь к квартирографии: такие активные фасады, заходящие внутрь здания, позволили привести квартиры к более или менее разумной площади.
Конкурсный проект реновации первой образцовой типографии. Корпус 2 © Архитектурная мастерская «Группа АБВ»
Конкурсный проект реновации первой образцовой типографии. Корпус 2 © Архитектурная мастерская «Группа АБВ»
Конкурсный проект реновации первой образцовой типографии. Корпус 2 © Архитектурная мастерская «Группа АБВ»
Конкурсный проект реновации первой образцовой типографии. Корпус 2 © Архитектурная мастерская «Группа АБВ»
Конкурсный проект реновации первой образцовой типографии. Корпус 2 © Архитектурная мастерская «Группа АБВ»
Конкурсный проект реновации первой образцовой типографии. Корпус 2 © Архитектурная мастерская «Группа АБВ»
Конкурсный проект реновации первой образцовой типографии. Фасад по 2-му Монетчиковому переулку. Корпус 2  © Архитектурная мастерская «Группа АБВ»
Конкурсный проект реновации первой образцовой типографии. Фасад по 2-му Монетчиковому переулку. Корпус 2 © Архитектурная мастерская «Группа АБВ»
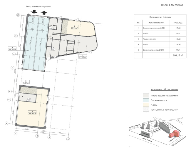
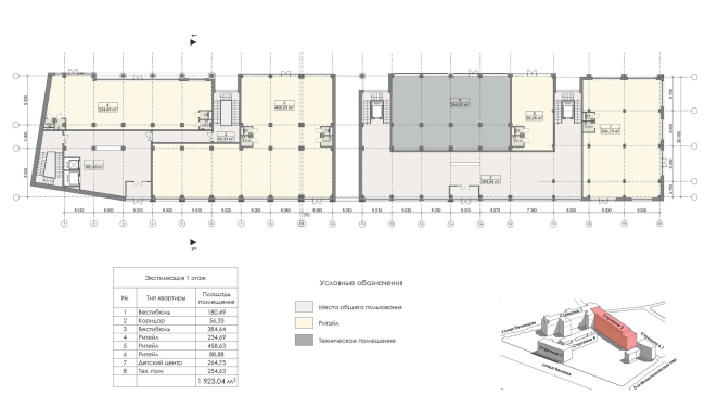
Конкурсный проект реновации первой образцовой типографии. Корпус 2. План первого этажа © Архитектурная мастерская «Группа АБВ»
Конкурсный проект реновации первой образцовой типографии. Корпус 2. План первого этажа © Архитектурная мастерская «Группа АБВ»
Конкурсный проект реновации первой образцовой типографии. Корпус 2. План типового этажа. Вариант 2 © Архитектурная мастерская «Группа АБВ»
Конкурсный проект реновации первой образцовой типографии. Корпус 2. План типового этажа. Вариант 2 © Архитектурная мастерская «Группа АБВ»

Еще одно здание типографии, выходящее на Садовое кольцо, никогда не пыталось соревноваться в пышности с главным корпусом, но не менее гармонично в своей сдержанной элегантности. Авторы проекта подчеркивают его «скромное обаяние», очищая перламутрово-серый с вкраплениями бежевого фасад, выделяя характерные для модерна декоративные элементы и снова отодвигая вглубь мансарду, чтобы не смазывать благородный силуэт аттиков.
Конкурсный проект реновации первой образцовой типографии. Корпус 3. Существующее положение © Архитектурная мастерская «Группа АБВ»
Конкурсный проект реновации первой образцовой типографии. Корпус 3. Существующее положение © Архитектурная мастерская «Группа АБВ»
Конкурсный проект реновации первой образцовой типографии. Корпус 3. Проектное предложение © Архитектурная мастерская «Группа АБВ»
Конкурсный проект реновации первой образцовой типографии. Корпус 3. Проектное предложение © Архитектурная мастерская «Группа АБВ»
Конкурсный проект реновации первой образцовой типографии. Корпус 3 © Архитектурная мастерская «Группа АБВ»
Конкурсный проект реновации первой образцовой типографии. Корпус 3 © Архитектурная мастерская «Группа АБВ»
Конкурсный проект реновации первой образцовой типографии. Корпус 3 © Архитектурная мастерская «Группа АБВ»
Конкурсный проект реновации первой образцовой типографии. Корпус 3 © Архитектурная мастерская «Группа АБВ»
Конкурсный проект реновации первой образцовой типографии. Корпус 3. Эскиз. Вариант 2 © Архитектурная мастерская «Группа АБВ»
Конкурсный проект реновации первой образцовой типографии. Корпус 3. Эскиз. Вариант 2 © Архитектурная мастерская «Группа АБВ»

Единственное краснокирпичное здание в проекте группы АБВ – бывшее общежитие для рабочих Сытинской типографии, стоящее внутри двора. Здесь архитекторы сохраняют и восстанавливают декоративную кладку, а верхний уровень, где этажность сегодня варьируется от трех до четырех этажей, выравнивают с помощью кирпичной же мансарды с террасами. Поскольку даже с учетом надстройки это здание оказывается самым невысоким в комплексе, авторы проекта предлагают обустроить кровлю с использованием зеленых насаждений – и таким образом сделать ее частью двора, еще больше украсив вид из окон верхних, самых престижных этажей окружающих домов. Двор вообще планируется сделать очень зеленым, и прихотливые арабески клумб и дорожек, кажется, призваны смягчить некоторую брутальность фабричной архитектуры бывшей типографии.
Конкурсный проект реновации первой образцовой типографии. Корпус 4 © Архитектурная мастерская «Группа АБВ»
Конкурсный проект реновации первой образцовой типографии. Корпус 4 © Архитектурная мастерская «Группа АБВ»
Конкурсный проект реновации первой образцовой типографии. Корпус 4  © Архитектурная мастерская «Группа АБВ»
Конкурсный проект реновации первой образцовой типографии. Корпус 4 © Архитектурная мастерская «Группа АБВ»
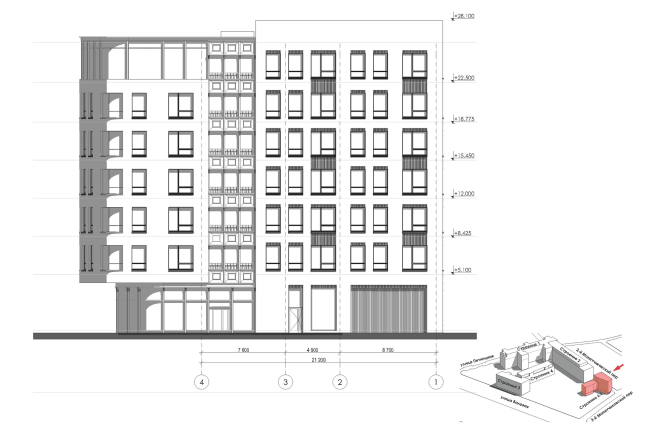
Конкурсный проект реновации первой образцовой типографии. Корпус 4. Восточный фасад © Архитектурная мастерская «Группа АБВ»
Конкурсный проект реновации первой образцовой типографии. Корпус 4. Восточный фасад © Архитектурная мастерская «Группа АБВ»

Кстати, и последнее, вновь строящееся на пересечении Монетчиковских переулков здание комплекса авторам проекта захотелось решить на некотором стилевом противопоставлении. «Оно, я бы сказал, более женственное, – комментирует Валентин Остроумов. – Вокруг все такое мужественное, а его мы пытались сделать поизящней». Сжатые со всех сторон тисками инсоляционных ограничений, здесь авторы проекта могли самовыразиться только в оформлении фасада: дом получил облицовку из светлого кирпича, перечеркнутую по вертикали темной полосой собранных в тройки французских окон – каждая женщина знает, что вертикальная полоска стройнит! – и, совсем уж неожиданно, цветные декоративные вставки под самой крышей мансарды, отсылающие к богатой орнаменталистике московского модерна и таким образом стилистически «закольцовывающие» архитектуру комплекса бывшей Сытинской типографии. 
Конкурсный проект реновации первой образцовой типографии. Корпус 6. Фрагмент фасада © Архитектурная мастерская «Группа АБВ»
Конкурсный проект реновации первой образцовой типографии. Корпус 6. Фрагмент фасада © Архитектурная мастерская «Группа АБВ»
Конкурсный проект реновации первой образцовой типографии. Корпус 6  © Архитектурная мастерская «Группа АБВ»
Конкурсный проект реновации первой образцовой типографии. Корпус 6 © Архитектурная мастерская «Группа АБВ»
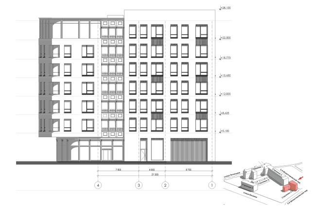
Конкурсный проект реновации первой образцовой типографии. Фасад по 2-му Монетчиковскому переулку. Корпус 6  © Архитектурная мастерская «Группа АБВ»
Конкурсный проект реновации первой образцовой типографии. Фасад по 2-му Монетчиковскому переулку. Корпус 6 © Архитектурная мастерская «Группа АБВ»
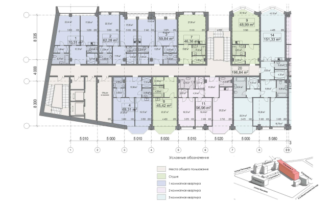
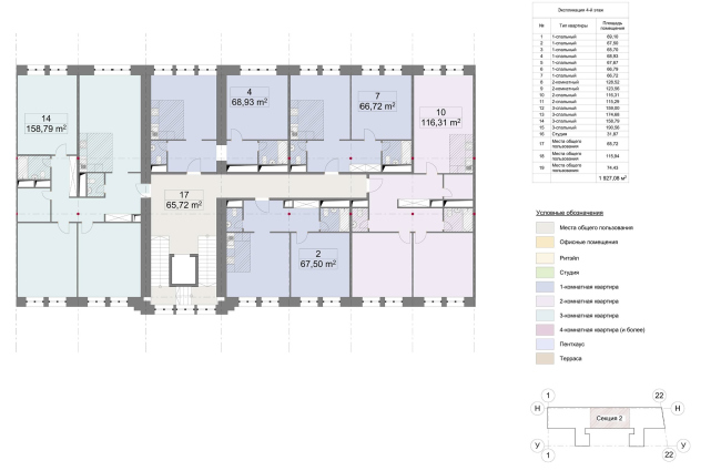
Конкурсный проект реновации первой образцовой типографии. Корпус 6. План 2-5 этажей (типовой) © Архитектурная мастерская «Группа АБВ»
Конкурсный проект реновации первой образцовой типографии. Корпус 6. План 2-5 этажей (типовой) © Архитектурная мастерская «Группа АБВ»
Конкурсный проект реновации первой образцовой типографии. Исходные материалы. Ситуационный план © Архитектурная мастерская «Группа АБВ»
Конкурсный проект реновации первой образцовой типографии. Исходные материалы. Ситуационный план © Архитектурная мастерская «Группа АБВ»
Конкурсный проект реновации первой образцовой типографии. Схема комплекса © Архитектурная мастерская «Группа АБВ»
Конкурсный проект реновации первой образцовой типографии. Схема комплекса © Архитектурная мастерская «Группа АБВ»
Конкурсный проект реновации первой образцовой типографии. План © Архитектурная мастерская «Группа АБВ»
Конкурсный проект реновации первой образцовой типографии. План © Архитектурная мастерская «Группа АБВ»
Конкурсный проект реновации первой образцовой типографии. Инсоляционный план. Проверка © Архитектурная мастерская «Группа АБВ»
Конкурсный проект реновации первой образцовой типографии. Инсоляционный план. Проверка © Архитектурная мастерская «Группа АБВ»
Конкурсный проект реновации первой образцовой типографии. Корпус 1. Существующее состояние © Архитектурная мастерская «Группа АБВ»
Конкурсный проект реновации первой образцовой типографии. Корпус 1. Существующее состояние © Архитектурная мастерская «Группа АБВ»
Конкурсный проект реновации первой образцовой типографии. Корпус 1. Дворовый фасад © Архитектурная мастерская «Группа АБВ»
Конкурсный проект реновации первой образцовой типографии. Корпус 1. Дворовый фасад © Архитектурная мастерская «Группа АБВ»
Конкурсный проект реновации первой образцовой типографии. Корпус 1. План 3 и 4 этажа (вариант 2) © Архитектурная мастерская «Группа АБВ»
Конкурсный проект реновации первой образцовой типографии. Корпус 1. План 3 и 4 этажа (вариант 2) © Архитектурная мастерская «Группа АБВ»
Конкурсный проект реновации первой образцовой типографии. Корпус 1.  План 5 этажа © Архитектурная мастерская «Группа АБВ»
Конкурсный проект реновации первой образцовой типографии. Корпус 1. План 5 этажа © Архитектурная мастерская «Группа АБВ»
Конкурсный проект реновации первой образцовой типографии. Корпус 1. План 6 этажа © Архитектурная мастерская «Группа АБВ»
Конкурсный проект реновации первой образцовой типографии. Корпус 1. План 6 этажа © Архитектурная мастерская «Группа АБВ»
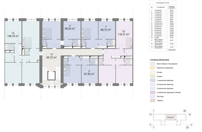
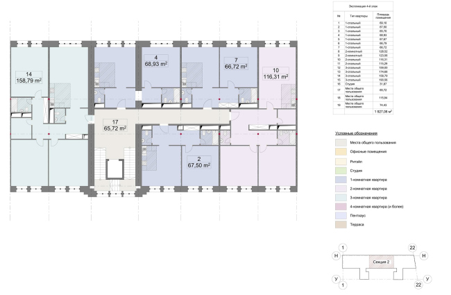
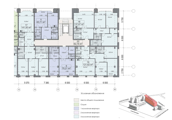
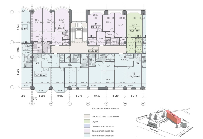
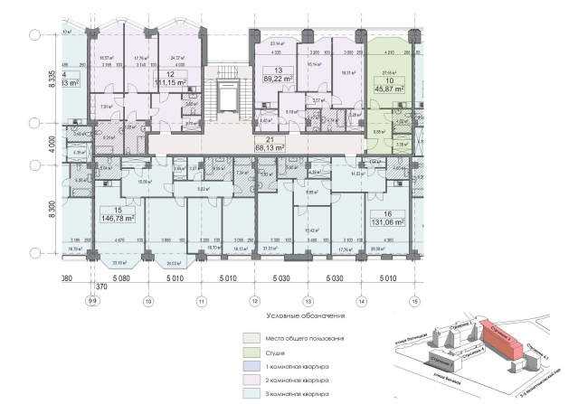
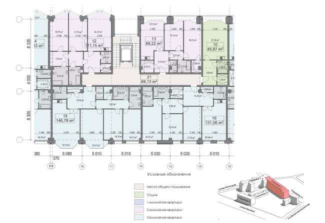
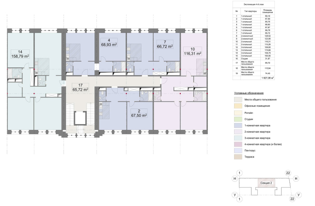
Конкурсный проект реновации первой образцовой типографии. Корпус 1. План 2 секции © Архитектурная мастерская «Группа АБВ»
Конкурсный проект реновации первой образцовой типографии. Корпус 1. План 2 секции © Архитектурная мастерская «Группа АБВ»
Конкурсный проект реновации первой образцовой типографии. Корпус 1. План 1 секции © Архитектурная мастерская «Группа АБВ»
Конкурсный проект реновации первой образцовой типографии. Корпус 1. План 1 секции © Архитектурная мастерская «Группа АБВ»
Конкурсный проект реновации первой образцовой типографии. Корпус 1. План 3 секции © Архитектурная мастерская «Группа АБВ»
Конкурсный проект реновации первой образцовой типографии. Корпус 1. План 3 секции © Архитектурная мастерская «Группа АБВ»
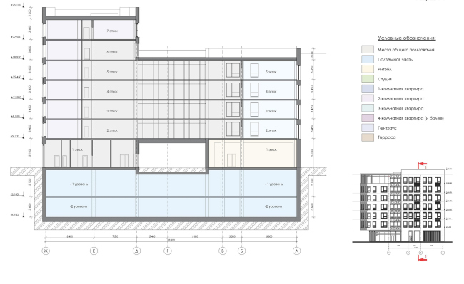
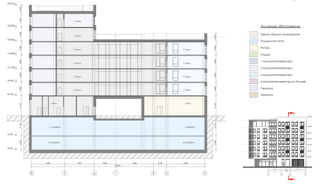
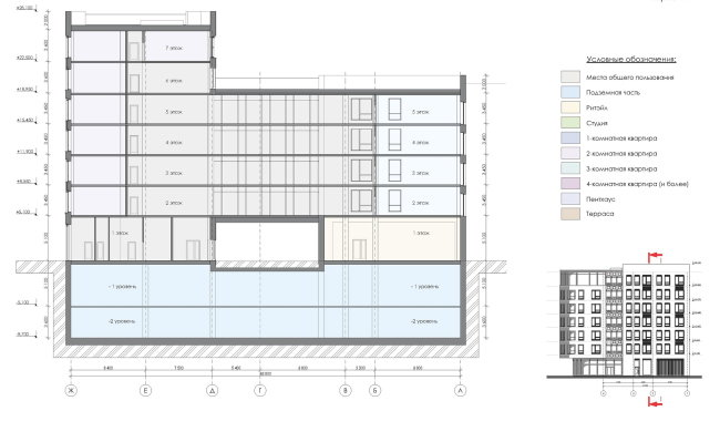
Конкурсный проект реновации первой образцовой типографии. Корпус 1. Разрез © Архитектурная мастерская «Группа АБВ»
Конкурсный проект реновации первой образцовой типографии. Корпус 1. Разрез © Архитектурная мастерская «Группа АБВ»
Конкурсный проект реновации первой образцовой типографии. Корпус 2. Исходные материалы (БТИ, фото) © Архитектурная мастерская «Группа АБВ»
Конкурсный проект реновации первой образцовой типографии. Корпус 2. Исходные материалы (БТИ, фото) © Архитектурная мастерская «Группа АБВ»
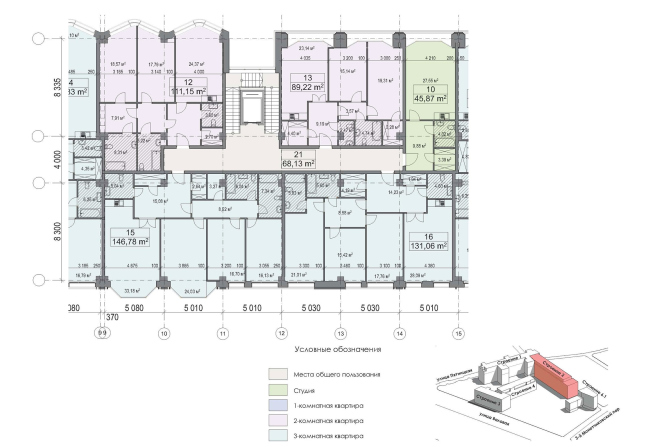
Конкурсный проект реновации первой образцовой типографии. Корпус 2. План 6 этажа (пентхаус) © Архитектурная мастерская «Группа АБВ»
Конкурсный проект реновации первой образцовой типографии. Корпус 2. План 6 этажа (пентхаус) © Архитектурная мастерская «Группа АБВ»
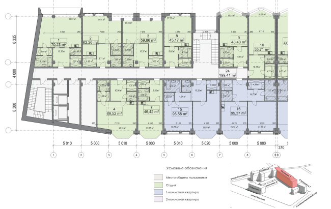
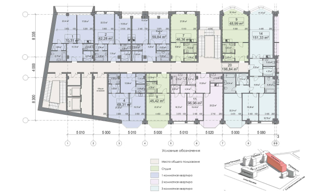
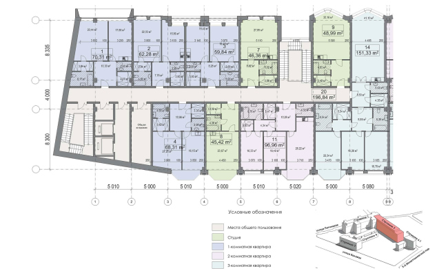
Конкурсный проект реновации первой образцовой типографии. Корпус 2. План типового этажа. Вариант 1 © Архитектурная мастерская «Группа АБВ»
Конкурсный проект реновации первой образцовой типографии. Корпус 2. План типового этажа. Вариант 1 © Архитектурная мастерская «Группа АБВ»
Конкурсный проект реновации первой образцовой типографии. Корпус 2. План типового этажа. Вариант 1 © Архитектурная мастерская «Группа АБВ»
Конкурсный проект реновации первой образцовой типографии. Корпус 2. План типового этажа. Вариант 1 © Архитектурная мастерская «Группа АБВ»
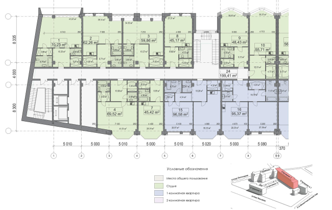
Конкурсный проект реновации первой образцовой типографии. Корпус 2. План типового этажа. Секций 1. Вариант 2 © Архитектурная мастерская «Группа АБВ»
Конкурсный проект реновации первой образцовой типографии. Корпус 2. План типового этажа. Секций 1. Вариант 2 © Архитектурная мастерская «Группа АБВ»
Конкурсный проект реновации первой образцовой типографии. Корпус 2. Фрагмент плана типового этажа. Секция 1. Вариант 1 © Архитектурная мастерская «Группа АБВ»
Конкурсный проект реновации первой образцовой типографии. Корпус 2. Фрагмент плана типового этажа. Секция 1. Вариант 1 © Архитектурная мастерская «Группа АБВ»
Конкурсный проект реновации первой образцовой типографии. Фрагмент плана типового этажа. Корпус 2. Секция 2. Вариант 1 © Архитектурная мастерская «Группа АБВ»
Конкурсный проект реновации первой образцовой типографии. Фрагмент плана типового этажа. Корпус 2. Секция 2. Вариант 1 © Архитектурная мастерская «Группа АБВ»
Конкурсный проект реновации первой образцовой типографии. Корпус 2. Фрагмент плана типового этажа. Секция 3. Вариант 1 © Архитектурная мастерская «Группа АБВ»
Конкурсный проект реновации первой образцовой типографии. Корпус 2. Фрагмент плана типового этажа. Секция 3. Вариант 1 © Архитектурная мастерская «Группа АБВ»
Конкурсный проект реновации первой образцовой типографии. План типового этажа. Корпус 2. Секция 2. Вариант 2 © Архитектурная мастерская «Группа АБВ»
Конкурсный проект реновации первой образцовой типографии. План типового этажа. Корпус 2. Секция 2. Вариант 2 © Архитектурная мастерская «Группа АБВ»
Конкурсный проект реновации первой образцовой типографии. Корпус 2. Разрез 1-1 © Архитектурная мастерская «Группа АБВ»
Конкурсный проект реновации первой образцовой типографии. Корпус 2. Разрез 1-1 © Архитектурная мастерская «Группа АБВ»
Конкурсный проект реновации первой образцовой типографии. Корпус 3. Фасад. Вариант 1 © Архитектурная мастерская «Группа АБВ»
Конкурсный проект реновации первой образцовой типографии. Корпус 3. Фасад. Вариант 1 © Архитектурная мастерская «Группа АБВ»
Конкурсный проект реновации первой образцовой типографии. Корпус 3. План мансардного этажа © Архитектурная мастерская «Группа АБВ»
Конкурсный проект реновации первой образцовой типографии. Корпус 3. План мансардного этажа © Архитектурная мастерская «Группа АБВ»
Конкурсный проект реновации первой образцовой типографии. Корпус 3. План 1 этажа © Архитектурная мастерская «Группа АБВ»
Конкурсный проект реновации первой образцовой типографии. Корпус 3. План 1 этажа © Архитектурная мастерская «Группа АБВ»
Конкурсный проект реновации первой образцовой типографии. Корпус 3. План типового этажа © Архитектурная мастерская «Группа АБВ»
Конкурсный проект реновации первой образцовой типографии. Корпус 3. План типового этажа © Архитектурная мастерская «Группа АБВ»
Конкурсный проект реновации первой образцовой типографии. Корпус 3. Разрезы © Архитектурная мастерская «Группа АБВ»
Конкурсный проект реновации первой образцовой типографии. Корпус 3. Разрезы © Архитектурная мастерская «Группа АБВ»
Конкурсный проект реновации первой образцовой типографии. Корпус 4. Исходные материалы (БТИ, фото) © Архитектурная мастерская «Группа АБВ»
Конкурсный проект реновации первой образцовой типографии. Корпус 4. Исходные материалы (БТИ, фото) © Архитектурная мастерская «Группа АБВ»
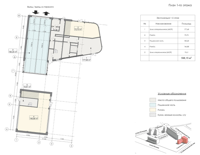
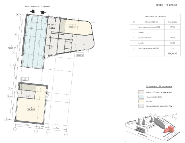
Конкурсный проект реновации первой образцовой типографии. Корпус 4. План 1 этажа © Архитектурная мастерская «Группа АБВ»
Конкурсный проект реновации первой образцовой типографии. Корпус 4. План 1 этажа © Архитектурная мастерская «Группа АБВ»
Конкурсный проект реновации первой образцовой типографии. Корпус 4. План 2 (типового) этажа © Архитектурная мастерская «Группа АБВ»
Конкурсный проект реновации первой образцовой типографии. Корпус 4. План 2 (типового) этажа © Архитектурная мастерская «Группа АБВ»
Конкурсный проект реновации первой образцовой типографии. Корпус 4. План 5 этажа © Архитектурная мастерская «Группа АБВ»
Конкурсный проект реновации первой образцовой типографии. Корпус 4. План 5 этажа © Архитектурная мастерская «Группа АБВ»
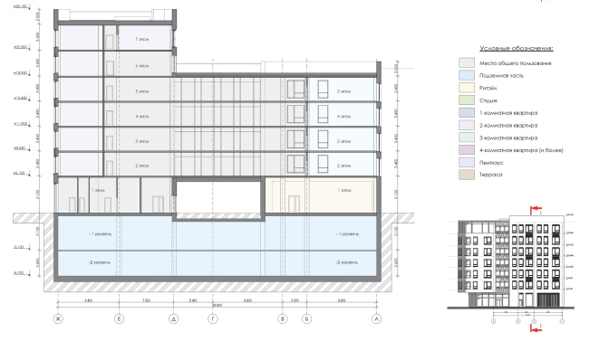
Конкурсный проект реновации первой образцовой типографии. Корпус 4. Размеры 1-1, 2-2 © Архитектурная мастерская «Группа АБВ»
Конкурсный проект реновации первой образцовой типографии. Корпус 4. Размеры 1-1, 2-2 © Архитектурная мастерская «Группа АБВ»
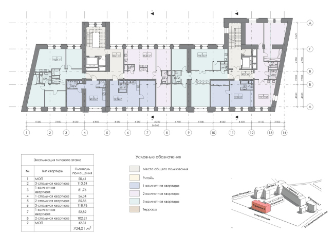
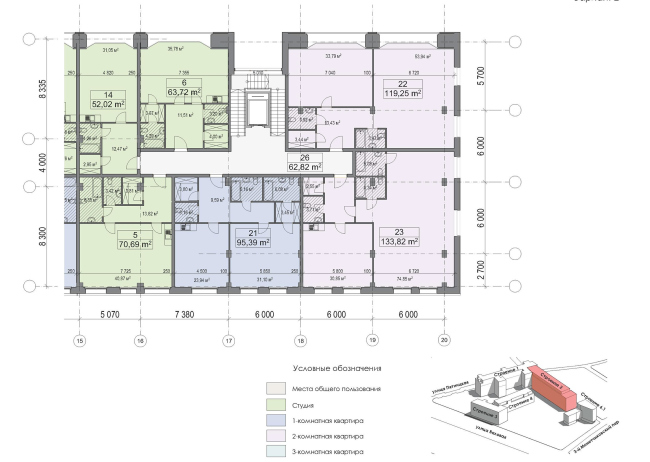
Конкурсный проект реновации первой образцовой типографии. Корпус 6. Вариант 2. Фасады. План типового этажа © Архитектурная мастерская «Группа АБВ»
Конкурсный проект реновации первой образцовой типографии. Корпус 6. Вариант 2. Фасады. План типового этажа © Архитектурная мастерская «Группа АБВ»
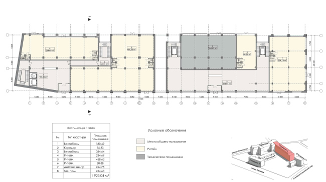
Конкурсный проект реновации первой образцовой типографии. Корпус 6. План 1 этажа © Архитектурная мастерская «Группа АБВ»
Конкурсный проект реновации первой образцовой типографии. Корпус 6. План 1 этажа © Архитектурная мастерская «Группа АБВ»
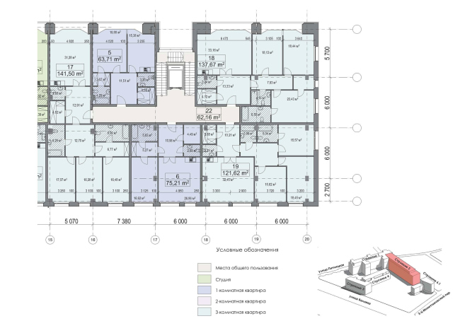
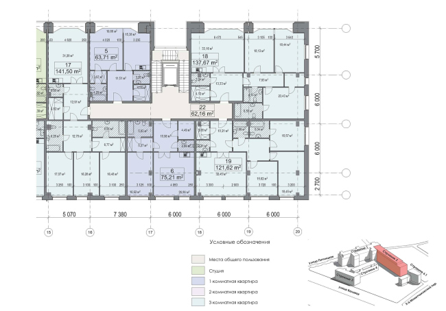
Конкурсный проект реновации первой образцовой типографии. Корпус 6. План 6 этажа © Архитектурная мастерская «Группа АБВ»
Конкурсный проект реновации первой образцовой типографии. Корпус 6. План 6 этажа © Архитектурная мастерская «Группа АБВ»
Конкурсный проект реновации первой образцовой типографии. Корпус 6. План 7 этажа © Архитектурная мастерская «Группа АБВ»
Конкурсный проект реновации первой образцовой типографии. Корпус 6. План 7 этажа © Архитектурная мастерская «Группа АБВ»
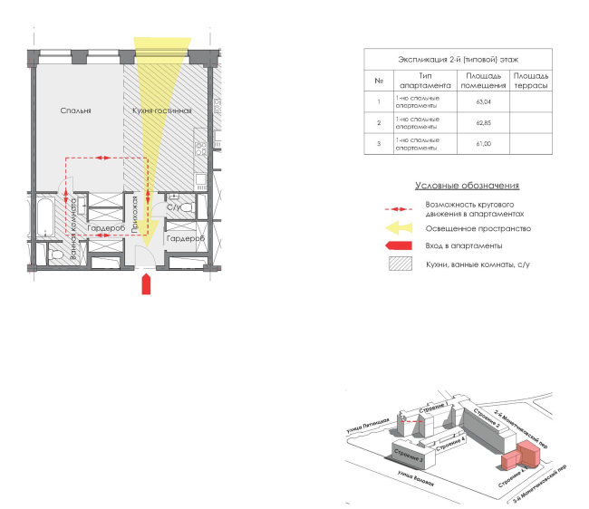
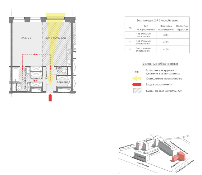
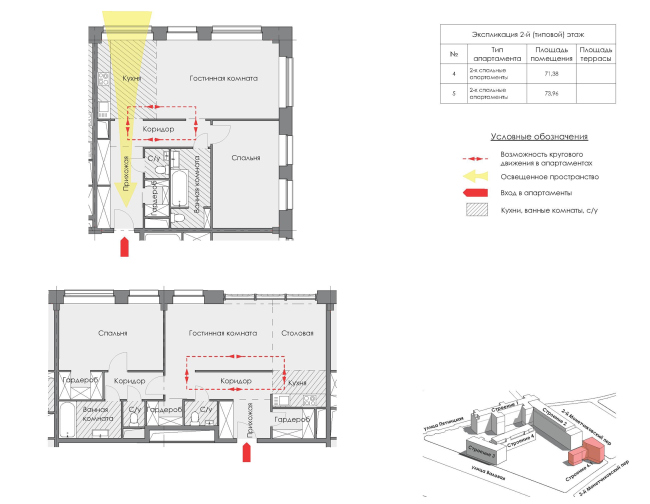
Конкурсный проект реновации первой образцовой типографии. Пример 1-комнатных апартаментов. Корпус 6 © Архитектурная мастерская «Группа АБВ»
Конкурсный проект реновации первой образцовой типографии. Пример 1-комнатных апартаментов. Корпус 6 © Архитектурная мастерская «Группа АБВ»
Конкурсный проект реновации первой образцовой типографии. Корпус 6. Пример 2-комнатных апартаментов © Архитектурная мастерская «Группа АБВ»
Конкурсный проект реновации первой образцовой типографии. Корпус 6. Пример 2-комнатных апартаментов © Архитектурная мастерская «Группа АБВ»
Конкурсный проект реновации первой образцовой типографии. Корпус 6. Пример 3-комнатных апартаментов © Архитектурная мастерская «Группа АБВ»
Конкурсный проект реновации первой образцовой типографии. Корпус 6. Пример 3-комнатных апартаментов © Архитектурная мастерская «Группа АБВ»
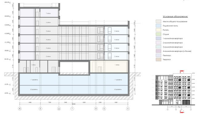
Конкурсный проект реновации первой образцовой типографии. Корпус 6. Разрез 1-1 © Архитектурная мастерская «Группа АБВ»
Конкурсный проект реновации первой образцовой типографии. Корпус 6. Разрез 1-1 © Архитектурная мастерская «Группа АБВ»