Размещено на портале Архи.ру (www.archi.ru)

18.08.2008

Прирученный вихрь

Наталья Коряковская
Объект:
Реконструкция офисного здания на улице Щепкина
Адрес:
Россия, Москва. ул. Щепкина, д. 22. ЦАО,
Архитектор:
Андрей Романов
Екатерина Кузнецова
Мастерская:
ADM
Авторский коллектив:
Архитекторы: А. Романов, Е. Кузнецова, А. Яковенко. При участии: И. Пашкевич, Б. Заец

В последнее время архитектурное бюро ADM работает над весьма сложным и необычным проектом – реконструкцией доходного дома начала XX века под ультрасовременное офисное здание класса «А». Сложность проекта – в необходимости сохранить исторический фасад при полном обновлении «начинки» в соответствии с последними техническими требованиями. Необычность – в трактовке «современной части», в самой середине которой спрятан изогнутый и переливающийся разными цветами стеклянный атриум

Вид со двора
Вид со двора

Неоклассический доходный дом, выстроенный по проекту архитектора Г.А. Гельриха в начале XX века, расположен на улице Щепкина, идущей параллельно Проспекту Мира. Позднее дом получил скучноватые и лишенные декора боковые корпуса. Соседние дома 18 и 24, а также 25 и 13 по улице Щепкина, и дом 19 по улице Гиляровского тоже являются частями исторической застройки квартала. Сохранение неоклассического фасада при реконструкции дома Гельриха представлялось единственно верным решением, поскольку именно фасад формирует образ и место дома в его окружении. Сохранить только фасад, пристроив к нему новое здание с двумя этажами подземной парковки – непростая инженерная задача. На время строительства фасад будет специально укреплен, буквально «подвешен» над землей.

В ходе реконструкции дом полностью изменяет планировку, боковые корпуса сносятся, а дворовое пространство между ними застраивается. Новый объект полностью займет участок и будет точно вписан в его границы, довольно-таки плотно примыкая к соседям. Поэтому для того, чтобы не лишить дом 19 по улице Гиляровского дневного света, новый объем стал ступенчатым – такую форму получила его верхняя часть и даже план со стороны двора. Высота исторической части здания – 5 этажей, а расположенный за ней новый объем варьируется от 5-ти (в правой части) до 7-ми этажей.

Три новых фасада архитекторы сделали модернистскими, но с очевидным привкусом ар-деко или даже рационального модерна. В них много стекла, но прозрачные плоскости прочерчены поверх тонкими вертикалями светлого желтовато-розового камня. Эти каменные полосы «вырастают» из плоского каменного цоколя внизу и «врастают» в горизонтальную полосу вверху – как будто бы в каменной призме прорезали высокие и частые прямоугольные отверстия. Междуэтажные тяги слегка уравновешивают эту оду вертикализму, однако они «утоплены» в плоскости стекла – так что вертикали преобладают.

Тонкая и строгая сетка каменно-стеклянного фасада может напомнить Центральный телеграф Рерберга (1925-1927) или его же Северное страховое общество (1909-1911). Как видим, прием в равной степени принадлежит и десятым, и двадцатым годам прошедшего века – так что есть все основания понять его как отсылку к историческому контексту сохраняемого неоклассического фасада. Строго говоря, в 1910-е годы дом вполне мог бы получить похожую пристройку. Характерно, что в трактовке Андрея Романова и Екатерины Кузнецовой мотив приобретает очень современные черты – подчеркнутую простоту и легкость, недостижимую средствами 1910-х – 1920-х годов.

Дворовый фасад разбит на несколько выступающих – отступающих форм, что также облегчает его восприятие в компании окружающей застройки. Дом перестает выглядеть гигантским цельным блоком (каковым является на самом деле) – и кажется группой зданий, решенных в одном стиле.

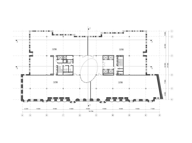
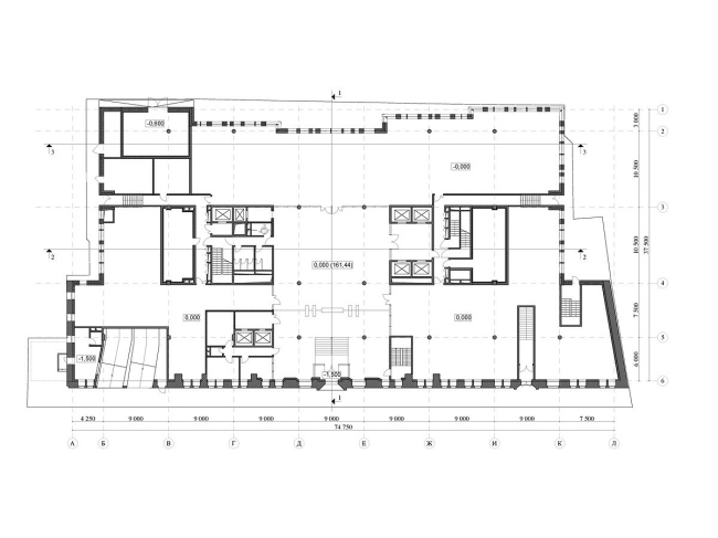
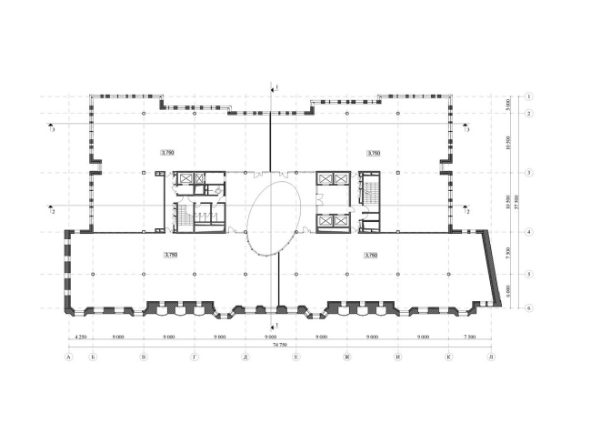
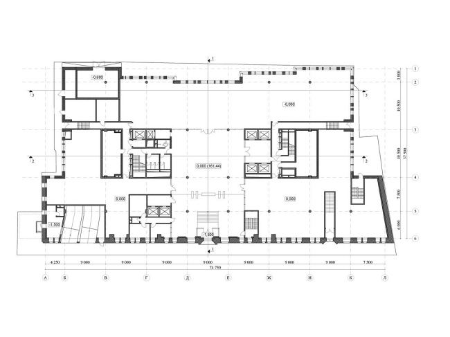
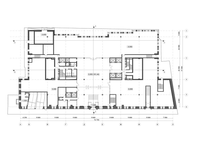
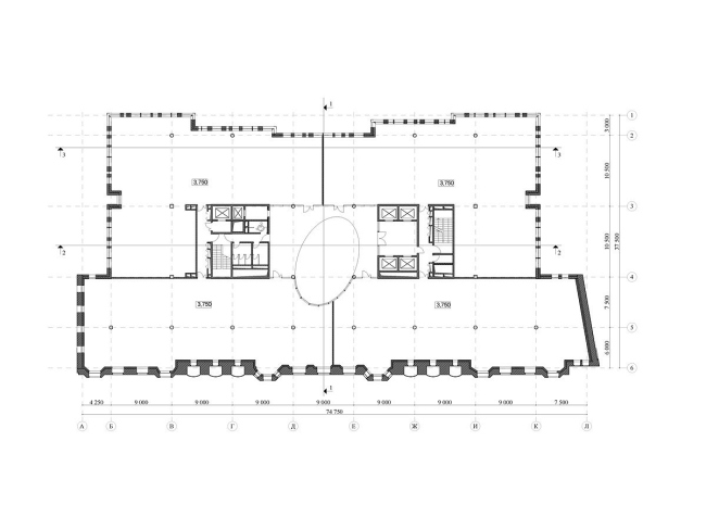
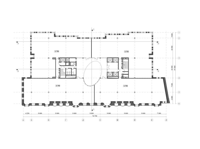
План нового здания будет состоять из двух частей – вытянутого вдоль улицы Щепкина прямоугольника на месте доходного дома, скошенного с одной стороны стеной примыкающего к нему вплотную исторического «соседа», и полностью новой дворовой части, также в плане прямоугольной, только поуже, так что с улицы ее практически не видно. Между ними в центре плана прорисован овальный атриум – главное инновационное ядро проекта. Этот атриум имеет очень сложную пластику, он закручен наподобие торнадо, пронизывает все этажи здания, выгибается в сторону вестибюля и как бы захватывает входящего в огромную переливающуюся воронку. Динамика его диагонального скручивания не получает развития вглубь здания, не растекается, но собирается мощным пучком силовых линий, пронизывающих здание насквозь.

Вообще говоря эта метафора вихря в центре упорядоченной структуры, прорезанной нелинейным стержневым потоком, выглядит остроумно. Ведь где возникает смерч? На границе потоков теплого и холодного воздуха. Вот и здесь мы имеем границу двух зон – одна, условно говоря, историческая, примыкает к старому фасаду и сохраняет воспоминание о контурах прежнего дома. Вторая – современная, и вот на их стыке-то и возникает вихрь, воронка, водоворот. Который однако никуда не движется и даже не вырывается, как можно было бы подумать о вихре. Нет, атриум локализован, спрятан в теле здания и воспринимается только в интерьере. Небольшой фонарь для его освещения даже не будет виден с улицы Щепкина.

Атриум находится точно посередине здания между двумя лестнично-лифтовыми узлами и связывает четыре офисных блока каждого из этажей, планировка которых стандартна. Над первым этажом, где размещается лобби, он буквально нависает огромной стеклянной «трубой». Из вестибюля открывается основная перспектива этой завораживающей конструкции. Авторы проекта собираются применить в атриуме особое дихроматическое стекло немецкой фирмы ШОТТ, цвет которого изменяется в зависимости от угла зрения, падения солнечного света и фона. Эффект возникает из комбинации низко- и высокопреломляющих слоев – в итоге посетители смогут наблюдать радугу внутри здания или смотреть с первого этажа в гигантский «калейдоскоп», преломляющий в фантастические изображения все, что происходит вокруг.

Любая реконструкция с приспособлением – это сложное решение, балансирующее между стремлением сохранить историю и возможностями современной архитектуры. В этом проекте Андрею Романову и Екатерине Кузнецовой удалось не только соединить одно и другое, но и артистично обыграть их столкновение – спрятав в самой середине здания его главную изюминку – биоморфный колодец стеклянного вихря.

Вид атриума
Вид атриума
Реконструкция офисного здания на улице Щепкина. Проект, 2009. Атриум: фотография с макета © ADM
Реконструкция офисного здания на улице Щепкина. Проект, 2009. Атриум: фотография с макета © ADM
Эскиз
Эскиз
Вид атриума
Вид атриума
Реконструкция офисного здания на улице Щепкина. Проект, 2009. Разрез © ADM
Реконструкция офисного здания на улице Щепкина. Проект, 2009. Разрез © ADM
План 1 этажа
План 1 этажа
План типового этажа
План типового этажа