Размещено на портале Архи.ру (www.archi.ru)

11.12.2017

Культурный код

Лилия Аронова
Объект:
Конкурсный проект реновации Первой образцовой типографии
Адрес:
Россия, Москва. ул. Пятницкая, 71/5
Архитектор:
Даниил Лоренц
Наталья Сидорова
Константин Ходнев
Мастерская:
DNK ag
Авторский коллектив:
Д. Лоренц, Н. Сидорова, К. Ходнев, А. Картавая, И. Каширин, М. Кочуркина, Т. Морозкина, А. Тарануха, М. Устюгова, Е. Филатова, А. Бубеннова, макет: мастерская Макет-М, render by Sur-Pur

Собирая воедино мозаику из исторических и заново возведенных объектов комплекса Сытинской типографии, архитекторы из ДНК аг построили собственную лексическую парадигму, некий культурный код, основанный на тонкой игре ассоциаций и образов.

Конкурсный проект реновации Первой образцовой типографии © ДНК аг
Конкурсный проект реновации Первой образцовой типографии © ДНК аг

В основу образного ряда представленного ДНК аг проекта реновации, в полном соответствии с историей места, легла тема типографии, которая, как оказалось, дает почву для массы материальных и смысловых ассоциаций.

«Лицо» комплекса – главный корпус типографии – авторы проекта восстанавливают уважительно и со знанием дела. Реставрация исторической кладки, дверных и оконных проемов, замена кирпичного заполнения «советской» надстройки на витражное остекление – все это возвращает внешний вид здания к облику, задуманному Адольфом Эрихсоном. Чтобы ярче подчеркнуть исторический силуэт с фигурными аттиками, авторы проекта предлагают устроить на углах здания, в верхних этажах, террасы – в том числе со стороны брандмауэрной стены, хорошо видной с Садового кольца. Учитывая смену функционала с производственного на жилой, особое значение приобретает парадный подъезд – он же главный вход в весь комплекс. «Мы максимально сохраняем его характер, – рассказывает архитектор Наталья Сидорова. – Исторический вход через неоготическую арку должен стать главным эмоциональным событием для гостей комплекса. За ним начинается большое парадное лобби. Но поскольку вход обращен к улице и это не очень комфортно, мы чуть заглубляем его витраж с оригинальным рисунком, проявляя тем самым более приватный, защищенный характер жилого комплекса».
Конкурсный проект реновации Первой образцовой типографии. Исторический контекст © ДНК аг
Конкурсный проект реновации Первой образцовой типографии. Исторический контекст © ДНК аг
Конкурсный проект реновации Первой образцовой типографии. Главный вход с Пятницкой улицы. © ДНК аг
Конкурсный проект реновации Первой образцовой типографии. Главный вход с Пятницкой улицы. © ДНК аг
Конкурсный проект  реновации Первой образцовой типографии. Вид на здание типографии с Пятницкой улицы © ДНК аг
Конкурсный проект реновации Первой образцовой типографии. Вид на здание типографии с Пятницкой улицы © ДНК аг
Конкурсный проект реновации Первой образцовой типографии. Вид на здание типографии с Пятницкой улицы © ДНК аг
Конкурсный проект реновации Первой образцовой типографии. Вид на здание типографии с Пятницкой улицы © ДНК аг

Советский корпус, вытянутый вдоль 2 Монетчиковского переулка, стал для архитекторов ДНК аг, пожалуй, главной точкой приложения творческой мысли. Оставляя нетронутым каркас типографского здания 1930-х годов, они «надевают» на него новый фасад, через который тем не менее – в виде глухих простенков между стеклами – проявляется, даже прорывается наружу изначальная структура, создавая таким образом очень уместный в данном контексте эффект исторической и стилистической многослойности. В полной мере оправдывая свое название, архитекторы из ДНК «восстанавливают генную цепочку» – или, если хотите, ремонтируют исторический морфотип. Мало того – именно в этих местах прорывов исторической ткани заявляет о себе тот типографский «язык», о котором говорилось выше: простенки декорируются фрагментами гравюр, с помощью которых создавались изображения в типографии Сытина, геометрия наборной кассы находит свое отражение в сетке ограждений, а рельеф как основа книгопечатания проступает в рядах кессонированных панелей.
Конкурсный проект реновации Первой образцовой типографии. Концепция © ДНК аг
Конкурсный проект реновации Первой образцовой типографии. Концепция © ДНК аг
Конкурсный проект реновации Первой образцовой типографии. Фрагмент фасада дома 2 по 3-му Монетчиковскому переулку. Вариант 2 © ДНК аг
Конкурсный проект реновации Первой образцовой типографии. Фрагмент фасада дома 2 по 3-му Монетчиковскому переулку. Вариант 2 © ДНК аг
Конкурсный проект реновации Первой образцовой типографии. . Фрагмент фасада дома 2 по 3-му Монетчиковскому переулку. Вариант 1  © ДНК аг
Конкурсный проект реновации Первой образцовой типографии. . Фрагмент фасада дома 2 по 3-му Монетчиковскому переулку. Вариант 1 © ДНК аг

Здание это при небольшой этажности достаточно протяженное – оно занимает практически весь переулок. «Мы сознательно не стали разбивать его на три разных объема, чтобы сохранить память места, исторически сложившийся ансамбль, – объясняет Константин Ходнев. – Членение на части в нашем проекте существует нюансно, на уровне средней пластики».
Конкурсный проект реновации Первой образцовой типографии. Фасад дома 2 по 3-му Монетчиковскому переулку © ДНК аг
Конкурсный проект реновации Первой образцовой типографии. Фасад дома 2 по 3-му Монетчиковскому переулку © ДНК аг

Если не присматриваться специально, разница между тремя условными частями фасада схватывается лишь краем глаза, почти подсознательно: ближе к Пятницкой кессоны отмечают перемычки между этажами, в средней части ими украшены пилоны, а в глубине переулка эта архитектурная деталь присутствует в обоих вариантах – и вертикальном, и горизонтальном. За счет разницы света в уходящей вглубь переулка перспективе рельеф читается достаточно четко. Кроме того, границы между фрагментами фиксируют выемки-террасы на верхнем уровне здания. Кстати, благодаря этому решению при взгляде с угла Пятницкой и 2-го Монетчиковского переулка – точки, откуда одинаково хорошо видны силуэты двух основных зданий комплекса – становится очевидно их родство: жесткие ортогональные выемки террас реконструируемого корпуса гармонично рифмуются с прихотливыми неоготическими аттиками, спроектированными Эрихсоном.

Еще одной нитью, образующей канву, на которой держится ткань спроектированного комплекса, стала архитектура московских доходных домов, основательно изученная авторами проекта. Отправной точкой послужило строение 3 по Валовой улице, в котором располагались когда-то квартиры служащих Товарищества И.Д. Сытина. Расположение оконных проемов, оформление фасадов, чередование гладких и рельефных поверхностей – все эти особенности данной типологии не являются предметом прямого цитирования, но отчетливо проявляются, в современном уже прочтении, например, в облике заново строящегося шестого корпуса, где окна также объединены попарно, а на фасаде появляется плитка, характерная для доходных домов XIX века. Прослеживается здесь и тема типографии: это и матричная структура фасада, и включенные в его оформление фрагменты гравюр на ботаническую тему, и материалы: латунь, темный глянцевый кирпич и фрагменты белого камня, воспринимающиеся на этом фоне как листы типографской бумаги. Что же касается объемного решения здания, то это достаточно спокойная современная архитектура, во многом обусловленная ограничениями окружающей, достаточно тесной застройки.
Конкурсный проект  реновации Первой образцовой типографии. Контекст © ДНК аг
Конкурсный проект реновации Первой образцовой типографии. Контекст © ДНК аг
Конкурсный проект реновации Первой образцовой типографии. Новое здание  по 3-му Монетчиковскому переулку © ДНК аг
Конкурсный проект реновации Первой образцовой типографии. Новое здание по 3-му Монетчиковскому переулку © ДНК аг
Конкурсный проект реновации Первой образцовой типографии. Фасад нового здания по 3-му Монетчиковскому переулку © ДНК аг
Конкурсный проект реновации Первой образцовой типографии. Фасад нового здания по 3-му Монетчиковскому переулку © ДНК аг

Как и у каждой из составных частей комплекса, своя тема есть и у корпуса под номером 4, стоящего внутри двора. Кроме восстановления исторических краснокирпичных фасадов, проект предполагает надстройку мансарды, которую авторы предлагают решить в лаконичном, даже минималистичном ключе – легкая ломаная линия остекленного фасада, почти растворяясь в небесах, сообщает зданию некий промежуточный масштаб между исторической частью комплекса и окружающей современной застройкой, в частности бизнес-центром «Лайтхаус», выходящим в этот же двор. Кроме того, это самая камерная часть квартала, фрагмент дворового пространства, оформлению которого авторы проекта уделили особое внимание.
Конкурсный проект реновации Первой образцовой типографии. Здание в Старом дворе © ДНК аг
Конкурсный проект реновации Первой образцовой типографии. Здание в Старом дворе © ДНК аг

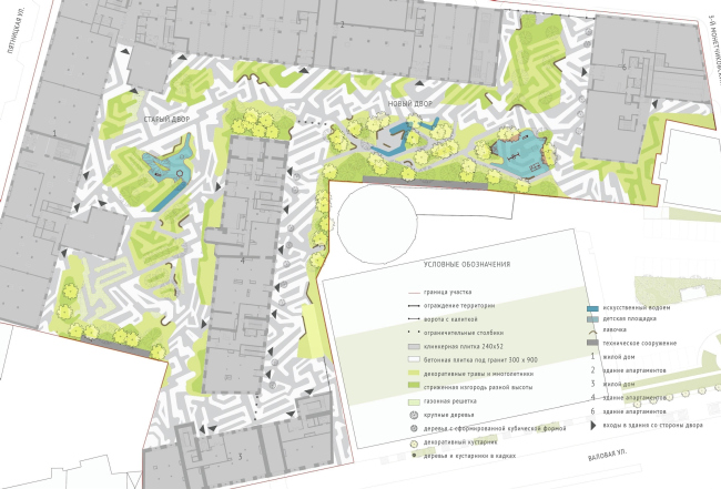
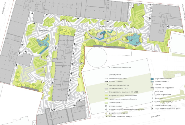
Благоустройство двора в проекте ДНК аг призвано еще прочнее «склеить» уже подогнанные друг к другу фрагменты мозаики, но его концепция и сама по себе – достаточно яркая. Авторы увидели в закрытом со всех сторон пространстве с неоготической доминантой даже отсыл к замковой архитектуре и предложили соответствующую тему озеленения – с включением геометрических орнаментов и растений разных высот, стриженых кустарников и формированных крон. При этом в основу мощения снова ложится контрастный орнамент, ведущий свое происхождение от сытинских обложек, а разноуровневые подиумы и элементы геопластики воплощают в себе типографский рельеф. На 2-й Монетчиковский переулок все это барочное великолепие выплескивается в виде регулярного мини-бульвара с кронированными деревьями. Кстати, благодаря сквозному проходу с Валовой двор становится доступен и для пешеходов – авторы проекта даже предполагают, что на первом этаже внутреннего корпуса могли бы со временем открыться небольшие камерные кафе.
Конкурсный проект реновации Первой образцовой типографии. Вид на Старый двор © ДНК аг
Конкурсный проект реновации Первой образцовой типографии. Вид на Старый двор © ДНК аг
Конкурсный проект реновации Первой образцовой типографии. Вид на внутреннюю пешеходную улицу © ДНК аг
Конкурсный проект реновации Первой образцовой типографии. Вид на внутреннюю пешеходную улицу © ДНК аг
Конкурсный проект проект реновации Первой образцовой типографии. Вид на Новый двор с парком  © ДНК аг
Конкурсный проект проект реновации Первой образцовой типографии. Вид на Новый двор с парком © ДНК аг
Конкурсный проект реновации Первой образцовой типографии. Концепция благоустройства дворов © ДНК аг
Конкурсный проект реновации Первой образцовой типографии. Концепция благоустройства дворов © ДНК аг
Конкурсный проект  реновации Первой образцовой типографии. Схема благоустройства дворов © ДНК аг
Конкурсный проект реновации Первой образцовой типографии. Схема благоустройства дворов © ДНК аг

Выразительное и комфортное дворовое пространство – вкупе с многослойным историческим контекстом, подчеркнутым акцентами современной архитектуры, и разнообразной, на любой вкус, квартирографией – вот те инструменты, которые позволяют авторам проекта добиться цели, которую сформулировал Константин Ходнев: «Для нас было очень важно, чтобы комплекс стал не просто совокупностью жилых домов, но городским кварталом премиум-класса, максимально комфортным для проживания». 
Конкурсный проект реновации Первой образцовой типографии. Макет © ДНК аг
Конкурсный проект реновации Первой образцовой типографии. Макет © ДНК аг